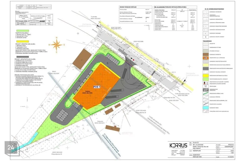
Müüme detailplaneeringuga 6551 m² kinnistu Rae vallas Lehmja külas.
Kinnistu paikneb ca 200 m kaugusel Tartu maanteest Põrguvälja tee ääres, Saku Metalli kompleksi kõrval ja Lookivi Pargi lähedal.
Kinnistu sihtotstarve on 60% tootmismaa/40% ärimaa.
Detailplaneeringuga on kinnistule ette nähtud:
• ehitusalune pind kuni 1600 m²
• hoonete kõrgus kuni 9 m
• kuni 2 korrust
• kuni 2 hoonet
Huvi korral olemas ka hoone eelprojekt.
Liitumised – VK, gaas, side vastavalt tehnilistele tingimustele, elekter ampritasu alusel.
Suurepärane asukoht arenevas piirkonnas Tartu mnt läheduses, Tallinnasse on vaid ca 5 km.
Hinnale lisandub käibemaks.
Kinnistu paikneb ca 200 m kaugusel Tartu maanteest Põrguvälja tee ääres, Saku Metalli kompleksi kõrval ja Lookivi Pargi lähedal.
Kinnistu sihtotstarve on 60% tootmismaa/40% ärimaa.
Detailplaneeringuga on kinnistule ette nähtud:
• ehitusalune pind kuni 1600 m²
• hoonete kõrgus kuni 9 m
• kuni 2 korrust
• kuni 2 hoonet
Huvi korral olemas ka hoone eelprojekt.
Liitumised – VK, gaas, side vastavalt tehnilistele tingimustele, elekter ampritasu alusel.
Suurepärane asukoht arenevas piirkonnas Tartu mnt läheduses, Tallinnasse on vaid ca 5 km.
Hinnale lisandub käibemaks.

























