
Rootsi tee 7, Kopli küla
Suure potentsiaaliga kinnistu Lagedi piirimail!
Rae vallas on hetkel Kinnisvara24 portaalis müügis 93 maatükki. Keskmine maatükk on umbes 6 551 m² suurune ja keskmine müügihind on ligikaudu 219 000 €. Rae valla kruntide müügikuulutused on aktiivsed olnud keskmiselt 179 päeva.
Kui sa ei leia sobivat pakkumist Rae vallas, vaata kindlasti ka Harju maakonna maatükke.

Suure potentsiaaliga kinnistu Lagedi piirimail!

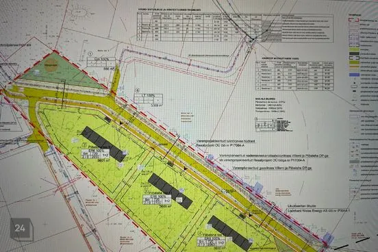
Detailplaneeringuga kinnistu Tallinna ringtee ääres!


Ca 4,7 hektari suurume maatulundusmaa Tallinna külje all!

Ehitusloaga elamumaa Peetris !

Ärimaa kinnistu Vaida viadukti kõrval

Tõenäoliselt üks parimaid pakkumisi Eestis!

Kui portaali lisandub uusi kuulutusi, mis vastavad Sinu tehtud otsingule, saadame need Sulle e-postile.
Teavitusest loobumiseks vajuta saadetavas e-kirjas vastavale lingile.
* Tellides e-agendi nõustud tingimustega.