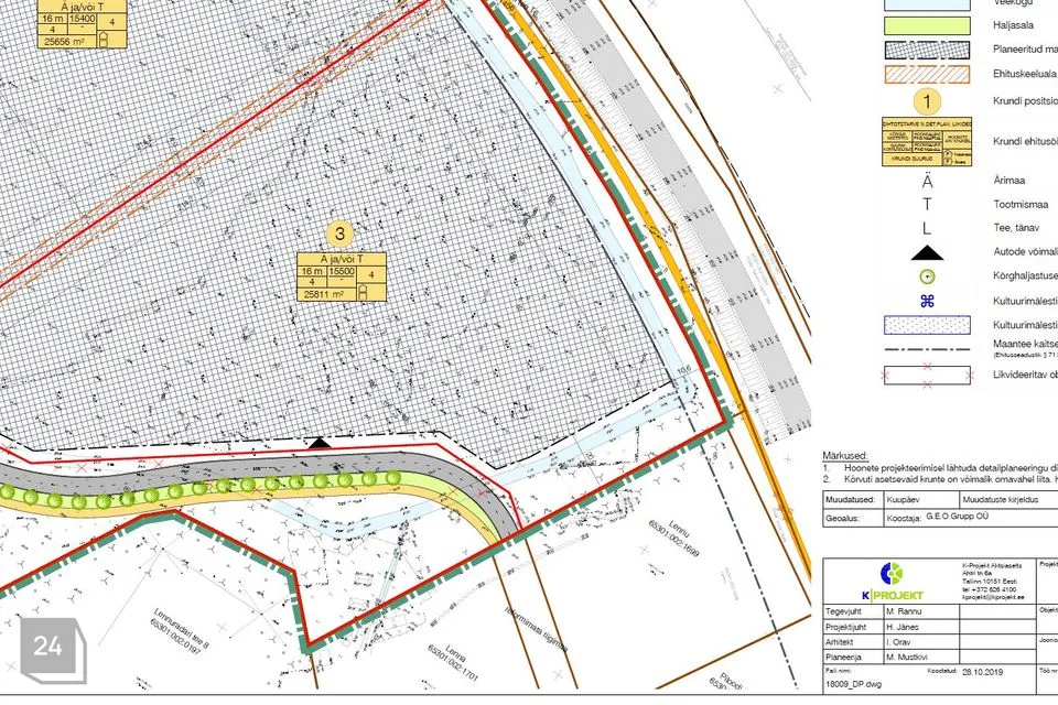
Maatulundusmaa, aga täpselt paraja suurusega et saaks ilma planeeringuta majandada- ühel pool juba ammu kehtestatud tehnopargi arendus ja teisel pool algatatud suuremat sorti lennuvälja planeering. Esimese kaudu on juba praegu kõik liitumised võimalikud. Lisaks on tulevikus mõlemad pargid ühendatud teega mis läheb Lennu eest läbi.
Naaberkinnistud on äri- tootmismaad täisehituse võimalusega 70- 80 protsendise täisehitusega ja kõrgusega 16 meetri kanti.
Plats on hästi vaadeldav Sõjamäe teelt ja lisa ligipääsu saab tekitada ka Sõjamäe kergliiklusteelt.
Linnapoolse piiri taga on kena noore jõe mõõtu veekanal.
Käibemaks ei sisaldu ega lisandu.





