KORTER ON VALMIS!
Kukerpuu Kodud on „Arhitektuuribüroo Korrus“ poolt loodud uus innovatiivne kortermajade linnak Tartu linna piiril, Raadi alevis. Esimeseetapina valmis Kukerpuu 1 kortermaja ja käimas on järjekorras juba teise kortermaja ehitus.
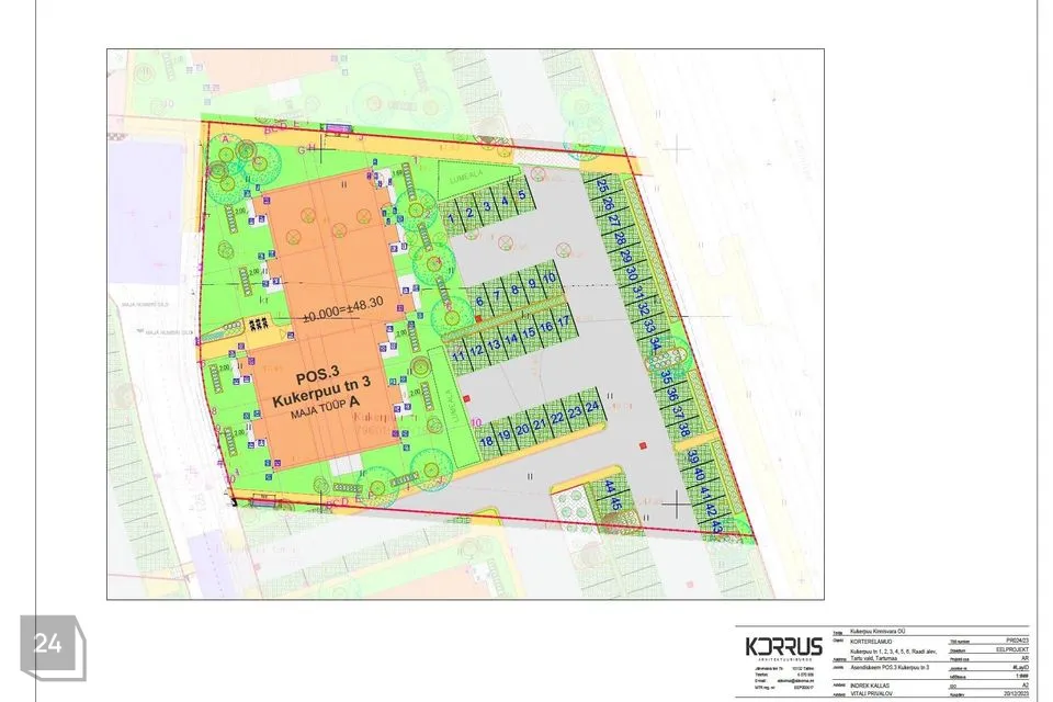
Kukerpuu 3 aadressile kerkiv A-energiaklassiga kolmekorruseline ja 30 korteriga elamu valmib juba
selle aasta lõpus. Kvartalisse on planeeritud kuus kortermaja ja kokku 174 korterit.
PAKKUMISES OLEVA KORTERI PLANEERING:
Antud korter on 3-toaline, elamispinnaga 65m² mis asub esimesel korrusel.
Korteril avar esik 4,8m², koridor 3,6m², elutuba-köök 32,3m², millest pääseb avarale terrassile 11 m², pesemisruum 4,9m², magamistuba 11,4m²,magamistuba 11,6m²
Korteri hinna sisse kuulub 0 korrusel paiknev panipaik pindalaga 3,4 m² ja kinnistul paiknev parkimiskoht.
Kiirematel võimalus soetada lisa tasu eest teine lisaparkimiskoht.
Kukerpuu Kodudes on korteri hinnas üks parkimiskoht ja soklikorrusel asuv panipaik.
Maja hoovis planeeritud 42 parkimiskohta, millele rajatud elektriauto laadimisvalmidused.
Miks eelistada just Kukerpuu Kodusid?
Parimad tehnilised lahendused, mugavad planeeringud ja kõrge ehituskvaliteet.
A-energiatõhususklass kindlustab madalad ülalpidamiskulud ja pankadelt soodsad
laenutingimused.
Soklikorrusel ühiskasutuses olev jalgrataste hoiuruum.
Mõnusa sisekliima tagab tsentraalne soojustagastusega ventilatsioon.
Keskküttesüsteem rajatakse kaugküttebaasil, mille soojakandjateks on põrandasse valatud
küttetorustik.
Igal korteri jahutusseadme paigaldamise valmidus.
Majas on mahukas lift.
0 korrusel mahukas varjend.
NÄIDISKORTER
Esimesena valminud Kukerpuu 1 kortermajas on võimalik kohapeal tutvuda ka sisustatud
näidiskoduga. Võta ühendust, lepime kokku Sulle sobiva aja ning lähme koos vaatama. Tutvuda saab
ka esimeses etapis valminud kortermaja ühisruumidega ning ehituses oleva maja ning korteritega.
ASUKOHT
Kukerpuu Kodude uusarendus asub Tartu linna piiril, Raadi alevis Vahi tee serval asuvas uues
arenevas uuselamute piirkonnas. Kinnistule juba rajatud asfalteeritud teed, valgustus,
lastemänguväljak ning kõrghaljastus.
Läheduses olevad haridusasutused: Tartu Lasteaed Klaabumaa, Lasteaed Ripsik, Raadi lastehoid,
Kõrveküla Põhikool, Raadi Põhikool (alustas 1. klasside õppega 1.09.2025), VOCO – Tartu Rakenduslik
Kolledž.
Lähimad kaulused: Vahi Selver, Vahi Maxima X, Raadimõisa Coop, Grossi toidupood.
Piirkonnas on ka mitmed huviringid, terviserajad, mänguväljakud ja linnaliini bussipeatused.
Jalutuskäigu kaugusel on Raadi mõisapark ja Eesti Rahva Muuseum. Peagi rajatakse Raadi alevikku
uus Raadi haridus- ja kogukonnakeskus, kuhu planeeritud lasteaed, kool, mitmed spordirajatised ja
pargialad.
NB! Kuulutuse juures olevad pildid on illustratiivsed või näidiskorterist!
Tutvu ka kodulehega http://www.kukerpuu.domus.ee
Pangad pakuvad Domus Kinnisvara klientidele eluasemelaenu lepingutasu soodustusi. Küsi lisainfot Domus Kinnisvara maaklerilt või hindajalt.
Müü ja hinda meiega! Teeme kinnisvara müügi Sinu jaoks sujuvaks ja pingevabaks.
Kukerpuu Kodud on „Arhitektuuribüroo Korrus“ poolt loodud uus innovatiivne kortermajade linnak Tartu linna piiril, Raadi alevis. Esimeseetapina valmis Kukerpuu 1 kortermaja ja käimas on järjekorras juba teise kortermaja ehitus.
Kukerpuu 3 aadressile kerkiv A-energiaklassiga kolmekorruseline ja 30 korteriga elamu valmib juba
selle aasta lõpus. Kvartalisse on planeeritud kuus kortermaja ja kokku 174 korterit.
PAKKUMISES OLEVA KORTERI PLANEERING:
Antud korter on 3-toaline, elamispinnaga 65m² mis asub esimesel korrusel.
Korteril avar esik 4,8m², koridor 3,6m², elutuba-köök 32,3m², millest pääseb avarale terrassile 11 m², pesemisruum 4,9m², magamistuba 11,4m²,magamistuba 11,6m²
Korteri hinna sisse kuulub 0 korrusel paiknev panipaik pindalaga 3,4 m² ja kinnistul paiknev parkimiskoht.
Kiirematel võimalus soetada lisa tasu eest teine lisaparkimiskoht.
Kukerpuu Kodudes on korteri hinnas üks parkimiskoht ja soklikorrusel asuv panipaik.
Maja hoovis planeeritud 42 parkimiskohta, millele rajatud elektriauto laadimisvalmidused.
Miks eelistada just Kukerpuu Kodusid?
Parimad tehnilised lahendused, mugavad planeeringud ja kõrge ehituskvaliteet.
A-energiatõhususklass kindlustab madalad ülalpidamiskulud ja pankadelt soodsad
laenutingimused.
Soklikorrusel ühiskasutuses olev jalgrataste hoiuruum.
Mõnusa sisekliima tagab tsentraalne soojustagastusega ventilatsioon.
Keskküttesüsteem rajatakse kaugküttebaasil, mille soojakandjateks on põrandasse valatud
küttetorustik.
Igal korteri jahutusseadme paigaldamise valmidus.
Majas on mahukas lift.
0 korrusel mahukas varjend.
NÄIDISKORTER
Esimesena valminud Kukerpuu 1 kortermajas on võimalik kohapeal tutvuda ka sisustatud
näidiskoduga. Võta ühendust, lepime kokku Sulle sobiva aja ning lähme koos vaatama. Tutvuda saab
ka esimeses etapis valminud kortermaja ühisruumidega ning ehituses oleva maja ning korteritega.
ASUKOHT
Kukerpuu Kodude uusarendus asub Tartu linna piiril, Raadi alevis Vahi tee serval asuvas uues
arenevas uuselamute piirkonnas. Kinnistule juba rajatud asfalteeritud teed, valgustus,
lastemänguväljak ning kõrghaljastus.
Läheduses olevad haridusasutused: Tartu Lasteaed Klaabumaa, Lasteaed Ripsik, Raadi lastehoid,
Kõrveküla Põhikool, Raadi Põhikool (alustas 1. klasside õppega 1.09.2025), VOCO – Tartu Rakenduslik
Kolledž.
Lähimad kaulused: Vahi Selver, Vahi Maxima X, Raadimõisa Coop, Grossi toidupood.
Piirkonnas on ka mitmed huviringid, terviserajad, mänguväljakud ja linnaliini bussipeatused.
Jalutuskäigu kaugusel on Raadi mõisapark ja Eesti Rahva Muuseum. Peagi rajatakse Raadi alevikku
uus Raadi haridus- ja kogukonnakeskus, kuhu planeeritud lasteaed, kool, mitmed spordirajatised ja
pargialad.
NB! Kuulutuse juures olevad pildid on illustratiivsed või näidiskorterist!
Tutvu ka kodulehega http://www.kukerpuu.domus.ee
Pangad pakuvad Domus Kinnisvara klientidele eluasemelaenu lepingutasu soodustusi. Küsi lisainfot Domus Kinnisvara maaklerilt või hindajalt.
Müü ja hinda meiega! Teeme kinnisvara müügi Sinu jaoks sujuvaks ja pingevabaks.



























