UUS HIND!
Müüa renoveerimist vajav suvila/aiamaja Tabu ühistus, Soomra külas. Tegemist on kunagise aiamaja tüüpprojekti Arne-kõrge järgi ehitatud II korruseline, keldriga suvilaga, põrandapinda Ehitisregistri järgi ca 60 m², ehitusalune pind 80 m². Ehitisregistri info järgi on suvila püstitamisel. Kinnistu sihtotstarve on 100% elamumaa.
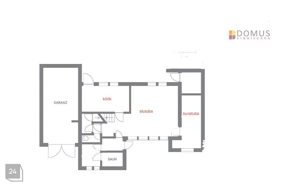
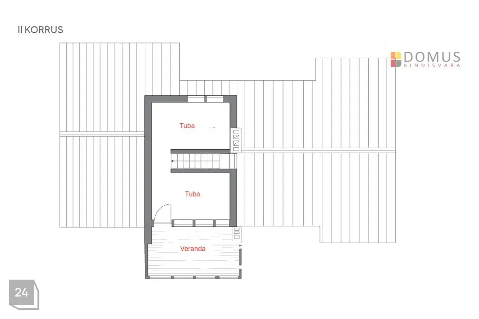
Hoones on I korrusel esik, elutuba, köök, saun ja duširuum, kuivkäimla. Suvetuba ja majapidamisruum ja garaaž on samuti I k, kuid sissepääsuga õuest. II korrusel on 2 tuba ja verandatuba.
Suvilat kütab pioneerpliit soojamüüriga elutuppa ja õhksoojuspump, saun puuküttega.
Vesi tuleb majja Tabu ühistu ühiselt rajatud puurkaevust, kanalisatsioon- pesuvesi kogutakse mahutisse ja tühjendatakse ca 1x aastas, käimlal on lampkast.
Elekter on 3x16A. Suvila on ehitatud omanike sõnul narvaplokkidest, katusel on plekk, aknad, uksed ehitusaegsed.
Hoone vajab remonti.
Kinnistul asub ka väike kodulindude majake- kanala ja renoveerimist vajav kasvuhoone. Leidub viljapuid ja marjapõõsaid.
Kinnistule sissepääsu kõrval asub ühistu poolt rajatud tiik.
Ümbruses on suvilad ja suvilatest ümber ehitatud eramud, kus elatakse aastaringi.
Ligipääs kinnistule on hea.
Pärnusse on ca 20 km.
Helista ja tunne huvi!
Pangad pakuvad Domus Kinnisvara klientidele eluasemelaenu lepingutasu soodustusi. Küsi lisainfot Domus Kinnisvara maaklerilt või hindajalt.
Müü ja hinda meiega! Teeme kinnisvara müügi Sinu jaoks sujuvaks ja pingevabaks.
Müüa renoveerimist vajav suvila/aiamaja Tabu ühistus, Soomra külas. Tegemist on kunagise aiamaja tüüpprojekti Arne-kõrge järgi ehitatud II korruseline, keldriga suvilaga, põrandapinda Ehitisregistri järgi ca 60 m², ehitusalune pind 80 m². Ehitisregistri info järgi on suvila püstitamisel. Kinnistu sihtotstarve on 100% elamumaa.
Hoones on I korrusel esik, elutuba, köök, saun ja duširuum, kuivkäimla. Suvetuba ja majapidamisruum ja garaaž on samuti I k, kuid sissepääsuga õuest. II korrusel on 2 tuba ja verandatuba.
Suvilat kütab pioneerpliit soojamüüriga elutuppa ja õhksoojuspump, saun puuküttega.
Vesi tuleb majja Tabu ühistu ühiselt rajatud puurkaevust, kanalisatsioon- pesuvesi kogutakse mahutisse ja tühjendatakse ca 1x aastas, käimlal on lampkast.
Elekter on 3x16A. Suvila on ehitatud omanike sõnul narvaplokkidest, katusel on plekk, aknad, uksed ehitusaegsed.
Hoone vajab remonti.
Kinnistul asub ka väike kodulindude majake- kanala ja renoveerimist vajav kasvuhoone. Leidub viljapuid ja marjapõõsaid.
Kinnistule sissepääsu kõrval asub ühistu poolt rajatud tiik.
Ümbruses on suvilad ja suvilatest ümber ehitatud eramud, kus elatakse aastaringi.
Ligipääs kinnistule on hea.
Pärnusse on ca 20 km.
Helista ja tunne huvi!
Pangad pakuvad Domus Kinnisvara klientidele eluasemelaenu lepingutasu soodustusi. Küsi lisainfot Domus Kinnisvara maaklerilt või hindajalt.
Müü ja hinda meiega! Teeme kinnisvara müügi Sinu jaoks sujuvaks ja pingevabaks.




































