Eelregistreerimisega kliendipäev toimub Mustal reedel, 28. novembril kell 14.00 - 16.00! Registreeri enda huvi, lepime kokku suvilaga tutvumise täpse aja ja Sulle kehtib Musta reede erihind 180 000 eurot!
Käesalu külas asuval 1012 m2 suurusel kinnistul paikneb 59.2 m2 suurune suvila ja 42.8 m2 suurune abihoone, milles asub hubane saun ja garaaž.
Suvila on ehitatud tuhaplokist, katusekorrus puitkarkassist, väljast viimistletud puitlaudisega, katusekate profiilplekk, pakettaknad.
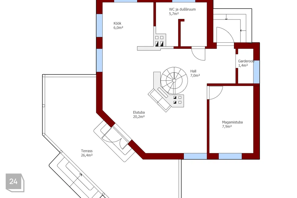
Esimesel korrusel on avatud köögiga elutuba, magamistuba ning WC-duširuum. Köögis induktsioonpliit, ahi, külmik ning mikrolaineahi.
Teisele korrusele viib puidust keerdtrepp, kus asub kaks magamistuba. II korruse magamistubades on lisaks suurtele akendele ka katuseaknad ja katusealused panipaigad.
Elutoast on pääs suvila taga asuvale 26.4 m2 suurusele terrassile - kagu-, lõuna-, edelasuunaline päikesepaistele avatud terrass on võimalik kinniseks talveaiaks ümber ehitada.
Kinnistul asub eraldi abihoone (42.8 m2), milles on riiulitega garaaž (19.8 m2), kaminaga puhkeruum (14.1 m2), puuküttega saunaruum ja pesuruum. Saunast on pääs 9.1 m2 suurusele kagu- ja lõunapäikesele avatud terrassile. Saunamaja lõunapoolses küljes asub klaasist kasvuhoone (7.1 m2). mida on soovi korral võimalik suuremaks ehitada.
Suvila kütmiseks on paigaldatud õhk-soojuspump, igas toas elektriradiaator, lisaks on üks infrapuna radiaator, elutoas kamin, köögis puupliit soojamüüriga ning elektripõrandakütted WC-duširuumis ning saunamaja puhkeruumis ja pesuruumis.
Suvila katusele on paigaldatud 6 kW päikesepaneelid.
Kinnistul on veel maakividest välikamina ja suitsuahjuga grillimisnurk ning kuivade küttepuudega puukuur 3x3m.
Kinnistu on aiaga piiratud ja kaunilt kõrghaljastatud, lille- ja roosipeenrad, põõsad ja viljapuud.
Kinnistul on tsentraalne vesi ja tsentraalne kanalisatsioon, lisaks oma puurkaev.
Olemas on robotniiduk ja muruniiduk.
Rahu ja turvalisuse tagab ühistut piirav aed, mille sissepääsul on valvekaamera, sissepääsu värav avatav puldi või telefoniga. Toimib kogukonna tunne ja naabrivalve. Ühistu sees olev asfalteeritud ringtee on hea võimalus jalutamiseks, rattasõiduks ja rulluisutamiseks. Samuti on olemas lastele väike kiigeplats ja kelgumägi.
Kinnistu asub Käesalu külas, lähim ühistranspordi peatus on 2,2 km kaugusel. Laulasmaa kauplused, toitlustusasutused, kool, spordihoone, lasteaed, apteek, kogukonnamaja, raamatukogu ja Laulasmaa SPA ning Laulasmaa liivarand jäävad 4 km kaugusele, Keila linnast 14 km ja Tallinna kesklinnast 35 km kaugusel.
Suvilast 2,4 km kaugusele jääb Kõltsu mõis, Arvo Pärdi keskus jääb 5.2 km kaugusele, Laulasmaa surfiklubi 2.7 km, Lohusalu sadam 8 km ja Kloogarand 6 km kaugusele.
Tule seda suurepärast suvekodu vaatama, selleks võta minuga ühendust ja lepime sulle sobiva aja kokku.
****
KINNISVARAEKSPERT tegutseb Eesti turul alates 1993. aastast. Meie Bürood asuvad Tallinnas ja Pärnus ning teenindame teid üle Eesti. Koostööpartnerite Nord Prime Capital ja Alliance Group UAB kaudu oleme esindatud ka Lätis ning Leedus.
Pakume maaklerteenust, hindamist ja kinnisvaraalast nõustamisteenust nii era- kui ka ärisektoris.
Kinnisvaraekspert teeb tihedat koostööd maailma suurimate kinnisvarafirmade hulka kuuluva ettevõttega Cushman & Wakefield. Meie koostöösidemed ulatuvad peale Balti riikide ja Põhjamaade pea kõikidesse maailmajagudesse.
Lisainfo ja teenuste tellimine:
Tallinnas: +372 *******
Pärnus: +372 *******
Rohkem infot leiad www.kinnisvaraekspert.ee
***
Käesalu külas asuval 1012 m2 suurusel kinnistul paikneb 59.2 m2 suurune suvila ja 42.8 m2 suurune abihoone, milles asub hubane saun ja garaaž.
Suvila on ehitatud tuhaplokist, katusekorrus puitkarkassist, väljast viimistletud puitlaudisega, katusekate profiilplekk, pakettaknad.
Esimesel korrusel on avatud köögiga elutuba, magamistuba ning WC-duširuum. Köögis induktsioonpliit, ahi, külmik ning mikrolaineahi.
Teisele korrusele viib puidust keerdtrepp, kus asub kaks magamistuba. II korruse magamistubades on lisaks suurtele akendele ka katuseaknad ja katusealused panipaigad.
Elutoast on pääs suvila taga asuvale 26.4 m2 suurusele terrassile - kagu-, lõuna-, edelasuunaline päikesepaistele avatud terrass on võimalik kinniseks talveaiaks ümber ehitada.
Kinnistul asub eraldi abihoone (42.8 m2), milles on riiulitega garaaž (19.8 m2), kaminaga puhkeruum (14.1 m2), puuküttega saunaruum ja pesuruum. Saunast on pääs 9.1 m2 suurusele kagu- ja lõunapäikesele avatud terrassile. Saunamaja lõunapoolses küljes asub klaasist kasvuhoone (7.1 m2). mida on soovi korral võimalik suuremaks ehitada.
Suvila kütmiseks on paigaldatud õhk-soojuspump, igas toas elektriradiaator, lisaks on üks infrapuna radiaator, elutoas kamin, köögis puupliit soojamüüriga ning elektripõrandakütted WC-duširuumis ning saunamaja puhkeruumis ja pesuruumis.
Suvila katusele on paigaldatud 6 kW päikesepaneelid.
Kinnistul on veel maakividest välikamina ja suitsuahjuga grillimisnurk ning kuivade küttepuudega puukuur 3x3m.
Kinnistu on aiaga piiratud ja kaunilt kõrghaljastatud, lille- ja roosipeenrad, põõsad ja viljapuud.
Kinnistul on tsentraalne vesi ja tsentraalne kanalisatsioon, lisaks oma puurkaev.
Olemas on robotniiduk ja muruniiduk.
Rahu ja turvalisuse tagab ühistut piirav aed, mille sissepääsul on valvekaamera, sissepääsu värav avatav puldi või telefoniga. Toimib kogukonna tunne ja naabrivalve. Ühistu sees olev asfalteeritud ringtee on hea võimalus jalutamiseks, rattasõiduks ja rulluisutamiseks. Samuti on olemas lastele väike kiigeplats ja kelgumägi.
Kinnistu asub Käesalu külas, lähim ühistranspordi peatus on 2,2 km kaugusel. Laulasmaa kauplused, toitlustusasutused, kool, spordihoone, lasteaed, apteek, kogukonnamaja, raamatukogu ja Laulasmaa SPA ning Laulasmaa liivarand jäävad 4 km kaugusele, Keila linnast 14 km ja Tallinna kesklinnast 35 km kaugusel.
Suvilast 2,4 km kaugusele jääb Kõltsu mõis, Arvo Pärdi keskus jääb 5.2 km kaugusele, Laulasmaa surfiklubi 2.7 km, Lohusalu sadam 8 km ja Kloogarand 6 km kaugusele.
Tule seda suurepärast suvekodu vaatama, selleks võta minuga ühendust ja lepime sulle sobiva aja kokku.
****
KINNISVARAEKSPERT tegutseb Eesti turul alates 1993. aastast. Meie Bürood asuvad Tallinnas ja Pärnus ning teenindame teid üle Eesti. Koostööpartnerite Nord Prime Capital ja Alliance Group UAB kaudu oleme esindatud ka Lätis ning Leedus.
Pakume maaklerteenust, hindamist ja kinnisvaraalast nõustamisteenust nii era- kui ka ärisektoris.
Kinnisvaraekspert teeb tihedat koostööd maailma suurimate kinnisvarafirmade hulka kuuluva ettevõttega Cushman & Wakefield. Meie koostöösidemed ulatuvad peale Balti riikide ja Põhjamaade pea kõikidesse maailmajagudesse.
Lisainfo ja teenuste tellimine:
Tallinnas: +372 *******
Pärnus: +372 *******
Rohkem infot leiad www.kinnisvaraekspert.ee
***


























































