Müüa suvila Käesalu külas, Lääne-Harju vallas.
Suvila on ehitatud tuhaplokist, katusekorrus puitkarkassist, väljast viimistletud puitlaudisega, katusekate profiilplekk, pakettaknad.
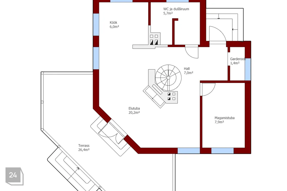
Esimesel korrusel on avatud köögiga elutuba, magamistuba ning WC-duširuum. Teisele korrusele viib puidust keerdtrepp, kus asub kaks magamistuba. Elutoast on pääs maja taga asuvale terrassile.
Kinnistul asub eraldi saunamaja, milles on garaaž, kaminaga puhkeruum, puuküttega saunaruum ja pesuruum. Saunast on pääs terrassile. Saunamaja lõunapoolses küljes asub klaasist kasvuhoone.
Suvila kütmiseks on paigaldatud õhk-soojuspump, lisaks on elutoas kamin, köögis puupliit soojamüüriga ning elektripõrandakütted WC-duširuumis ning saunamaja puhkeruumis ja pesuruumis.
Suvila katusele on paigaldatud 6 kW päikesepaneelid.
Kinnistul on veel maakividest välikamina ja suitsuahjuga grillimisnurk ning puukuur.
Kinnistu on aiaga piiratud ja kaunilt haljastatud. Olemas on tsentraalne vesi ja kanalisatsioon, lisaks oma puurkaev.
Ühistu piirkond on samuti aiaga piiratud, sissepääsu värav avatav puldi või telefoniga.
Kinnistu asub Käesalu külas, lähim ühistranspordi peatus on 2,2 km kaugusel, Laulasmaa kauplused, kool, lasteaed, apteek, raamatukogu ja Laulasmaa SPA jäävad 4 km kaugusele, Keila linnast 14 km ja Tallinna kesklinnast 35 km kaugusel.
Tule seda suurepärast suvekodu vaatama, selleks võta minuga ühendust ja lepime sulle sobiva aja kokku.
****
KINNISVARAEKSPERT tegutseb Eesti turul alates 1993. aastast. Meie Bürood asuvad Tallinnas ja Pärnus ning teenindame teid üle Eesti. Koostööpartnerite Nord Prime Capital ja Alliance Group UAB kaudu oleme esindatud ka Lätis ning Leedus.
Pakume maaklerteenust, hindamist ja kinnisvaraalast nõustamisteenust nii era- kui ka ärisektoris.
Kinnisvaraekspert teeb tihedat koostööd maailma suurimate kinnisvarafirmade hulka kuuluva ettevõttega Cushman & Wakefield. Meie koostöösidemed ulatuvad peale Balti riikide ja Põhjamaade pea kõikidesse maailmajagudesse.
Lisainfo ja teenuste tellimine:
Tallinnas: +372 *******
Pärnus: +372 *******
Rohkem infot leiad www.kinnisvaraekspert.ee
***
Suvila on ehitatud tuhaplokist, katusekorrus puitkarkassist, väljast viimistletud puitlaudisega, katusekate profiilplekk, pakettaknad.
Esimesel korrusel on avatud köögiga elutuba, magamistuba ning WC-duširuum. Teisele korrusele viib puidust keerdtrepp, kus asub kaks magamistuba. Elutoast on pääs maja taga asuvale terrassile.
Kinnistul asub eraldi saunamaja, milles on garaaž, kaminaga puhkeruum, puuküttega saunaruum ja pesuruum. Saunast on pääs terrassile. Saunamaja lõunapoolses küljes asub klaasist kasvuhoone.
Suvila kütmiseks on paigaldatud õhk-soojuspump, lisaks on elutoas kamin, köögis puupliit soojamüüriga ning elektripõrandakütted WC-duširuumis ning saunamaja puhkeruumis ja pesuruumis.
Suvila katusele on paigaldatud 6 kW päikesepaneelid.
Kinnistul on veel maakividest välikamina ja suitsuahjuga grillimisnurk ning puukuur.
Kinnistu on aiaga piiratud ja kaunilt haljastatud. Olemas on tsentraalne vesi ja kanalisatsioon, lisaks oma puurkaev.
Ühistu piirkond on samuti aiaga piiratud, sissepääsu värav avatav puldi või telefoniga.
Kinnistu asub Käesalu külas, lähim ühistranspordi peatus on 2,2 km kaugusel, Laulasmaa kauplused, kool, lasteaed, apteek, raamatukogu ja Laulasmaa SPA jäävad 4 km kaugusele, Keila linnast 14 km ja Tallinna kesklinnast 35 km kaugusel.
Tule seda suurepärast suvekodu vaatama, selleks võta minuga ühendust ja lepime sulle sobiva aja kokku.
****
KINNISVARAEKSPERT tegutseb Eesti turul alates 1993. aastast. Meie Bürood asuvad Tallinnas ja Pärnus ning teenindame teid üle Eesti. Koostööpartnerite Nord Prime Capital ja Alliance Group UAB kaudu oleme esindatud ka Lätis ning Leedus.
Pakume maaklerteenust, hindamist ja kinnisvaraalast nõustamisteenust nii era- kui ka ärisektoris.
Kinnisvaraekspert teeb tihedat koostööd maailma suurimate kinnisvarafirmade hulka kuuluva ettevõttega Cushman & Wakefield. Meie koostöösidemed ulatuvad peale Balti riikide ja Põhjamaade pea kõikidesse maailmajagudesse.
Lisainfo ja teenuste tellimine:
Tallinnas: +372 *******
Pärnus: +372 *******
Rohkem infot leiad www.kinnisvaraekspert.ee
***


























































