Новую эпоху и целеустремленную семью ждет дом, требующий реновации, по адресу Моони 3, город Раквере.
ОСНОВНОЙ ПРОЕКТ И СУТЬ ДОМА
- Год постройки - конец 1970-х, участок 1961 - Низкий фундамент (известняк) - Несущие и жесткие конструкции: малые блоки, кирпич + штукатурка на внешней стене - Материал крыши и межэтажных перекрытий: железобетон - Материал кровли: рулонный материал - Центральный водопровод и канализация + скважина - Новые водопроводные и канализационные трубы (2022), очищенная скважина (новый кожух, насос)
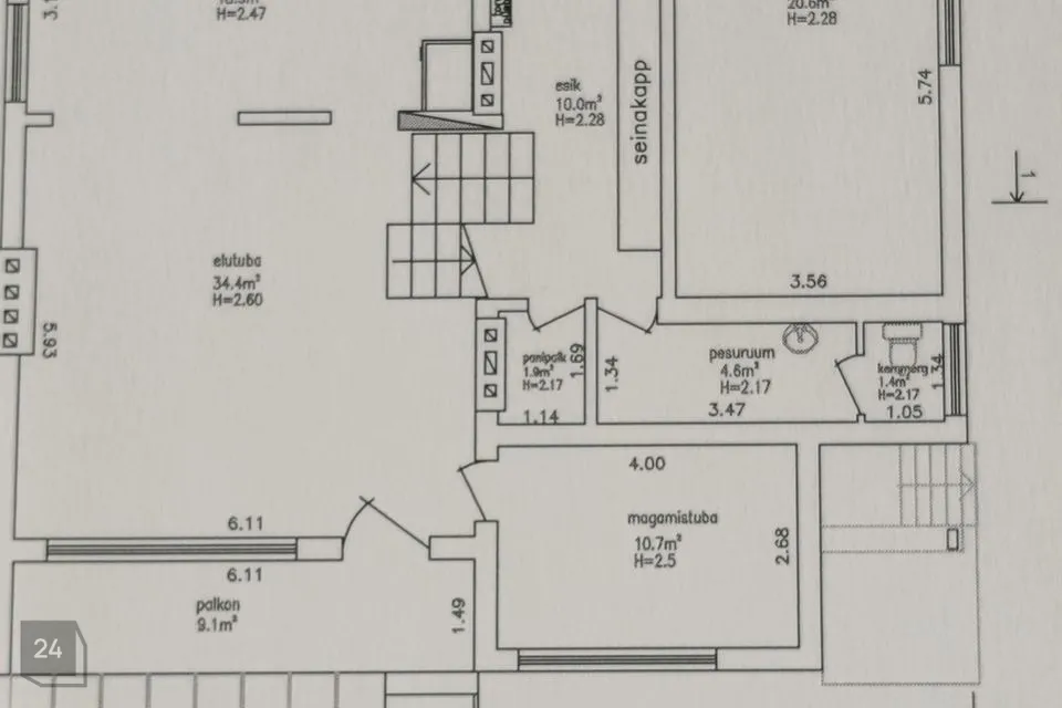
- Основная планировка жилья: два основных этажа + полный подвал + гараж (20,6м2; с каналом) - Общая площадь: 209,7м2 - Закрытая чистая площадь: 138,5м2 - Участок: 781м2, во дворе плодоносящие деревья/кусты + малина, цветочные грядки - Количество комнат: 4 (в оригинальном плане 5) - Система отопления: печь с теплоаккумулятором, тепловой насос; - Электроподключение: 3x40A, новый электрощиток, обновленная электросистема на втором этаже - На объекте имеется предварительная оценка, отражающая реальную рыночную стоимость - У дома есть новый проект отопления и вентиляции + новый проект обмеров
- прихожая, внутренний коридор, гараж, кухня (18,9м2), гостиная (34,4м2)+ выход на внутренний двор через балкон (9,1м2) - С балкона ведет широкая лестница во внутренний двор/сад. Во внутреннем дворе с южной стороны теплица с прочными алюминиевыми рамами (7,8м2+8,6м2) - 1 отдельная спальня (10,7м2) Требует реновации - Кладовая+ подсобное помещение/ кладовка
ВТОРОЙ ЭТАЖ - 2 отдельные спальни (15,1м2 и 14,7м2) + выход на балкон - Туалет и ванная комната - Жилые помещения второго этажа прошли капитальный ремонт То есть новые балки, брусья, утепленное межэтажное перекрытие, плита OSB, каркас из дерева с гипсокартоном + современная внутренняя отделка - На втором этаже новая электропроводка, 3x пакетных окна, утепленные полы (натуральный паркет), в полы встроены отопительные трубы - Кроме того, заменен материал кровли над отремонтированной частью второго этажа, частично установлен профнастил (над спальней на первом этаже) ПОДВАЛЬНЫЙ ЭТАЖ - Просторная комната с камином + сауна, котельная + помещение для хранения дров и т.п. + вспомогательные и технические помещения (новый водомер)
МООНИ, д. 3 - дом с непреходящим основным проектом, требующий реновации, для семьи, которая...
Ценит зеленый, дружелюбный к семье район & близость к центру города, и у которой есть ЖЕЛАНИЕ полностью отреновировать дом с непреходящим стилем и хорошим основным проектом.
Для знакомства с домом свяжитесь со мной! 53 ****** или ***@***.ee
ОСНОВНОЙ ПРОЕКТ И СУТЬ ДОМА
- Год постройки - конец 1970-х, участок 1961 - Низкий фундамент (известняк) - Несущие и жесткие конструкции: малые блоки, кирпич + штукатурка на внешней стене - Материал крыши и межэтажных перекрытий: железобетон - Материал кровли: рулонный материал - Центральный водопровод и канализация + скважина - Новые водопроводные и канализационные трубы (2022), очищенная скважина (новый кожух, насос)
- Основная планировка жилья: два основных этажа + полный подвал + гараж (20,6м2; с каналом) - Общая площадь: 209,7м2 - Закрытая чистая площадь: 138,5м2 - Участок: 781м2, во дворе плодоносящие деревья/кусты + малина, цветочные грядки - Количество комнат: 4 (в оригинальном плане 5) - Система отопления: печь с теплоаккумулятором, тепловой насос; - Электроподключение: 3x40A, новый электрощиток, обновленная электросистема на втором этаже - На объекте имеется предварительная оценка, отражающая реальную рыночную стоимость - У дома есть новый проект отопления и вентиляции + новый проект обмеров
- прихожая, внутренний коридор, гараж, кухня (18,9м2), гостиная (34,4м2)+ выход на внутренний двор через балкон (9,1м2) - С балкона ведет широкая лестница во внутренний двор/сад. Во внутреннем дворе с южной стороны теплица с прочными алюминиевыми рамами (7,8м2+8,6м2) - 1 отдельная спальня (10,7м2) Требует реновации - Кладовая+ подсобное помещение/ кладовка
ВТОРОЙ ЭТАЖ - 2 отдельные спальни (15,1м2 и 14,7м2) + выход на балкон - Туалет и ванная комната - Жилые помещения второго этажа прошли капитальный ремонт То есть новые балки, брусья, утепленное межэтажное перекрытие, плита OSB, каркас из дерева с гипсокартоном + современная внутренняя отделка - На втором этаже новая электропроводка, 3x пакетных окна, утепленные полы (натуральный паркет), в полы встроены отопительные трубы - Кроме того, заменен материал кровли над отремонтированной частью второго этажа, частично установлен профнастил (над спальней на первом этаже) ПОДВАЛЬНЫЙ ЭТАЖ - Просторная комната с камином + сауна, котельная + помещение для хранения дров и т.п. + вспомогательные и технические помещения (новый водомер)
МООНИ, д. 3 - дом с непреходящим основным проектом, требующий реновации, для семьи, которая...
Ценит зеленый, дружелюбный к семье район & близость к центру города, и у которой есть ЖЕЛАНИЕ полностью отреновировать дом с непреходящим стилем и хорошим основным проектом.
Для знакомства с домом свяжитесь со мной! 53 ****** или ***@***.ee


















































