LAANESERVA ELURAJOON
Laaneserva elurajoon sobib ideaalselt peredele, kes hindavad looduskaunist, aga samal ajal kaasaegset elukeskkonda. Ridaelamud on ümbritsetud männimetsaga ja vaid mõnesaja meetrise jalutuskäigu kaugusel merest. Kui hindad kaasaegset elukeskkonda looduskaunis kohas, siis on see kodu just sulle!
Elades Laaneservas saad nautida jalutuskäike kaunil Haabneeme rannal või avastada lähedal asuvaid restorane ja terviseradu. Kõigest kiviviske kaugusel ootavad sind Viimsi Taluturg, Viimsi Vabaõhumuuseum ja populaarsed söögikohad Paat ja OKO Resto. Viimsi keskus, kus asuvad kino, spa ja suur valik poode, on vaid 5-minutilise autosõidu kaugusel, Tallinna südalinn 20 minuti kaugusele.
Läheduses Laanelinnu lasteaed (600 m) ning lühikese autosõidu kaugusel Püünsi (9. klassi) ja Viimsi Koolid.
KODU
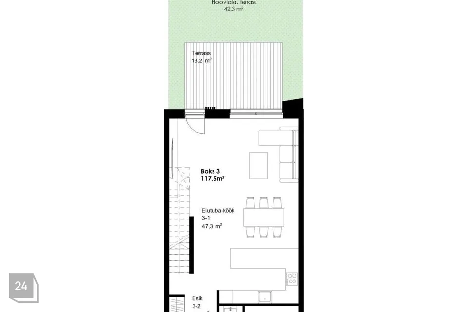
Tegemist on 117,5 m² suuruse ridaelamuboksiga, mille juurde kuulub lisaks terrass suurusega 13,2 m² ja eraldi sissepääsuga panipaik/tehnoruum 5,1 m², hooviala 42,3 m².
Esimene korrus: Elutuba-köök 47,3 m² kust pääs terassile, esik 5,5 m², wc 1,8 m²
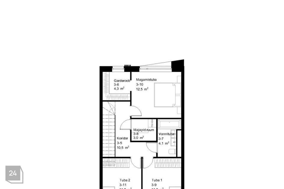
Teine korrus: Magamistuba garderoobiga 16,8 m², magamistuba 11,7 m², magamistuba 11,7 m², vannituba 4,1 m², majapidamisruum 3,0 m², koridor 10,5 m².
Ridaelamuboksis on kõrged laed ja suured aknad, mis loovad avarust, A-energiaklass, mis aitab hoida kulud mõistlikud, individuaalselt juhitav ventilatsioonisüsteem ja tubade kaupa reguleeritav õhk-vesi põrandaküte.
Hinna sees on 2 parkimiskohta koos elektriauto laadija valmidusega. Võimalus on tellida juurde elektriautode laadija.
Ühine sisehoov ja mänguväljakud
Laaneserva kodud on planeeritud selliselt, et luua nelja ridaelamu peale üks ühine hooviala/kogukonna ala, kus pakume lastele turvalist ja looduslähedast mängukeskkonda ning vabaaja veetmiseks istumisvõimalusi täiskasvanutele. Sisehoovis oleme säilitanud maksimaalses koguses suuri männipuid, hoides looduslähedast atmosfääri.
EHITUSINFO
A-energiaklass – ridaelamu vastab kõrgetele energiatõhususe standarditele, tagades madalad energiakulud.
Päikesepaneelid – ridaelamu katus on varustatud päikesepaneelidega, mis toodavad puhtamat energiat ja vähendavad ökoloogilist jalajälge. Toodetud energia kasutatakse ära ridamaja üldaladel.
Helikindlad seinad – ridaelamu on ehitatud täisbetoneeritud betoonõõnesplokkidest (kodude vahelised seinad on helikindlad, paksusega 240 mm), vahe- ja katuslaed on õõnespaneelidest. Fassaadil kasutatakse kõrge kvaliteediga Šveitsi fassaadiplaate Swisspearl Largo.
Kvaliteetsed aknad – musta raamiga kolmekordse klaaspaketiga PVC aknad tagavad sooja- ja helipidavuse.
Küttesüsteem – õhk-vesi küttesüsteem vesipõrandaküttega, mida saab reguleerida ruumitermostaatidega igas toas eraldi.
Ventilatsioon – individuaalselt juhitav soojustagastusega ventilatsioon tagab värske õhu.
Roheasfalt – arendusala teed on kaetud roheasfaltiga, mis on toodetud mittefossiilsest päritolu kütust kasutades. Osa bituumensideainest on asendatud taastuvallikast pärit ligniiniga, mis aitab neutraliseerida tootmisprotsessist tulenevat CO2 emissiooni.
Arendajaks on pikaajalise kogemusega arendus- ja haldusettevõte Capital Mill ning kõrge ehituskvaliteedi tagab mainekas ehitusettevõte NOBE.
Võta ühendust ja tule tutvu oma uue koduga Viimsis!
Laaneserva elurajoon sobib ideaalselt peredele, kes hindavad looduskaunist, aga samal ajal kaasaegset elukeskkonda. Ridaelamud on ümbritsetud männimetsaga ja vaid mõnesaja meetrise jalutuskäigu kaugusel merest. Kui hindad kaasaegset elukeskkonda looduskaunis kohas, siis on see kodu just sulle!
Elades Laaneservas saad nautida jalutuskäike kaunil Haabneeme rannal või avastada lähedal asuvaid restorane ja terviseradu. Kõigest kiviviske kaugusel ootavad sind Viimsi Taluturg, Viimsi Vabaõhumuuseum ja populaarsed söögikohad Paat ja OKO Resto. Viimsi keskus, kus asuvad kino, spa ja suur valik poode, on vaid 5-minutilise autosõidu kaugusel, Tallinna südalinn 20 minuti kaugusele.
Läheduses Laanelinnu lasteaed (600 m) ning lühikese autosõidu kaugusel Püünsi (9. klassi) ja Viimsi Koolid.
KODU
Tegemist on 117,5 m² suuruse ridaelamuboksiga, mille juurde kuulub lisaks terrass suurusega 13,2 m² ja eraldi sissepääsuga panipaik/tehnoruum 5,1 m², hooviala 42,3 m².
Esimene korrus: Elutuba-köök 47,3 m² kust pääs terassile, esik 5,5 m², wc 1,8 m²
Teine korrus: Magamistuba garderoobiga 16,8 m², magamistuba 11,7 m², magamistuba 11,7 m², vannituba 4,1 m², majapidamisruum 3,0 m², koridor 10,5 m².
Ridaelamuboksis on kõrged laed ja suured aknad, mis loovad avarust, A-energiaklass, mis aitab hoida kulud mõistlikud, individuaalselt juhitav ventilatsioonisüsteem ja tubade kaupa reguleeritav õhk-vesi põrandaküte.
Hinna sees on 2 parkimiskohta koos elektriauto laadija valmidusega. Võimalus on tellida juurde elektriautode laadija.
Ühine sisehoov ja mänguväljakud
Laaneserva kodud on planeeritud selliselt, et luua nelja ridaelamu peale üks ühine hooviala/kogukonna ala, kus pakume lastele turvalist ja looduslähedast mängukeskkonda ning vabaaja veetmiseks istumisvõimalusi täiskasvanutele. Sisehoovis oleme säilitanud maksimaalses koguses suuri männipuid, hoides looduslähedast atmosfääri.
EHITUSINFO
A-energiaklass – ridaelamu vastab kõrgetele energiatõhususe standarditele, tagades madalad energiakulud.
Päikesepaneelid – ridaelamu katus on varustatud päikesepaneelidega, mis toodavad puhtamat energiat ja vähendavad ökoloogilist jalajälge. Toodetud energia kasutatakse ära ridamaja üldaladel.
Helikindlad seinad – ridaelamu on ehitatud täisbetoneeritud betoonõõnesplokkidest (kodude vahelised seinad on helikindlad, paksusega 240 mm), vahe- ja katuslaed on õõnespaneelidest. Fassaadil kasutatakse kõrge kvaliteediga Šveitsi fassaadiplaate Swisspearl Largo.
Kvaliteetsed aknad – musta raamiga kolmekordse klaaspaketiga PVC aknad tagavad sooja- ja helipidavuse.
Küttesüsteem – õhk-vesi küttesüsteem vesipõrandaküttega, mida saab reguleerida ruumitermostaatidega igas toas eraldi.
Ventilatsioon – individuaalselt juhitav soojustagastusega ventilatsioon tagab värske õhu.
Roheasfalt – arendusala teed on kaetud roheasfaltiga, mis on toodetud mittefossiilsest päritolu kütust kasutades. Osa bituumensideainest on asendatud taastuvallikast pärit ligniiniga, mis aitab neutraliseerida tootmisprotsessist tulenevat CO2 emissiooni.
Arendajaks on pikaajalise kogemusega arendus- ja haldusettevõte Capital Mill ning kõrge ehituskvaliteedi tagab mainekas ehitusettevõte NOBE.
Võta ühendust ja tule tutvu oma uue koduga Viimsis!




























