VIIMISTLUSE TEOSTAME TEIE SOOVIDELE VASTAVALT
https://kastanihoov.ee/
Müüdav eluruum paikneb planeeringult läbi kahe korruse - 1.korrusel on esik, avatud köögiga elutuba, kaks magamistuba ja duširuum-tualett ning soklikorrusel asub nn koduspaa - privaatne puhke- ja saunakompleks koos abiruumidega - üldpinnaga kokku 86,7 m²
Elutoast hoone küljele avaneb suur 12 m² õhtupäikesepoolne väliterrass.
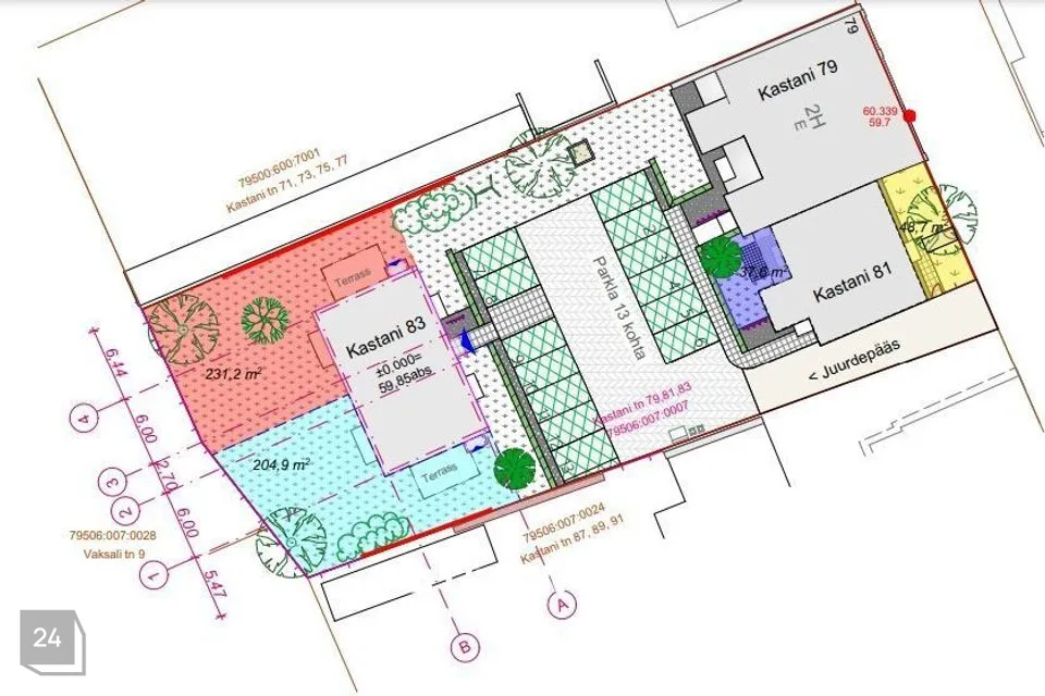
Eluruumi juurde kuulub notariaalse kasutuskorra alusel oma privaatne õueala pindalaga 231,2 m2 (vt kasutuskorra plaan fotode juures).
KASTANI 83
Kastani 83 on nelja korteriga uusehitis, mis on projekteeritud piirkonnale iseloomuliku viilkatusega, samas modernses arhitektuurivõtmes. Esimesel korrusel on kaks 3-toalist korterit ja teisel korrusel kaks 4-toalist korterit.
TEHNOSÜSTEEMID
Korteri hea sisekliima tagab soojustagastusega ventilatsioon ning küttelahenduseks on kaugkeskkütte baasil veekandjal põrandaküte.
Olemas on Telia valguskaabli ühendusvalmidus, video-fonolukksüsteemi valmidus ja elektriauto laadimise võimalus.
ASUKOHT
Sajandipikkuse ajalooga Kastani tänava kinnistul valmivad kolm erinevaid ajastuid ilmestavat kortermaja - Kastani tn 79/81/83.
Kastani 79 ja 81 on valminud, projekti viimase hoonena ennistatakse uusehitisena ajalooline Kastani 83 korterelamu: https://kastanihoov.ee/
Lähedal asuvad Mart Reiniku kool, Jaan Poska Gümnaasium ja Miina Härma Gümnaasium, Vanemuise teater, Pauluse kirik ning sportimisvõimalusi võimaldav Tamme staadion.
Vahetus läheduses üle Riia tänava asuv Aparaaditehase loomelinnak peidab lisaks kunstigaleriidele ja disainistuudiotele erinevaid toitlustuskohti, kus saab nautida maitseelamusi ning Tartule omast boheemlaslikku atmosfääri.
Mugavat ja autovaba liikumist kiviviske kaugusel asuvasse südalinna ja Emajõe kallastele võimaldavad renditavad tõukerattad ja linnarattad.
MÜÜGIHIND SISALDAB:
- siseviimistlust vastavalt arendaja poolt pakutavatele pakettidele;
- parkimiskohta kinnistul.
Korteriomandi hinnas ei sisaldu ostu-müügilepingu sõlmimisega seotud notaritasud ja riigilõiv.
JAGA MINU KONTAKTI KÕIGILE, KES VAJAVAD KINNISVARANÕU!
- - - - - - - - - -
Telli hindamine UUS MAA Kinnisvarabüroolt https://uusmaa.ee/teenused/hindamine/
ning saad:
- Eksperthinnangu kuni 20% soodsamalt kui võtad koduga seotud laenu Swedbankist
- Pankadest parimad kodulaenutingimused
- Kiire, kvaliteetse ning usaldusväärse hindamisteenuse Eestis
UUS MAA KINNISVARABÜROO EKSPERTHINNANGUID AKTSEPTEERIVAD KÕIK FINANTSASUTUSED.
- - - - - - - - - -
Liitu Uus Maa uudiskirjaga ja saa homset kinnisvarainfot juba täna!
https://www.uusmaa.ee/uudiskirjagaliitumine/
- - - - - - - - - -
Kodu aitab osta Swedbank.
Pakkumise saamiseks kasuta koodi UUSMAA ja Sind teenindatakse eelisjärjekorras.
Võtame ühendust 1 tööpäeva jooksul.
Uus Maa kliendile soodsam lepingutasu. Küsi täpsemat infot maaklerilt.
Finantsteenuseid pakub Swedbank AS. Tutvu tingimustega, pea nõu.
https://kastanihoov.ee/
Müüdav eluruum paikneb planeeringult läbi kahe korruse - 1.korrusel on esik, avatud köögiga elutuba, kaks magamistuba ja duširuum-tualett ning soklikorrusel asub nn koduspaa - privaatne puhke- ja saunakompleks koos abiruumidega - üldpinnaga kokku 86,7 m²
Elutoast hoone küljele avaneb suur 12 m² õhtupäikesepoolne väliterrass.
Eluruumi juurde kuulub notariaalse kasutuskorra alusel oma privaatne õueala pindalaga 231,2 m2 (vt kasutuskorra plaan fotode juures).
KASTANI 83
Kastani 83 on nelja korteriga uusehitis, mis on projekteeritud piirkonnale iseloomuliku viilkatusega, samas modernses arhitektuurivõtmes. Esimesel korrusel on kaks 3-toalist korterit ja teisel korrusel kaks 4-toalist korterit.
TEHNOSÜSTEEMID
Korteri hea sisekliima tagab soojustagastusega ventilatsioon ning küttelahenduseks on kaugkeskkütte baasil veekandjal põrandaküte.
Olemas on Telia valguskaabli ühendusvalmidus, video-fonolukksüsteemi valmidus ja elektriauto laadimise võimalus.
ASUKOHT
Sajandipikkuse ajalooga Kastani tänava kinnistul valmivad kolm erinevaid ajastuid ilmestavat kortermaja - Kastani tn 79/81/83.
Kastani 79 ja 81 on valminud, projekti viimase hoonena ennistatakse uusehitisena ajalooline Kastani 83 korterelamu: https://kastanihoov.ee/
Lähedal asuvad Mart Reiniku kool, Jaan Poska Gümnaasium ja Miina Härma Gümnaasium, Vanemuise teater, Pauluse kirik ning sportimisvõimalusi võimaldav Tamme staadion.
Vahetus läheduses üle Riia tänava asuv Aparaaditehase loomelinnak peidab lisaks kunstigaleriidele ja disainistuudiotele erinevaid toitlustuskohti, kus saab nautida maitseelamusi ning Tartule omast boheemlaslikku atmosfääri.
Mugavat ja autovaba liikumist kiviviske kaugusel asuvasse südalinna ja Emajõe kallastele võimaldavad renditavad tõukerattad ja linnarattad.
MÜÜGIHIND SISALDAB:
- siseviimistlust vastavalt arendaja poolt pakutavatele pakettidele;
- parkimiskohta kinnistul.
Korteriomandi hinnas ei sisaldu ostu-müügilepingu sõlmimisega seotud notaritasud ja riigilõiv.
JAGA MINU KONTAKTI KÕIGILE, KES VAJAVAD KINNISVARANÕU!
- - - - - - - - - -
Telli hindamine UUS MAA Kinnisvarabüroolt https://uusmaa.ee/teenused/hindamine/
ning saad:
- Eksperthinnangu kuni 20% soodsamalt kui võtad koduga seotud laenu Swedbankist
- Pankadest parimad kodulaenutingimused
- Kiire, kvaliteetse ning usaldusväärse hindamisteenuse Eestis
UUS MAA KINNISVARABÜROO EKSPERTHINNANGUID AKTSEPTEERIVAD KÕIK FINANTSASUTUSED.
- - - - - - - - - -
Liitu Uus Maa uudiskirjaga ja saa homset kinnisvarainfot juba täna!
https://www.uusmaa.ee/uudiskirjagaliitumine/
- - - - - - - - - -
Kodu aitab osta Swedbank.
Pakkumise saamiseks kasuta koodi UUSMAA ja Sind teenindatakse eelisjärjekorras.
Võtame ühendust 1 tööpäeva jooksul.
Uus Maa kliendile soodsam lepingutasu. Küsi täpsemat infot maaklerilt.
Finantsteenuseid pakub Swedbank AS. Tutvu tingimustega, pea nõu.
































