Heas asukohas, kliinikumi läheduses Veeriku linnaosas müüakse majaosa, mis moodustab 1/3 mõttelise osa kinnistust.
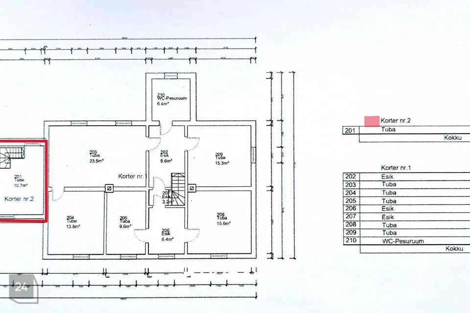
Kinnistusraamatusse on kantud kasutuskorra kokkulepe naabriga, nii majaosa kui õueala kasutamiseks. Majaosa on ehitisregistris tähistatud eluruumina nr 2.
Elamu on renoveeritud 1995.a. kuid vajaks uut remonti eelkõige kaasaegse isolatsioonimaterjaliga soojustamiseks ja välisfassaadi uuendamiseks.
_________________________
KORTERI RUUMIJAOTUS
1. korrusel asuvad köök-elutuba, tuba, wc, duširuum, esik ja abiruumid pindalaga kokku 54,1 m2;
2. korrusel asub magamistuba 10,7 m2;
keldrikorrusel on seni magamistoana kasutuses olnud abiruum 20,4 m2;
Korterisse viiv välisuks asub maja hoovipoolses osas.
________________________
KÜTTESÜSTEEM
1. korrusel õhksoojuspump (seadustatud) ja telliskiviahi ning duširuumis ja wc-s elektriline põrandaküte.
2. korruse toas on elektriradiaator.
Keldrikorruse plaaditud põranda all on elektriküttekaabel.
ELEKTRIVARUSTUS 3X40A
Elektripaigaldiste audit on teostatud 2023 nov. ja auditi otsus on: "Elektripaigaldis või selle osa vastab kehtestatud ohutusnõuetele ja seda võib ettenähtud otstarbel kasutada."
VEEVARUSTUS JA KANALISATSIOON on tsentraalsed.
Majaosa juurde kuulub ca 240 m2 õueala (kasutuskorra kokkulepe) kus asub puu- ja tööriistakuur ning kasvavad magusad viinamarjad.
JAGA MINU KONTAKTI KÕIGILE, KES VAJAVAD KINNISVARANÕU!
- - - - - - - - - -
Telli hindamine UUS MAA Kinnisvarabüroolt https://uusmaa.ee/teenused/hindamine/
ning saad:
- Eksperthinnangu kuni 20% soodsamalt kui võtad koduga seotud laenu Swedbankist
- Pankadest parimad kodulaenutingimused
- Kiire, kvaliteetse ning usaldusväärse hindamisteenuse Eestis
UUS MAA KINNISVARABÜROO EKSPERTHINNANGUID AKTSEPTEERIVAD KÕIK FINANTSASUTUSED.
- - - - - - - - - -
Liitu Uus Maa uudiskirjaga ja saa homset kinnisvarainfot juba täna!
https://www.uusmaa.ee/uudiskirjagaliitumine/
- - - - - - - - - -
Kodu aitab osta Swedbank.
Pakkumise saamiseks kasuta koodi UUSMAA ja Sind teenindatakse eelisjärjekorras.
Võtame ühendust 1 tööpäeva jooksul.
Uus Maa kliendile soodsam lepingutasu. Küsi täpsemat infot maaklerilt.
Finantsteenuseid pakub Swedbank AS. Tutvu tingimustega, pea nõu.
Kinnistusraamatusse on kantud kasutuskorra kokkulepe naabriga, nii majaosa kui õueala kasutamiseks. Majaosa on ehitisregistris tähistatud eluruumina nr 2.
Elamu on renoveeritud 1995.a. kuid vajaks uut remonti eelkõige kaasaegse isolatsioonimaterjaliga soojustamiseks ja välisfassaadi uuendamiseks.
_________________________
KORTERI RUUMIJAOTUS
1. korrusel asuvad köök-elutuba, tuba, wc, duširuum, esik ja abiruumid pindalaga kokku 54,1 m2;
2. korrusel asub magamistuba 10,7 m2;
keldrikorrusel on seni magamistoana kasutuses olnud abiruum 20,4 m2;
Korterisse viiv välisuks asub maja hoovipoolses osas.
________________________
KÜTTESÜSTEEM
1. korrusel õhksoojuspump (seadustatud) ja telliskiviahi ning duširuumis ja wc-s elektriline põrandaküte.
2. korruse toas on elektriradiaator.
Keldrikorruse plaaditud põranda all on elektriküttekaabel.
ELEKTRIVARUSTUS 3X40A
Elektripaigaldiste audit on teostatud 2023 nov. ja auditi otsus on: "Elektripaigaldis või selle osa vastab kehtestatud ohutusnõuetele ja seda võib ettenähtud otstarbel kasutada."
VEEVARUSTUS JA KANALISATSIOON on tsentraalsed.
Majaosa juurde kuulub ca 240 m2 õueala (kasutuskorra kokkulepe) kus asub puu- ja tööriistakuur ning kasvavad magusad viinamarjad.
JAGA MINU KONTAKTI KÕIGILE, KES VAJAVAD KINNISVARANÕU!
- - - - - - - - - -
Telli hindamine UUS MAA Kinnisvarabüroolt https://uusmaa.ee/teenused/hindamine/
ning saad:
- Eksperthinnangu kuni 20% soodsamalt kui võtad koduga seotud laenu Swedbankist
- Pankadest parimad kodulaenutingimused
- Kiire, kvaliteetse ning usaldusväärse hindamisteenuse Eestis
UUS MAA KINNISVARABÜROO EKSPERTHINNANGUID AKTSEPTEERIVAD KÕIK FINANTSASUTUSED.
- - - - - - - - - -
Liitu Uus Maa uudiskirjaga ja saa homset kinnisvarainfot juba täna!
https://www.uusmaa.ee/uudiskirjagaliitumine/
- - - - - - - - - -
Kodu aitab osta Swedbank.
Pakkumise saamiseks kasuta koodi UUSMAA ja Sind teenindatakse eelisjärjekorras.
Võtame ühendust 1 tööpäeva jooksul.
Uus Maa kliendile soodsam lepingutasu. Küsi täpsemat infot maaklerilt.
Finantsteenuseid pakub Swedbank AS. Tutvu tingimustega, pea nõu.





















































