Müüa kaasaegne ja avar 5-toaline paarismaja osa üldpinnaga 187,4 m² mis asub hoolitsetud aiaga krundil suurusega 300 m². Krundile lisandub 100 m² tänavaäärset maa-ala.
Majaosa on läbinud kapitaalremondi aastatel 2018–2021 ja värskelt on lõpetatud majas sanitaarremont (nov 2025).
Vana hoone konstruktsioonidest on alles jäetud vaid välis- ja kandvad seinad. Majaosal on uus Cassic profiilplekist katus, seinad on soojustatud kivivillaga ning fassaad on viimistletud mosaiikkrohviga. Täielikult on uuendatud elektrijuhtmestik ja torustik. Paigaldatud on puit-alumiiniumist kolmekordse klaaspaketiga aknad, tsentraalne veevarustus ja kanalisatsioon. Küttesüsteemiks on õhk-vesi. Majaosas on ka soojustagastusega ventilatsioonisüsteem, mis tagab madalad energiakulud (talvel keskmiselt 280–330 €, suvel 100–150 €).
Majaosa müüakse koos kvaliteetse mööbliga. Söögitoa, elutoa ja magamistubade mööbel on pärit Ameerikast. Köögitehnika hulgas on valdavalt Bosch, induktsioonpliit on Miele ja külmkapp Electrolux. Enamik sanitaartehnikast on Grohe ning Villeroy & Boch toodang. Vaibad on ostetud ja kardinad on lastud õmmelda Kangas ja Nööp salongis (sept-okt 2025).
PLANEERING
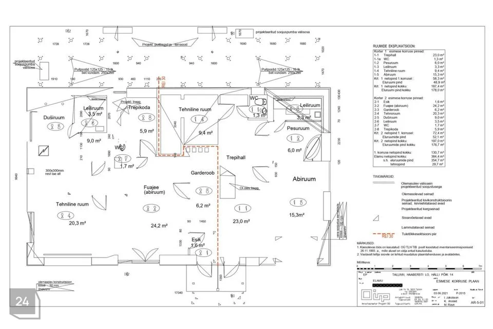
1. Esimene korrus:
Avar koridor, saun, vannituba, WC, majapidamisruum ja garaaž.
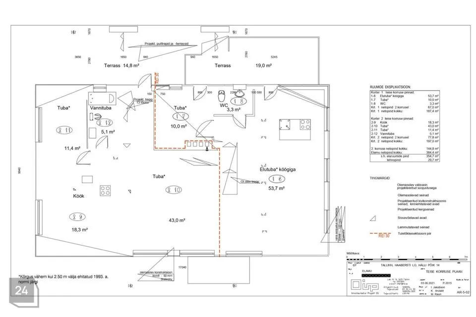
2. Teine korrus:
Kabinet, eraldi WC, avatud köök ja elutuba. Kabinetist ja köögist pääseb 19 m² terrassile, kus saab luua mõnusa puhkeala ja nautida täielikku vaikust.
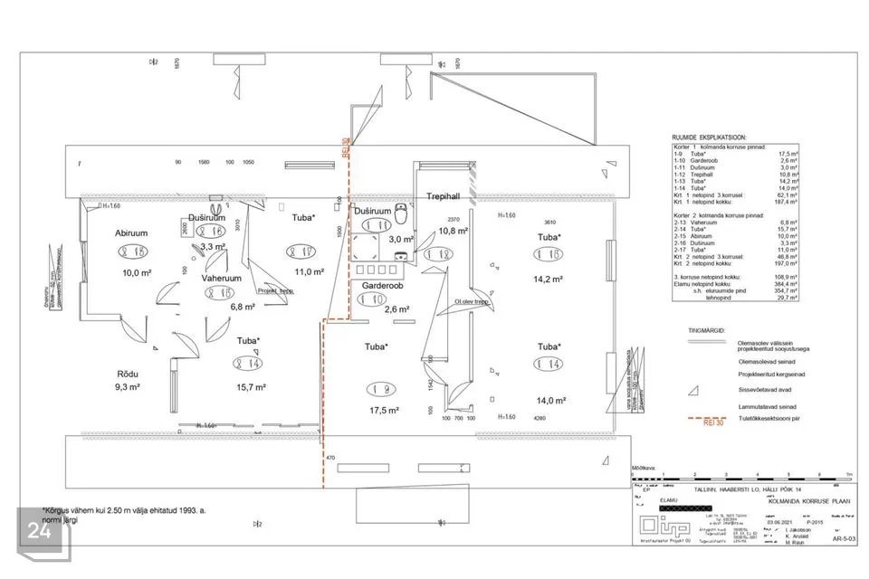
3. Kolmas korrus:
Kolm magamistuba, garderoob, duširuum koos WC-ga. Lisakütet annavad radiaatorid. Põrandatel on naturaalne tammeparkett ja antiallergilised vaibad. Magamistoas/kabinetis on paigaldatud õhk-õhk tüüpi kliimaseade. Koridorist pääseb ka pööningule ja katusele.
Majaosa asub hommikupäikese poole ning päevavalgus katab hoonet ja terassi enamuse päevast. Iluaeda on istutatud püsililled ja -taimed (roosid, rododendronid, hortensiad, pojengid, sirelid, kevadlilled, liiliad, kasvab ka martsipani sordiga õunapuu, vaarikad, jms).
KESKKOND JA ASUKOHT
Vaikne ja turvaline elupiirkond, eemal tihedast liiklusest — ideaalne koht rahu ja linnulaulu nautimiseks. Läheduses asub kõik igapäevaeluks vajalik:
• Kakumäe Selver — 600 m
• Rocca al Mare kaubanduskeskus — 2 km
• Bussipeatused — 300 m
Tänavad on asfalteeritud ja valgustatud, hooldustöid teostatakse linna kulul. Naabruskond on sõbralik ja piirkond väga turvaline.
Tegemist on korteriomandiga ning hoonel on kehtiv kasutusluba.
Majaosa on läbinud kapitaalremondi aastatel 2018–2021 ja värskelt on lõpetatud majas sanitaarremont (nov 2025).
Vana hoone konstruktsioonidest on alles jäetud vaid välis- ja kandvad seinad. Majaosal on uus Cassic profiilplekist katus, seinad on soojustatud kivivillaga ning fassaad on viimistletud mosaiikkrohviga. Täielikult on uuendatud elektrijuhtmestik ja torustik. Paigaldatud on puit-alumiiniumist kolmekordse klaaspaketiga aknad, tsentraalne veevarustus ja kanalisatsioon. Küttesüsteemiks on õhk-vesi. Majaosas on ka soojustagastusega ventilatsioonisüsteem, mis tagab madalad energiakulud (talvel keskmiselt 280–330 €, suvel 100–150 €).
Majaosa müüakse koos kvaliteetse mööbliga. Söögitoa, elutoa ja magamistubade mööbel on pärit Ameerikast. Köögitehnika hulgas on valdavalt Bosch, induktsioonpliit on Miele ja külmkapp Electrolux. Enamik sanitaartehnikast on Grohe ning Villeroy & Boch toodang. Vaibad on ostetud ja kardinad on lastud õmmelda Kangas ja Nööp salongis (sept-okt 2025).
PLANEERING
1. Esimene korrus:
Avar koridor, saun, vannituba, WC, majapidamisruum ja garaaž.
2. Teine korrus:
Kabinet, eraldi WC, avatud köök ja elutuba. Kabinetist ja köögist pääseb 19 m² terrassile, kus saab luua mõnusa puhkeala ja nautida täielikku vaikust.
3. Kolmas korrus:
Kolm magamistuba, garderoob, duširuum koos WC-ga. Lisakütet annavad radiaatorid. Põrandatel on naturaalne tammeparkett ja antiallergilised vaibad. Magamistoas/kabinetis on paigaldatud õhk-õhk tüüpi kliimaseade. Koridorist pääseb ka pööningule ja katusele.
Majaosa asub hommikupäikese poole ning päevavalgus katab hoonet ja terassi enamuse päevast. Iluaeda on istutatud püsililled ja -taimed (roosid, rododendronid, hortensiad, pojengid, sirelid, kevadlilled, liiliad, kasvab ka martsipani sordiga õunapuu, vaarikad, jms).
KESKKOND JA ASUKOHT
Vaikne ja turvaline elupiirkond, eemal tihedast liiklusest — ideaalne koht rahu ja linnulaulu nautimiseks. Läheduses asub kõik igapäevaeluks vajalik:
• Kakumäe Selver — 600 m
• Rocca al Mare kaubanduskeskus — 2 km
• Bussipeatused — 300 m
Tänavad on asfalteeritud ja valgustatud, hooldustöid teostatakse linna kulul. Naabruskond on sõbralik ja piirkond väga turvaline.
Tegemist on korteriomandiga ning hoonel on kehtiv kasutusluba.




















































