OBER-HAUSI PÜHADEKAMPAANIA KUNI 11. JAANUARINI. ERIHIND: 410 000 EURI (TAVAHIND: 429 000 EURI).
KLIENDIPÄEV 06.12 kell 12:00-14:00. OLEMAS HINDAMISAKT!
Müüki on tulnud avar 4-toaline paarismajaboks hinnatud Kakumäe rahulikus ja peresõbralikus piirkonnas – kodu, kus meri on vaid jalutuskäigu kaugusel ja igapäevaelu kulgeb roheluse, päikese ja linnulaulu saatel. See hubane ja valgusküllane majaosa paikneb vaiksel kõrvaltänaval, kus privaatsus ja turvaline elukeskkond on tagatud. Oma hoov ja kõrghaljastus loovad idüllilise õhkkonna – ideaalne paik perele, kes hindab looduse lähedust ja linnamugavusi üheskoos.
Vaata videot: https://www.facebook.com/reel/731562066084100
MAJAOSA
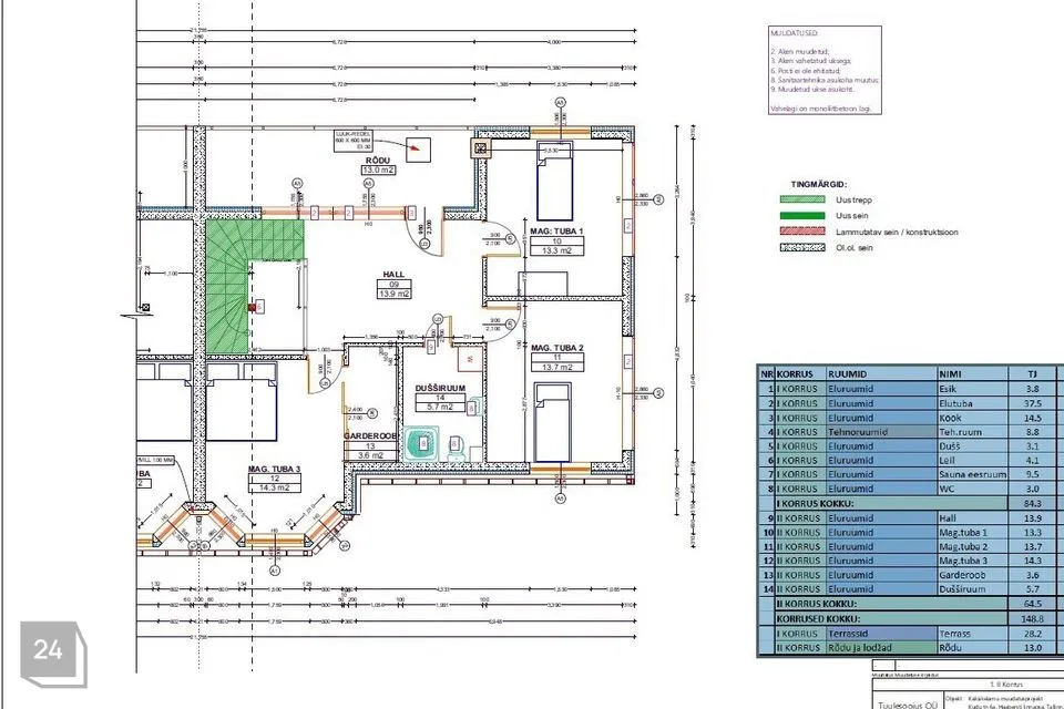
Majaosa on valgusküllane koos terrassi (28,2m2), rõdu (13m2), sauna, oma hoovi ja autovarjualusega.
Esimesel korrusel on avar elutuba (37,5m2) koos kaminaga, avatud köök (14,5m2) Arensi köögimööbliga, esik, tualett, saun koos pesu- ja eesruumiga (3,1m2, 4,1m2 ja 9,5m2) ja panipaik/tehnoruum (8,8m2m). Elutoas hubasuse loomiseks kamin- hubasus ja lisasoojus külmematel õhtutel. Elutoast on pääs avarale terrassile (28,2m2) ja hoovi. Terrassil saab nautida päikest lõunast õhtuni ja lõõgastuda suvistel õhtusöökidel oma aias.
Elutoa põrandat katab naturaalne kalasabamustriga puitparkett, mis lisab ruumile soojust ja ajatut stiili.
Teisel korrusel paikneb 3 magamistuba (13,3m2, 13,7m2,14,2m2), trepihall, suur duširuum koos tualetiga (5,7m2). Trepihall annab avarust ja ruumi, kust on pääs suurele rõdule (13m2), kust avaneb vaade rohelusse – ideaalne koht hommikukohviks või raamatu lugemiseks.
2005. aastal ehitatud majaosa vajab natuke värskendamist. Hea võimalus kujundada kodu oma soovide järgi.
Majaosa elutoas on vahetatud parkett. Teisel korrusel on värvitud üle magamistoa seinad. Maja katus on vahetatud.
KÜTE JA KANALISATSIOON
Maja köetakse Junkers gaasikatlaga. Esimesel korrusel on põrandaküte ja teisel korrusel on radiaatorid. Igas toas on võimalik kütet eraldi reguleerida. Elutoas on kamin, mis loob meeldiva meeleolu ja annab lisasoojust. Vesi ja kanalisatsioon on tsentraalsed.
KINNISTU/HOOV JA PARKIMINE
Mõnusalt avar ja valgusküllane hoov suurusega 909 m2. Avar lõunapoolne terrass. Aeda aitab korras hoida robotniiduk. Maja ees on tänavakividest ala ja autovarjualune, kuhu mahub parkima kaks autot.
ASUKOHT/ÜMBRUS
Asukoht on hinnatud merelähedane rahulik ja peresõbralik piirkond Kakumäel. Kakumäe rand ja Haveni sadam on jalutuskäigu kaugusele. Samuti asub lähedal kergliiklusteed sportimiseks ja ühistranspordipeatused. Lühikese autosõidu kaugusele jäävad Kakumäe Selver, Lidl, Rocca al Mare kaubanduskeskus, Rocca al Mare Vabaõhumuuseum, erinevad spordiklubid ja söögikohad jpm.
Piirkond pakub palju võimalusi aktiivseks liikumiseks jalgsi kui ka rattaga. Lähedal asuvad Rocca al Mare Kool, Tabasalu kool ja Harkujärve Põhikool ja erinevad lasteaiad. Tabasalu Spordikompleks pakub erinevaid spordiringe ja seal asub ka ujula.
Tallinna kesklinna sõidab autoga ca 25 minutit.
Kui tunned, et see paarismaja võiks olla Sinu uus pere kodu, siis võta ühendust ja lähme koos vaatama!
Ober-Hausi vahendusel suuremate pankade laenulepingutasudel soodustused! Juhul kui sul on tarvis eelmine kodu uue soetamiseks maha müüa, võta minuga ühendust!
Küsi ka partnerpakkumiste kohta!
Kodu aitab osta Swedbank:
- Pakkumise saamiseks kasuta koodi OBERHAUS ja Teid teenindatakse eelisjärjekorras.
Haldur võtab Teiega ühendust 1 tööpäeva jooksul.
-Swedbanki klientidele hindamisteenus Ober-Hausist soodsamalt.
Lisainfo: swedbank.ee/kodulaen
Pakkumine kehtib, kui ostad kodu Ober-Haus Kinnisvara vahendusel. Kodulaenu pakub Swedbank AS. Tutvuge tingimustega ja pea nõu www.swedbank.ee.
KLIENDIPÄEV 06.12 kell 12:00-14:00. OLEMAS HINDAMISAKT!
Müüki on tulnud avar 4-toaline paarismajaboks hinnatud Kakumäe rahulikus ja peresõbralikus piirkonnas – kodu, kus meri on vaid jalutuskäigu kaugusel ja igapäevaelu kulgeb roheluse, päikese ja linnulaulu saatel. See hubane ja valgusküllane majaosa paikneb vaiksel kõrvaltänaval, kus privaatsus ja turvaline elukeskkond on tagatud. Oma hoov ja kõrghaljastus loovad idüllilise õhkkonna – ideaalne paik perele, kes hindab looduse lähedust ja linnamugavusi üheskoos.
Vaata videot: https://www.facebook.com/reel/731562066084100
MAJAOSA
Majaosa on valgusküllane koos terrassi (28,2m2), rõdu (13m2), sauna, oma hoovi ja autovarjualusega.
Esimesel korrusel on avar elutuba (37,5m2) koos kaminaga, avatud köök (14,5m2) Arensi köögimööbliga, esik, tualett, saun koos pesu- ja eesruumiga (3,1m2, 4,1m2 ja 9,5m2) ja panipaik/tehnoruum (8,8m2m). Elutoas hubasuse loomiseks kamin- hubasus ja lisasoojus külmematel õhtutel. Elutoast on pääs avarale terrassile (28,2m2) ja hoovi. Terrassil saab nautida päikest lõunast õhtuni ja lõõgastuda suvistel õhtusöökidel oma aias.
Elutoa põrandat katab naturaalne kalasabamustriga puitparkett, mis lisab ruumile soojust ja ajatut stiili.
Teisel korrusel paikneb 3 magamistuba (13,3m2, 13,7m2,14,2m2), trepihall, suur duširuum koos tualetiga (5,7m2). Trepihall annab avarust ja ruumi, kust on pääs suurele rõdule (13m2), kust avaneb vaade rohelusse – ideaalne koht hommikukohviks või raamatu lugemiseks.
2005. aastal ehitatud majaosa vajab natuke värskendamist. Hea võimalus kujundada kodu oma soovide järgi.
Majaosa elutoas on vahetatud parkett. Teisel korrusel on värvitud üle magamistoa seinad. Maja katus on vahetatud.
KÜTE JA KANALISATSIOON
Maja köetakse Junkers gaasikatlaga. Esimesel korrusel on põrandaküte ja teisel korrusel on radiaatorid. Igas toas on võimalik kütet eraldi reguleerida. Elutoas on kamin, mis loob meeldiva meeleolu ja annab lisasoojust. Vesi ja kanalisatsioon on tsentraalsed.
KINNISTU/HOOV JA PARKIMINE
Mõnusalt avar ja valgusküllane hoov suurusega 909 m2. Avar lõunapoolne terrass. Aeda aitab korras hoida robotniiduk. Maja ees on tänavakividest ala ja autovarjualune, kuhu mahub parkima kaks autot.
ASUKOHT/ÜMBRUS
Asukoht on hinnatud merelähedane rahulik ja peresõbralik piirkond Kakumäel. Kakumäe rand ja Haveni sadam on jalutuskäigu kaugusele. Samuti asub lähedal kergliiklusteed sportimiseks ja ühistranspordipeatused. Lühikese autosõidu kaugusele jäävad Kakumäe Selver, Lidl, Rocca al Mare kaubanduskeskus, Rocca al Mare Vabaõhumuuseum, erinevad spordiklubid ja söögikohad jpm.
Piirkond pakub palju võimalusi aktiivseks liikumiseks jalgsi kui ka rattaga. Lähedal asuvad Rocca al Mare Kool, Tabasalu kool ja Harkujärve Põhikool ja erinevad lasteaiad. Tabasalu Spordikompleks pakub erinevaid spordiringe ja seal asub ka ujula.
Tallinna kesklinna sõidab autoga ca 25 minutit.
Kui tunned, et see paarismaja võiks olla Sinu uus pere kodu, siis võta ühendust ja lähme koos vaatama!
Ober-Hausi vahendusel suuremate pankade laenulepingutasudel soodustused! Juhul kui sul on tarvis eelmine kodu uue soetamiseks maha müüa, võta minuga ühendust!
Küsi ka partnerpakkumiste kohta!
Kodu aitab osta Swedbank:
- Pakkumise saamiseks kasuta koodi OBERHAUS ja Teid teenindatakse eelisjärjekorras.
Haldur võtab Teiega ühendust 1 tööpäeva jooksul.
-Swedbanki klientidele hindamisteenus Ober-Hausist soodsamalt.
Lisainfo: swedbank.ee/kodulaen
Pakkumine kehtib, kui ostad kodu Ober-Haus Kinnisvara vahendusel. Kodulaenu pakub Swedbank AS. Tutvuge tingimustega ja pea nõu www.swedbank.ee.































