Urban Villa Andrekse tee 39-2 – nutikas kodu prestiižses Pirita linnaosas, Soome lahe kaldal.
Tere tulemast elegantse arhitektuuri ja laitmatu maitse maailma. Eksklusiivne villa, mille pindala on 149,5 m², ühendab kaasaegse disaini, funktsionaalsuse ja esmaklassilise kvaliteedi. Viis tuba, maja pindalale lisandub terrass, eraldiseisev grillimaja koos terrassi ja katusega. Terrass on kaetud termosaare lauaga.
Maja:
Müüa paarismaja väga hea planeeringuga, hubane ja kaunis, kaminaga, Pirita looduskaunis kohas. Paigaldatud on välisvalgustus ja videovalve, kinnistu on piiratud aiaga. Maja ees on kvaliteetsest sillutuskivist parkla.
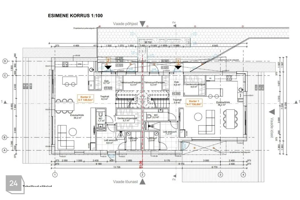
Esimesel korrusel asub avar elutuba panoraamakende ja väljapääsuga terrassile, kaasaegne köök, saun koos dušinurgaga, tualettruum, garderoobid ja tehnilised ruumid. Maja on planeeritud nii, et iga ruutmeeter on funktsionaalne ja praktiline. Siseviimistluses on kasutatud ainult kvaliteetseid materjale. Tubade põrandaid katab naturaalne tammeparkett. Betoonist trepp tammespooniga viimistletud astmetega on maja ehe. Siseuksed on siledad, spoonitud, laed värvitud. Elutuba koos eraldatud köögialaga, saun koos duširuumiga ja väljapääsuga terrassile. On eraldi tehnoruum, kus on paigaldatud pesumasin ja kuivati, panipaik. Majas on kaks eraldi tualetti ja kaks vannituba.
Välisviimistlusmaterjali valikul on arvestatud piirkonna juba väljakujunenud arhitektuuriga. Fassaad on krohvitud. Kandevseinad on laotud Fibo plokkidest, kergseinad samuti kivist. Aknad on puidust, kolmekordse klaaspaketiga (kaks selektiivklaasi argoontäitega, välimine klaas on kaetud päikesekaitseklaasiga).
Teisel korrusel on neli hubast magamistuba, vannituba, lisatualett ja garderoob.
Ehitus on kõrge kvaliteediga: kivist kandvad seinad, raudbetoonist vahelaged, stiilsed puitaknad ja terrassiuksed, fassaad krohvi, puidu ja fassaadipaneelide kombinatsioonis, betoonist trepp tammespooniga viimistletud astmetega.
Kaasaegsed tehnilised lahendused: gaasikatel ja vesipõrandaküte, soojustagastusega ventilatsioonisüsteem, mis oluliselt vähendab küttekulusid, konditsioneer ideaalse sisekliima tagamiseks. Põrandakütet juhitakse spetsiaalse kohaliku automaatikasüsteemi abil. Elamu ventilatsioon on lahendatud tsentraalse sundventilatsiooniga. Paigaldatud on soojustagastusega ventilatsiooniagregaat.
Maja sissepääsu juures on koridor ja garderoobiala ülerõivaste ja jalanõude jaoks. Esimesel korrusel on avar elutuba hubase kaminaga, mis pakub soojust talveõhtutel. Köök on sisustatud disainmööbli ja integreeritud tehnikaga – induktsioonpliit, elektriahi, kubu, külmkapp, nõudepesumasin. Köögist on väljapääs avarale terrassile, kus on mõnus juua hommikukohvi. Saunast elektrikerisega pääseb väliterrassile, kus saab pärast sauna end jahutada.
Teisel korrusel asub avar trepihall ja neli magamistuba. Ruum on maksimaalselt praktiliselt organiseeritud, olemas on avarad panipaigad ja garderoobid.
Maja on varustatud parimate tootjate seadmetega: Villeroy & Boch, Hansgrohe, Rak Joy, Balteco. Joogivee soolafilter Zepter. Eksklusiivne Fendi disainmööbel lisab kodule luksust, kvaliteeti ja ajatust elegantsi.
Kinnistu:
Krunti ümbritseb aed, mis harmoneerub üldise stiiliga. Õu on kaunilt haljastatud, hoolikalt valitud dekoratiivtaimedega. Maastik on planeeritud disaineri poolt. Aed on hoolitsetud ja professionaalse aedniku poolt hooldatud. Naabrid on vaiksed ja meeldivad. On panipaik, kus on mugav hoida muruniidukit, jalgrattaid ja muud vajalikku.
Asukoht:
Pirita Lasteaed asub E. Bornhöhe tee 10, Merivälja Kool on umbes 900 meetri kaugusel, Pirita Majandusgümnaasium umbes 1,7 km. Jalutuskäigu kaugusel on poed: Selver Rummu tee 4, kaubanduskeskus Pirita Keskus Merivälja tee 24, Mähe kauplus umbes 1,5 km. Bussiliinid 1A, 6, 8, 34A, 38, 49, lähim peatus umbes 100 meetrit, kesklinna 10–15 minutit. Pirita liivarand ja promenaad on umbes 500 meetri kaugusel jalutades. Lähedal on Pirita spordikompleks Merivälja tee 3, kus on spordisaal, velodroom, tenniseväljakud ja jäähall, samuti Pirita Seikluspark Merivälja tee 5A. Jalutamis- ja rattateed kulgevad piki metsaala ja rannikut Merivälja tee ääres. Kõik eluks vajalik on lähedal.
Lisainfo:
Ideaalne valik inimesele, kes hindab mugavust, rahu ja looduse lähedust. Helista ja lepi aeg kokku – see võib olla sinu uus kodu või suurepärane investeering.
Aitan kinnisvara müügil, ostul, üürimisel ja hindamisel ning laenutaotluste vormistamisel. Garanteerin korrektsed lepingud ja professionaalse teeninduse. Tasuta konsultatsioon.
Tere tulemast elegantse arhitektuuri ja laitmatu maitse maailma. Eksklusiivne villa, mille pindala on 149,5 m², ühendab kaasaegse disaini, funktsionaalsuse ja esmaklassilise kvaliteedi. Viis tuba, maja pindalale lisandub terrass, eraldiseisev grillimaja koos terrassi ja katusega. Terrass on kaetud termosaare lauaga.
Maja:
Müüa paarismaja väga hea planeeringuga, hubane ja kaunis, kaminaga, Pirita looduskaunis kohas. Paigaldatud on välisvalgustus ja videovalve, kinnistu on piiratud aiaga. Maja ees on kvaliteetsest sillutuskivist parkla.
Esimesel korrusel asub avar elutuba panoraamakende ja väljapääsuga terrassile, kaasaegne köök, saun koos dušinurgaga, tualettruum, garderoobid ja tehnilised ruumid. Maja on planeeritud nii, et iga ruutmeeter on funktsionaalne ja praktiline. Siseviimistluses on kasutatud ainult kvaliteetseid materjale. Tubade põrandaid katab naturaalne tammeparkett. Betoonist trepp tammespooniga viimistletud astmetega on maja ehe. Siseuksed on siledad, spoonitud, laed värvitud. Elutuba koos eraldatud köögialaga, saun koos duširuumiga ja väljapääsuga terrassile. On eraldi tehnoruum, kus on paigaldatud pesumasin ja kuivati, panipaik. Majas on kaks eraldi tualetti ja kaks vannituba.
Välisviimistlusmaterjali valikul on arvestatud piirkonna juba väljakujunenud arhitektuuriga. Fassaad on krohvitud. Kandevseinad on laotud Fibo plokkidest, kergseinad samuti kivist. Aknad on puidust, kolmekordse klaaspaketiga (kaks selektiivklaasi argoontäitega, välimine klaas on kaetud päikesekaitseklaasiga).
Teisel korrusel on neli hubast magamistuba, vannituba, lisatualett ja garderoob.
Ehitus on kõrge kvaliteediga: kivist kandvad seinad, raudbetoonist vahelaged, stiilsed puitaknad ja terrassiuksed, fassaad krohvi, puidu ja fassaadipaneelide kombinatsioonis, betoonist trepp tammespooniga viimistletud astmetega.
Kaasaegsed tehnilised lahendused: gaasikatel ja vesipõrandaküte, soojustagastusega ventilatsioonisüsteem, mis oluliselt vähendab küttekulusid, konditsioneer ideaalse sisekliima tagamiseks. Põrandakütet juhitakse spetsiaalse kohaliku automaatikasüsteemi abil. Elamu ventilatsioon on lahendatud tsentraalse sundventilatsiooniga. Paigaldatud on soojustagastusega ventilatsiooniagregaat.
Maja sissepääsu juures on koridor ja garderoobiala ülerõivaste ja jalanõude jaoks. Esimesel korrusel on avar elutuba hubase kaminaga, mis pakub soojust talveõhtutel. Köök on sisustatud disainmööbli ja integreeritud tehnikaga – induktsioonpliit, elektriahi, kubu, külmkapp, nõudepesumasin. Köögist on väljapääs avarale terrassile, kus on mõnus juua hommikukohvi. Saunast elektrikerisega pääseb väliterrassile, kus saab pärast sauna end jahutada.
Teisel korrusel asub avar trepihall ja neli magamistuba. Ruum on maksimaalselt praktiliselt organiseeritud, olemas on avarad panipaigad ja garderoobid.
Maja on varustatud parimate tootjate seadmetega: Villeroy & Boch, Hansgrohe, Rak Joy, Balteco. Joogivee soolafilter Zepter. Eksklusiivne Fendi disainmööbel lisab kodule luksust, kvaliteeti ja ajatust elegantsi.
Kinnistu:
Krunti ümbritseb aed, mis harmoneerub üldise stiiliga. Õu on kaunilt haljastatud, hoolikalt valitud dekoratiivtaimedega. Maastik on planeeritud disaineri poolt. Aed on hoolitsetud ja professionaalse aedniku poolt hooldatud. Naabrid on vaiksed ja meeldivad. On panipaik, kus on mugav hoida muruniidukit, jalgrattaid ja muud vajalikku.
Asukoht:
Pirita Lasteaed asub E. Bornhöhe tee 10, Merivälja Kool on umbes 900 meetri kaugusel, Pirita Majandusgümnaasium umbes 1,7 km. Jalutuskäigu kaugusel on poed: Selver Rummu tee 4, kaubanduskeskus Pirita Keskus Merivälja tee 24, Mähe kauplus umbes 1,5 km. Bussiliinid 1A, 6, 8, 34A, 38, 49, lähim peatus umbes 100 meetrit, kesklinna 10–15 minutit. Pirita liivarand ja promenaad on umbes 500 meetri kaugusel jalutades. Lähedal on Pirita spordikompleks Merivälja tee 3, kus on spordisaal, velodroom, tenniseväljakud ja jäähall, samuti Pirita Seikluspark Merivälja tee 5A. Jalutamis- ja rattateed kulgevad piki metsaala ja rannikut Merivälja tee ääres. Kõik eluks vajalik on lähedal.
Lisainfo:
Ideaalne valik inimesele, kes hindab mugavust, rahu ja looduse lähedust. Helista ja lepi aeg kokku – see võib olla sinu uus kodu või suurepärane investeering.
Aitan kinnisvara müügil, ostul, üürimisel ja hindamisel ning laenutaotluste vormistamisel. Garanteerin korrektsed lepingud ja professionaalse teeninduse. Tasuta konsultatsioon.