Müüa väga hubane ja hoitud perekodu, looduskaunis piirkonnas.
olemas kehtiv HINDAMISAKT 334 000€.
TUTVUSTUS
Hoitud välisilmega maja paikneb Saue vallas, Vatsla küla- rahulikul kõrvaltänaval, mistõttu on see ideaalne just lastega perele.
Müüdav majaosa on 179,3 m2 (millest kötav pind 136,4 m2). Majaosal kaks rõdu, üks vaatega maja ette (hommiku päike) ja teine vaatega maja taha (õhtu päike ja vaade koduhoovi). Majaosal notariaalse kasutuskorra alusel kaunis hoov 1001m2, kus asub ka terrass suurusega 11m2 ja aiamaja/abihoone suurusega 20m2.
Maja terrassil ja koduhoovis on võimalik nautida päeva ja õhtu päikest ning õdusat ja rahulikku elukeskkonda.
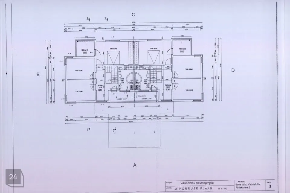
MAJA PLANEERING
Maja planeering on väga hea ja läbimõeldud. Esimesel korrusel asuvad avar ja valgusküllane elutuba/köök. Elutoast pääs terrassile. Lisaks asub esimesel korrusel ka pesuruum, tualett ja saun (elektriline). Majandusruum/panipaik asub maja sissepääsu kõrval. Maja teisele korrusele viib puittrepp, kus asuvad kolm valgusküllast magamistuba (kahest magamistoast pääseb rõdule (5,4 m2 ja 6,5 m2) ning ühest magamistoast pääseb avarasse ja valgusküllasesse pesuruum/tualetti (pesuruumis veeühendus dušši tarbeks olemas, hetkel kasutuses kui abiruum ja tualett).
maja I ja II korrusel paiknevad järgmised ruumid:
I KORRUS
- Esik (2,5 m2)
- Tehnilineruum (8,6 m2)
- Esik (9,8 m2)
- Pesuruum (4,6 m2)
- Tualett (1,3 m2)
- Saun (3,4 m2)
- Elutuba (27,1 m2)
- Köök/söögituba (16,5 m2)
- Terrass (11 m2)
- Auto katusealune (19 m2)
II KORRUS
- Hall (9,9 m2)
- Suur magamistuba (18,9 m2)
- Rõdu I (6,5 m2)
- Magamistuba II (13 m2)
- Magamistuba III (13 m2)
- Pesuruum (7,8 m2)
- Rõdu II (5,4 m2)
SISEVIIMISTLUS
Majaosa siseviimistluses on kasutatud kvaliteetseid ja vastupidavaid materjale. Majaosal korralikud klaaspaketiga plastraamil aknad ja puidust siseuksed.
Majaosa esimese ja teise korruse põrandaid katab naturaalne parkett ja plaaditud põrandad niisketes ruumides.
Köögis uus ja korralik köögimööbel sh köögitehnika: induktsioonpliit, ahi, nõudepesumasin, kubu ja külmutuskapp.
Majaosa on läbinud värskendava remondi 2024 aasta lõpus (uus köök ja kerge kosmeetiline remont teistes ruumides).
Majaosa müüakse osaliselt möbleeritult ja osalise tehnikaga.
KÜTTESÜSTEEM
Majaosa kütab Fujitsu õhk-vesi soojuspump (WOYK112LCT Duo 10,8kw) koos MT200 tarbevee kütteboileriga, õhksoojuspump (konditsioneer) ja kamin.
Põrandaküte I korrusel ja II korrusel reguleeritavad radiaatorid (õhk-vesi). Majaosal sundventilatsioon.
Majaosa esimesel korrusel kamin. Majale paigaldatud katusele päikesepaneelid 8 kw (kasutusele võetud 2023 aastal).
Kommunaalarved on suvel ca 100 €/kuu ja talvel ca 290€/kuu (sh prügivedu, kanalisatsioon, elekter ja vesi).
Vee- ja elektrihinnad sõltuvad turusituatsioonist ja tarbimisest.
KONSTRUKTIIVNE OSA
Madalvundament; kande- ja jäigastavate materjalid metall ja puit; katuse ja katuselagede kandev osa puit; välisseinad kergmetall; katus bituumen rullmaterjal; välissein krohv ja osaliselt puit.
Majal elekter 3*25 A, majas tööstusvoolupistik.
ÜMBRUSKOND
Piirkond on väga turvaline ja tugeva naabrivalvega.
Elu jutskui maal ja eemal linnakärast, samas mugavalt lähedal: Tallinn ca 6 km, Rocca Al Mare ja Nõmme keskus ca 15 min., Laagri keskus ca 12 min., Keila keskus ca 15 min. ja Tabasalu keskus ca 9 min. autosõidu tee kaugusel.
Ühistranspordi peatus ca 800 m. Kõik külasisesed teed on valgustatud ja asfalteeritud. Valgustatud ja turvaline kergliiklustee ühendus Tallinna, Laagri, Tabasalu ja Hüüruga.
Piirkonnas TriibuLiine päevahoid 1,9 km kaugusel.
Lähimad toidupoed: Rocca Al Mare Prisma, Rimi, Selver, Roo Prisma ja Astangu Rimi. Tabasalus Selver ja Rimi ning lähim Harku pood.
olemas kehtiv HINDAMISAKT 334 000€.
TUTVUSTUS
Hoitud välisilmega maja paikneb Saue vallas, Vatsla küla- rahulikul kõrvaltänaval, mistõttu on see ideaalne just lastega perele.
Müüdav majaosa on 179,3 m2 (millest kötav pind 136,4 m2). Majaosal kaks rõdu, üks vaatega maja ette (hommiku päike) ja teine vaatega maja taha (õhtu päike ja vaade koduhoovi). Majaosal notariaalse kasutuskorra alusel kaunis hoov 1001m2, kus asub ka terrass suurusega 11m2 ja aiamaja/abihoone suurusega 20m2.
Maja terrassil ja koduhoovis on võimalik nautida päeva ja õhtu päikest ning õdusat ja rahulikku elukeskkonda.
MAJA PLANEERING
Maja planeering on väga hea ja läbimõeldud. Esimesel korrusel asuvad avar ja valgusküllane elutuba/köök. Elutoast pääs terrassile. Lisaks asub esimesel korrusel ka pesuruum, tualett ja saun (elektriline). Majandusruum/panipaik asub maja sissepääsu kõrval. Maja teisele korrusele viib puittrepp, kus asuvad kolm valgusküllast magamistuba (kahest magamistoast pääseb rõdule (5,4 m2 ja 6,5 m2) ning ühest magamistoast pääseb avarasse ja valgusküllasesse pesuruum/tualetti (pesuruumis veeühendus dušši tarbeks olemas, hetkel kasutuses kui abiruum ja tualett).
maja I ja II korrusel paiknevad järgmised ruumid:
I KORRUS
- Esik (2,5 m2)
- Tehnilineruum (8,6 m2)
- Esik (9,8 m2)
- Pesuruum (4,6 m2)
- Tualett (1,3 m2)
- Saun (3,4 m2)
- Elutuba (27,1 m2)
- Köök/söögituba (16,5 m2)
- Terrass (11 m2)
- Auto katusealune (19 m2)
II KORRUS
- Hall (9,9 m2)
- Suur magamistuba (18,9 m2)
- Rõdu I (6,5 m2)
- Magamistuba II (13 m2)
- Magamistuba III (13 m2)
- Pesuruum (7,8 m2)
- Rõdu II (5,4 m2)
SISEVIIMISTLUS
Majaosa siseviimistluses on kasutatud kvaliteetseid ja vastupidavaid materjale. Majaosal korralikud klaaspaketiga plastraamil aknad ja puidust siseuksed.
Majaosa esimese ja teise korruse põrandaid katab naturaalne parkett ja plaaditud põrandad niisketes ruumides.
Köögis uus ja korralik köögimööbel sh köögitehnika: induktsioonpliit, ahi, nõudepesumasin, kubu ja külmutuskapp.
Majaosa on läbinud värskendava remondi 2024 aasta lõpus (uus köök ja kerge kosmeetiline remont teistes ruumides).
Majaosa müüakse osaliselt möbleeritult ja osalise tehnikaga.
KÜTTESÜSTEEM
Majaosa kütab Fujitsu õhk-vesi soojuspump (WOYK112LCT Duo 10,8kw) koos MT200 tarbevee kütteboileriga, õhksoojuspump (konditsioneer) ja kamin.
Põrandaküte I korrusel ja II korrusel reguleeritavad radiaatorid (õhk-vesi). Majaosal sundventilatsioon.
Majaosa esimesel korrusel kamin. Majale paigaldatud katusele päikesepaneelid 8 kw (kasutusele võetud 2023 aastal).
Kommunaalarved on suvel ca 100 €/kuu ja talvel ca 290€/kuu (sh prügivedu, kanalisatsioon, elekter ja vesi).
Vee- ja elektrihinnad sõltuvad turusituatsioonist ja tarbimisest.
KONSTRUKTIIVNE OSA
Madalvundament; kande- ja jäigastavate materjalid metall ja puit; katuse ja katuselagede kandev osa puit; välisseinad kergmetall; katus bituumen rullmaterjal; välissein krohv ja osaliselt puit.
Majal elekter 3*25 A, majas tööstusvoolupistik.
ÜMBRUSKOND
Piirkond on väga turvaline ja tugeva naabrivalvega.
Elu jutskui maal ja eemal linnakärast, samas mugavalt lähedal: Tallinn ca 6 km, Rocca Al Mare ja Nõmme keskus ca 15 min., Laagri keskus ca 12 min., Keila keskus ca 15 min. ja Tabasalu keskus ca 9 min. autosõidu tee kaugusel.
Ühistranspordi peatus ca 800 m. Kõik külasisesed teed on valgustatud ja asfalteeritud. Valgustatud ja turvaline kergliiklustee ühendus Tallinna, Laagri, Tabasalu ja Hüüruga.
Piirkonnas TriibuLiine päevahoid 1,9 km kaugusel.
Lähimad toidupoed: Rocca Al Mare Prisma, Rimi, Selver, Roo Prisma ja Astangu Rimi. Tabasalus Selver ja Rimi ning lähim Harku pood.





















































