Müügile on tulnud uus kodu - ruumikas ja kvaliteetne ridaelamuboks kiiresti arenevas ja hinnatud elukeskkonnas, Käokella elamurajoonis, Järvekülas.
See 5-toaline, 118,7 m² suurune B-energiaklassiga ridaelamuboks pakub kõike, mida üks pere vajab: oma privaatne aed, terrass, rõdu, panipaik ja 2 parkimiskohta.
- hoone energiaklass on B
- mugav ja säästlik vesipõrandaküte ruumipõhise temperatuuri reguleerimise võimalusega
- boksis on oma soojustagastusega ventilatsiooniseade, mis tagab energiasäästlikuma ekspluatatsiooni ning hea ja kvaliteetse sisekliima
- kolmekordse klaaspaketiga plastikaknad
- piisaval hulgal elektripistikuid ning kõlarikaablid elutoas ja leiliruumis
- puuküttekeris
- eraldi panipaik/tehnoruum maja esimesel korrusel
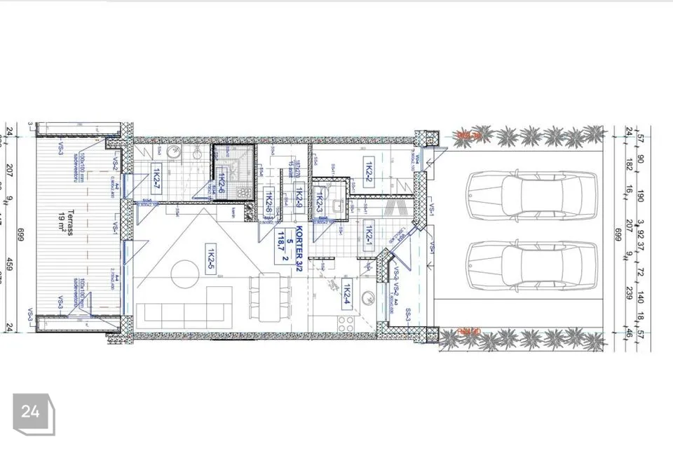
MAJA JA PLANEERING
I KORRUS – avarus ja hubasus
Avar ja valgusküllane elutuba (27,2 m²), kust pääseb otse terrassile ja privaatsele hoovialale.
Kaasaegne köök (6,3 m²), mis on sisustatud köögimööbli ja vajaliku tehnikaga (induktsioonpliit, õhupuhasti, ahi, külmik, nõudepesumasin).
Saun ja duširuum (5,7 + 2,7 m²) – ideaalne koht lõõgastumiseks pärast pikka päeva.
Eraldi WC (1,6 m²) ja panipaik/tehnoruum (5,8 m²) mugavaks majapidamiseks.
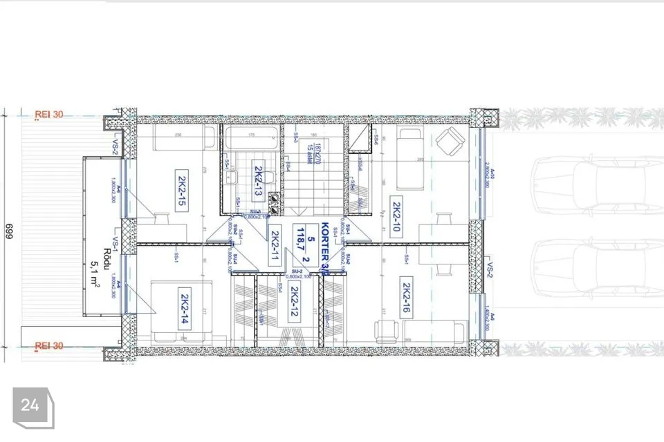
II KORRUS – rahulik ja privaatne puhkeala
Neli magamistuba (12,4 +12,8 + 9,3 + 10,2 m²) , millest kahest pääseb rõdule (5,1 m²), kus saab nautida hommikukohvi või õhtuseid päikeseloojanguid.
Walk-in garderoob (4 m²) ja mahukad panipaigad aitavad hoida elamise korras.
Stiilne vannituba vanni ja WC-ga (4,5 m²).
PARKIMINE JA TURVALISUS
2 kindlat parkimiskohta maja ees notariaalse kasutuskorra alusel.
Turvaline kinnine hoov lastele mängimiseks.
Signalisatsioonivalmidus ja naabrivalve piirkond tagavad meelerahu.
ÜMBRUS JA ELUKESKKOND
Järveküla on kiiresti arenev ja hinnatud elukeskkond, kus rahu ja puhas loodus kohtuvad kaasaegsete mugavustega. Siin saate nautida turvalist ja peresõbralikku elukeskkonda, kus kõik eluks vajalik on käeulatuses. Lähikonnas mitmed lasteaiad, koolid ja mänguväljakud.
Mitmed poed Selver, Coop ja Rimi.
Peetri park ja kergliiklusteed aktiivseks elustiiliks.
Spordihuvilistele 24/7 Gym, tennisekeskus ja ujulaga koolid.
Linnaga on kiire ja mugav ühendus – Tallinna kesklinna jõuab vaid 7 minutiga, Ülemiste keskusesse lausa 5 minutiga.
Turvaline ja privaatne elukoht tupiktänavas – ideaalne perele, kes hindab rahu ja mugavust!
Kas see võiks olla teie uus kodu?
Võtke minuga ühendust ja lepime kokku vaatamise aja!
See 5-toaline, 118,7 m² suurune B-energiaklassiga ridaelamuboks pakub kõike, mida üks pere vajab: oma privaatne aed, terrass, rõdu, panipaik ja 2 parkimiskohta.
- hoone energiaklass on B
- mugav ja säästlik vesipõrandaküte ruumipõhise temperatuuri reguleerimise võimalusega
- boksis on oma soojustagastusega ventilatsiooniseade, mis tagab energiasäästlikuma ekspluatatsiooni ning hea ja kvaliteetse sisekliima
- kolmekordse klaaspaketiga plastikaknad
- piisaval hulgal elektripistikuid ning kõlarikaablid elutoas ja leiliruumis
- puuküttekeris
- eraldi panipaik/tehnoruum maja esimesel korrusel
MAJA JA PLANEERING
I KORRUS – avarus ja hubasus
Avar ja valgusküllane elutuba (27,2 m²), kust pääseb otse terrassile ja privaatsele hoovialale.
Kaasaegne köök (6,3 m²), mis on sisustatud köögimööbli ja vajaliku tehnikaga (induktsioonpliit, õhupuhasti, ahi, külmik, nõudepesumasin).
Saun ja duširuum (5,7 + 2,7 m²) – ideaalne koht lõõgastumiseks pärast pikka päeva.
Eraldi WC (1,6 m²) ja panipaik/tehnoruum (5,8 m²) mugavaks majapidamiseks.
II KORRUS – rahulik ja privaatne puhkeala
Neli magamistuba (12,4 +12,8 + 9,3 + 10,2 m²) , millest kahest pääseb rõdule (5,1 m²), kus saab nautida hommikukohvi või õhtuseid päikeseloojanguid.
Walk-in garderoob (4 m²) ja mahukad panipaigad aitavad hoida elamise korras.
Stiilne vannituba vanni ja WC-ga (4,5 m²).
PARKIMINE JA TURVALISUS
2 kindlat parkimiskohta maja ees notariaalse kasutuskorra alusel.
Turvaline kinnine hoov lastele mängimiseks.
Signalisatsioonivalmidus ja naabrivalve piirkond tagavad meelerahu.
ÜMBRUS JA ELUKESKKOND
Järveküla on kiiresti arenev ja hinnatud elukeskkond, kus rahu ja puhas loodus kohtuvad kaasaegsete mugavustega. Siin saate nautida turvalist ja peresõbralikku elukeskkonda, kus kõik eluks vajalik on käeulatuses. Lähikonnas mitmed lasteaiad, koolid ja mänguväljakud.
Mitmed poed Selver, Coop ja Rimi.
Peetri park ja kergliiklusteed aktiivseks elustiiliks.
Spordihuvilistele 24/7 Gym, tennisekeskus ja ujulaga koolid.
Linnaga on kiire ja mugav ühendus – Tallinna kesklinna jõuab vaid 7 minutiga, Ülemiste keskusesse lausa 5 minutiga.
Turvaline ja privaatne elukoht tupiktänavas – ideaalne perele, kes hindab rahu ja mugavust!
Kas see võiks olla teie uus kodu?
Võtke minuga ühendust ja lepime kokku vaatamise aja!
















































