Suure terrassi ja saunaga paarismaja Raasiku vallas!
Raasiku vallas Igavere külas on valmimas paarismaja, kus mugav läbimõeldud planeering loob ideaalse kodu igapäevaseks eluks. Ehitus on juba alanud ning valmimine planeeritud 2026 aasta kevadeks.
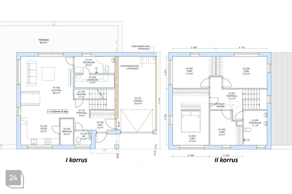
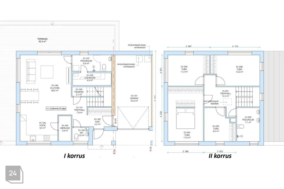
MAJAOSA üldpind on 160,6 m², millest eluruumide pindala on 136,6 m². Kahekorruseline puitmaja on projekteeritud mugavust ja funktsionaalsust silmas pidades: esimesel korrusel paiknevad avatud köögiga elutuba, saun koos pesuruumiga, abiruum, panipaik, wc ning pääs avarale terrassile ja garaaži. Teisel korrusel on neli magamistuba ja vannituba – ideaalne lahendus nii perele kui ka kodukontori vajadustega ostjale.
Küte on lahendatud ökonoomse maasoojuspumbaga ning kogu majas on vesipõrandaküte, mida saab reguleerida ruumipõhiselt. Värske õhu tagab soojustagastusega sundventilatsioon, samuti paigaldatakse jahutuse valmidus. Vastab A-energiaklassi nõuetele, mis tähendab madalat energiatarbimist, kõrget soojustustaset ja kaasaegseid tehnilisi lahendusi, mis toetavad säästlikku ning mugavat elukeskkonda.
Fassaad on kaetud puiduga ning värvilahendus on musta ja oranži tooni kombinatsiooniga, mis loob silmapaistva ja kaasaegse ilme. Aknad on musta viimistlusega nii seest kui väljast, mis rõhutab maja modernset karakterit. Katusekatteks on Ruukki Silent Classic mustas toonis, mis täiendab terviklikku disaini.
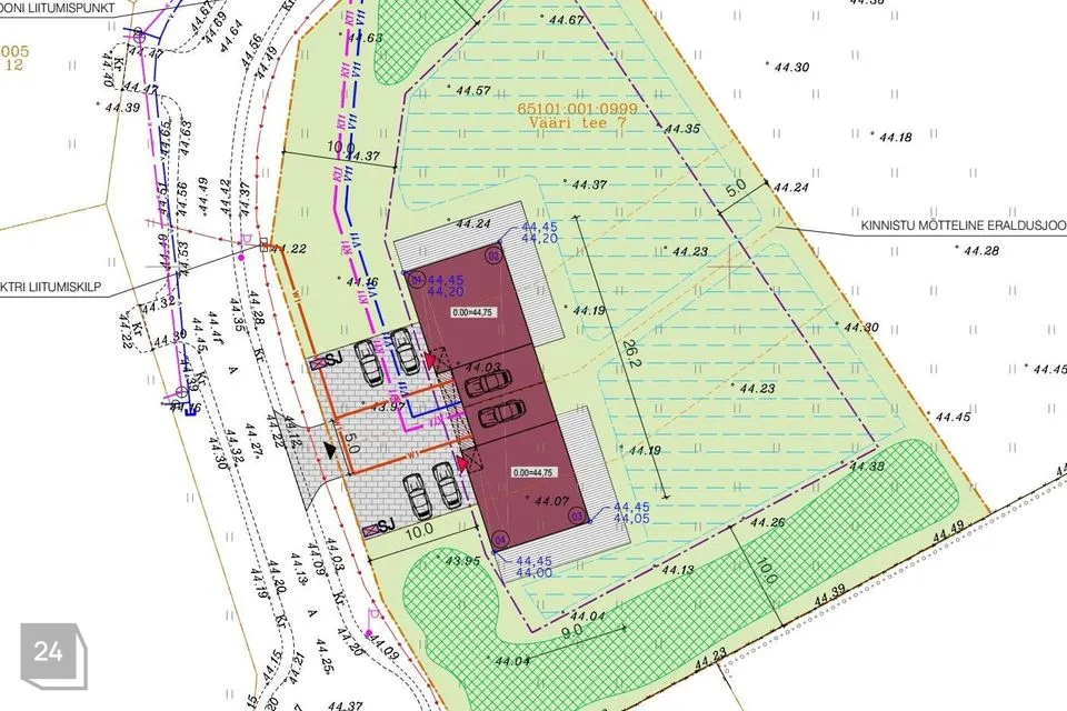
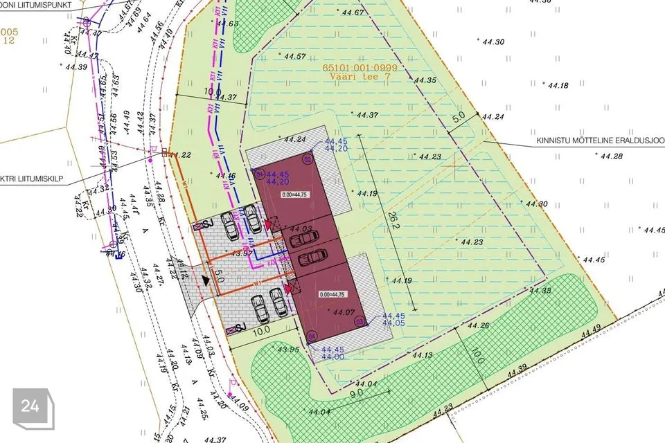
KINNISTU kogu suurus on 3003 m², ühe paarismaja krundi pind planeeritakse ca 1500 m².
Uuele tänavale kerkivad juba ka naabrite kodud, mis loovad ühtse ja mõnusa uusarenduse õhkkonna. Ümbruses valgustatud kergliiklusteed.
IGAVERE on rahulik ja rohelusse sulanduv piirkond, mis pakub kõike, mida hinnatakse tänapäevases koduvalikus: vaikust, privaatsust ja looduslähedust, kuid samal ajal kiiret ühendust igapäevaste teenustega. Aruküla jääb siia vaid mõneminutilise autosõidu või jalgrattatee kaugusele, pakkudes välja kõike vajalikku – poode, rongiühendust, lasteaedu, kooli ning aktiivset kogukonnaelu.
Igavere ideaalne valik inimesele, kes otsib modernset kodu rahulikus elukeskkonnas, kuid ei soovi loobuda mugavast ühendusest Tallinna ja kogu Harjumaa taristuga.
Võta ühendust ja küsi julgelt lisainfot – hea kodu sünnib õigel ajal tehtud otsustest!
Pangad pakuvad Domus Kinnisvara klientidele eluasemelaenu lepingutasu soodustusi. Küsi lisainfot Domus Kinnisvara maaklerilt või hindajalt.
Müü ja hinda meiega! Teeme kinnisvara müügi Sinu jaoks sujuvaks ja pingevabaks.
Raasiku vallas Igavere külas on valmimas paarismaja, kus mugav läbimõeldud planeering loob ideaalse kodu igapäevaseks eluks. Ehitus on juba alanud ning valmimine planeeritud 2026 aasta kevadeks.
MAJAOSA üldpind on 160,6 m², millest eluruumide pindala on 136,6 m². Kahekorruseline puitmaja on projekteeritud mugavust ja funktsionaalsust silmas pidades: esimesel korrusel paiknevad avatud köögiga elutuba, saun koos pesuruumiga, abiruum, panipaik, wc ning pääs avarale terrassile ja garaaži. Teisel korrusel on neli magamistuba ja vannituba – ideaalne lahendus nii perele kui ka kodukontori vajadustega ostjale.
Küte on lahendatud ökonoomse maasoojuspumbaga ning kogu majas on vesipõrandaküte, mida saab reguleerida ruumipõhiselt. Värske õhu tagab soojustagastusega sundventilatsioon, samuti paigaldatakse jahutuse valmidus. Vastab A-energiaklassi nõuetele, mis tähendab madalat energiatarbimist, kõrget soojustustaset ja kaasaegseid tehnilisi lahendusi, mis toetavad säästlikku ning mugavat elukeskkonda.
Fassaad on kaetud puiduga ning värvilahendus on musta ja oranži tooni kombinatsiooniga, mis loob silmapaistva ja kaasaegse ilme. Aknad on musta viimistlusega nii seest kui väljast, mis rõhutab maja modernset karakterit. Katusekatteks on Ruukki Silent Classic mustas toonis, mis täiendab terviklikku disaini.
KINNISTU kogu suurus on 3003 m², ühe paarismaja krundi pind planeeritakse ca 1500 m².
Uuele tänavale kerkivad juba ka naabrite kodud, mis loovad ühtse ja mõnusa uusarenduse õhkkonna. Ümbruses valgustatud kergliiklusteed.
IGAVERE on rahulik ja rohelusse sulanduv piirkond, mis pakub kõike, mida hinnatakse tänapäevases koduvalikus: vaikust, privaatsust ja looduslähedust, kuid samal ajal kiiret ühendust igapäevaste teenustega. Aruküla jääb siia vaid mõneminutilise autosõidu või jalgrattatee kaugusele, pakkudes välja kõike vajalikku – poode, rongiühendust, lasteaedu, kooli ning aktiivset kogukonnaelu.
Igavere ideaalne valik inimesele, kes otsib modernset kodu rahulikus elukeskkonnas, kuid ei soovi loobuda mugavast ühendusest Tallinna ja kogu Harjumaa taristuga.
Võta ühendust ja küsi julgelt lisainfot – hea kodu sünnib õigel ajal tehtud otsustest!
Pangad pakuvad Domus Kinnisvara klientidele eluasemelaenu lepingutasu soodustusi. Küsi lisainfot Domus Kinnisvara maaklerilt või hindajalt.
Müü ja hinda meiega! Teeme kinnisvara müügi Sinu jaoks sujuvaks ja pingevabaks.






















