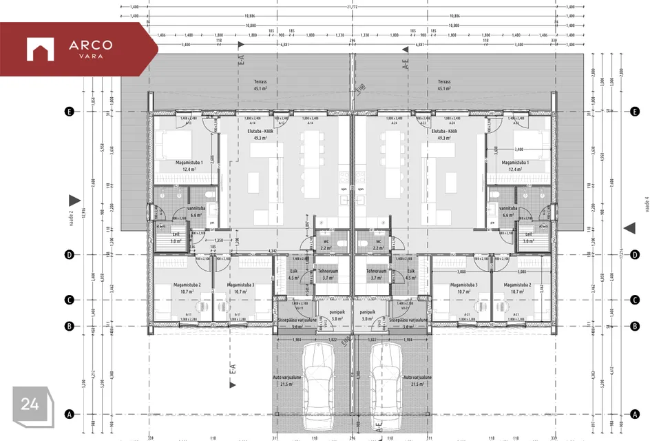
Müüa 2025 aastal valmiv ökonoomne paarismaja Elva linna piiril, Uuta külas. Paarismaja boks on ühekorruseline, kokku 4 tuba, eluruumi pinda 106,1 m². Lisaks terrass (45,1 m²) ja autovarjualune 21,5 m². Kokku 172,7 m². Hetkel on maja karp püsti ning varsti alustatakse sisetöödega.
Planeeringult koosneb majaosa kolmest magamistoast, suurest elutoast köögiga, vannitoast, saunast, WC-st, koridorist, tehnoruumist ning panipaigast. Maja tagumisest küljes asuvast elutoast, peamisest magamistoast ning saunast on pääs terrassile, kus on võimalik nautida õhtupäikest. Suur boonus on maja ees olev varjualune, mis vabastab talvisest auto akende puhastamisest.
Siseviimistluse osas katab põrandaid eluruumides 1 lipiline laminaatparkett. Seinad värvitakse heledates toonides. Sanitaarruumides kaetud seinad ja põrandad keraamiliste plaatidega. Paigaldatud on kvaliteetne san.tehnika.Varajasel broneerimisel on võimalik kaasa rääkida siseviimistluse osas.
Majaosa küttena on kasutusel ökonoomne maaküte ning õhuvahetuse tagab soojustagastusega ventilatsioon. Hoone küttesüsteem on lahendatud vesipõrandakütte baasil. Hea sisekliima tagamiseks on majas soojustagastusega sundventilatsioon. Vesi- ja kanalisatsioon on tsentraalsed, elektrivõimsus 3*16A.
Maja on ehitatud plaatvundamendile, mille soojustus on 300mm EPS. Väliseinad on puitkarkassist ja soojustatud 250mm villaga. Välisviimistluseks on kasutatud laudist. Maja ette on paigaldatud kiviparkett.
Kui soovid rajatava paarismaja osas rohkem infot saada, siis võta ühendust.
Planeeringult koosneb majaosa kolmest magamistoast, suurest elutoast köögiga, vannitoast, saunast, WC-st, koridorist, tehnoruumist ning panipaigast. Maja tagumisest küljes asuvast elutoast, peamisest magamistoast ning saunast on pääs terrassile, kus on võimalik nautida õhtupäikest. Suur boonus on maja ees olev varjualune, mis vabastab talvisest auto akende puhastamisest.
Siseviimistluse osas katab põrandaid eluruumides 1 lipiline laminaatparkett. Seinad värvitakse heledates toonides. Sanitaarruumides kaetud seinad ja põrandad keraamiliste plaatidega. Paigaldatud on kvaliteetne san.tehnika.Varajasel broneerimisel on võimalik kaasa rääkida siseviimistluse osas.
Majaosa küttena on kasutusel ökonoomne maaküte ning õhuvahetuse tagab soojustagastusega ventilatsioon. Hoone küttesüsteem on lahendatud vesipõrandakütte baasil. Hea sisekliima tagamiseks on majas soojustagastusega sundventilatsioon. Vesi- ja kanalisatsioon on tsentraalsed, elektrivõimsus 3*16A.
Maja on ehitatud plaatvundamendile, mille soojustus on 300mm EPS. Väliseinad on puitkarkassist ja soojustatud 250mm villaga. Välisviimistluseks on kasutatud laudist. Maja ette on paigaldatud kiviparkett.
Kui soovid rajatava paarismaja osas rohkem infot saada, siis võta ühendust.
--
Müüme, hindame ja teeme Sinu kinnisvara dokumendid korda - iga päev, suurima rõõmu ja pühendumisega!
Edasta müügisoov www.arcovara.ee/et/#edasta-myygisoov
Telli hindamine www.arcovara.ee/et/#telli-hindamine
Saada ehitus- või kasutusloa soov seadustamine.arcovara.ee














