Müüa kaasaegne A-energiaklassi paarismaja osa Muugal – Keraheina tee 15
Aadress: Keraheina tee 15, Maardu, Harju maakond
Elamispind: 136,1 m²
Krunt: 554,8 m²
Tubade arv: 5 (sh 4 magamistuba)
Sanitaarruumid: 2 WC-d, vannituba, saun
Küte: Õhk-vesi soojuspump (DAIKIN) + vesipõrandaküte
Päikesepaneelid: 5 kW
Korruseid: 2
Ventilatsioon: Soojustagastusega süsteem (KOMFOVENT)
Internetiühendus: Optiline kaabel
Uus, valgusküllane kodu roheluses
Müüa uus, energiasäästlik paarismaja osa rohelises ja vaikses Muuga piirkonnas – ideaalne valik perele, kes hindab mugavust, esteetikat ja madalaid ülalpidamiskulusid. Hooned vastavad A-energiaklassile, katusele on paigaldatud päikesepaneelid (5 kW), küttesüsteemiks on energiasäästlik õhk-vesi soojuspump koos mugava vesipõrandaküttegaigas ruumis (iga tuba reguleeritav termostaadiga).
Planeering:
Esimene korrus:
Avatud köök-elutuba (46,3 m²)
WC
Garderoob
Tehnoruum
Trepikoda
Väljapääs terrassile
Teine korrus:
4 magamistuba (keskmiselt 12 m²)
Vannituba koos vanniga (5,5 m²)
Eraldi WC
Sauna valmidus / saun
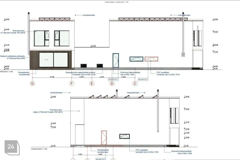
Ehitustehniline info:
Lintvundament (Columbia 190 armeeritud plokk)
Kandvad seinad – Fibo plokk
Vahelaed – raudbetoonist õõnespaneelid (220 mm)
Katus – EPS100 isolatsioon (380–450 mm), SBS bituumenkate
PVC aknad – 3-kordse klaaspaketiga, avatavad tuulutuseks
Siseviimistlus: seinad värvitud, LVT põrand (kalasaba muster), sisseehitatud uksed varjatud montaažiga
Vannitubades kvaliteetne sanitaartehnika, keraamilised plaadid, lisavalgustus
Valmidus kamina paigaldamiseks
Terrass – termomänd, valmidus klaaskatuse paigaldamiseks
Valmis valvesüsteemi ja valguslahenduste jaoks (sh LED valgustus nii sees kui väljas)
Mugavused ja ühendus:
Maja ühendatud Tallinna Vesi tsentraalse vee- ja kanalisatsioonivõrku
Soe tarbevesi lokaalselt soojasõlmes
Vaikne ja peresõbralik elukeskkond
Kiire ühendus Tallinna kesklinna ja ümberkaudsete teenustega
Tasuta parkimine kinnistul
Valmidus kiireks sissekolimiseks – siseviimistlus ja sanitaartehnika hinna sees
Aadress: Keraheina tee 15, Maardu, Harju maakond
Elamispind: 136,1 m²
Krunt: 554,8 m²
Tubade arv: 5 (sh 4 magamistuba)
Sanitaarruumid: 2 WC-d, vannituba, saun
Küte: Õhk-vesi soojuspump (DAIKIN) + vesipõrandaküte
Päikesepaneelid: 5 kW
Korruseid: 2
Ventilatsioon: Soojustagastusega süsteem (KOMFOVENT)
Internetiühendus: Optiline kaabel
Uus, valgusküllane kodu roheluses
Müüa uus, energiasäästlik paarismaja osa rohelises ja vaikses Muuga piirkonnas – ideaalne valik perele, kes hindab mugavust, esteetikat ja madalaid ülalpidamiskulusid. Hooned vastavad A-energiaklassile, katusele on paigaldatud päikesepaneelid (5 kW), küttesüsteemiks on energiasäästlik õhk-vesi soojuspump koos mugava vesipõrandaküttegaigas ruumis (iga tuba reguleeritav termostaadiga).
Planeering:
Esimene korrus:
Avatud köök-elutuba (46,3 m²)
WC
Garderoob
Tehnoruum
Trepikoda
Väljapääs terrassile
Teine korrus:
4 magamistuba (keskmiselt 12 m²)
Vannituba koos vanniga (5,5 m²)
Eraldi WC
Sauna valmidus / saun
Ehitustehniline info:
Lintvundament (Columbia 190 armeeritud plokk)
Kandvad seinad – Fibo plokk
Vahelaed – raudbetoonist õõnespaneelid (220 mm)
Katus – EPS100 isolatsioon (380–450 mm), SBS bituumenkate
PVC aknad – 3-kordse klaaspaketiga, avatavad tuulutuseks
Siseviimistlus: seinad värvitud, LVT põrand (kalasaba muster), sisseehitatud uksed varjatud montaažiga
Vannitubades kvaliteetne sanitaartehnika, keraamilised plaadid, lisavalgustus
Valmidus kamina paigaldamiseks
Terrass – termomänd, valmidus klaaskatuse paigaldamiseks
Valmis valvesüsteemi ja valguslahenduste jaoks (sh LED valgustus nii sees kui väljas)
Mugavused ja ühendus:
Maja ühendatud Tallinna Vesi tsentraalse vee- ja kanalisatsioonivõrku
Soe tarbevesi lokaalselt soojasõlmes
Vaikne ja peresõbralik elukeskkond
Kiire ühendus Tallinna kesklinna ja ümberkaudsete teenustega
Tasuta parkimine kinnistul
Valmidus kiireks sissekolimiseks – siseviimistlus ja sanitaartehnika hinna sees



































