Müüa stiilne ja kaasaegse sisekujundusega hubane ridaelamuboks, kus kodusoojus ja valgusküllasus loovad täiusliku elukeskkonna! See paarismaja-stiilis ridaelamuboks on loodud neile, kes hindavad hoolikalt läbimõeldud planeeringut, kvaliteetset ehitust ja rahulikku elukeskkonda.
HOONE JA EHITUSINFO
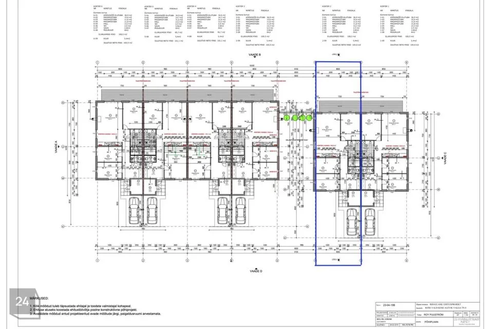
See kaasaegne ning energiatõhus ühe-korruseline ridaelamuboks, mis tegelikult koosneb kahest eraldi boksist moodustades paarismaja, on ehitatud 200 mm keramsiitplokkidest, millele lisatud 150 mm vahtpolüstüreenist soojustus. Hoone on rajatud lintvundamendile, mis on samuti soojustatud (120 mm). Lagi on soojustatud 400 mm ulatuses. Mittekandvad seinad on ehitatud kipsplaatidest, karkass on täidetud villaga.
Tehnilised lahendused loovad mugavuse ja vastupidavuse:
- 3-kordse klaaspaketiga plastikaknad, mis lasevad tuppa rohkelt loomulikku valgust ning hoiavad sooja sees
- Kaunis valge krohvitud fassaad pruunide laudise detailidega annab majale kaasaegse ja sooja ilme
- Tumedad aknaraamid, uksed ja korsten loovad elegantselt kontrastse ning stiilse viimistluse
- Tänavakividega kaetud eesala on mugav ja hooldatav (osad kivid on määrdunud ja vajavad välja vahetamist)
- Päikeseline 14,5 m² terrass vaatega hoovi, mis on ideaalne nii lõõgastumiseks kui sõpradega aja veetmiseks
- Suletud netopind 105,9 m² tagab piisavalt ruumi kogu perele
- Elektri peakaitse 3 x 20 A ning valguskaabel RedNeti teenusega kiire interneti jaoks
- Tsentraalsed vee- ja kanalisatsioonilahendused tänapäevase mugavuse tagamiseks
SISSEKUJUNDUS JA PLANEERING
See kodu on kujundatud mõeldes pere igapäevasele mugavusele ning kaunis ja funktsionaalne planeering võimaldab nautida nii privaatsust kui avarust:
- Kvaliteetne laialipiline laminaat loob soojuse ja elegantse põhjatooni kõikides eluruumides
- Suured maast laeni aknad toovad ruumidesse palju päevavalgust ja annavad kauni ühenduse loodusega
- Avar köök on ühendatud elutoaga, kus hubase kaminaga saab veeta mõnusaid õhtuid
- 3 magamistuba pakuvad piisavalt privaatsust ja head ruumijaotust
- Vannituba koos elektrikerisega saunaga pakub ideaalse lõõgastuse pärast pingelist päeva
- WC on eraldi, mis suurendab kodu praktilisust
- Terrassile pääseb nii elutoast kui ka ühest magamistoast, mis on väga mugav
- Köögis on kaasaegsed seadmed: külmik, ahi, pliit, mikrolaineahi ja nõudepesumasin (XL mõõdus 60 cm), mis teevad toimetused lihtsaks
Lahtine mööbel (va seinakapp elutoas ja jalanõudekapp esikus) ja pesumasin koos kuivatiga ei kuulu hinna sisse ning uus omanik saab kodu kujundada täielikult oma maitse järgi.
KÜTE JA VENTILATSIOON
Mugavus on esmatähtis – selleks hoolitseb efektiivne Samsung õhk-vesisoojuspump, mis tagab kogu majale ühtlase ja mõnusa vesipõrandakütte. Igas toas saab temperatuuri individuaalselt reguleerida, mis annab maksimaalse kontrolli ja kokkuhoiu.
Värske õhu ringlus on tagatud tänu värskeõhuklappidele igas ruumis, mis hoiavad õhu alati puhta ja tervisliku.
2024. aasta sügisel teostati soojuspumbale regulaarne hooldus.
KÕRVALKULUD
Talvised elektrikulud u 250 € kuus, mis sisaldavad võrgutasu
Suvised elektrikulud u 80 € kuus, mis sisaldavad võrgutasu
Lisanduvad vee- ja kanalisatsioonikulud vastavalt tarbimisele ning prügivedu.
KINNISTU JA HOOV
Koduse aedniku unistus! Hooldatud õueala pakub palju võimalusi – looge siin oma ilus vilja- või iluaed või mugav puhkeala. Lisaks:
- Päikeseline 14,5 m² terrass on ideaalne koht päevitamiseks ja õhtuste õhtusöökide nautimiseks
- Varjualune autole tagab mugava parkimise
- Eraldi sissepääsuga panipaik (5,4 m²) annab lisaruumi hoiu- ja töövahenditele
TRANSPORT JA ÜHENDUS
Rahulik asukoht ühendab linna ja looduse:
- Tallinn on vaid 45 km kaugusel ning sõit kestab autoga 35–45 minutit
- Ühistransport töötab regulaarselt, bussiga sõiduaeg 50–60 minutit
PIIRKOND JA LÄHEDAL ASUVAD TEENUSED
Elu siin on harmoonias loodusega. Lähedal asuvad Pirita jõgi ja tervise- ja metsarajad pakuvad suurepäraseid võimalusi jalutamiseks ja vaba aja veetmiseks. Kose keskusest leiab kõik, mida igapäevaeluks vaja:
- Koolid ja lasteaiad mugava ligipääsuga
- Toidupoed, söögikohad ja postkontor
- Tervisekeskus ja kultuurikeskus
- Lai valik sportimisvõimalusi: spordikeskus, ujula, jõusaal, suusarajad, discgolf
IDEAALNE VALIK SINU UUEKS KODUKS See kaunis ja praktiline ridaelamuboks sobib suurepäraselt inimesele või perele, kes otsib kvaliteetset, madalate kõrvalkuludega ning hubast kodu roheluses. Siin on kõik olemas, et luua soe ja turvaline pesa, kuhu naasta iga päev rõõmuga.
Kui tunned, et just see kodu võiks olla Sinu uus algus, võta julgelt ühendust ja tule vaatama – kodu ootab Sind!
Lii Aalik, KV Kontor
Kutseline kinnisvaramaakler, 6. tase (nr. 198473)
Registreering: KMR 73977
EKMK liige
Vajad abi kinnisvaraga?
Aitan Sind rõõmuga, kui vajad:
- kinnisvara müüki, ostu, üüri
- turuväärtuse määramist
- nõustamist ja lepingute koostamist
Minu teenus on personaalne ja usaldusväärne – täpselt nii, nagu Sina seda vajad.
***
HOONE JA EHITUSINFO
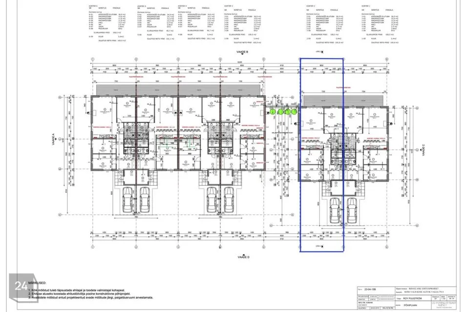
See kaasaegne ning energiatõhus ühe-korruseline ridaelamuboks, mis tegelikult koosneb kahest eraldi boksist moodustades paarismaja, on ehitatud 200 mm keramsiitplokkidest, millele lisatud 150 mm vahtpolüstüreenist soojustus. Hoone on rajatud lintvundamendile, mis on samuti soojustatud (120 mm). Lagi on soojustatud 400 mm ulatuses. Mittekandvad seinad on ehitatud kipsplaatidest, karkass on täidetud villaga.
Tehnilised lahendused loovad mugavuse ja vastupidavuse:
- 3-kordse klaaspaketiga plastikaknad, mis lasevad tuppa rohkelt loomulikku valgust ning hoiavad sooja sees
- Kaunis valge krohvitud fassaad pruunide laudise detailidega annab majale kaasaegse ja sooja ilme
- Tumedad aknaraamid, uksed ja korsten loovad elegantselt kontrastse ning stiilse viimistluse
- Tänavakividega kaetud eesala on mugav ja hooldatav (osad kivid on määrdunud ja vajavad välja vahetamist)
- Päikeseline 14,5 m² terrass vaatega hoovi, mis on ideaalne nii lõõgastumiseks kui sõpradega aja veetmiseks
- Suletud netopind 105,9 m² tagab piisavalt ruumi kogu perele
- Elektri peakaitse 3 x 20 A ning valguskaabel RedNeti teenusega kiire interneti jaoks
- Tsentraalsed vee- ja kanalisatsioonilahendused tänapäevase mugavuse tagamiseks
SISSEKUJUNDUS JA PLANEERING
See kodu on kujundatud mõeldes pere igapäevasele mugavusele ning kaunis ja funktsionaalne planeering võimaldab nautida nii privaatsust kui avarust:
- Kvaliteetne laialipiline laminaat loob soojuse ja elegantse põhjatooni kõikides eluruumides
- Suured maast laeni aknad toovad ruumidesse palju päevavalgust ja annavad kauni ühenduse loodusega
- Avar köök on ühendatud elutoaga, kus hubase kaminaga saab veeta mõnusaid õhtuid
- 3 magamistuba pakuvad piisavalt privaatsust ja head ruumijaotust
- Vannituba koos elektrikerisega saunaga pakub ideaalse lõõgastuse pärast pingelist päeva
- WC on eraldi, mis suurendab kodu praktilisust
- Terrassile pääseb nii elutoast kui ka ühest magamistoast, mis on väga mugav
- Köögis on kaasaegsed seadmed: külmik, ahi, pliit, mikrolaineahi ja nõudepesumasin (XL mõõdus 60 cm), mis teevad toimetused lihtsaks
Lahtine mööbel (va seinakapp elutoas ja jalanõudekapp esikus) ja pesumasin koos kuivatiga ei kuulu hinna sisse ning uus omanik saab kodu kujundada täielikult oma maitse järgi.
KÜTE JA VENTILATSIOON
Mugavus on esmatähtis – selleks hoolitseb efektiivne Samsung õhk-vesisoojuspump, mis tagab kogu majale ühtlase ja mõnusa vesipõrandakütte. Igas toas saab temperatuuri individuaalselt reguleerida, mis annab maksimaalse kontrolli ja kokkuhoiu.
Värske õhu ringlus on tagatud tänu värskeõhuklappidele igas ruumis, mis hoiavad õhu alati puhta ja tervisliku.
2024. aasta sügisel teostati soojuspumbale regulaarne hooldus.
KÕRVALKULUD
Talvised elektrikulud u 250 € kuus, mis sisaldavad võrgutasu
Suvised elektrikulud u 80 € kuus, mis sisaldavad võrgutasu
Lisanduvad vee- ja kanalisatsioonikulud vastavalt tarbimisele ning prügivedu.
KINNISTU JA HOOV
Koduse aedniku unistus! Hooldatud õueala pakub palju võimalusi – looge siin oma ilus vilja- või iluaed või mugav puhkeala. Lisaks:
- Päikeseline 14,5 m² terrass on ideaalne koht päevitamiseks ja õhtuste õhtusöökide nautimiseks
- Varjualune autole tagab mugava parkimise
- Eraldi sissepääsuga panipaik (5,4 m²) annab lisaruumi hoiu- ja töövahenditele
TRANSPORT JA ÜHENDUS
Rahulik asukoht ühendab linna ja looduse:
- Tallinn on vaid 45 km kaugusel ning sõit kestab autoga 35–45 minutit
- Ühistransport töötab regulaarselt, bussiga sõiduaeg 50–60 minutit
PIIRKOND JA LÄHEDAL ASUVAD TEENUSED
Elu siin on harmoonias loodusega. Lähedal asuvad Pirita jõgi ja tervise- ja metsarajad pakuvad suurepäraseid võimalusi jalutamiseks ja vaba aja veetmiseks. Kose keskusest leiab kõik, mida igapäevaeluks vaja:
- Koolid ja lasteaiad mugava ligipääsuga
- Toidupoed, söögikohad ja postkontor
- Tervisekeskus ja kultuurikeskus
- Lai valik sportimisvõimalusi: spordikeskus, ujula, jõusaal, suusarajad, discgolf
IDEAALNE VALIK SINU UUEKS KODUKS See kaunis ja praktiline ridaelamuboks sobib suurepäraselt inimesele või perele, kes otsib kvaliteetset, madalate kõrvalkuludega ning hubast kodu roheluses. Siin on kõik olemas, et luua soe ja turvaline pesa, kuhu naasta iga päev rõõmuga.
Kui tunned, et just see kodu võiks olla Sinu uus algus, võta julgelt ühendust ja tule vaatama – kodu ootab Sind!
Lii Aalik, KV Kontor
Kutseline kinnisvaramaakler, 6. tase (nr. 198473)
Registreering: KMR 73977
EKMK liige
Vajad abi kinnisvaraga?
Aitan Sind rõõmuga, kui vajad:
- kinnisvara müüki, ostu, üüri
- turuväärtuse määramist
- nõustamist ja lepingute koostamist
Minu teenus on personaalne ja usaldusväärne – täpselt nii, nagu Sina seda vajad.
***

























































