Kiili kõrval Vaela külas on valmimas hubased ja stiilsed ühekordsed ridaelamuboksid. Kõik boksid on 5-toalised, saunaga ning maakütte baasil põrandaküte tagab madalad kulud ja A-energiaklassi.
Boksi nr 2 juurde kuulub 205,8 m² hooviala ja kaks kindlaksmääratud parkimiskohta.
Boksi siseviimistluspakett on Pärlikarp.
Ridaelamud valmivad 2026. a veebruaris.
PLANEERING
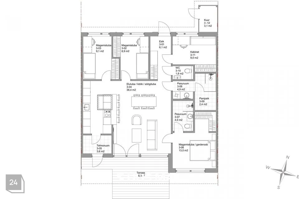
Opmani ühekordsed ridaelamud järgivad kõrvalolevate eramutega sarnast modernistliku arhitektuurikeelt. Hoone keskmes asub avar elutuba. Peamine magamistuba koos garderoobi ja eraldi pesuruumiga on elutoa kõrval. Kolm ülejäänud magamistuba asuvad kummalgi pool esikut. Igas boksis on saun.
Hoone lõunaküljel paikneb varikatusega kaetud terrass ja selle kõrval on panipaik, kuhu pääseb nii köögist kui terrassilt. Lisaks asub peasissepääsu kõrval kuur jalgrataste ja lapsevankrite hoidmiseks.
INTERJÖÖR
Põrandatel on valge mattlakiga 1-lipiline tammespooni parkett. Esikus, majapidamisruumis ja märgades ruumides on põrandad plaaditud. Seinad ja laed on pahteldatud ja värvitud. San ruumide seinad on osaliselt plaaditud ja osaliselt värvitud.
HOONEST
Kõik Opmani elamud on valmistatud tehaselistest puitelementidest, mis tagavad parima ehituskvaliteedi ja soojapidavuse ning hea sisekliima. Hoonete energiaklass on A ning neid köetakse ja jahutatakse maasoojuspumba abil. Sundventilatsioonisüsteem on soojus- ja niiskustagastusega. Olemas valmidus päikesepaneelide paigaldamiseks.
Hoone rajatakse kiudbetoonist plaatvundamendile ning katus puitfermidele. Katusekatteks on päiksekiirgust peegeldav hele PVC kate. Fassaadikatteks on värvitud/peitsitud puitlaudis. Avatäideteks on kolmekordse paketiga puit-alumiiniumaknad ja soojustatud puituksed.
Hoone veevarustus ja kanalisatsioon on tsentraalsed. Sooja vee tootmine toimub maasoojuspumba abil.
Majal on liitumine Enefit Connect valguskaabliga.
ASUKOHT
Opmani elamud asuvad Vaelas uute eramute piirkonnas. Vaela uus lasteaed on 1 km kaugusel. Kiili keskusesse, kus paiknevad gümnaasium, perearstikeskus, kauplused ja söögikohad, on 4 km. Kohe teisel pool Tallinna ringteed asub jõudsalt arenev Kurna park IKEA, Selveri, Decathloni ja teiste kauplustega. Ülemiste ja Järve keskused jäävad vähem kui 15 minutilise autosõidu kaugusele.
ARENDAJA
Lumberlov on kinnisvaraarenduse ettevõtte, mis esimesena Eestis on spetsialiseerunud puithoonete rajamisele.
Lumberlovi puithoonete rajamisel kasutatakse tehases toodetud elemente. Selline ehitusviis tagab parima kvaliteedi, kuna kriitilised konstruktsioonid ja sõlmed valmivad kontrollitud keskkonnas, mitte ilmastiku mõjudele valla ehitusplatsil.
Vaata täiendavat infot arenduse kodulehelt: https://lumberlov.ee/opmanielamud/
Vaata ka videot ehituse käigust!
NB! Pildid on illustratiivsed ning võivad erineda lõplikult valminud tootest.
Tunned, et siin võiks olla sinu pere uus kodu? Helista või kirjuta mulle ja küsi lisa!
JAGA MINU KONTAKTI KÕIGILE, KES VAJAVAD KINNISVARANÕU!
- - - - - - - - - -
Telli hindamine UUS MAA Kinnisvarabüroolt https://uusmaa.ee/teenused/hindamine/
ning saad:
- Eksperthinnangu kuni 20% soodsamalt kui võtad koduga seotud laenu Swedbankist
- Pankadest parimad kodulaenutingimused
- Kiire, kvaliteetse ning usaldusväärse hindamisteenuse Eestis
UUS MAA KINNISVARABÜROO EKSPERTHINNANGUID AKTSEPTEERIVAD KÕIK FINANTSASUTUSED.
- - - - - - - - - -
Liitu Uus Maa uudiskirjaga ja saa homset kinnisvarainfot juba täna!
https://www.uusmaa.ee/uudiskirjagaliitumine/
- - - - - - - - - -
Kodu aitab osta Swedbank.
Pakkumise saamiseks kasuta koodi UUSMAA ja Sind teenindatakse eelisjärjekorras.
Võtame ühendust 1 tööpäeva jooksul.
Uus Maa kliendile soodsam lepingutasu. Küsi täpsemat infot maaklerilt.
Finantsteenuseid pakub Swedbank AS. Tutvu tingimustega, pea nõu.
Boksi nr 2 juurde kuulub 205,8 m² hooviala ja kaks kindlaksmääratud parkimiskohta.
Boksi siseviimistluspakett on Pärlikarp.
Ridaelamud valmivad 2026. a veebruaris.
PLANEERING
Opmani ühekordsed ridaelamud järgivad kõrvalolevate eramutega sarnast modernistliku arhitektuurikeelt. Hoone keskmes asub avar elutuba. Peamine magamistuba koos garderoobi ja eraldi pesuruumiga on elutoa kõrval. Kolm ülejäänud magamistuba asuvad kummalgi pool esikut. Igas boksis on saun.
Hoone lõunaküljel paikneb varikatusega kaetud terrass ja selle kõrval on panipaik, kuhu pääseb nii köögist kui terrassilt. Lisaks asub peasissepääsu kõrval kuur jalgrataste ja lapsevankrite hoidmiseks.
INTERJÖÖR
Põrandatel on valge mattlakiga 1-lipiline tammespooni parkett. Esikus, majapidamisruumis ja märgades ruumides on põrandad plaaditud. Seinad ja laed on pahteldatud ja värvitud. San ruumide seinad on osaliselt plaaditud ja osaliselt värvitud.
HOONEST
Kõik Opmani elamud on valmistatud tehaselistest puitelementidest, mis tagavad parima ehituskvaliteedi ja soojapidavuse ning hea sisekliima. Hoonete energiaklass on A ning neid köetakse ja jahutatakse maasoojuspumba abil. Sundventilatsioonisüsteem on soojus- ja niiskustagastusega. Olemas valmidus päikesepaneelide paigaldamiseks.
Hoone rajatakse kiudbetoonist plaatvundamendile ning katus puitfermidele. Katusekatteks on päiksekiirgust peegeldav hele PVC kate. Fassaadikatteks on värvitud/peitsitud puitlaudis. Avatäideteks on kolmekordse paketiga puit-alumiiniumaknad ja soojustatud puituksed.
Hoone veevarustus ja kanalisatsioon on tsentraalsed. Sooja vee tootmine toimub maasoojuspumba abil.
Majal on liitumine Enefit Connect valguskaabliga.
ASUKOHT
Opmani elamud asuvad Vaelas uute eramute piirkonnas. Vaela uus lasteaed on 1 km kaugusel. Kiili keskusesse, kus paiknevad gümnaasium, perearstikeskus, kauplused ja söögikohad, on 4 km. Kohe teisel pool Tallinna ringteed asub jõudsalt arenev Kurna park IKEA, Selveri, Decathloni ja teiste kauplustega. Ülemiste ja Järve keskused jäävad vähem kui 15 minutilise autosõidu kaugusele.
ARENDAJA
Lumberlov on kinnisvaraarenduse ettevõtte, mis esimesena Eestis on spetsialiseerunud puithoonete rajamisele.
Lumberlovi puithoonete rajamisel kasutatakse tehases toodetud elemente. Selline ehitusviis tagab parima kvaliteedi, kuna kriitilised konstruktsioonid ja sõlmed valmivad kontrollitud keskkonnas, mitte ilmastiku mõjudele valla ehitusplatsil.
Vaata täiendavat infot arenduse kodulehelt: https://lumberlov.ee/opmanielamud/
Vaata ka videot ehituse käigust!
NB! Pildid on illustratiivsed ning võivad erineda lõplikult valminud tootest.
Tunned, et siin võiks olla sinu pere uus kodu? Helista või kirjuta mulle ja küsi lisa!
JAGA MINU KONTAKTI KÕIGILE, KES VAJAVAD KINNISVARANÕU!
- - - - - - - - - -
Telli hindamine UUS MAA Kinnisvarabüroolt https://uusmaa.ee/teenused/hindamine/
ning saad:
- Eksperthinnangu kuni 20% soodsamalt kui võtad koduga seotud laenu Swedbankist
- Pankadest parimad kodulaenutingimused
- Kiire, kvaliteetse ning usaldusväärse hindamisteenuse Eestis
UUS MAA KINNISVARABÜROO EKSPERTHINNANGUID AKTSEPTEERIVAD KÕIK FINANTSASUTUSED.
- - - - - - - - - -
Liitu Uus Maa uudiskirjaga ja saa homset kinnisvarainfot juba täna!
https://www.uusmaa.ee/uudiskirjagaliitumine/
- - - - - - - - - -
Kodu aitab osta Swedbank.
Pakkumise saamiseks kasuta koodi UUSMAA ja Sind teenindatakse eelisjärjekorras.
Võtame ühendust 1 tööpäeva jooksul.
Uus Maa kliendile soodsam lepingutasu. Küsi täpsemat infot maaklerilt.
Finantsteenuseid pakub Swedbank AS. Tutvu tingimustega, pea nõu.





















