Linnuse Kodud - Tule ela linnulaulu ja pargiroheluse keskel!
22 ridaelamuboksi valmivad 2026. aasta sügiseks.
Panipaik ja parkimine hinnas!
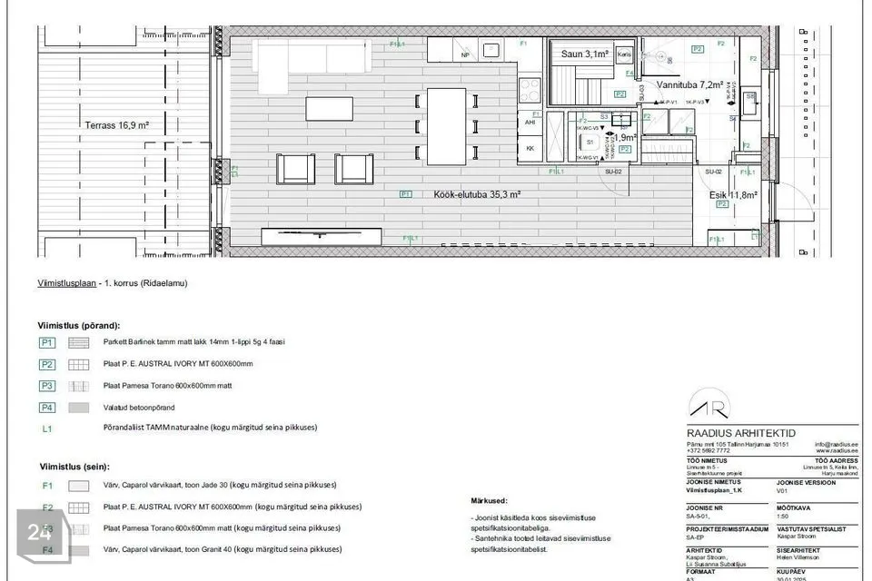
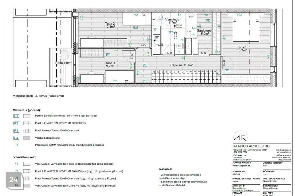
Ridaelamu boksi koosseisu kuulub:
Eluruumi pind 121,3 m²
Terrass 16,9 m²
Rõdu 4,0 m²
Panipaik 7,6 m² 4900eur
Parkimiskoht 4900eur
Linnuse tee 5 on uusarendus Keilas, kus on mõnus kodukoht peredele, kes armastavad rahu, loodust ja rohket avarust.
Ajaloolise Keila mõisapargi servale kerkivad 22 ridamaja ja 2 korrusmaja, kus päikeselisel terrassil saab nautida hommikukohvi kõrvale linnulaulu ning kogeda - Elu on ilus!
Lapsed mängivad turvaliselt looduskaunis pargis ja talletavad imelisi lapsepõlve mälestusi - See on kodu!
Kiire ja mugav rongiliiklus loob efektiivse ja täiendava transpordiühenduse kodu ja Tallinna vahel - juurde võidetud stressivaba aeg!
Miks valida Linnuse tee 5?
Moodne ja energiatõhus elu - Maaküte (energiatõhusad soojuspuuraugud), A-energiaklass, päikesepaneelid ja optiline kaabel, elektriautode laadimispunktid.
Kõrgema standardi järgi loodud kodud - 2,8 m kõrgusega laed, standardist kõrgemad aknad ja uksed, avarad ja valgusküllased ruumid, naturaalsed ja kvaliteetsed viimistlusmaterjalid.
Disain tasakaalus elukeskkonnaga – Projekti inspiratsiooniks on Ying & Yang elufilosoofia – visuaalne ja ruumiline tasakaal elukeskkonna ja looduse vahel
Logistiline mugavus – Koolid ja lasteaiad lähedal, rongiühendus Tallinnaga, parkimiskohad igale korterile.
Keskkonnaga arvestav – säilitatud looduskooslus, keskkonnakeskne planeering, hoolikalt kavandatud haljastus, jalutusteed, rattaruumid.
Tutvu plaanidega, vali oma uus kodu ja alusta uut elu Keilas – looduse keskel, ajaloolise pargi serval!
Oleme Sinu jaoks olemas - võta meiega ühendust!
https://linnusekodud.ee/
22 ridaelamuboksi valmivad 2026. aasta sügiseks.
Panipaik ja parkimine hinnas!
Ridaelamu boksi koosseisu kuulub:
Eluruumi pind 121,3 m²
Terrass 16,9 m²
Rõdu 4,0 m²
Panipaik 7,6 m² 4900eur
Parkimiskoht 4900eur
Linnuse tee 5 on uusarendus Keilas, kus on mõnus kodukoht peredele, kes armastavad rahu, loodust ja rohket avarust.
Ajaloolise Keila mõisapargi servale kerkivad 22 ridamaja ja 2 korrusmaja, kus päikeselisel terrassil saab nautida hommikukohvi kõrvale linnulaulu ning kogeda - Elu on ilus!
Lapsed mängivad turvaliselt looduskaunis pargis ja talletavad imelisi lapsepõlve mälestusi - See on kodu!
Kiire ja mugav rongiliiklus loob efektiivse ja täiendava transpordiühenduse kodu ja Tallinna vahel - juurde võidetud stressivaba aeg!
Miks valida Linnuse tee 5?
Moodne ja energiatõhus elu - Maaküte (energiatõhusad soojuspuuraugud), A-energiaklass, päikesepaneelid ja optiline kaabel, elektriautode laadimispunktid.
Kõrgema standardi järgi loodud kodud - 2,8 m kõrgusega laed, standardist kõrgemad aknad ja uksed, avarad ja valgusküllased ruumid, naturaalsed ja kvaliteetsed viimistlusmaterjalid.
Disain tasakaalus elukeskkonnaga – Projekti inspiratsiooniks on Ying & Yang elufilosoofia – visuaalne ja ruumiline tasakaal elukeskkonna ja looduse vahel
Logistiline mugavus – Koolid ja lasteaiad lähedal, rongiühendus Tallinnaga, parkimiskohad igale korterile.
Keskkonnaga arvestav – säilitatud looduskooslus, keskkonnakeskne planeering, hoolikalt kavandatud haljastus, jalutusteed, rattaruumid.
Tutvu plaanidega, vali oma uus kodu ja alusta uut elu Keilas – looduse keskel, ajaloolise pargi serval!
Oleme Sinu jaoks olemas - võta meiega ühendust!
https://linnusekodud.ee/


















