Sissekolimiseks valmis.
Piirkonda iseloomustab linnalähedane õhkkond, mis on tänaseks kujunenud väga populaarseks paljudele inimestele, mis teiselt poolt pakub piisavalt privaatsust ja turvalisust. Kesklinna lahutab lühike 6 km teekond, linnapiir ühe kilomeetri kaugusel. Läheduses on ka bussipeatused. Lähim suurem ostukeskus Lõunakeskus on kolme kilomeetri kaugusel. Lähedal ka kool ning lasteaed.
Uusarendus jääb kauni ja kõrge kuuseheki taha, mis tagab teile privaatsuse ja rahuliku elukeskkonna.
+ hoone energiaklass on A
+ mugav ja säästlik vesipõrandaküte ruumipõhise temperatuuri reguleerimise võimalusega
+ boksis on oma soojustagastusega ventilatsiooniseade, mis tagab energiasäästlikuma ekspluatatsiooni ning hea ja kvaliteetse sisekliima
+ kolmekordse klaaspaketiga plastikaknad
+ piisaval hulgal elektripistikuid
+ elektrikeris
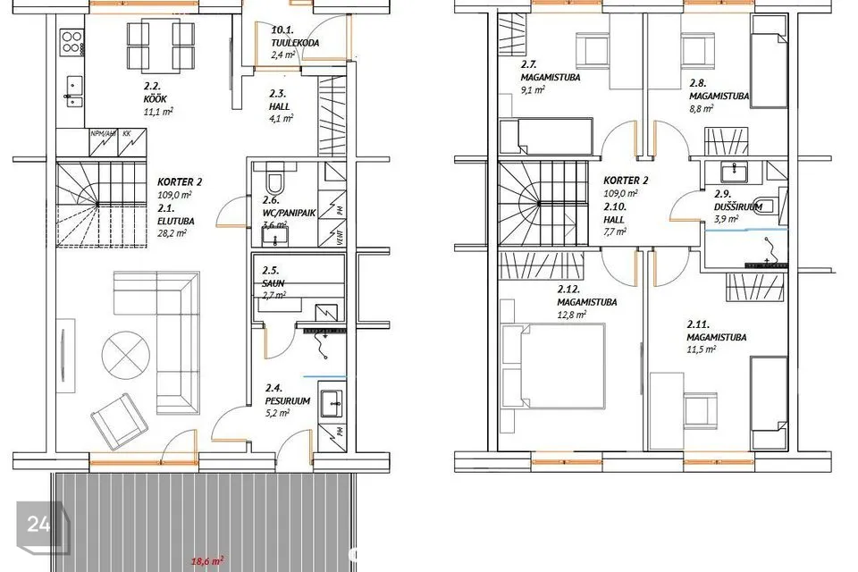
PLANEERING
Korter 2
Müüdava ridaelamuboksi üldpindala koosneb suletud netopinnast 105,4 m2, millele lisandub 22 m2 suurune terrass ja panipaik (3,6 m2) Esimesel korrusel on esik, avar elutuba koos köögiga, sauna eesruum koos dušinurga ja leiliruumiga ning eraldi wc.
Teisel korrusel asuvad neli magamistuba ja vannituba.
Antud ridaelamuboksi juurde kuulub ca 100 m2 suurune muruala.
Ridaelamuboksil on panipaik/tehnoruum maja keskel eraldi sissepääsuga.
Maja ees on sõiduautodele kaks parkimiskohta. Elektriauto laadimise valmidus.
Kortereid on võimalik muuta soovi korral ka 4toalisteks.
TEHNILISED ANDMED
Hoone rajatakse raudbetoonist taldmikul lintvundamentidele.
Vahelaed õõnespaneelidest.
Välisseinad rajatakse monteeritavatest raudbetoonpaneelidest 420mm,
mille soojustuseks on 200mm EPS soojustuskiht.
Siseseinad rajatakse monteeritavatest raudbetoonpaneelidest
Küttelahendusena on kasutatud ökonoomset maakütet.
Ventilatsiooniks kõiki ruume ühendav individuaalne soojustagastusega ventilatsioonisüsteem.
Ridaelamu katusele tuleb oma päikesepark.
SISEVIIMISTLUS
Ridaelamuboksi hind sisaldab lõplikku siseviimistlust. Eluruumi põrandatele paigaldatakse puitparkett, seinad ja laed värvitakse. San. ruumide seinad ja põrandad plaaditakse ning paigaldatakse sanitaartehnika (wc-potid, kraanikausid, dušisegistid) ja välja ehitatakse leiliruum ning paigaldatakse keris.
Broneerimine
Ostjaga sõlmitakse notariaalne võlaõiguslik müügileping, milles lepitakse kokku kõik tehingu detailid. Võlaõigusliku lepingu eelduseks on Ostja poolt tasutud 10% ostu-müügi väärtusest.
Asjaõigusleping
Pärast maja valmimist ja ehitustööde vastuvõtmist kliendi poolt sõlmitakse notariaalne asjaõiguslik ostu-müügileping. Lepingu sõlmimise eelduseks on, et Ostja tasub ülejäänud 90% ostu-müügihinnast, pärast mida läheb korteri omandiõigus üle ostjale. Küsi ka partnerpakkumiste kohta!
Kodu aitab osta Swedbank:
- Pakkumise saamiseks kasuta koodi OBERHAUS ja Teid teenindatakse eelisjärjekorras.
Haldur võtab Teiega ühendust 1 tööpäeva jooksul.
-Swedbanki klientidele hindamisteenus Ober-Hausist soodsamalt.
Lisainfo: swedbank.ee/kodulaen
Pakkumine kehtib, kui ostad kodu Ober-Haus Kinnisvara vahendusel. Kodulaenu pakub Swedbank AS. Tutvuge tingimustega ja pea nõu www.swedbank.ee.
Piirkonda iseloomustab linnalähedane õhkkond, mis on tänaseks kujunenud väga populaarseks paljudele inimestele, mis teiselt poolt pakub piisavalt privaatsust ja turvalisust. Kesklinna lahutab lühike 6 km teekond, linnapiir ühe kilomeetri kaugusel. Läheduses on ka bussipeatused. Lähim suurem ostukeskus Lõunakeskus on kolme kilomeetri kaugusel. Lähedal ka kool ning lasteaed.
Uusarendus jääb kauni ja kõrge kuuseheki taha, mis tagab teile privaatsuse ja rahuliku elukeskkonna.
+ hoone energiaklass on A
+ mugav ja säästlik vesipõrandaküte ruumipõhise temperatuuri reguleerimise võimalusega
+ boksis on oma soojustagastusega ventilatsiooniseade, mis tagab energiasäästlikuma ekspluatatsiooni ning hea ja kvaliteetse sisekliima
+ kolmekordse klaaspaketiga plastikaknad
+ piisaval hulgal elektripistikuid
+ elektrikeris
PLANEERING
Korter 2
Müüdava ridaelamuboksi üldpindala koosneb suletud netopinnast 105,4 m2, millele lisandub 22 m2 suurune terrass ja panipaik (3,6 m2) Esimesel korrusel on esik, avar elutuba koos köögiga, sauna eesruum koos dušinurga ja leiliruumiga ning eraldi wc.
Teisel korrusel asuvad neli magamistuba ja vannituba.
Antud ridaelamuboksi juurde kuulub ca 100 m2 suurune muruala.
Ridaelamuboksil on panipaik/tehnoruum maja keskel eraldi sissepääsuga.
Maja ees on sõiduautodele kaks parkimiskohta. Elektriauto laadimise valmidus.
Kortereid on võimalik muuta soovi korral ka 4toalisteks.
TEHNILISED ANDMED
Hoone rajatakse raudbetoonist taldmikul lintvundamentidele.
Vahelaed õõnespaneelidest.
Välisseinad rajatakse monteeritavatest raudbetoonpaneelidest 420mm,
mille soojustuseks on 200mm EPS soojustuskiht.
Siseseinad rajatakse monteeritavatest raudbetoonpaneelidest
Küttelahendusena on kasutatud ökonoomset maakütet.
Ventilatsiooniks kõiki ruume ühendav individuaalne soojustagastusega ventilatsioonisüsteem.
Ridaelamu katusele tuleb oma päikesepark.
SISEVIIMISTLUS
Ridaelamuboksi hind sisaldab lõplikku siseviimistlust. Eluruumi põrandatele paigaldatakse puitparkett, seinad ja laed värvitakse. San. ruumide seinad ja põrandad plaaditakse ning paigaldatakse sanitaartehnika (wc-potid, kraanikausid, dušisegistid) ja välja ehitatakse leiliruum ning paigaldatakse keris.
Broneerimine
Ostjaga sõlmitakse notariaalne võlaõiguslik müügileping, milles lepitakse kokku kõik tehingu detailid. Võlaõigusliku lepingu eelduseks on Ostja poolt tasutud 10% ostu-müügi väärtusest.
Asjaõigusleping
Pärast maja valmimist ja ehitustööde vastuvõtmist kliendi poolt sõlmitakse notariaalne asjaõiguslik ostu-müügileping. Lepingu sõlmimise eelduseks on, et Ostja tasub ülejäänud 90% ostu-müügihinnast, pärast mida läheb korteri omandiõigus üle ostjale. Küsi ka partnerpakkumiste kohta!
Kodu aitab osta Swedbank:
- Pakkumise saamiseks kasuta koodi OBERHAUS ja Teid teenindatakse eelisjärjekorras.
Haldur võtab Teiega ühendust 1 tööpäeva jooksul.
-Swedbanki klientidele hindamisteenus Ober-Hausist soodsamalt.
Lisainfo: swedbank.ee/kodulaen
Pakkumine kehtib, kui ostad kodu Ober-Haus Kinnisvara vahendusel. Kodulaenu pakub Swedbank AS. Tutvuge tingimustega ja pea nõu www.swedbank.ee.


































