Müüa ridaelamuboks Harku vallas, Vahi teel.
Saadaval boksid: 9-2, 9-4 ja 9-5
Tegemist on kümne korteriomandiga, mis asuvad kahes ridaelamus (Vahi 9 ja Vahi 11).
Korteriomandite suurused on 109.5 m² - 109.9 m². Iga korteriomandi juurde kuuluvad privaatsed kinnistud (646-1596m2).
Ridaelamute projekteerimisel on arvestatud päikese liikumisega, et saaks mõnusalt aega veeta hoovis ja terrassil, ning korralikult läbimõeldud siseplaneering.
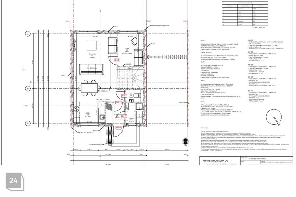
PLANEERING
Esimene korrus -
Esik (3,6 m2), aknaga majapidamisruum/tehnoruum (3,5 m2). Elutuba, avatud köögiga (41,1 m2), pääsuga terrassile, kabinett (7,8 m2) ja tualettruum (1,8 m2).
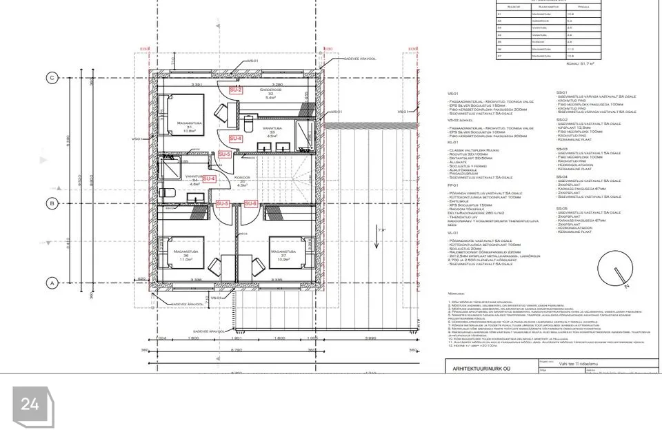
Teine korrus -
Kolm magamistuba, suuremal magamistoal on oma privaatne vannituba ja wc-ga ning aknaga walk-in garderoob (10,8 m2 + 4,5 m2 ja 5,4 m2). Kahe väiksema magamistoa (11 m2 ja 10,9 m2) kõrval asub teine vannituba koos wc-ga. (4,6 m2).
MAJA
Kütteallikaks on õhk-vesiküte (vesipõrandakütte lahendus). Kõikides ruumides võimalus eraldi reguleerida temperatuuri ja ventilatsiooni digitaalse juhtpuldiga. Igal korteriomandil on eraldiseisev soojustagastusega sundventilatsioon, mis aitab kokku hoida küttekuludelt. Ehituses kasutatud kõrgekvaliteetsed ehitus- ja siseviimistlusmaterjale. Kogu hoones kasutatakse ainult energiasäästlikke LED-valgusteid. Kvaliteetsed kolmekordsed puitalumiinium pakettaknad. Põrandaid katab naturaalne puitparkett ning seinad on värvitud. Köögi põrand ja vannitubade-tualettide põrandad ja seinad on plaaditud.
Müügihind sisaldab ka santehnikat.
Hoovialad koos terassidega asuvad lõunapoolsel küljel.
EHITUSINFO
Seinad - 200fiboMP5 + soojustusena 200mm EPS60 soojustusplaat, väljast krohvitud.
Vahelagi ja katuslagi raudbetoon paneelid.
Katusekatteks on plekk.
Igal boksil on autovarjualune, parkimiskoht maja ees.
Elektriauto laadimise ja päikesepaneelid lisatasu eest (saades boksile A-klassi).
ASUKOHT
Suuremad keskused, nagu Tallinn ja Keila, jäävad ligikaudu 15 km ja Tabasalu kõigest 10 km kaugusele. Läheduses paiknevad kaunid mererannad (Vääna-Jõesuu ja Meremõisa), Keila Joa mõis ja RMK maastikukaitseala. Kuueklassiline Vääna mõisakool ja seltsimaja.
Olemas kehtiv hindamisakt!
Kui oled linnakärast väsinud, tule ridaelamuid vaatama!
Helista, küsi lisa ja lähme vaatama!


















