Looduskaunis ja privaatses asukohas, hinnatud Rannamõisa piirkonnas üürile anda luksuslik eramu. Kaunis kõrghaljastusega kinnistu, mida ümbritseb Merepiiga männik. 800 m kaugusel liivarannaga ujumiskoht. Läbimõeldud ja kaasaegsed lahendused. Maja antakse üürile ilma mööblita.
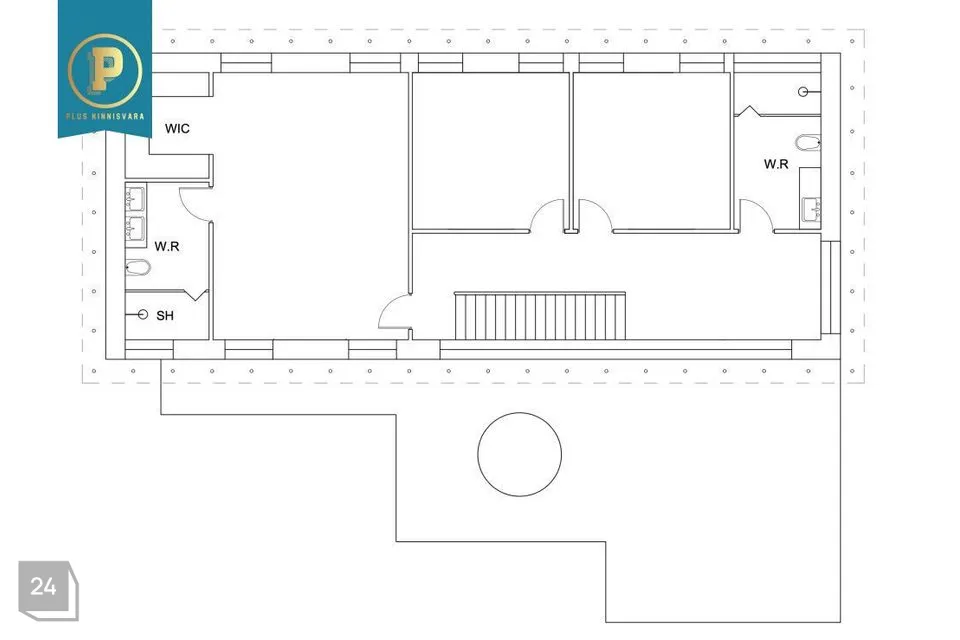
PLANEERING
Maja üldpind on 275 m2, millele lisandub terrass 100 m2. Eramu on läbimõeldud planeeringuga, avar ja valgusküllane. Osades ruumides (avatud köögiga elutuba, esik, saunaala, dušuruum, kontor) on lagede kõrgus 3,1 m ning teistes 2,8 m. Tänu suurtele akendele on palju loomulikku valgust.
Esimese korruse koosseisu kuuluvad esik, koridor, avatud köögiga elutuba, majapidamisruum, tehnoruum, kontor, käbilaega saun, hubane sauna eesruum, duširuum ja tualett. Teisele korrusele viib klaaspaneelidest piirete ja LED-valgustusega trepp. Teisel korrusel on suurte klaaspindadega esik, maast laeni akendega master-bedroom walk-in garderoobi ja vannitoaga (vanniga), 2 magamistuba ja vannituba.
SISEVIIMISTLUS
Siseviimistluses ja sisustuses on kasutatud vaid kõige kvaliteetsemaid materjale. Tubade põrandaid katab väga hinnaline õlitatud tammeparkett. Köögi, esiku, majapidamisruumi, tehnoruumi ja märgade ruumide põrandad on kaetud kõrgkvaliteetsete plaatidega (Freespace, Freemont, ToBe Portoro). Suurema hubasuse jaoks on kasutatud ka puitu – osaliselt süvistatud köögilagi on puidust; elutoa seinad on osaliselt kaetud puitpaneelidega, kuhu on paigaldatud evoOLED 65“ parima pildikvaliteediga TV; ning sauna eesruumi seinad on samuti osaliselt puitpaneelidega kaetud.
SISUSTUS JA TEHNIKA
Köögimööbli tootjaks on Arens ning tehnika Electrolux, Bosch ja Nikolatesla switch. Magamistubades on sisseehitatud maast laeni garderoobikapid. Esiku mööbel on tammespooniga kaetud puidust, mille on valmistanud meie kohalikud tootjad. Majapidamisruum on varustatud integreeritud mööbliga, kus on pesumasin ja kuivati. Santehnika on Villeroy&Boch, Paffoni ja Viega sortimendist ning vannitoa mööbel on toodetud käsitööna Eesti mööblivalmistaja poolt. Saunas on Eestimaine parimat saunaelamust pakkuv Saunum Premium klassi saunakeris.
KOMMUNIKATSIOONID JA TEHNILISED LAHENDUSED
Kõik lahendused on väga läbimõeldud ja kaasaegsed. Küttelahendusena on kasutatud Daikini ökonoomset õhk-vesi soojuspumpa. Kõikides tubades on põrandaküte ning iga toa temperatuur eraldi juhitav seinal oleva digitaalse juhtpuldiga. Lisaks on soojustagastusega Vallox ventilatsioonisüsteem, mis tagab hea sisekliima ning aitab kokku hoida küttekuludelt. Kõik see kokku tagab maksimaalse ökonoomsuse. Olemas ka suitsuandurite süsteem ning Paradox valveseadmed.
Kogu majas on läbimõeldud valguslahendused, mis pakuvad võimalusi igale maitsele ja meeleolule – süvistatud valgustid, LED valgusribad, rippvalgustid, garniisi valgustid ning integreeritud valgustid. Samuti on kogu majja ning ka terrassile paigaldatud integreeritud muusikasüsteem. Kõiki ruume saab kasutada samaaegselt ning soovi korral lasta eri muusikat.
KINNISTU
Kinnistu suurus on 1000 m2, kuid kuna kinnistut ümbritseb valla kaitsealune maa, siis sinna uusi elamuid ei tule. See tagab mõnusa privaatse elukeskkonna. Kinnistu ümbrus on tõeliselt roheline, kõrghaljastusega ja looduslik.
ASUKOHT JA ÜMBRUS
Eramu asub kõrgelt hinnatud, rahulikus ja looduskaunis, Rannamõisa piirkonnas. Tabasalu 2 km kaugusel, kus olemas perearstikeskus, kool, toidukauplused ning erinevad söögikohad. 300 m kaugusel lasteaed ning ühistranspordipeatus. Liivarannaga ujumiskoht 800 m kaugusel. Maja juurest algavad ka terviserajad ning kergliiklusteed, mis viivad läbi Haabersti Piritani või teisele poole Laulasmaani. Rannamõisa maastikukaitseala jalutuskäigu kaugusel.
LEPINGU TINGIMUSED
Lepingu sõlmides tuleb tasuda esimese kuu üür ettemaksuna, deposiit ühe kuu üüri summas ning maaklertasu ühe kuu üüri ulatuses, millele lisandub km.
Pakutava koduga tutvumiseks ja lisainformatsiooni saamiseks palun võtke meiega ühendust.
Plus Kinnisvarabüroo on butiikstiilis kinnisvarabüroo neile, kes hindavad personaalset lähenemist.
Plus Kinnisvarabüroo keskendub kvaliteedile, mitte kvantiteedile. Iga klient on meie jaoks tähtis ning töötame oma kliendi maksimaalse heaolu nimel!
Teenused, mida pakume:
Elamispindade müük, üürimine ja haldamine
Äripindade müük ja üürimine
Arendusprojektide müük
Investeerimisobjektide müük
Kinnisvara hinnastamine
Kinnisvara ostuesindus
Kinnisvara müügiks ettevalmistamine
Omame kontakte kõikides Eesti pankades ja läbi meie ostes saate laenulepingu soodustust, kiiremat teenindust ning professionaalset abi!
Rohkem infot meist ja meie teenustest / inimestest: www.plus.ee
PLANEERING
Maja üldpind on 275 m2, millele lisandub terrass 100 m2. Eramu on läbimõeldud planeeringuga, avar ja valgusküllane. Osades ruumides (avatud köögiga elutuba, esik, saunaala, dušuruum, kontor) on lagede kõrgus 3,1 m ning teistes 2,8 m. Tänu suurtele akendele on palju loomulikku valgust.
Esimese korruse koosseisu kuuluvad esik, koridor, avatud köögiga elutuba, majapidamisruum, tehnoruum, kontor, käbilaega saun, hubane sauna eesruum, duširuum ja tualett. Teisele korrusele viib klaaspaneelidest piirete ja LED-valgustusega trepp. Teisel korrusel on suurte klaaspindadega esik, maast laeni akendega master-bedroom walk-in garderoobi ja vannitoaga (vanniga), 2 magamistuba ja vannituba.
SISEVIIMISTLUS
Siseviimistluses ja sisustuses on kasutatud vaid kõige kvaliteetsemaid materjale. Tubade põrandaid katab väga hinnaline õlitatud tammeparkett. Köögi, esiku, majapidamisruumi, tehnoruumi ja märgade ruumide põrandad on kaetud kõrgkvaliteetsete plaatidega (Freespace, Freemont, ToBe Portoro). Suurema hubasuse jaoks on kasutatud ka puitu – osaliselt süvistatud köögilagi on puidust; elutoa seinad on osaliselt kaetud puitpaneelidega, kuhu on paigaldatud evoOLED 65“ parima pildikvaliteediga TV; ning sauna eesruumi seinad on samuti osaliselt puitpaneelidega kaetud.
SISUSTUS JA TEHNIKA
Köögimööbli tootjaks on Arens ning tehnika Electrolux, Bosch ja Nikolatesla switch. Magamistubades on sisseehitatud maast laeni garderoobikapid. Esiku mööbel on tammespooniga kaetud puidust, mille on valmistanud meie kohalikud tootjad. Majapidamisruum on varustatud integreeritud mööbliga, kus on pesumasin ja kuivati. Santehnika on Villeroy&Boch, Paffoni ja Viega sortimendist ning vannitoa mööbel on toodetud käsitööna Eesti mööblivalmistaja poolt. Saunas on Eestimaine parimat saunaelamust pakkuv Saunum Premium klassi saunakeris.
KOMMUNIKATSIOONID JA TEHNILISED LAHENDUSED
Kõik lahendused on väga läbimõeldud ja kaasaegsed. Küttelahendusena on kasutatud Daikini ökonoomset õhk-vesi soojuspumpa. Kõikides tubades on põrandaküte ning iga toa temperatuur eraldi juhitav seinal oleva digitaalse juhtpuldiga. Lisaks on soojustagastusega Vallox ventilatsioonisüsteem, mis tagab hea sisekliima ning aitab kokku hoida küttekuludelt. Kõik see kokku tagab maksimaalse ökonoomsuse. Olemas ka suitsuandurite süsteem ning Paradox valveseadmed.
Kogu majas on läbimõeldud valguslahendused, mis pakuvad võimalusi igale maitsele ja meeleolule – süvistatud valgustid, LED valgusribad, rippvalgustid, garniisi valgustid ning integreeritud valgustid. Samuti on kogu majja ning ka terrassile paigaldatud integreeritud muusikasüsteem. Kõiki ruume saab kasutada samaaegselt ning soovi korral lasta eri muusikat.
KINNISTU
Kinnistu suurus on 1000 m2, kuid kuna kinnistut ümbritseb valla kaitsealune maa, siis sinna uusi elamuid ei tule. See tagab mõnusa privaatse elukeskkonna. Kinnistu ümbrus on tõeliselt roheline, kõrghaljastusega ja looduslik.
ASUKOHT JA ÜMBRUS
Eramu asub kõrgelt hinnatud, rahulikus ja looduskaunis, Rannamõisa piirkonnas. Tabasalu 2 km kaugusel, kus olemas perearstikeskus, kool, toidukauplused ning erinevad söögikohad. 300 m kaugusel lasteaed ning ühistranspordipeatus. Liivarannaga ujumiskoht 800 m kaugusel. Maja juurest algavad ka terviserajad ning kergliiklusteed, mis viivad läbi Haabersti Piritani või teisele poole Laulasmaani. Rannamõisa maastikukaitseala jalutuskäigu kaugusel.
LEPINGU TINGIMUSED
Lepingu sõlmides tuleb tasuda esimese kuu üür ettemaksuna, deposiit ühe kuu üüri summas ning maaklertasu ühe kuu üüri ulatuses, millele lisandub km.
Pakutava koduga tutvumiseks ja lisainformatsiooni saamiseks palun võtke meiega ühendust.
Plus Kinnisvarabüroo on butiikstiilis kinnisvarabüroo neile, kes hindavad personaalset lähenemist.
Plus Kinnisvarabüroo keskendub kvaliteedile, mitte kvantiteedile. Iga klient on meie jaoks tähtis ning töötame oma kliendi maksimaalse heaolu nimel!
Teenused, mida pakume:
Elamispindade müük, üürimine ja haldamine
Äripindade müük ja üürimine
Arendusprojektide müük
Investeerimisobjektide müük
Kinnisvara hinnastamine
Kinnisvara ostuesindus
Kinnisvara müügiks ettevalmistamine
Omame kontakte kõikides Eesti pankades ja läbi meie ostes saate laenulepingu soodustust, kiiremat teenindust ning professionaalset abi!
Rohkem infot meist ja meie teenustest / inimestest: www.plus.ee










































































