Anda üürile kvaliteetne, kõrgete lagede ja suurte akendega, eramu suurel (2728 m2) kinnistul! Mõnusa päikesepoolse terrassiga ja 800 m kaugusel merest. Pakutav kodu on osaliselt möbleeritud ning antakse üürile koos pildil nähtava sisustusega. Lisaks on koridori paigaldatud suur riidekapp. Hästi käituvad koerad on teretulnud.
PLANEERING JA SISEVIIMISTLUS
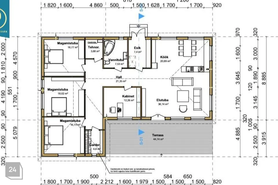
Tänu suurtele akendele ning kõrgetele lagedele (3m) on maja mõnusalt avar valgusküllane. Maja koosseisu kuuluvad 3 magamistuba, kontoriruum (või vajadusel neljas magamistuba), suur ja avar T kujuline koridor, garderoob/panipaik, tehnoruum, esik, suur vannituba, elutuba avatud köögiga.
Siseviimistluses on kasutatud kvaliteetseid materjale. Seinad on värvitud heledates toonides, tubade põrandad on kaetud naturaalse parketiga. Aknalauad täispuidust. Pesuruumi ja koridori põrand on plaaditud.
Köögis on kõrgekvaliteetne mööbel koos Electrolux köögitehnika (integreeritud külmik, ahi, induktsioonpliit, lai nõudepesumasin, mikrolaineahi) ja Franke sanitaartehnikaga.
Kogu valgustus on LED-tuledel, mis hoiab püsikulud madalal.
KÜTTESÜSTEEM JA KOMMUNIKATSIOONID
Soojusallikaks on ökonoomne gaasikatel "Wiessmann“, mis toodab ka kogu maja sooja tarbevee. Kõikides tubades on põrandaküte ja temperatuuri saab reguleerida kõikides ruumides eraldi. Küttekulu talveperioodil on jäänud suurusjärku 150-175€.
Maja valvab "Eldes" nutikas valvesüsteem, millega saab lisaks juhtida ka kõiki nutimajale omaseid seadmeid. Süsteemi saab juhtida lisaks juhtpaneelile ka läbi mobiiliäpi. Lisaks on võimalik juhtida ka kõikvõimalikku kodutehnikat. Näiteks kodust lahkudes sisse unustatud pliidi vool välja lülitada jne.
Igasse tuppa on paigaldatud suitsuandurid ning tehnoruumis on paigaldatud gaasiseadmele väljalülitusklapp, mis gaasilekke korral lülitab kinni gaasikraani. Lisaks on paigaldatud vingukaasi -ja maagaasiandurid. Sellega on tagatud täielik kindlustunne. Olemas valguskaabel.
LEPINGUTINGIMUSED
Lepingu sõlmides tuleb tasuda esimese kuu üür ettemaksuna, deposiit ühe kuu üüri ulatuses ja maaklertasu ühe kuu üüri summas, millele lisandub km.
ASUKOHT JA ÜMBRUS
Kinnistu asub rahulikul tupiktänaval. Maja ja sõidutee vahelisele alale on suurema privaatsuse jaoks istutatud elupuuhekk. Ümbruses uued teed ja eramud. Meri u 800 m kaugusel. Nii Muraste kui ka Tabasalu jalutuskäigu või mõneminutise autosõidu kaugusel. Murastes olemas kauplus, pood, söögikoht, kool lasteaed. Tabasalus spordikompleks, erinevad poed, söögikohad, kool ja lasteaed. Läheduses ka Tilgu sadam/liivarand. Ühistranspordipeatud vähem kui 200 m kaugusel. Maja juurest viib ka korralik kergliiklustee Rocca al Maresse või Laulasmaale.
Plus Kinnisvarabüroo on butiikstiilis kinnisvarabüroo neile, kes hindavad personaalset lähenemist.
Plus Kinnisvarabüroo keskendub kvaliteedile, mitte kvantiteedile. Iga klient on meie jaoks tähtis ning töötame oma kliendi maksimaalse heaolu nimel!
Teenused, mida pakume:
Elamispindade müük, üürimine ja haldamine
Äripindade müük ja üürimine
Arendusprojektide müük
Investeerimisobjektide müük
Kinnisvara hinnastamine
Kinnisvara ostuesindus
Kinnisvara müügiks ettevalmistamine
Omame kontakte kõikides Eesti pankades ja läbi meie ostes saate laenulepingu soodustust, kiiremat teenindust ning professionaalset abi!
Rohkem infot meist ja meie teenustest / inimestest: www.plus.ee
PLANEERING JA SISEVIIMISTLUS
Tänu suurtele akendele ning kõrgetele lagedele (3m) on maja mõnusalt avar valgusküllane. Maja koosseisu kuuluvad 3 magamistuba, kontoriruum (või vajadusel neljas magamistuba), suur ja avar T kujuline koridor, garderoob/panipaik, tehnoruum, esik, suur vannituba, elutuba avatud köögiga.
Siseviimistluses on kasutatud kvaliteetseid materjale. Seinad on värvitud heledates toonides, tubade põrandad on kaetud naturaalse parketiga. Aknalauad täispuidust. Pesuruumi ja koridori põrand on plaaditud.
Köögis on kõrgekvaliteetne mööbel koos Electrolux köögitehnika (integreeritud külmik, ahi, induktsioonpliit, lai nõudepesumasin, mikrolaineahi) ja Franke sanitaartehnikaga.
Kogu valgustus on LED-tuledel, mis hoiab püsikulud madalal.
KÜTTESÜSTEEM JA KOMMUNIKATSIOONID
Soojusallikaks on ökonoomne gaasikatel "Wiessmann“, mis toodab ka kogu maja sooja tarbevee. Kõikides tubades on põrandaküte ja temperatuuri saab reguleerida kõikides ruumides eraldi. Küttekulu talveperioodil on jäänud suurusjärku 150-175€.
Maja valvab "Eldes" nutikas valvesüsteem, millega saab lisaks juhtida ka kõiki nutimajale omaseid seadmeid. Süsteemi saab juhtida lisaks juhtpaneelile ka läbi mobiiliäpi. Lisaks on võimalik juhtida ka kõikvõimalikku kodutehnikat. Näiteks kodust lahkudes sisse unustatud pliidi vool välja lülitada jne.
Igasse tuppa on paigaldatud suitsuandurid ning tehnoruumis on paigaldatud gaasiseadmele väljalülitusklapp, mis gaasilekke korral lülitab kinni gaasikraani. Lisaks on paigaldatud vingukaasi -ja maagaasiandurid. Sellega on tagatud täielik kindlustunne. Olemas valguskaabel.
LEPINGUTINGIMUSED
Lepingu sõlmides tuleb tasuda esimese kuu üür ettemaksuna, deposiit ühe kuu üüri ulatuses ja maaklertasu ühe kuu üüri summas, millele lisandub km.
ASUKOHT JA ÜMBRUS
Kinnistu asub rahulikul tupiktänaval. Maja ja sõidutee vahelisele alale on suurema privaatsuse jaoks istutatud elupuuhekk. Ümbruses uued teed ja eramud. Meri u 800 m kaugusel. Nii Muraste kui ka Tabasalu jalutuskäigu või mõneminutise autosõidu kaugusel. Murastes olemas kauplus, pood, söögikoht, kool lasteaed. Tabasalus spordikompleks, erinevad poed, söögikohad, kool ja lasteaed. Läheduses ka Tilgu sadam/liivarand. Ühistranspordipeatud vähem kui 200 m kaugusel. Maja juurest viib ka korralik kergliiklustee Rocca al Maresse või Laulasmaale.
Plus Kinnisvarabüroo on butiikstiilis kinnisvarabüroo neile, kes hindavad personaalset lähenemist.
Plus Kinnisvarabüroo keskendub kvaliteedile, mitte kvantiteedile. Iga klient on meie jaoks tähtis ning töötame oma kliendi maksimaalse heaolu nimel!
Teenused, mida pakume:
Elamispindade müük, üürimine ja haldamine
Äripindade müük ja üürimine
Arendusprojektide müük
Investeerimisobjektide müük
Kinnisvara hinnastamine
Kinnisvara ostuesindus
Kinnisvara müügiks ettevalmistamine
Omame kontakte kõikides Eesti pankades ja läbi meie ostes saate laenulepingu soodustust, kiiremat teenindust ning professionaalset abi!
Rohkem infot meist ja meie teenustest / inimestest: www.plus.ee
























































