Kas otsid ideaalset puhkepaika rahulikus ja looduskaunis keskkonnas?
See imearmas suvemajake saunaga ootab uusi omanikke!
Eelised:
* Diivanvoodi
* Saun - küttepuud oleme Teile juba riita ladunud!
* Tünnisaun - ideaalne lisavõimalus nautida kuuma vanni värskes õhus.
* Välikäimla (Kekkilä) eraldiseisev väikehoone (pildil)
* Puurkaev (Balti puurkaev)
* Majas veeühendus
* Autonoomne elektrilahendus (elektrigeneraator)
* Väliterrass (moodulid) + toolid ja laud
* Borrby rand - vaid lühikese jalutuskäigu kaugusel! Täiuslik koht suvisteks ujumisteks ja päikeseloojangu nautimiseks.
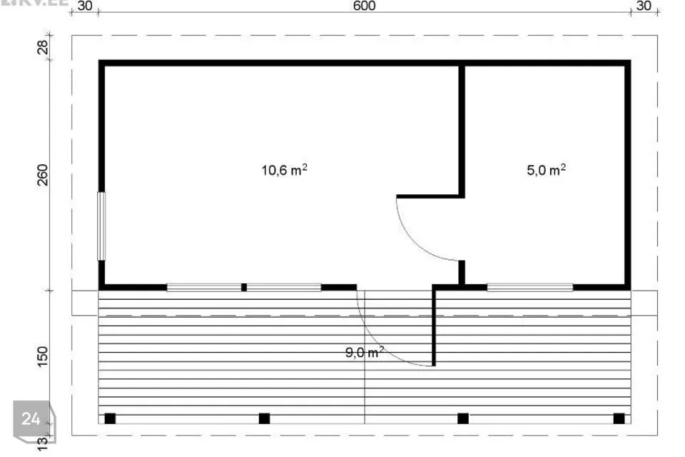
Saunamaja tehniline info:
70 mm seinapaksusega saunamaja
Puitmaterjalina kasutatud 100% põhjamaine kvaliteetne kuusk
Erikuivast liimpuidust (8%-12%) toodetud uksed ja aknad
Saksa tüüpi klaaspaketiga pöördkaldavatavad aknad
Saksa tüüpi klaaspaketiga uks
Karastatud klaasiga liimpuidust leiliruumi uks
Lepapuidust lavakomplekt koos seljataguse ja astumispingiga
28 mm paksusest profiillauast põrand
Veerenn leiliruumi põrandas
Saunamaja on topelt katuselaudisega, võimaldab lisada 50 mm soojustust
Katuse aluskate
Räästa- ja servaplekid 18 mm paksusest profiillauast valmistatud lagi
Katuselaud 18 mm + 18 mm
Kogu maaüksuse suurus on 5224 m².
Juurdepääs avalikult teelt
Ehitusõigusega kinnistu (kui tekib soov suurem hoone hiljem juurde ehitada).
Elektriliitumine: www.imatraelekter.ee
Alajaam ca 370m kaugusel.
Tule ja avasta oma uus suvekodu!
























