Müügile on tulnud unikaalne järveäärne kinnistu Auksi järve kaldal – ruumikas elumaja, saun, väliköök koos maakeldriga, võrkpalliplats ja palju muud!
* Asukoht: Auksi järve kaldal, looduskaunis ja privaatses paigas, 10 km Viljandist Tallinna suunas.
* Elumajaga kinnistu suuruseks on planeeritud ca 1,3 hektarit.
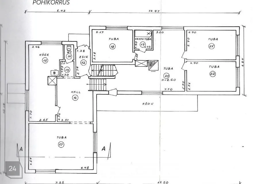
* Elumaja üldpind: 291,5 m²
ELUMAJA – kodu, kus ruumi ja mugavust jagub küllaga:
* 5 avarat magamistuba
* Avatud köögiga söögituba – ideaalne perega koosveetmiseks või külaliste võõrustamiseks.
* Avar elutuba, kust pääsed terrassiukse kaudu otse õuele järvevaadet nautima.
* Hall ja esik
* Igal poolkorrusel eraldi WC – praktiline ja mugav, eriline lisaväärtus suuremale perele.
* Saun ja pesuruum, kus soojendusega pink lisab luksust.
* Vannituba
* Rõdu – koht, kus käia, jällegi, järvevaadet nautimas või lihtsalt loodusesse kiikamas, ammutades energiat koos hommikukohviga.
* Garaaž ja kelder – hoiustamisruum ja funktsionaalsus.
Kommunikatsioonid/Tehnilised lahendused:
* Vesi: salvkaevust pumbaga, toru veetud majja.
* Kanalisatsioon: paigaldatud septik koos imbväljakuga maantee poolsele kinnistu osale.
* Elektriühendus: 3 faasi, peakaitse 25 A (tööstusvool)
* Küte: lokaalne keskküttesüsteem (radiaatorid), kütteallikaks õlikatel. Küttekulu: 3 - 3,5 tonni/kütteperioodi kohta.
* Maja seinad on soojustatud termovahuga (süstitud)
* Pööninglagi on soojustatud puistevillaga (ca 40 cm).
LISAVÕIMALUS – eraldiseisev puhkemaja oma kinnistul! (viimased 6 fotot).
Soovi korral on võimalik osta juurde puhkemaja müüdava kinnistu osana, millel paikneb veel ka väike kämping.
Puhkemaja hind: 155 000 €
Suurepärane võimalus:
* külaliste majutamiseks
* lisaeluruumiks
* majutusettevõtte käivitamiseks (nt Bookingu või Airbnb kaudu).
* Puhkemaja ehitab lõpuni ja kasutusloa taotleb uus omanik! Ehitusluba olemas (19.06.2015).
OLULINE:
Kinnistu, millel hooned paiknevad, on kokku 1,98 hektarit, millest vajadusel moodustatakse eraldi kinnistud:
* Elumajaga kinnistu suuruseks jääb ca 1,33 ha
* Puhkemaja koos kämpinguga ca 6500 m2
See pakkumine sobib ideaalselt:
* Perele, kes hindab ruumi ja looduslähedust.
* Inimestele, kes otsivad püsivat elukohta järve ääres.
* Neile, kes soovivad ühendada elu ja äritegevuse ühes kohas.
Selliseid pakkumisi ei tule tihti, võta ühendust ja tule ise veenduma!
Kinnistut tutvustab teile kinnisvaramaakler-konsultant Viljar Kütt.
UKU VARA objektid: *******
Kinnisvara üüri-, ostu- ja müügiprotsesside juhtimine ja lepingute koostamine. Kinnisvara hindamine koostöös partneritega, kelle eksperthinnanguid aktsepteerivad kõik Eestis tegutsevad pangad.
Uku Vara - Hea koostööga parima tulemuseni!
* Asukoht: Auksi järve kaldal, looduskaunis ja privaatses paigas, 10 km Viljandist Tallinna suunas.
* Elumajaga kinnistu suuruseks on planeeritud ca 1,3 hektarit.
* Elumaja üldpind: 291,5 m²
ELUMAJA – kodu, kus ruumi ja mugavust jagub küllaga:
* 5 avarat magamistuba
* Avatud köögiga söögituba – ideaalne perega koosveetmiseks või külaliste võõrustamiseks.
* Avar elutuba, kust pääsed terrassiukse kaudu otse õuele järvevaadet nautima.
* Hall ja esik
* Igal poolkorrusel eraldi WC – praktiline ja mugav, eriline lisaväärtus suuremale perele.
* Saun ja pesuruum, kus soojendusega pink lisab luksust.
* Vannituba
* Rõdu – koht, kus käia, jällegi, järvevaadet nautimas või lihtsalt loodusesse kiikamas, ammutades energiat koos hommikukohviga.
* Garaaž ja kelder – hoiustamisruum ja funktsionaalsus.
Kommunikatsioonid/Tehnilised lahendused:
* Vesi: salvkaevust pumbaga, toru veetud majja.
* Kanalisatsioon: paigaldatud septik koos imbväljakuga maantee poolsele kinnistu osale.
* Elektriühendus: 3 faasi, peakaitse 25 A (tööstusvool)
* Küte: lokaalne keskküttesüsteem (radiaatorid), kütteallikaks õlikatel. Küttekulu: 3 - 3,5 tonni/kütteperioodi kohta.
* Maja seinad on soojustatud termovahuga (süstitud)
* Pööninglagi on soojustatud puistevillaga (ca 40 cm).
LISAVÕIMALUS – eraldiseisev puhkemaja oma kinnistul! (viimased 6 fotot).
Soovi korral on võimalik osta juurde puhkemaja müüdava kinnistu osana, millel paikneb veel ka väike kämping.
Puhkemaja hind: 155 000 €
Suurepärane võimalus:
* külaliste majutamiseks
* lisaeluruumiks
* majutusettevõtte käivitamiseks (nt Bookingu või Airbnb kaudu).
* Puhkemaja ehitab lõpuni ja kasutusloa taotleb uus omanik! Ehitusluba olemas (19.06.2015).
OLULINE:
Kinnistu, millel hooned paiknevad, on kokku 1,98 hektarit, millest vajadusel moodustatakse eraldi kinnistud:
* Elumajaga kinnistu suuruseks jääb ca 1,33 ha
* Puhkemaja koos kämpinguga ca 6500 m2
See pakkumine sobib ideaalselt:
* Perele, kes hindab ruumi ja looduslähedust.
* Inimestele, kes otsivad püsivat elukohta järve ääres.
* Neile, kes soovivad ühendada elu ja äritegevuse ühes kohas.
Selliseid pakkumisi ei tule tihti, võta ühendust ja tule ise veenduma!
Kinnistut tutvustab teile kinnisvaramaakler-konsultant Viljar Kütt.
UKU VARA objektid: *******
Kinnisvara üüri-, ostu- ja müügiprotsesside juhtimine ja lepingute koostamine. Kinnisvara hindamine koostöös partneritega, kelle eksperthinnanguid aktsepteerivad kõik Eestis tegutsevad pangad.
Uku Vara - Hea koostööga parima tulemuseni!





















































