Taluhäärber Viljandimaal. Riiska talukompleks asub vaid kahekümneminutilise autosõidu kaugusel Viljandist Kolga-Jaani suunas, Järtsaare külas.
Riiska võlub juba kaugelt möödasõitjaid oma imearmsa Rootsi punase laudise ja valgete pisikeste ruudukestega akendega. Justkui Astrid Lindgreni raamatust!
Selles talukompleksis on säilinud ajalooline taluhäärberi suursugusus ning aja jooksul on sellest kohandatud kõikide mugavuste ja võimalustega elupaik, mis on ideaalne ettevõtlikule perekonnale, kes hindab puhast ja looduslähedast elukeskkonda ja soovib tegeleda ettevõtlusega.
Eramu koos abihoonetega paikneb suurel ja privaatsel maa-alal mäe otsas, mida ümbritseb mahepõllumaa, mets ja turbaraba. Naabrid on täpselt nii kaugel, et end turvaliselt tunda, kuid samas täielikku privaatsust ja vaikust nautida.
Kinnistu suuruseks on 19126 m2.
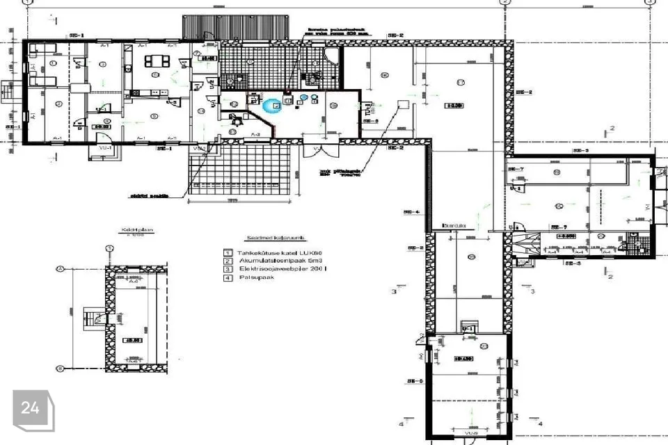
Aastate jooksul on ruumikas rehielamu ja kunagine laut ning töökoda ehitatud kokku ning moodustavad tänaseks ühe suure L-kujulise hoone, kus elamust saab otse läbi tehnoruumi minna töökotta/tootmisruumidesse ja moodsasse kontorisse.
Elamu sisekujunduses on kasutatud heledaid ja rahulikke värvitoone, kvaliteetseid Rootsi tapeete ning lähtutud skandinaavialikust stiilist. Puit, looduslähedus, ja heledad toonid on selle kodu märksõnadeks.
Planeering:
Avar koridor, kuhu jätta üleriided ja jalanõud, esikust paremat kätt jääb valgusküllane kodukontor/külalistetuba. Suure aknaga, vaatega eeshoovile.
Esiku lõpus wc ja pääs maja tehnilistesse ja tööruumidesse.
Koridori lõpust vasakut kätt jääb köök.
Köök on väga ruumikas ja valgusküllane. L-kujulise kvaliteetse köögimööbli ja tehnikaga, kus kappe, sahtleid ja tööpinda on piisavalt, et üheskoos pere ja sõpradega kokata. Köögi keskel
söögilaud, kuhu traditsiooniliselt alati kogu pere koguneb ning mille taha mahub jõulude ajal vabalt kogu suguvõsa istuma ning põrandal jääb ruumi ka veel jalga keerutada.
Köögist toimub jagunemine järgmistesse ruumidesse; paremale jäävad majapidamisruum - sauna eesruum ja nö spaa-ala, kus paikneb massaaživann, dušš, elektrikerisega saun. Sauna eesruumist ka pääs maja taha terrassile.
Ja kui köögist väljuda teises suunas siis jõuame elutuppa, sealt väikesesse vahetuppa ja kahte magamistuppa. Üks magamistuba on ühenduses walk-in garderoobiga. Kõik toad on väga suured ja ruumikad.
Õueala:
Kinnistul paikneb omanäoline maakivist seinaga kasvuhoone, kus kasvavad ülimagusad viinamarjad ja kuumaasikad.
Vana aidaalune on kasutust saanud panipaigana. Vana ait pärineb
1800 lõpuaastatest ning on heas korras.
Maja ees kasvavad kirsid ja murelid, mis kaunistavad vaatevälja juba kevadel oma õieiluga.
Maja taha jääb privaatsem ala, kus kasvavad marjapõõsad, ploomipuud ja asub õhtupäikesega terrassiala.
Kogu aed on maitsekalt kujundatud ning väga hästi hooldatud. Aias on mitmed lillepeenrad ja kaunilt kujundatud okaspuud.
Aed on pälvinud ka Kodu Kauniks Aasta Aia tiitli.
Vesi-ja kanal on lokaalsed. Maja sooja tagab suur keskküttekatel, mida köetakse puudega.
Elamus on radiaatorid , sauna- ja tualettruumides põrandaküte (keskkütte pealt).
Elekter: 3*25 amprit.
Paigaldatud on valvesignalisatsioon.
4 km kaugusel asulakeskuses asub Kolga-Jaani Kool ning suvel avatakse värskelt renoveeritud maailma armsaim ja toredaim lasteaed.
Kolga-Jaanis on viimastel aastatel hoo sisse saanud
kultuuri- ja seltsielu ning üha enam noori on siia piirkonda elama asunud. Eriti palju on asjalikke ja ettevõtlikke noori peresid kolinud just Järtsaare piirkonda.
Selles ajaloolises häärberis on kõik olemas ja valmis! Tule ja asu sedalaadi elu nautima!
Võimalik jälgida ka instagramis, selle kodu lugusid!
Instagaramis leitav https://www.instagram.com/rootsipunane/
Pakub huvi, võta ühendust
Laura Barbo
***@***.ee
JAGA MINU KONTAKTI KÕIGILE, KES VAJAVAD KINNISVARANÕU!
- - - - - - - - - -
Telli hindamine UUS MAA Kinnisvarabüroolt ***@***.ee
ning saad:
- Eksperthinnangu kuni 20% soodsamalt kui võtad koduga seotud laenu Swedbankist
- Pankadest parimad kodulaenutingimused
- Kiire, kvaliteetse ning usaldusväärse hindamisteenuse Eestis
UUS MAA KINNISVARABÜROO EKSPERTHINNANGUID AKTSEPTEERIVAD KÕIK FINANTSASUTUSED.
- - - - - - - - - -
Liitu Uus Maa uudiskirjaga ja saa homset kinnisvarainfot juba täna!
https://www.uusmaa.ee/uudiskirjagaliitumine/
- - - - - - - - - -
Kodu aitab osta Swedbank.
Pakkumise saamiseks kasuta koodi UUSMAA ja Sind teenindatakse eelisjärjekorras.
Võtame ühendust 1 tööpäeva jooksul.
Uus Maa kliendile soodsam lepingutasu. Küsi täpsemat infot maaklerilt.
Finantsteenuseid pakub Swedbank AS. Tutvu tingimustega, pea nõu.
Riiska võlub juba kaugelt möödasõitjaid oma imearmsa Rootsi punase laudise ja valgete pisikeste ruudukestega akendega. Justkui Astrid Lindgreni raamatust!
Selles talukompleksis on säilinud ajalooline taluhäärberi suursugusus ning aja jooksul on sellest kohandatud kõikide mugavuste ja võimalustega elupaik, mis on ideaalne ettevõtlikule perekonnale, kes hindab puhast ja looduslähedast elukeskkonda ja soovib tegeleda ettevõtlusega.
Eramu koos abihoonetega paikneb suurel ja privaatsel maa-alal mäe otsas, mida ümbritseb mahepõllumaa, mets ja turbaraba. Naabrid on täpselt nii kaugel, et end turvaliselt tunda, kuid samas täielikku privaatsust ja vaikust nautida.
Kinnistu suuruseks on 19126 m2.
Aastate jooksul on ruumikas rehielamu ja kunagine laut ning töökoda ehitatud kokku ning moodustavad tänaseks ühe suure L-kujulise hoone, kus elamust saab otse läbi tehnoruumi minna töökotta/tootmisruumidesse ja moodsasse kontorisse.
Elamu sisekujunduses on kasutatud heledaid ja rahulikke värvitoone, kvaliteetseid Rootsi tapeete ning lähtutud skandinaavialikust stiilist. Puit, looduslähedus, ja heledad toonid on selle kodu märksõnadeks.
Planeering:
Avar koridor, kuhu jätta üleriided ja jalanõud, esikust paremat kätt jääb valgusküllane kodukontor/külalistetuba. Suure aknaga, vaatega eeshoovile.
Esiku lõpus wc ja pääs maja tehnilistesse ja tööruumidesse.
Koridori lõpust vasakut kätt jääb köök.
Köök on väga ruumikas ja valgusküllane. L-kujulise kvaliteetse köögimööbli ja tehnikaga, kus kappe, sahtleid ja tööpinda on piisavalt, et üheskoos pere ja sõpradega kokata. Köögi keskel
söögilaud, kuhu traditsiooniliselt alati kogu pere koguneb ning mille taha mahub jõulude ajal vabalt kogu suguvõsa istuma ning põrandal jääb ruumi ka veel jalga keerutada.
Köögist toimub jagunemine järgmistesse ruumidesse; paremale jäävad majapidamisruum - sauna eesruum ja nö spaa-ala, kus paikneb massaaživann, dušš, elektrikerisega saun. Sauna eesruumist ka pääs maja taha terrassile.
Ja kui köögist väljuda teises suunas siis jõuame elutuppa, sealt väikesesse vahetuppa ja kahte magamistuppa. Üks magamistuba on ühenduses walk-in garderoobiga. Kõik toad on väga suured ja ruumikad.
Õueala:
Kinnistul paikneb omanäoline maakivist seinaga kasvuhoone, kus kasvavad ülimagusad viinamarjad ja kuumaasikad.
Vana aidaalune on kasutust saanud panipaigana. Vana ait pärineb
1800 lõpuaastatest ning on heas korras.
Maja ees kasvavad kirsid ja murelid, mis kaunistavad vaatevälja juba kevadel oma õieiluga.
Maja taha jääb privaatsem ala, kus kasvavad marjapõõsad, ploomipuud ja asub õhtupäikesega terrassiala.
Kogu aed on maitsekalt kujundatud ning väga hästi hooldatud. Aias on mitmed lillepeenrad ja kaunilt kujundatud okaspuud.
Aed on pälvinud ka Kodu Kauniks Aasta Aia tiitli.
Vesi-ja kanal on lokaalsed. Maja sooja tagab suur keskküttekatel, mida köetakse puudega.
Elamus on radiaatorid , sauna- ja tualettruumides põrandaküte (keskkütte pealt).
Elekter: 3*25 amprit.
Paigaldatud on valvesignalisatsioon.
4 km kaugusel asulakeskuses asub Kolga-Jaani Kool ning suvel avatakse värskelt renoveeritud maailma armsaim ja toredaim lasteaed.
Kolga-Jaanis on viimastel aastatel hoo sisse saanud
kultuuri- ja seltsielu ning üha enam noori on siia piirkonda elama asunud. Eriti palju on asjalikke ja ettevõtlikke noori peresid kolinud just Järtsaare piirkonda.
Selles ajaloolises häärberis on kõik olemas ja valmis! Tule ja asu sedalaadi elu nautima!
Võimalik jälgida ka instagramis, selle kodu lugusid!
Instagaramis leitav https://www.instagram.com/rootsipunane/
Pakub huvi, võta ühendust
Laura Barbo
***@***.ee
JAGA MINU KONTAKTI KÕIGILE, KES VAJAVAD KINNISVARANÕU!
- - - - - - - - - -
Telli hindamine UUS MAA Kinnisvarabüroolt ***@***.ee
ning saad:
- Eksperthinnangu kuni 20% soodsamalt kui võtad koduga seotud laenu Swedbankist
- Pankadest parimad kodulaenutingimused
- Kiire, kvaliteetse ning usaldusväärse hindamisteenuse Eestis
UUS MAA KINNISVARABÜROO EKSPERTHINNANGUID AKTSEPTEERIVAD KÕIK FINANTSASUTUSED.
- - - - - - - - - -
Liitu Uus Maa uudiskirjaga ja saa homset kinnisvarainfot juba täna!
https://www.uusmaa.ee/uudiskirjagaliitumine/
- - - - - - - - - -
Kodu aitab osta Swedbank.
Pakkumise saamiseks kasuta koodi UUSMAA ja Sind teenindatakse eelisjärjekorras.
Võtame ühendust 1 tööpäeva jooksul.
Uus Maa kliendile soodsam lepingutasu. Küsi täpsemat infot maaklerilt.
Finantsteenuseid pakub Swedbank AS. Tutvu tingimustega, pea nõu.







































































