Müüa kaunis kodu Viljandi külje all. See ongi see linnalähedane elamine, mida sa juba pikalt otsinud oled. Kinnistu asub linnale nii lähedale, et linna võib ka vabalt jala minna. Jakobsoni koolini on vaid 1,8 km.
ELAMU
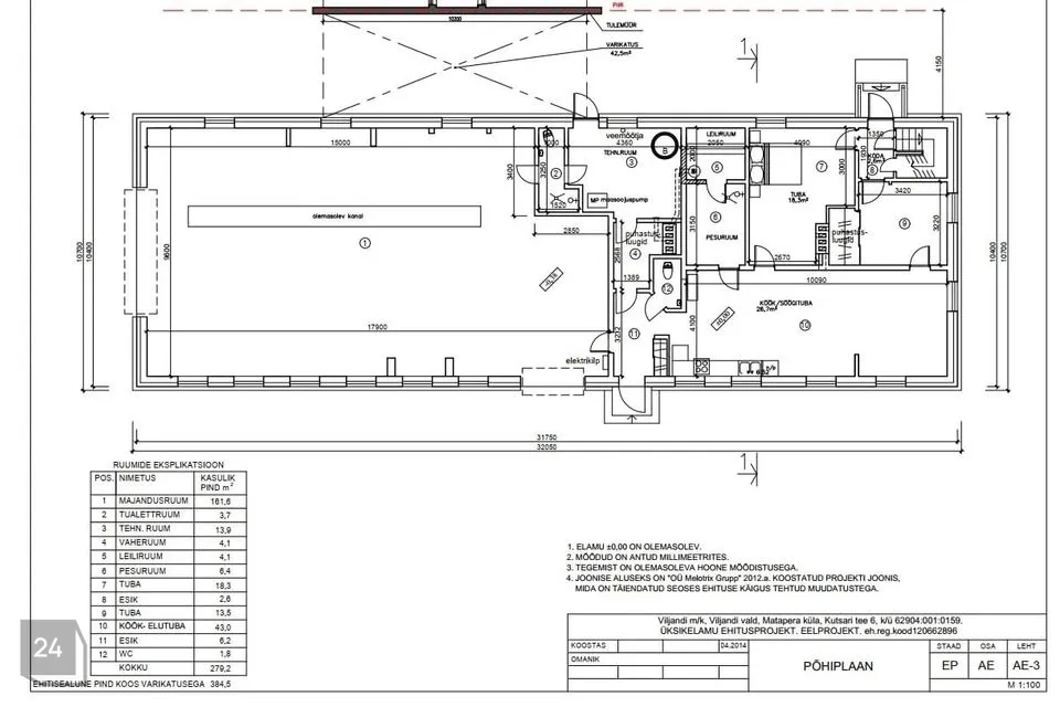
Kinnistul asub renoveeritud palkelamu. Üldpind on kokku 356,9 m². Elamus on põhikorrus ja katusekorrus. Põhikorrusel asub 2 magamistuba, avatud köögiga elutuba, saun, WC, katlaruum, suur garaaž. Põhikorruse üldpind on 279, 2 m², millest garaaž on 161,6 m². Teise korruse pind on 77,7 m²
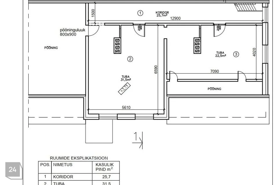
Seinad on soojustatud (tuuletõke + 100 mm kivivill). Samuti on soojustatud vundament ja põrand (200 mm vahtpolüsterool). Katusekate on kivikatus. Katusekorrus on remondijärgus. Paigaldatud on uus põrand. Vahelagi on soojustatud puistevillaga. Teisel korrusel on ruumi kahe toa jaoks.
Majal on kahekordsete klaaspakettidega puitraamidega aknad.
Hinna sees on köögimööbel.
GARAAŽ
Elamu koosseisu kuulub suur ja võimas garaaž. Garaaž on suurusega, mis mahutab 2 suut rekkat. Garaaži mõõdud on 9,6 m laius ja pikem külg 17,9 m pikk, ukse kõrgus 4,2 m. Garaažis on eraldi WC ja duširuum. Kanal on 1,8 m sügav ja 13 m pikk.
Garaažis on kõik ehitatud nii, et seal oleks parimad võimalused autoremondiks ja/või hoolduseks. See on väga hea võimalus autodega tegelejale või huvilisele. Samuti saab seal teha ka mõnda muud tegevust või ettevõtlust. Küte ja elekter on olemas.
TEHNOSÜSTEEMID
Majas on tsentraalne vesi ja kanalisatsioon. Elekter 32A, 3 faasi. Tervet maja kütab maasoojuspump. Vesipõrandakütte torustik on nii eluruumides kui garaažis. Sooja vett saab elektriboileriga.
Maja on väga hästi soojustatud ja soe. Maasoojuspump on väga ökonoomne ja kõrge kasuteguriga. Saunas on puukeris. Elektrikulu talvel, kõige külmemal kuul ca 1700-**** kWh.
Renoveerimise käigus on majale paigaldatud uus katus, uued aknad, uksed, elektrisüsteem ning kogu vee- ja kanalisatsioonitorustik.
Majas on kahetsooniline valvesignalisatsioon.
ÜMBRUS
Maja juures on suur ja avar aed. Kinnistu ühel küljel on naabermaja lähedal. Aed ja hoov jääb teisele poole maja, kus avarust ja privaatsust. Kinnistuni viib kõvakattega tee. Juurdepääs on avalikus kasutuses olevalt teelt. Kinnistu on aiaga piiratud. Puldiga avatav värav.
KOKKUVÕTE
Elamu üp 356,9 m².
Elamu esimene korrus üp 279, 2 m².
Elamu eluruumide pind 1. korrusel ca 100 m².
Majandusruum/garaaž 161,6 m²
Krundi suurus on 6348 m², katastritunnus 62904:001:0159.
Super asukoht - linna lähedal.
Suurepärane ja võimas garaaž, mida on võimalik kasutada ettevõtluseks.
Heas korras ja remonditud hoone.
Teisele korrusele laiendamise võimalus.
Kasutusluba olemas ja hoone vastab projektile.
www.mariokarro.ee
facebook.com/MarioKarroKinnisvaramaakler
Youtube













































