Müüa suurepärase asukohaga elamumaa krunt Viljandi kesklinnas, Leola tn 15c, kuhu on juba rajatud uue üksikelamu konstruktsioon!
See on ideaalne võimalus ostjale, kes soovib alustada ehitusega kohast, kus suur osa tööst on juba tehtud, kvaliteetne vundament, püsti karkass ja paigaldatud katus loovad kindla aluse sinu uue kodu valmimiseks.
Tehtud tööd
Hoonel on juba tehtud suuremahulised tööd ette, mis võimaldavad ehitust koheselt jätkata:
• Betoonpõrand ja vundament on valatud, tugev ja ühtlane alus, mis on valmis järgmisteks ehitusetappideks.
• Paigaldatud on veetorustiku ja kanalisatsiooni ühenduspunktid, kommunikatsioonid on ette valmistatud ning toodud õigesse kohta põrandast välja.
• Püsti on kogu puitkarkass, välisseinad koos akna- ja ukseavadega on olemas ning moodustavad kogu hoone kandekonstruktsiooni.
• Hoonel on aluskattega kaetud katus, mis kaitseb konstruktsioone ilmastiku eest.
• Olemas on maakütte ja õhk-vesi kütte valmidus, mis loob võimaluse energiatõhusaks küttelahenduseks.
Kõik tehtud tööd võimaldavad ostjal jätkata ehitust säästlikult, ajaliselt kiiremini ning kindlal alusel.
Hoone ja ehitusinfo
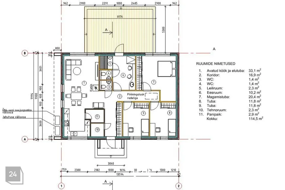
• Projekti järgi on hoonel 3 magamistuba, avatud elutuba-köök, pesuruum saunaga ja kuur.
• Ehitusprojekt ja ehitusluba on olemas, saab kohe jätkata.
• Energiasäästlike küttelahenduste valmidus (maaküte ja õhk-vesi küte).
Kinnistu
• Pindala: 511 m²
• Sihtotstarve: 100% elamumaa
• Katastritunnus: 89701:001:0789
Krunt paikneb Viljandi kesklinnas, kõik vajalik on jalutuskäigu kaugusele. Väga hea valik nii perele, kes hindab mugavat asukohta, kui ka investorile, kes soovib arendada tänapäevast ja energiatõhusat elamut.
Miks see objekt on eriline?
Kesklinna asukoht, kõik vajalik kodu lähedal
Olulised ehitustööd juba tehtud
Projekti ja loaga valmis alustamiseks
Energiasäästlike küttelahenduste valmidus
Võimalus kujundada lõpptulemus täpselt oma maitse järgi
Võta minuga ühendust ja lähme vaatama.
Maarja Lee
***@***.ee
+372 **** 9200
See on ideaalne võimalus ostjale, kes soovib alustada ehitusega kohast, kus suur osa tööst on juba tehtud, kvaliteetne vundament, püsti karkass ja paigaldatud katus loovad kindla aluse sinu uue kodu valmimiseks.
Tehtud tööd
Hoonel on juba tehtud suuremahulised tööd ette, mis võimaldavad ehitust koheselt jätkata:
• Betoonpõrand ja vundament on valatud, tugev ja ühtlane alus, mis on valmis järgmisteks ehitusetappideks.
• Paigaldatud on veetorustiku ja kanalisatsiooni ühenduspunktid, kommunikatsioonid on ette valmistatud ning toodud õigesse kohta põrandast välja.
• Püsti on kogu puitkarkass, välisseinad koos akna- ja ukseavadega on olemas ning moodustavad kogu hoone kandekonstruktsiooni.
• Hoonel on aluskattega kaetud katus, mis kaitseb konstruktsioone ilmastiku eest.
• Olemas on maakütte ja õhk-vesi kütte valmidus, mis loob võimaluse energiatõhusaks küttelahenduseks.
Kõik tehtud tööd võimaldavad ostjal jätkata ehitust säästlikult, ajaliselt kiiremini ning kindlal alusel.
Hoone ja ehitusinfo
• Projekti järgi on hoonel 3 magamistuba, avatud elutuba-köök, pesuruum saunaga ja kuur.
• Ehitusprojekt ja ehitusluba on olemas, saab kohe jätkata.
• Energiasäästlike küttelahenduste valmidus (maaküte ja õhk-vesi küte).
Kinnistu
• Pindala: 511 m²
• Sihtotstarve: 100% elamumaa
• Katastritunnus: 89701:001:0789
Krunt paikneb Viljandi kesklinnas, kõik vajalik on jalutuskäigu kaugusele. Väga hea valik nii perele, kes hindab mugavat asukohta, kui ka investorile, kes soovib arendada tänapäevast ja energiatõhusat elamut.
Miks see objekt on eriline?
Kesklinna asukoht, kõik vajalik kodu lähedal
Olulised ehitustööd juba tehtud
Projekti ja loaga valmis alustamiseks
Energiasäästlike küttelahenduste valmidus
Võimalus kujundada lõpptulemus täpselt oma maitse järgi
Võta minuga ühendust ja lähme vaatama.
Maarja Lee
***@***.ee
+372 **** 9200
Kinnisvara hindamine ja kinnisvara müük Lahe Kinnisvara kutselistelt hindajatelt ja maakleritel, kes on pälvinud klientide kõrge tunnustuse!






















