Tule elama kõige uuemasse elamupiirkonda, Järveotsa elamurajooni.
Maja ehitatud Panelo paneelidest – https://panelo.eu/et/
A-energiaklass – tagab madalad kõrvalkulud ning hea sisekliima aastaringselt.
Integreeritud Roofit Solar päikesepaneelid (6kW) – kaasaegne lahendus, kus katusematerjal on ühtlasi energiatootja.
Jahutussüsteem ja kamin – mõlema olemasolu tagavad mugavuse ja aastaringse heaolu.
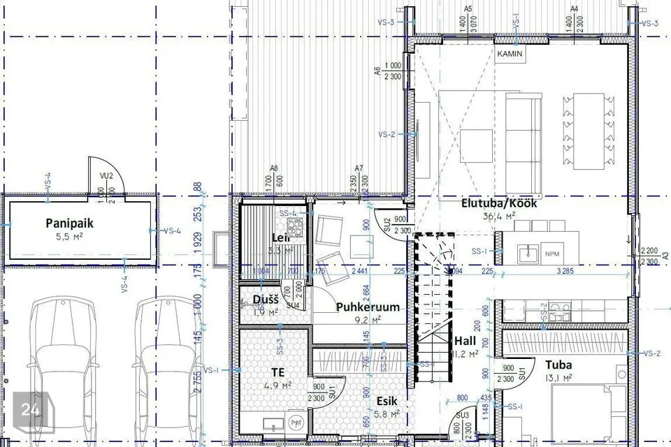
Maja on läbi kahe korruse.
I korrusel asub esik, tehnoruum, magamistuba / kodukontor, avatud ja valgusküllane köök-elutuba, puhkeruum, saun, dušširuum, wc.
II korrusel on trepihall, kaks magamistuba, vannituba ja pääs terrassile.
Projektimuudatus: II korruse vannituppa tuleb katuseakna alla vann ja dušši asukoha peale paigaldatakse tualettpott.
LISAVÄÄRTUSED:
Kahele autole mõeldud varjualune,
tänavakiviga kaetud eeshoov – esteetiline ja hooldusvaba. Automatiseeritud väravad.
SISEVIIMISTLUS:
Märgruumides, tehnoruumides ja esikus keraamiline plaat. Teistes ruumides naturaalne tammeparkett.
II korrusele hakkab viima valgel metallraamil, puidust astemetega trepp, millel on ka klaasist piire.
Sanitaarruumidesse paigaldatakse valamud, segistid, vannid, duššid. Leiliruum ehitatakse valmis, paigaldatakse keris.
Kogu maja on kompaktselt ja läbimõeldult planeeritud – iga ruutmeeter on kasutuses.
ASUKOHT:
Viljandi Järveotsa elamurajoon – kaasaegne ja arenev piirkond.
Viljandi järv ja rohealad vaid jalutuskäigu kaugusel.
Läheduses: lasteaed, kool, toidupood, mööblipood, treeningklubi ja kogu muu taristu.
Kui Sa otsid modernset, energiasäästlikku ja funktsionaalselt planeeritud kodu Viljandis, siis see on pakkumine, millest tasub kinni haarata!
Võta ühendust ja tule tutvuma! Sellest võib saada Sinu kodu!
Laura Barbo
***@***.ee
+372 **** 145
JAGA MINU KONTAKTI KÕIGILE, KES VAJAVAD KINNISVARANÕU!
- - - - - - - - - -
Telli hindamine UUS MAA Kinnisvarabüroolt https://uusmaa.ee/teenused/hindamine/
ning saad:
- Eksperthinnangu kuni 20% soodsamalt kui võtad koduga seotud laenu Swedbankist
- Pankadest parimad kodulaenutingimused
- Kiire, kvaliteetse ning usaldusväärse hindamisteenuse Eestis
UUS MAA KINNISVARABÜROO EKSPERTHINNANGUID AKTSEPTEERIVAD KÕIK FINANTSASUTUSED.
- - - - - - - - - -
Liitu Uus Maa uudiskirjaga ja saa homset kinnisvarainfot juba täna!
https://www.uusmaa.ee/uudiskirjagaliitumine/
- - - - - - - - - -
Kodu aitab osta Swedbank.
Pakkumise saamiseks kasuta koodi UUSMAA ja Sind teenindatakse eelisjärjekorras.
Võtame ühendust 1 tööpäeva jooksul.
Uus Maa kliendile soodsam lepingutasu. Küsi täpsemat infot maaklerilt.
Finantsteenuseid pakub Swedbank AS. Tutvu tingimustega, pea nõu.
Maja ehitatud Panelo paneelidest – https://panelo.eu/et/
A-energiaklass – tagab madalad kõrvalkulud ning hea sisekliima aastaringselt.
Integreeritud Roofit Solar päikesepaneelid (6kW) – kaasaegne lahendus, kus katusematerjal on ühtlasi energiatootja.
Jahutussüsteem ja kamin – mõlema olemasolu tagavad mugavuse ja aastaringse heaolu.
Maja on läbi kahe korruse.
I korrusel asub esik, tehnoruum, magamistuba / kodukontor, avatud ja valgusküllane köök-elutuba, puhkeruum, saun, dušširuum, wc.
II korrusel on trepihall, kaks magamistuba, vannituba ja pääs terrassile.
Projektimuudatus: II korruse vannituppa tuleb katuseakna alla vann ja dušši asukoha peale paigaldatakse tualettpott.
LISAVÄÄRTUSED:
Kahele autole mõeldud varjualune,
tänavakiviga kaetud eeshoov – esteetiline ja hooldusvaba. Automatiseeritud väravad.
SISEVIIMISTLUS:
Märgruumides, tehnoruumides ja esikus keraamiline plaat. Teistes ruumides naturaalne tammeparkett.
II korrusele hakkab viima valgel metallraamil, puidust astemetega trepp, millel on ka klaasist piire.
Sanitaarruumidesse paigaldatakse valamud, segistid, vannid, duššid. Leiliruum ehitatakse valmis, paigaldatakse keris.
Kogu maja on kompaktselt ja läbimõeldult planeeritud – iga ruutmeeter on kasutuses.
ASUKOHT:
Viljandi Järveotsa elamurajoon – kaasaegne ja arenev piirkond.
Viljandi järv ja rohealad vaid jalutuskäigu kaugusel.
Läheduses: lasteaed, kool, toidupood, mööblipood, treeningklubi ja kogu muu taristu.
Kui Sa otsid modernset, energiasäästlikku ja funktsionaalselt planeeritud kodu Viljandis, siis see on pakkumine, millest tasub kinni haarata!
Võta ühendust ja tule tutvuma! Sellest võib saada Sinu kodu!
Laura Barbo
***@***.ee
+372 **** 145
JAGA MINU KONTAKTI KÕIGILE, KES VAJAVAD KINNISVARANÕU!
- - - - - - - - - -
Telli hindamine UUS MAA Kinnisvarabüroolt https://uusmaa.ee/teenused/hindamine/
ning saad:
- Eksperthinnangu kuni 20% soodsamalt kui võtad koduga seotud laenu Swedbankist
- Pankadest parimad kodulaenutingimused
- Kiire, kvaliteetse ning usaldusväärse hindamisteenuse Eestis
UUS MAA KINNISVARABÜROO EKSPERTHINNANGUID AKTSEPTEERIVAD KÕIK FINANTSASUTUSED.
- - - - - - - - - -
Liitu Uus Maa uudiskirjaga ja saa homset kinnisvarainfot juba täna!
https://www.uusmaa.ee/uudiskirjagaliitumine/
- - - - - - - - - -
Kodu aitab osta Swedbank.
Pakkumise saamiseks kasuta koodi UUSMAA ja Sind teenindatakse eelisjärjekorras.
Võtame ühendust 1 tööpäeva jooksul.
Uus Maa kliendile soodsam lepingutasu. Küsi täpsemat infot maaklerilt.
Finantsteenuseid pakub Swedbank AS. Tutvu tingimustega, pea nõu.

















