TULE MINUGA VIDEOTUURILE:
https://youtube.com/shorts/CCTeW9Ie_MY
NB! ANNA TEADA ENDALE SOBIV AEG JA LÄHME KOOS VAATAMA!
Müüa hea asukohaga 2023a täielikult renoveeritud 2-korruseline aiamaja (esmane kasutuselevõtu aasta on 1987) koos sauna, kolme terrassi (maja ees, maja taga ja hoovipoolsel küljel) ja kauni aiaga.
Telia valguskaabel: hetkel on internet üle õhu, kuid peagi jõuab sellele aadressile kiire internetivõrk. Täpsemat infot uuri võrguteenuse pakkujalt.
Aiamajal on olemas kasutusluba koos kogu dokumentatsiooniga, paberkandjal olemas ka mõõdistusprojekt - vajadusel saab ka sellega kohapeal tutvuda.
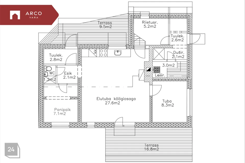
PLANEERING: ehitusalune pind 82m2, millest köetav ja suletud netopind 78,9m2
- tuulekoda: 2,8m2 - sissepääs majja ja maja ette põhjapoolsele terrassile (9,5m2)
- esik: 2,1m2
- wc-pesuruum: 1,2m2
- kabinet / panipaik 7,1m2
- elutuba koos avatud köögiga: 27,6m2 - pääs maja taha lõunapoolsele terrassile (16,8m2)
- magamistuba 8,3m2
- 2.korruse magamistuba: 16,9m2 koos garderoobiga
Maja tagant eraldi sissepääsuga saunakompleks, mis koosneb:
- tuulekoda / esik: 2,6m2
- sauna eesruum: 5,2m2
- pesuruum: 2,1m2
- saunaruum: 3m2
- terrass (~10m2), millel on tünnisaun (puuküttega).
Aiamaja ehitustehnilised näitajad:
- korruselisus: 2
- ehitusalune pind: 82m2
- suletud netopind: 78,9m2
- köetav pind: 78,9m2
- eluruumide pind: 66m2
- üldkasutatava pind: 12,9m2
- maht: 375m3
- kõrgus: 5,7m2
- abs. kõrgus +12.0
- pikkus: 11,5m
- laius: 8,6m
- tulepüsivusklass: TP-3
KÜTE:
- kamin-ahi: elutoas;
- õhk-vesi soojuspump paigaldatud CityKliima poolt: kõik põrandad on vesipõrandakütte all välja arvatud väike esik koos tuulekojaga maja ees.
- elektripõrandaküte ainult maja sissepääsu tuulekojas ja esikus.
ARHITEKTUURI OSA
L-tähe kujulise põhjaplaaniga aiamaja koosneb kahest üksteisega liituvast kahepoolse viilkatustega osast.
Aiamaja suurem osa on ühekordne ja väiksem osa kahekordne.
Kõrgemas osas paiknevad esimesel korrusel saunaruumid, magamistuba ja katusekorrusel üks eluruum.
Madalamas ühekordses osas on esik, panipaik, wc, elutuba koos köögiga. Elutoast pääseb lõunapoolsele terrassile.
EHITUSKONTSTRUKTSIOONID
Aiamaja vundament on betoonist.
Välisseinad on puitsõrestikkonstruktsioonis, soojustuseks mineraalvill.
Vahelaed on puittalades.
Katusekonstruktsioon on puidust.
2-kordse osa katuslagi on puitsarikatel ja mineraalvillsoojustusega talade vahel.
Katusekatteks on lainelised eterniitplaadid.
Põrandad on veeküttega.
Põhikorpuse köetavate põrandate veeküttetorustik on ehitatud põrandataladele paigaldatud OSB plaatidele.
Põrandakatteks on valdavas osas puitparkett.
Saunaosa põranda betoonplaat veeküttetorustikuga on valatud 20cm paksusele EPS plaatidest kihile.
Täpsemad konstruktsioonide kirjeldused vt Lõige 1-1 (viimane pilt).
VÄLISVIIMISTLUS:
- vundament: kivipuistega Tempsi plaat;
- välissein: värvitud, hallikasvalged;
- katus: laineline eterniitplaati;
- aknaraamid: valged - kõik aknad peale ühe (kabinetis hetkel veel puitaken) on vahetatud;
- piirdelauad: valged.
SISEVIIMISTLUS:
- põrandad: puitparkett;
- seinad: Gyproc plaat, värvitud;
- laed: lakitud voodrilaudis, värvitud Gyproc plaat.
TULEKAITSE OSA
Aiamajale on koostatud eksperthinnang küttesüsteemile. Hinnangu järgi vastab küttesüsteem ja korsten tuleohutuse nõuetele.
Pääs katusealusesse on läänefassaadil olevast luugist.
KRUNDI EHITUSTEHNILISED NÄITAJAD:
- krundi pind 954m2
- ehitise alune pind 82m2 (aiamaja) + 16,8m2 (kuur) = 98,8m2
- krundi täisehituse % on 10%
HOOV / PARKIMINE
Olemas oma salvkaev, mida on hea kasutada kastmiseks.
Olemas kuur (16,8m2) asjade hoiustamiseks.
Hoovis olemas erinevad vilj
https://youtube.com/shorts/CCTeW9Ie_MY
NB! ANNA TEADA ENDALE SOBIV AEG JA LÄHME KOOS VAATAMA!
Müüa hea asukohaga 2023a täielikult renoveeritud 2-korruseline aiamaja (esmane kasutuselevõtu aasta on 1987) koos sauna, kolme terrassi (maja ees, maja taga ja hoovipoolsel küljel) ja kauni aiaga.
Telia valguskaabel: hetkel on internet üle õhu, kuid peagi jõuab sellele aadressile kiire internetivõrk. Täpsemat infot uuri võrguteenuse pakkujalt.
Aiamajal on olemas kasutusluba koos kogu dokumentatsiooniga, paberkandjal olemas ka mõõdistusprojekt - vajadusel saab ka sellega kohapeal tutvuda.
PLANEERING: ehitusalune pind 82m2, millest köetav ja suletud netopind 78,9m2
- tuulekoda: 2,8m2 - sissepääs majja ja maja ette põhjapoolsele terrassile (9,5m2)
- esik: 2,1m2
- wc-pesuruum: 1,2m2
- kabinet / panipaik 7,1m2
- elutuba koos avatud köögiga: 27,6m2 - pääs maja taha lõunapoolsele terrassile (16,8m2)
- magamistuba 8,3m2
- 2.korruse magamistuba: 16,9m2 koos garderoobiga
Maja tagant eraldi sissepääsuga saunakompleks, mis koosneb:
- tuulekoda / esik: 2,6m2
- sauna eesruum: 5,2m2
- pesuruum: 2,1m2
- saunaruum: 3m2
- terrass (~10m2), millel on tünnisaun (puuküttega).
Aiamaja ehitustehnilised näitajad:
- korruselisus: 2
- ehitusalune pind: 82m2
- suletud netopind: 78,9m2
- köetav pind: 78,9m2
- eluruumide pind: 66m2
- üldkasutatava pind: 12,9m2
- maht: 375m3
- kõrgus: 5,7m2
- abs. kõrgus +12.0
- pikkus: 11,5m
- laius: 8,6m
- tulepüsivusklass: TP-3
KÜTE:
- kamin-ahi: elutoas;
- õhk-vesi soojuspump paigaldatud CityKliima poolt: kõik põrandad on vesipõrandakütte all välja arvatud väike esik koos tuulekojaga maja ees.
- elektripõrandaküte ainult maja sissepääsu tuulekojas ja esikus.
ARHITEKTUURI OSA
L-tähe kujulise põhjaplaaniga aiamaja koosneb kahest üksteisega liituvast kahepoolse viilkatustega osast.
Aiamaja suurem osa on ühekordne ja väiksem osa kahekordne.
Kõrgemas osas paiknevad esimesel korrusel saunaruumid, magamistuba ja katusekorrusel üks eluruum.
Madalamas ühekordses osas on esik, panipaik, wc, elutuba koos köögiga. Elutoast pääseb lõunapoolsele terrassile.
EHITUSKONTSTRUKTSIOONID
Aiamaja vundament on betoonist.
Välisseinad on puitsõrestikkonstruktsioonis, soojustuseks mineraalvill.
Vahelaed on puittalades.
Katusekonstruktsioon on puidust.
2-kordse osa katuslagi on puitsarikatel ja mineraalvillsoojustusega talade vahel.
Katusekatteks on lainelised eterniitplaadid.
Põrandad on veeküttega.
Põhikorpuse köetavate põrandate veeküttetorustik on ehitatud põrandataladele paigaldatud OSB plaatidele.
Põrandakatteks on valdavas osas puitparkett.
Saunaosa põranda betoonplaat veeküttetorustikuga on valatud 20cm paksusele EPS plaatidest kihile.
Täpsemad konstruktsioonide kirjeldused vt Lõige 1-1 (viimane pilt).
VÄLISVIIMISTLUS:
- vundament: kivipuistega Tempsi plaat;
- välissein: värvitud, hallikasvalged;
- katus: laineline eterniitplaati;
- aknaraamid: valged - kõik aknad peale ühe (kabinetis hetkel veel puitaken) on vahetatud;
- piirdelauad: valged.
SISEVIIMISTLUS:
- põrandad: puitparkett;
- seinad: Gyproc plaat, värvitud;
- laed: lakitud voodrilaudis, värvitud Gyproc plaat.
TULEKAITSE OSA
Aiamajale on koostatud eksperthinnang küttesüsteemile. Hinnangu järgi vastab küttesüsteem ja korsten tuleohutuse nõuetele.
Pääs katusealusesse on läänefassaadil olevast luugist.
KRUNDI EHITUSTEHNILISED NÄITAJAD:
- krundi pind 954m2
- ehitise alune pind 82m2 (aiamaja) + 16,8m2 (kuur) = 98,8m2
- krundi täisehituse % on 10%
HOOV / PARKIMINE
Olemas oma salvkaev, mida on hea kasutada kastmiseks.
Olemas kuur (16,8m2) asjade hoiustamiseks.
Hoovis olemas erinevad vilj
--
Müüme, hindame ja teeme Sinu kinnisvara dokumendid korda - iga päev, suurima rõõmu ja pühendumisega!
Edasta müügisoov www.arcovara.ee/et/#edasta-myygisoov
Telli hindamine www.arcovara.ee/et/#telli-hindamine
Saada ehitus- või kasutusloa soov seadustamine.arcovara.ee




























































