Müüa luksuslik ja kaasaegne kodu ühes Viimsi ihaldusväärseimas elupiirkonnas, vaid 300 meetri kaugusel Haabneeme rannast.
Tegemist on valgusküllase ja funktsionaalse 2024.a. ehitatud eramuga, kus läbimõeldud planeering,3kvaliteetne ehitus ja nutikad tehnoloogiad loovad suurepärase elukeskkonna. Selle kodu planeering ja siseviimistlus on viimse detailini läbi mõeldud. Sa ei pea muretsema sisustamise pärast, sest kogu eluks vajalik sisustus on siin juba olemas ning kuulub hinna sisse. On olemas hindamisakt summale 922 000€
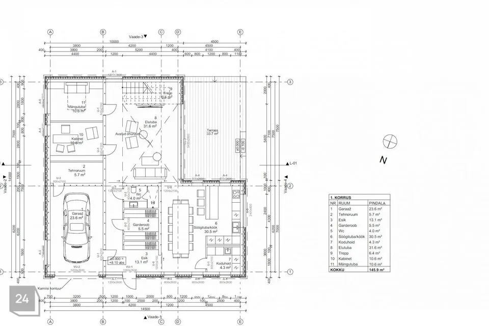
Maja planeering:
I korrusel on elutuba, köök-söögituba koos köögisahvriga, kabinet, lastetuba ( või 2 magamistuba sõltuvalt ruumikasutusest) esik koos garderoobiruumiga, dušširuum koos wc-ga, garaaž, tehnoruum. Elutuba avatud õhuruumiga ulatub läbi kahe korruse ning kõrged panoraamaknad täidavad ruumi loomuliku valgusega. Elutoast ja sauna eesruumist pääseb avarale lõunapoolsele terrassile mille keskel asub köetav bassein.
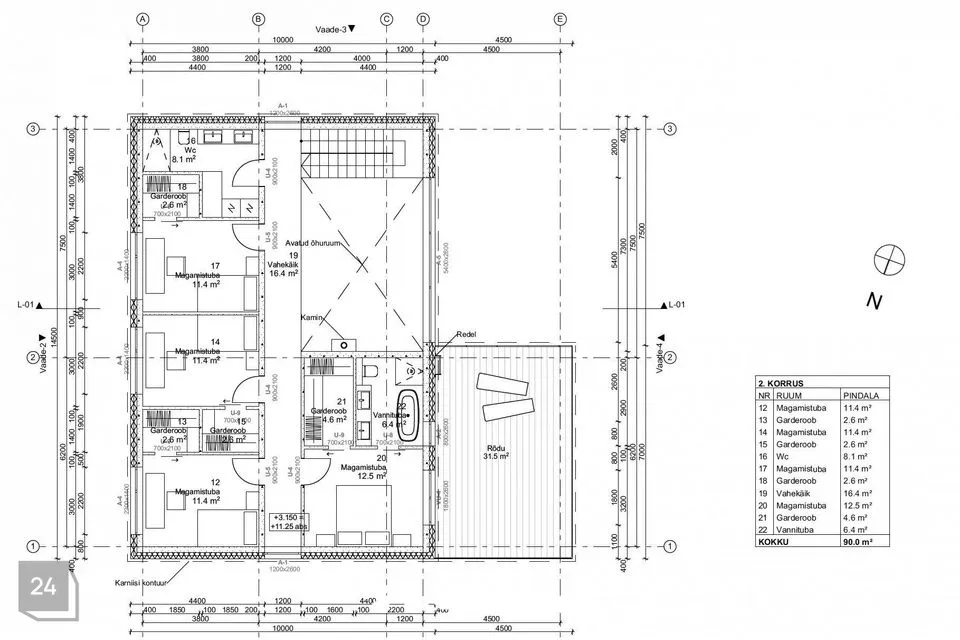
II korrusel paikneb: 3 lastetuba, nendes kahel on oma garderoobiruum, vannituba-wc/majapidamisruum ning "master bedroom", millel on oma vannituba, garderoobiruum ning pääs lõunapoolsele rõdule 32m2.
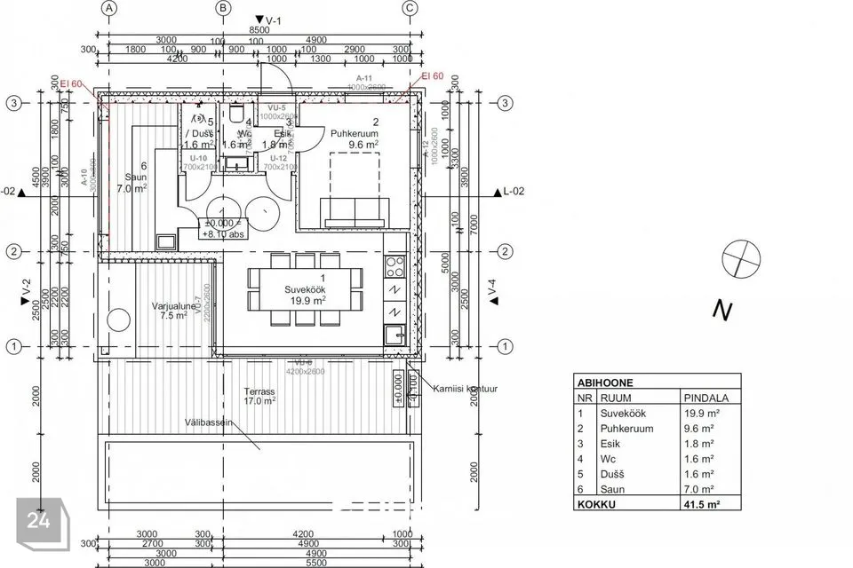
Lisaks asub hoovis saunamaja, kus on avar puhkeruum, üks külaliste- või magamistuba, WC, duširuum ning leiliruum, mis on varustatud Saunumi elektrikerisega. Puhkeruumis on olemas vee- ja kanalisatsiooniühendus, mis võimaldab köögi paigaldamist.
Eramu ning abihoone on ühendatud terassiga ning terassi südames asub aastaringselt kasutatav, köetav õhk-vesi soojuspumbaga välibassein mõõtmetega 6x3m.
Ruumide siseviimistluses on kasutatud modernseid lahendusi. Elutoas asuv disainkamin annab hubast soojust ja loob meeleolu ka külmemal aastaajal. Maja põrandaid katab kvaliteetne tammeparkett teisel korrusel ning esimesel korrusel keraamiline plaat, mis on praktiline lahendus igapäevaseks basseini kasutamiseks. Eramus on paigaldatud kaasaegsed peidetud raamiga siseuksed, mis lisavad interjöörile modernset ilmet. Integreeritud kõrgläikega ja puiduga mööbel loob harmoonilise ja hubase atmosfääri. Köögimööbel kivist töötasapinnaga on varustatud kvaliteetse tehnika ja sisustusega.
Kodu on varustatud nutika kodu lahendustega, mis võimaldavad mugavalt juhtida sissepääsu majja/garaaži, reguleerida valgustust, kütet (sh maakütet), ventilatsiooni ja turvasüsteeme nii kohapeal kui ka distantsilt mobiilirakenduse kaudu. Integreerimisvõimalused on olemas ka Google Home või Alexa süsteemidega.
Maja juurde kuulub mahukas parkimisala kuni seitsmele autole, köetava garaaži mahub 1 auto. Maja perimeetril on videokaamerad. Elektriauto laadimiseks on olemas tööstusvooli pistik maja küljes.
Energiatõhus A-energiaklass tagab madalad ülalpidamiskulud. Majas on soodne maaküte, ning võimalus kõikidest tubadest põrandakütte temperatuure ise reguleerida. Moodsa energialahenduse kõrval on tähelepanu pööratud ka suurepärasele ventilatsioonile, Eramus on oma ventilatsiooniagregaat, mis tagab aasta läbi hea sisekliima eluruumides.
Eramule kehtib kahe aastane garantii alates kasutusloa saamisest!
Fotodel kasutatud disaintooted: Shishi Home of Beauty, Hemtex, Interior Store
Asukoht pakub kõik eluks vajaliku jalutuskäigu kaugusel – läheduses on koolid, lasteaiad, kaubanduskeskused, restoranid, kino ja SPA-keskused. Aktiivseks ajaveetmiseks asuvad läheduses Vimka suusanõlv ja RMK matkarajad. Tallinna kesklinna on võimalik jõuda autoga ligikaudu 15 minutiga.
Kodu, mis ühendab kaasaegse tehnoloogia, loodusläheduse ja mugava elustiili – ideaalne valik kvaliteeti ja asukohta hindavale perele.
JAGA MINU KONTAKTI KÕIGILE, KES VAJAVAD KINNISVARANÕU!
- - - - - - - - - -
Telli hindamine UUS MAA Kinnisvarabüroolt https://uusmaa.ee/teenused/hindamine/
ning saad:
- Eksperthinnangu kuni 20% soodsamalt kui võtad koduga seotud laenu Swedbankist
- Pankadest parimad kodulaenutingimused
- Kiire, kvaliteetse ning usaldusväärse hindamisteenuse Eestis
UUS MAA KINNISVARABÜROO EKSPERTHINNANGUID AKTSEPTEERIVAD KÕIK FINANTSASUTUSED.
- - - - - - - - - -
Liitu Uus Maa uudiskirjaga ja saa homset kinnisvarainfot juba täna!
https://www.uusmaa.ee/uudiskirjagaliitumine/
- - - - - - - - - -
Kodu aitab osta Swedbank.
Pakkumise saamiseks kasuta koodi UUSMAA ja Sind teenindatakse eelisjärjekorras.
Võtame ühendust 1 tööpäeva jooksul.
Uus Maa kliendile soodsam lepingutasu. Küsi täpsemat infot maaklerilt.
Finantsteenuseid pakub Swedbank AS. Tutvu tingimustega, pea nõu.
Tegemist on valgusküllase ja funktsionaalse 2024.a. ehitatud eramuga, kus läbimõeldud planeering,3kvaliteetne ehitus ja nutikad tehnoloogiad loovad suurepärase elukeskkonna. Selle kodu planeering ja siseviimistlus on viimse detailini läbi mõeldud. Sa ei pea muretsema sisustamise pärast, sest kogu eluks vajalik sisustus on siin juba olemas ning kuulub hinna sisse. On olemas hindamisakt summale 922 000€
Maja planeering:
I korrusel on elutuba, köök-söögituba koos köögisahvriga, kabinet, lastetuba ( või 2 magamistuba sõltuvalt ruumikasutusest) esik koos garderoobiruumiga, dušširuum koos wc-ga, garaaž, tehnoruum. Elutuba avatud õhuruumiga ulatub läbi kahe korruse ning kõrged panoraamaknad täidavad ruumi loomuliku valgusega. Elutoast ja sauna eesruumist pääseb avarale lõunapoolsele terrassile mille keskel asub köetav bassein.
II korrusel paikneb: 3 lastetuba, nendes kahel on oma garderoobiruum, vannituba-wc/majapidamisruum ning "master bedroom", millel on oma vannituba, garderoobiruum ning pääs lõunapoolsele rõdule 32m2.
Lisaks asub hoovis saunamaja, kus on avar puhkeruum, üks külaliste- või magamistuba, WC, duširuum ning leiliruum, mis on varustatud Saunumi elektrikerisega. Puhkeruumis on olemas vee- ja kanalisatsiooniühendus, mis võimaldab köögi paigaldamist.
Eramu ning abihoone on ühendatud terassiga ning terassi südames asub aastaringselt kasutatav, köetav õhk-vesi soojuspumbaga välibassein mõõtmetega 6x3m.
Ruumide siseviimistluses on kasutatud modernseid lahendusi. Elutoas asuv disainkamin annab hubast soojust ja loob meeleolu ka külmemal aastaajal. Maja põrandaid katab kvaliteetne tammeparkett teisel korrusel ning esimesel korrusel keraamiline plaat, mis on praktiline lahendus igapäevaseks basseini kasutamiseks. Eramus on paigaldatud kaasaegsed peidetud raamiga siseuksed, mis lisavad interjöörile modernset ilmet. Integreeritud kõrgläikega ja puiduga mööbel loob harmoonilise ja hubase atmosfääri. Köögimööbel kivist töötasapinnaga on varustatud kvaliteetse tehnika ja sisustusega.
Kodu on varustatud nutika kodu lahendustega, mis võimaldavad mugavalt juhtida sissepääsu majja/garaaži, reguleerida valgustust, kütet (sh maakütet), ventilatsiooni ja turvasüsteeme nii kohapeal kui ka distantsilt mobiilirakenduse kaudu. Integreerimisvõimalused on olemas ka Google Home või Alexa süsteemidega.
Maja juurde kuulub mahukas parkimisala kuni seitsmele autole, köetava garaaži mahub 1 auto. Maja perimeetril on videokaamerad. Elektriauto laadimiseks on olemas tööstusvooli pistik maja küljes.
Energiatõhus A-energiaklass tagab madalad ülalpidamiskulud. Majas on soodne maaküte, ning võimalus kõikidest tubadest põrandakütte temperatuure ise reguleerida. Moodsa energialahenduse kõrval on tähelepanu pööratud ka suurepärasele ventilatsioonile, Eramus on oma ventilatsiooniagregaat, mis tagab aasta läbi hea sisekliima eluruumides.
Eramule kehtib kahe aastane garantii alates kasutusloa saamisest!
Fotodel kasutatud disaintooted: Shishi Home of Beauty, Hemtex, Interior Store
Asukoht pakub kõik eluks vajaliku jalutuskäigu kaugusel – läheduses on koolid, lasteaiad, kaubanduskeskused, restoranid, kino ja SPA-keskused. Aktiivseks ajaveetmiseks asuvad läheduses Vimka suusanõlv ja RMK matkarajad. Tallinna kesklinna on võimalik jõuda autoga ligikaudu 15 minutiga.
Kodu, mis ühendab kaasaegse tehnoloogia, loodusläheduse ja mugava elustiili – ideaalne valik kvaliteeti ja asukohta hindavale perele.
JAGA MINU KONTAKTI KÕIGILE, KES VAJAVAD KINNISVARANÕU!
- - - - - - - - - -
Telli hindamine UUS MAA Kinnisvarabüroolt https://uusmaa.ee/teenused/hindamine/
ning saad:
- Eksperthinnangu kuni 20% soodsamalt kui võtad koduga seotud laenu Swedbankist
- Pankadest parimad kodulaenutingimused
- Kiire, kvaliteetse ning usaldusväärse hindamisteenuse Eestis
UUS MAA KINNISVARABÜROO EKSPERTHINNANGUID AKTSEPTEERIVAD KÕIK FINANTSASUTUSED.
- - - - - - - - - -
Liitu Uus Maa uudiskirjaga ja saa homset kinnisvarainfot juba täna!
https://www.uusmaa.ee/uudiskirjagaliitumine/
- - - - - - - - - -
Kodu aitab osta Swedbank.
Pakkumise saamiseks kasuta koodi UUSMAA ja Sind teenindatakse eelisjärjekorras.
Võtame ühendust 1 tööpäeva jooksul.
Uus Maa kliendile soodsam lepingutasu. Küsi täpsemat infot maaklerilt.
Finantsteenuseid pakub Swedbank AS. Tutvu tingimustega, pea nõu.






































































