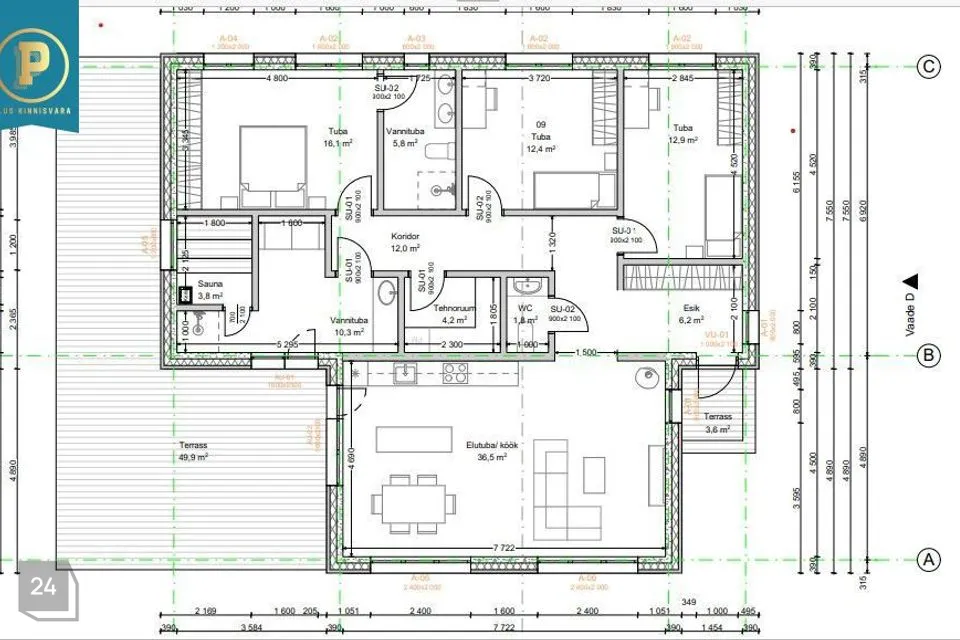
Ehitame Teile täitsa uue maja vastavalt väljastatud ehitusloale. Tänaseks on ehitatud vundament ja valatud taldmik. Taldmikus olemas kogu vajalik kütte- ja veetorustik. Planeeritud on 1kordne, kõrgete lagedega kodu, mis on 150 m2 suuruse ehitusaluse pinnaga (119 m2 köetavat pinda) kus 3 magamistuba, 36.5 m2 avatud köögiga elutuba, lisaks on planeeritud 2 vannituba (kus üks suurem saunaga).
Pakutav hind sisaldab liitumisi vee ja kanalisatsioonitrassiga, samuti 3x20 A elektrit. Kuna täna maja alles väga algses ehitusjärgus siis on võimalik kaasa rääkida kogu sisustusmaterjalide valikus. Meie poolt arvatud orjenteeruv hind on 390 000 EUR Soovi korral saame ehitada juurke väikeehitisena autovarjualuse (18 m2)
Maja asub rahulikul ja turvalisel tänaval. Tegemist on pigem uutest eramutest ümbritsetud piirkonnaga, seega toredad ja edasipüüdlikud naabrid on lisaväärtusena kohe olemas. Kinnistu piirneb rohealaga kuhu lähiajal kindlasti midagi ei ehitata. Jalutuskäigu kaugusel on bussipeatus. „Maxima“ kauplus ja „Sinu pood“ paari kilomeetri raadiuses. Muuga laht asub ca 2 km kaugusel,
Hind sisaldab KM
Pakkumisega tutvumiseks ja lisainformatsiooni saamiseks palun võtke minuga ühendust!
Plus Kinnisvarabüroo on butiikstiilis kinnisvarabüroo neile, kes hindavad personaalset lähenemist.
Plus Kinnisvarabüroo keskendub kvaliteedile, mitte kvantiteedile. Iga klient on meie jaoks tähtis ning töötame oma kliendi maksimaalse heaolu nimel!
Teenused, mida pakume:
Elamispindade müük, üürimine ja haldamine
Äripindade müük ja üürimine
Arendusprojektide müük
Investeerimisobjektide müük
Kinnisvara hinnastamine
Kinnisvara ostuesindus
Kinnisvara müügiks ettevalmistamine
Omame kontakte kõikides Eesti pankades ja läbi meie ostes saate laenulepingu soodustust, kiiremat teenindust ning professionaalset abi!
Rohkem infot meist ja meie teenustest / inimestest: www.plus.ee
Pakutav hind sisaldab liitumisi vee ja kanalisatsioonitrassiga, samuti 3x20 A elektrit. Kuna täna maja alles väga algses ehitusjärgus siis on võimalik kaasa rääkida kogu sisustusmaterjalide valikus. Meie poolt arvatud orjenteeruv hind on 390 000 EUR Soovi korral saame ehitada juurke väikeehitisena autovarjualuse (18 m2)
Maja asub rahulikul ja turvalisel tänaval. Tegemist on pigem uutest eramutest ümbritsetud piirkonnaga, seega toredad ja edasipüüdlikud naabrid on lisaväärtusena kohe olemas. Kinnistu piirneb rohealaga kuhu lähiajal kindlasti midagi ei ehitata. Jalutuskäigu kaugusel on bussipeatus. „Maxima“ kauplus ja „Sinu pood“ paari kilomeetri raadiuses. Muuga laht asub ca 2 km kaugusel,
Hind sisaldab KM
Pakkumisega tutvumiseks ja lisainformatsiooni saamiseks palun võtke minuga ühendust!
Plus Kinnisvarabüroo on butiikstiilis kinnisvarabüroo neile, kes hindavad personaalset lähenemist.
Plus Kinnisvarabüroo keskendub kvaliteedile, mitte kvantiteedile. Iga klient on meie jaoks tähtis ning töötame oma kliendi maksimaalse heaolu nimel!
Teenused, mida pakume:
Elamispindade müük, üürimine ja haldamine
Äripindade müük ja üürimine
Arendusprojektide müük
Investeerimisobjektide müük
Kinnisvara hinnastamine
Kinnisvara ostuesindus
Kinnisvara müügiks ettevalmistamine
Omame kontakte kõikides Eesti pankades ja läbi meie ostes saate laenulepingu soodustust, kiiremat teenindust ning professionaalset abi!
Rohkem infot meist ja meie teenustest / inimestest: www.plus.ee
























