VIIMSI VILLAD
Viis tuba, betoonmaja, A energiaklass, maaküte, mõistliku suurusega krunt!
Vali kas heledate või tumedate siseviimsitlusdetailidega eramu!
Vaata kuidas võiks välja näha köök sinu uues kodus, kaks illustratiivset fotot nn.näidisköökidega! Tule tutvu erinevate võimalustega!
VILLA PLANEERING JA SISEKUJUNDUS
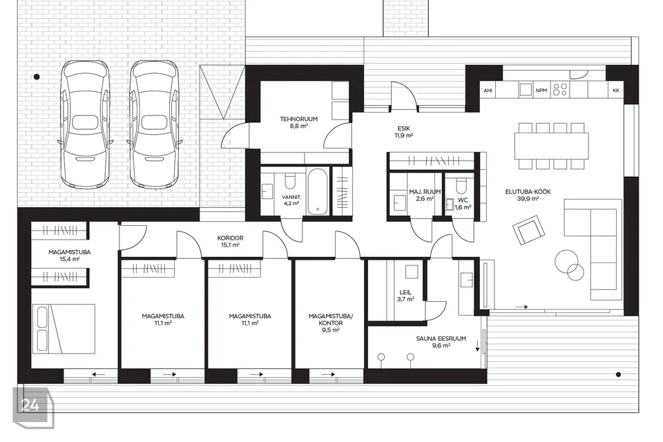
Avatud elutuba koos köögi ja söögialaga, eraldi hooneosasse jääb vaiksem tsoon nelja magamistoaga, kõik vaatega hoovi suunas ning igast ruumist pääseb ukse kaudu terrassile ja õue. Peamises magamistoas eraldi walk-in garderoob. Elutoa terrasssipoolne sein on tõstetud katusega ja avaneb selle eesolevale terrassile mis ulatub ümber maja. Elutoast avaneb läbi klaasseina vaade ning privaatsele terrassile, võimaldades suvel ühendada terrass elutoaga, moodustades sise- ja välisruumide terviku. Väga ruumikas saun dushiruumiga, lisaks vannituba vanniga ja tualettruume samuti kaks. Viimistluse valguse ja varjude mäng laseb sisekujunduselementidel välja paista ning tõstab esile nende kvaliteeti. Valida on kas heledate või tumedate viimistlusdetailide vahel.
HOOV JA ÕU
Kinnistu on piiratud aiaga mille esiosa on puitlippaed, väravaautomaatika lukustatava jalgväravaga. Videovalve valmidus. Hoovis on muru, istutatud männid ja paigaldatud on välisvalgustus.
TEHNILINE INFO
Energiamärgis A, kulud on olematud. Igas eramus on kaasaegne maaküte, samalt seadmelt tuleb ka jahutus kui ilm tavapärasest soojem on. Kütte ja jahutuse reguleerimiseks on igas ruumis termostaadid. Lisaks on eramutes kaasaegne soojustagastusega ventilatsioon Airobot. Kõik seadmed on ühendatavad internetiga (Telia valguskaabel).
ASUKOHT
Viimsi Villad asuvad pidevalt arenenud Pringi küla Rohuneeme poolses servas. Meri jääb jalutuskäigu kaugusele. Täpselt sama kaugele jääb ka Rohuneeme tee ning 900m kaugusel asub lähim bussipeatus. Kesklinna autoga 25min. Pringi külas on valmis kõik uued kommunikatsioonid ning sõidu- ja kergliiklusteed.
VIIMSI VILLAD:
www.lvm.ee/viimsi-villad
VIDEO:
https://www.youtube.com/watch?v=PaWsAiTS_rk
Oled väga oodatud tutvuma oma tulevase koduga!
Viis tuba, betoonmaja, A energiaklass, maaküte, mõistliku suurusega krunt!
Vali kas heledate või tumedate siseviimsitlusdetailidega eramu!
Vaata kuidas võiks välja näha köök sinu uues kodus, kaks illustratiivset fotot nn.näidisköökidega! Tule tutvu erinevate võimalustega!
VILLA PLANEERING JA SISEKUJUNDUS
Avatud elutuba koos köögi ja söögialaga, eraldi hooneosasse jääb vaiksem tsoon nelja magamistoaga, kõik vaatega hoovi suunas ning igast ruumist pääseb ukse kaudu terrassile ja õue. Peamises magamistoas eraldi walk-in garderoob. Elutoa terrasssipoolne sein on tõstetud katusega ja avaneb selle eesolevale terrassile mis ulatub ümber maja. Elutoast avaneb läbi klaasseina vaade ning privaatsele terrassile, võimaldades suvel ühendada terrass elutoaga, moodustades sise- ja välisruumide terviku. Väga ruumikas saun dushiruumiga, lisaks vannituba vanniga ja tualettruume samuti kaks. Viimistluse valguse ja varjude mäng laseb sisekujunduselementidel välja paista ning tõstab esile nende kvaliteeti. Valida on kas heledate või tumedate viimistlusdetailide vahel.
HOOV JA ÕU
Kinnistu on piiratud aiaga mille esiosa on puitlippaed, väravaautomaatika lukustatava jalgväravaga. Videovalve valmidus. Hoovis on muru, istutatud männid ja paigaldatud on välisvalgustus.
TEHNILINE INFO
Energiamärgis A, kulud on olematud. Igas eramus on kaasaegne maaküte, samalt seadmelt tuleb ka jahutus kui ilm tavapärasest soojem on. Kütte ja jahutuse reguleerimiseks on igas ruumis termostaadid. Lisaks on eramutes kaasaegne soojustagastusega ventilatsioon Airobot. Kõik seadmed on ühendatavad internetiga (Telia valguskaabel).
ASUKOHT
Viimsi Villad asuvad pidevalt arenenud Pringi küla Rohuneeme poolses servas. Meri jääb jalutuskäigu kaugusele. Täpselt sama kaugele jääb ka Rohuneeme tee ning 900m kaugusel asub lähim bussipeatus. Kesklinna autoga 25min. Pringi külas on valmis kõik uued kommunikatsioonid ning sõidu- ja kergliiklusteed.
VIIMSI VILLAD:
www.lvm.ee/viimsi-villad
VIDEO:
https://www.youtube.com/watch?v=PaWsAiTS_rk
Oled väga oodatud tutvuma oma tulevase koduga!


































