Kui otsid kodu, kus disain, tehnoloogia ja loodus kulgevad ühes rütmis, siis see 248.3 m² suurune arhitektuurselt silmapaistev kodu Haabneeme südames, on täpselt Sulle. Asukoht on vaid 250 meetri kaugusel liivarannast ning see on loodud inimesele, kes hindab kvaliteeti, avarust ja läbimõeldud lahendusi.
Valgus, vorm ja vabadus
Maja arhitektuur on muljetavaldav – terava joone ja samas sooja materjalivalikuga hoone avab end loodusele, säilitades samal ajal täieliku privaatsuse. Klaaspinnad toovad tuppa valguse ja vaated, samas kui klaasitud terrass pikendab elutuba aastaringseks õuesolekuks. Aiakujundus on minimalistlik ja jälgib rannaläheduse temaatikat, ühendades kaasaegse joone rohelusega. Maja on projekteerinud tunnustatud arhitekt Sten Ader (SKAD arhitektid), kelle loomingusse kuuluvad mitmed auhinnatud eramud ja ühiskondlikud hooned.
Planeering – funktsionaalsus läbi ruumi dünaamika
Esimene korrus:
• Esik praktilise walk-in garderoobiga
• Avar elutuba disainkamina ja pääsuga klaasitud terrassile
• Köök koos sisseehitatud saare, söögiala ja tipptehnikaga
• Kontor või magamistuba – inspireeriv koht töötamiseks või puhkuseks
• Külaliste tualett
• Tehnoruum
• Garaaž
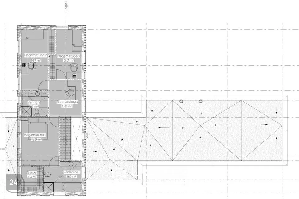
Teine korrus:
• Peamagamistuba privaatse vannitoa ja walk-in garderoobiga
• Kaks lastetuba
• Laste vannituba
• Lugemisnurk
Tehnilised lahendused – tippklassi mugavus ja ökonoomsus
• Päikesepaneelid – tagavad madalad püsikulud ja rohelise mõtteviisi
• Targa kodu süsteem – juhitav nutiseadmest (valgustus, küte, turvalisus)
• Soojustagastusega ventilatsioon – puhas õhk ja madal energiakadu
• Condair õhuniisutussüsteem – tervislik ja tasakaalus sisekliima
• Tsentraaltolmuimeja – igapäevane mugavus ja puhtus
• Sõrmejäljelugejaga uksed – turvaline ja võtmevaba ligipääs
• Välisribikardinad alumisel korrusel – privaatsus ja ülekuumenemiskaitse
• Automaatne kastmissüsteem aias – laitmatult hooldatud haljastus ilma vaevata
Elukoht, mis toetab elustiili
See kaunis kodu asub merelähedases ja looduskaunis Haabneeme alevikus. Imeline Haabneeme rand on vaid paarisaja meetri kaugusel – ideaalne paik sportimiseks, jalutuskäikudeks ja päikeseloojangute nautimiseks. Lähikonnas on kõik mugavaks eluks vajalik – koolid, lasteaiad, spordiklubid ja poed. Tallinna kesklinna jõuab 20-25 minutiga.
Kui tunned, sellest võiks saada Sinu pere järgmine kodu, võta minuga ühendust.
Lii Salusaar
5344 ****
***@***.ee
LUXUM – Luxury Living by Uus Maa
LUXUM on pühendunud kõige eksklusiivsema ja unikaalsema kinnisvara müügile Eestis. Meie 30-aastane kogemus, luksuskinnisvarale spetsialiseerunud maaklerid, ulatuslik kontaktivõrgustik ja värske turuinfo annavad meile võimaluse leida teie kinnisvarale sobiva ostja või teile sellise kodu, mida soovinud olete. Kui soovite osta, müüa või üürida preemiumklassi kinnisvara, võtke julgelt minuga ühendust!
JAGA MINU KONTAKTI KÕIGILE, KES VAJAVAD KINNISVARANÕU!
- - - - - - - - - -
Telli hindamine UUS MAA Kinnisvarabüroolt https://uusmaa.ee/teenused/hindamine/
ning saad:
- Eksperthinnangu kuni 20% soodsamalt kui võtad koduga seotud laenu Swedbankist
- Pankadest parimad kodulaenutingimused
- Kiire, kvaliteetse ning usaldusväärse hindamisteenuse Eestis
UUS MAA KINNISVARABÜROO EKSPERTHINNANGUID AKTSEPTEERIVAD KÕIK FINANTSASUTUSED.
- - - - - - - - - -
Liitu Uus Maa uudiskirjaga ja saa homset kinnisvarainfot juba täna!
https://www.uusmaa.ee/uudiskirjagaliitumine/
- - - - - - - - - -
Kodu aitab osta Swedbank.
Pakkumise saamiseks kasuta koodi UUSMAA ja Sind teenindatakse eelisjärjekorras.
Võtame ühendust 1 tööpäeva jooksul.
Uus Maa kliendile soodsam lepingutasu. Küsi täpsemat infot maaklerilt.
Finantsteenuseid pakub Swedbank AS. Tutvu tingimustega, pea nõu.
Valgus, vorm ja vabadus
Maja arhitektuur on muljetavaldav – terava joone ja samas sooja materjalivalikuga hoone avab end loodusele, säilitades samal ajal täieliku privaatsuse. Klaaspinnad toovad tuppa valguse ja vaated, samas kui klaasitud terrass pikendab elutuba aastaringseks õuesolekuks. Aiakujundus on minimalistlik ja jälgib rannaläheduse temaatikat, ühendades kaasaegse joone rohelusega. Maja on projekteerinud tunnustatud arhitekt Sten Ader (SKAD arhitektid), kelle loomingusse kuuluvad mitmed auhinnatud eramud ja ühiskondlikud hooned.
Planeering – funktsionaalsus läbi ruumi dünaamika
Esimene korrus:
• Esik praktilise walk-in garderoobiga
• Avar elutuba disainkamina ja pääsuga klaasitud terrassile
• Köök koos sisseehitatud saare, söögiala ja tipptehnikaga
• Kontor või magamistuba – inspireeriv koht töötamiseks või puhkuseks
• Külaliste tualett
• Tehnoruum
• Garaaž
Teine korrus:
• Peamagamistuba privaatse vannitoa ja walk-in garderoobiga
• Kaks lastetuba
• Laste vannituba
• Lugemisnurk
Tehnilised lahendused – tippklassi mugavus ja ökonoomsus
• Päikesepaneelid – tagavad madalad püsikulud ja rohelise mõtteviisi
• Targa kodu süsteem – juhitav nutiseadmest (valgustus, küte, turvalisus)
• Soojustagastusega ventilatsioon – puhas õhk ja madal energiakadu
• Condair õhuniisutussüsteem – tervislik ja tasakaalus sisekliima
• Tsentraaltolmuimeja – igapäevane mugavus ja puhtus
• Sõrmejäljelugejaga uksed – turvaline ja võtmevaba ligipääs
• Välisribikardinad alumisel korrusel – privaatsus ja ülekuumenemiskaitse
• Automaatne kastmissüsteem aias – laitmatult hooldatud haljastus ilma vaevata
Elukoht, mis toetab elustiili
See kaunis kodu asub merelähedases ja looduskaunis Haabneeme alevikus. Imeline Haabneeme rand on vaid paarisaja meetri kaugusel – ideaalne paik sportimiseks, jalutuskäikudeks ja päikeseloojangute nautimiseks. Lähikonnas on kõik mugavaks eluks vajalik – koolid, lasteaiad, spordiklubid ja poed. Tallinna kesklinna jõuab 20-25 minutiga.
Kui tunned, sellest võiks saada Sinu pere järgmine kodu, võta minuga ühendust.
Lii Salusaar
5344 ****
***@***.ee
LUXUM – Luxury Living by Uus Maa
LUXUM on pühendunud kõige eksklusiivsema ja unikaalsema kinnisvara müügile Eestis. Meie 30-aastane kogemus, luksuskinnisvarale spetsialiseerunud maaklerid, ulatuslik kontaktivõrgustik ja värske turuinfo annavad meile võimaluse leida teie kinnisvarale sobiva ostja või teile sellise kodu, mida soovinud olete. Kui soovite osta, müüa või üürida preemiumklassi kinnisvara, võtke julgelt minuga ühendust!
JAGA MINU KONTAKTI KÕIGILE, KES VAJAVAD KINNISVARANÕU!
- - - - - - - - - -
Telli hindamine UUS MAA Kinnisvarabüroolt https://uusmaa.ee/teenused/hindamine/
ning saad:
- Eksperthinnangu kuni 20% soodsamalt kui võtad koduga seotud laenu Swedbankist
- Pankadest parimad kodulaenutingimused
- Kiire, kvaliteetse ning usaldusväärse hindamisteenuse Eestis
UUS MAA KINNISVARABÜROO EKSPERTHINNANGUID AKTSEPTEERIVAD KÕIK FINANTSASUTUSED.
- - - - - - - - - -
Liitu Uus Maa uudiskirjaga ja saa homset kinnisvarainfot juba täna!
https://www.uusmaa.ee/uudiskirjagaliitumine/
- - - - - - - - - -
Kodu aitab osta Swedbank.
Pakkumise saamiseks kasuta koodi UUSMAA ja Sind teenindatakse eelisjärjekorras.
Võtame ühendust 1 tööpäeva jooksul.
Uus Maa kliendile soodsam lepingutasu. Küsi täpsemat infot maaklerilt.
Finantsteenuseid pakub Swedbank AS. Tutvu tingimustega, pea nõu.






















































