Müüa ruumikas ja avar kivimaja Viimsis, mille võlu peitub selle avatud planeeringus ning väga kõrgetes lagedes. Elutoa maast laeni aknad annavad palju valgust ja päikesepaistet kogu majja ning avatud elutoa-köögi planeering loob võimaluse mugavalt köögis toimetades külalistega suhelda ning samal ajal ka lastel silma peal hoida. Iga perenaise unistuste walk-in garderoob magamistoas ja mahukas garderoob esikus, eraldi majapidamisruum ning hubane saun on selles majapidamises kenasti esindatud. Lisaks ei saa mainimata jätta privaatset metsaäärset krunti, kus võib näha nii kitsi kui ka muid metsloomi. Antud kodu on varustatud ka kahe basseiniga. Üks neis paikneb päikesepoolsel terrassil, kus suvised aiapeod lastega saavad täiesti uue tähenduse ja teine sauna eesruumis, mis annab võimaluse spa mõnusid nautida ka talvisel perioodil kodust lahkumata.
Tegemist on esialgselt 2008 aastal ehitatud majaga, mis 2020ndatel on läbinud põhjaliku uuenduse, ümberehituse ja renoveerimise. Kõik dokumendid on korrektselt vormistatud ning kasutusteatis on esitatud 2023.aastal. Fassaadi täielik renoveerimine on teostatud 2020.aastal Caparoli krohvsüsteemis. 2021.aastal teostati siseviimistluse uuendus terve 1.korruse ulatuses seal hulgas paigaldati uus naturaalne tammelaudparkett ja täielikult uuendati sauna eesruum. Värskelt 2024.aasta kevadel kvaliteetsete Osmo õlidega hooldatud terrassid ja puitosad ning kogu siseviimistlus on saanud värskenduse San.remondi näol ning laudpõrand on hooldatud.
Lisaks pakub omanik majale 1 aasta pikkust tehnosüsteemide garantiid andmaks lisa kindlust maja kvaliteedile.
PLANEERING:
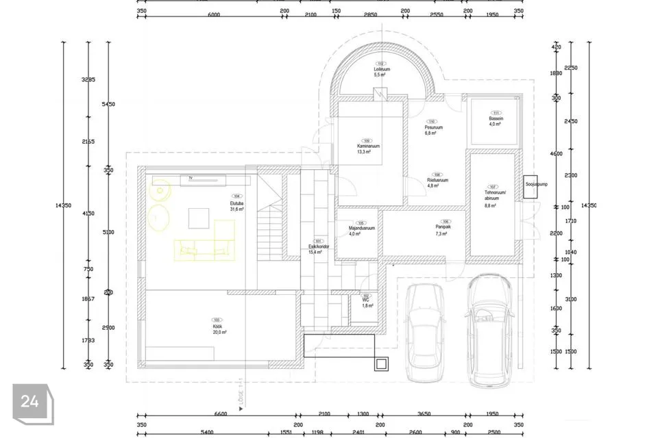
Maja 1. korruse koosseisu kuulub mahuka garderoobiga esik, külaliste wc, majapidamisruum, kaminaruum, pesuruum koos saunaga, kus asub ka maja sisene bassein ning avar ja valgusküllane elutuba-köök.
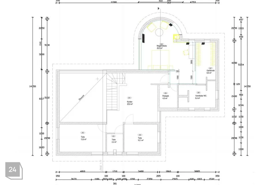
Maja 2. korruse koosseisu kuulub 3 magamistuba ning tualettruum. Suures magamistoas asub lisaks veel ka mahukas walk-in garderoob, vannituba koos vanni ja duššiga ning panipaiga ruum. Lisaks on võimalik soovi korral teisele korrusele ehitada üks magamistuba juurde.
SISEVIIMISTLUS
Maja siseviimistlus ühendab maitsekalt heledad toonid ja naturaalse puidu, luues avara, valgusküllase ja hubase õhkkonna. Põrandaid katab soe tammeparkett, mis toob ruumidesse ajatut elegantsi. Esik on viimistletud suurte matthallide keraamiliste plaatidega, samal ajal kui köögis annavad iseloomu stiilsed tumedad plaadid.
Sauna eesruum, avar pesuruum ja saun ise on kujundatud modernsete hallide keraamiliste plaatidega, mis lisavad ruumidele kaasaegset ilmet ja vastupidavust. Alumise korruse WC-s kohtuvad tumedad keraamilised plaadid ja maalähedased värvitoonid, ülemise korruse WC-s aga loob soojust puidust põrand. Master bedroomi privaatne vannituba kombineerib pruunikaid keraamilisi plaate ja naturaalset puitpõrandat, pakkudes luksuslikku, ent samas kodust tunnet. Mõnusat kodutunnet on sisse toodud ka puidutooni siseuste ja liistudega ning modernset joont aitavad hoida suured ning massiivsed klaaspinnad.
KÜTE JA VENTILATSIOON
Maja kütteallikaks on mugav ning energiatõhus õhk/vesi soojuspump ning toad aitab soojana hoida reguleeritav vesipõranda küte ning teisel korrusel reguleeritavad radiaatorid. Õhku aitavad värskena hoida seintele paigaldatud Fresh klapid ning märgalades ja köögis sundventilatsioon. Et talvisel perioodil elutoa suur aknapind tuba jahedaks ei muudaks, on paigaldatud akna ette põrandasse veel lisaks ka põrandakonvektor. Seda tüüpi radiaator on paigutatud spetsiaalsesse süvendisse põrandas ja kaetud restiga, mis laseb soojal õhul tõusta ülespoole, luues sooja õhuseina akna ees. See aitab vältida külma õhu langemist ja kondensaadi teket aknaklaasile, muutes ruumi mugavaks ning hoides vaate puhta.
PARKIMINE JA PANIPAIGAD
Hoonel on auto katusealune, mis mahutab mugavalt kaks autot ning lisaks mahuvad hoovi parkima vajadusel ka külalised. Aeda sisse pääseb läbi puldist avatava elektrilise autovärava. Lisaks on majal mitmeid panipaiga -ning tehnoruume, kus on hea hoiustada nii jalgrattaid, mootorrattaid kui muid vajalikke hobisid.
TERRASS JA HOOV
Elamul on avar, kahes suunas avanev terrass, kus päikesepaiste saadab sind pea kogu päeva. Terrassi päikesepoolsele küljele on integreeritud ujumisbassein, mis kutsub kuumadel suvepäevadel jahutust nautima.
Sissesõidutee ja kahele autole mõeldud varjualune on kaetud stiilsete sillutuskividega, lisades hoovile viimistletud ilme. Soovi korral saab varjualuse hõlpsasti ümber ehitada kinniseks garaažiks.
Kinnistu üheks piiriks on rahulik riigimets, mis tagab hoovipoolel maksimaalse privaatsuse ja looduse lähedase õhkkonna.
Kogu aed on maastikuarhitekti poolt hoolikalt kujundatud, pakkudes silmailu ja samal ajal jäädes hoolduses lihtsaks ja muretuks. Muru hoolitseb iseenda eest tänu robotniidukile, tagades alati hoolitsetud ilmega rohelise vaate.
MAJA
Maja on ehitatud suure hoole ja professionaalsusega, kasutades eranditult kvaliteetseid ja vastupidavaid materjale. Akendeks on puit-alumiinium kolmekordsed pakettaknad, välisseinad ehitatud kivist, katus rullmaterjalist. Välisseina viimistlusel on kasutatud krohvi, puitu ning looduskivi.
Esialgu ehitati maja 2008. aastal ning see võeti kasutusele 2010. aastal. 2020ndatel aastatel on hoone läbinud põhjalikud uuendused, ümberehitused ja renoveerimistööd. Kõik dokumendid on korrektselt vormistatud, sh kasutusteatis esitatud 2023. aastal.
Renoveerimistööd ajateljel:
* 2020: Fassaadi täielik renoveerimine Caparoli krohvsüsteemis.
* 2021: Kogu esimese korruse siseviimistluse uuendus, sealhulgas paigaldati uus naturaalne tammelaudparkett ja renoveeriti täielikult sauna eesruum.
* 2024 kevad: Terrassid ja puitosad hooldati Osmo õlidega, kogu siseviimistlus värskendati sanitaarremondiga ning laudpõrand sai uue hoolduskuuri.
Lisaks on hoonesse paigaldatud valvesignalisatsioon ning videovalve.
ELUKESKKOND
Randvere on rahulik ja peresõbralik elupiirkond, kus linna lähedus kohtub looduslähedusega. Küla pakub idüllilist elukeskkonda neile, kes hindavad vaikust ja rohelust, kuid ei soovi loobuda kiirest ühendusest linnaga. Muuga-poolne asukoht tagab sujuva ligipääsu nii Lasnamäe kui ka Pirita kaudu Tallinna kesklinna.
Igapäevased liikumised on lihtsad — vaid 300 meetri kaugusel asub lähim bussipeatus, kust väljub kesklinna suunduv buss nr 38 ning vallasisesed liinid, mis muudavad liiklemise mugavaks ka ilma autota. Perede jaoks on olulised läheduses asuvad teenused: Randvere keskus, kus paiknevad kool ja lasteaed, on vaid 1,5 km kaugusel, pakkudes lastele turvalist ja kiiret kooliteed.
Lisaks ümbritsevad Randvere kaunid metsarajad ja mereäär, mis pakuvad rohkelt võimalusi vaba aja veetmiseks ning sportimiseks — ideaalne koht neile, kes otsivad tasakaalu rahu, looduse ja linnaelaniku mugavuste vahel.
VAHETUSVÕIMALUS
Paku oma olemasolev vara vahetuseks! Vahetusena võib kaaluda korterit, kinnistut või äripinda, eelistatult Tallinnas või selle lähiümbruses. See on paindlik lahendus neile, kes soovivad kodu vahetada, kuid vajavad samal ajal olemasoleva kinnisvara müümist.
Võta ühendust ning lähme vaatama!
Tegemist on esialgselt 2008 aastal ehitatud majaga, mis 2020ndatel on läbinud põhjaliku uuenduse, ümberehituse ja renoveerimise. Kõik dokumendid on korrektselt vormistatud ning kasutusteatis on esitatud 2023.aastal. Fassaadi täielik renoveerimine on teostatud 2020.aastal Caparoli krohvsüsteemis. 2021.aastal teostati siseviimistluse uuendus terve 1.korruse ulatuses seal hulgas paigaldati uus naturaalne tammelaudparkett ja täielikult uuendati sauna eesruum. Värskelt 2024.aasta kevadel kvaliteetsete Osmo õlidega hooldatud terrassid ja puitosad ning kogu siseviimistlus on saanud värskenduse San.remondi näol ning laudpõrand on hooldatud.
Lisaks pakub omanik majale 1 aasta pikkust tehnosüsteemide garantiid andmaks lisa kindlust maja kvaliteedile.
PLANEERING:
Maja 1. korruse koosseisu kuulub mahuka garderoobiga esik, külaliste wc, majapidamisruum, kaminaruum, pesuruum koos saunaga, kus asub ka maja sisene bassein ning avar ja valgusküllane elutuba-köök.
Maja 2. korruse koosseisu kuulub 3 magamistuba ning tualettruum. Suures magamistoas asub lisaks veel ka mahukas walk-in garderoob, vannituba koos vanni ja duššiga ning panipaiga ruum. Lisaks on võimalik soovi korral teisele korrusele ehitada üks magamistuba juurde.
SISEVIIMISTLUS
Maja siseviimistlus ühendab maitsekalt heledad toonid ja naturaalse puidu, luues avara, valgusküllase ja hubase õhkkonna. Põrandaid katab soe tammeparkett, mis toob ruumidesse ajatut elegantsi. Esik on viimistletud suurte matthallide keraamiliste plaatidega, samal ajal kui köögis annavad iseloomu stiilsed tumedad plaadid.
Sauna eesruum, avar pesuruum ja saun ise on kujundatud modernsete hallide keraamiliste plaatidega, mis lisavad ruumidele kaasaegset ilmet ja vastupidavust. Alumise korruse WC-s kohtuvad tumedad keraamilised plaadid ja maalähedased värvitoonid, ülemise korruse WC-s aga loob soojust puidust põrand. Master bedroomi privaatne vannituba kombineerib pruunikaid keraamilisi plaate ja naturaalset puitpõrandat, pakkudes luksuslikku, ent samas kodust tunnet. Mõnusat kodutunnet on sisse toodud ka puidutooni siseuste ja liistudega ning modernset joont aitavad hoida suured ning massiivsed klaaspinnad.
KÜTE JA VENTILATSIOON
Maja kütteallikaks on mugav ning energiatõhus õhk/vesi soojuspump ning toad aitab soojana hoida reguleeritav vesipõranda küte ning teisel korrusel reguleeritavad radiaatorid. Õhku aitavad värskena hoida seintele paigaldatud Fresh klapid ning märgalades ja köögis sundventilatsioon. Et talvisel perioodil elutoa suur aknapind tuba jahedaks ei muudaks, on paigaldatud akna ette põrandasse veel lisaks ka põrandakonvektor. Seda tüüpi radiaator on paigutatud spetsiaalsesse süvendisse põrandas ja kaetud restiga, mis laseb soojal õhul tõusta ülespoole, luues sooja õhuseina akna ees. See aitab vältida külma õhu langemist ja kondensaadi teket aknaklaasile, muutes ruumi mugavaks ning hoides vaate puhta.
PARKIMINE JA PANIPAIGAD
Hoonel on auto katusealune, mis mahutab mugavalt kaks autot ning lisaks mahuvad hoovi parkima vajadusel ka külalised. Aeda sisse pääseb läbi puldist avatava elektrilise autovärava. Lisaks on majal mitmeid panipaiga -ning tehnoruume, kus on hea hoiustada nii jalgrattaid, mootorrattaid kui muid vajalikke hobisid.
TERRASS JA HOOV
Elamul on avar, kahes suunas avanev terrass, kus päikesepaiste saadab sind pea kogu päeva. Terrassi päikesepoolsele küljele on integreeritud ujumisbassein, mis kutsub kuumadel suvepäevadel jahutust nautima.
Sissesõidutee ja kahele autole mõeldud varjualune on kaetud stiilsete sillutuskividega, lisades hoovile viimistletud ilme. Soovi korral saab varjualuse hõlpsasti ümber ehitada kinniseks garaažiks.
Kinnistu üheks piiriks on rahulik riigimets, mis tagab hoovipoolel maksimaalse privaatsuse ja looduse lähedase õhkkonna.
Kogu aed on maastikuarhitekti poolt hoolikalt kujundatud, pakkudes silmailu ja samal ajal jäädes hoolduses lihtsaks ja muretuks. Muru hoolitseb iseenda eest tänu robotniidukile, tagades alati hoolitsetud ilmega rohelise vaate.
MAJA
Maja on ehitatud suure hoole ja professionaalsusega, kasutades eranditult kvaliteetseid ja vastupidavaid materjale. Akendeks on puit-alumiinium kolmekordsed pakettaknad, välisseinad ehitatud kivist, katus rullmaterjalist. Välisseina viimistlusel on kasutatud krohvi, puitu ning looduskivi.
Esialgu ehitati maja 2008. aastal ning see võeti kasutusele 2010. aastal. 2020ndatel aastatel on hoone läbinud põhjalikud uuendused, ümberehitused ja renoveerimistööd. Kõik dokumendid on korrektselt vormistatud, sh kasutusteatis esitatud 2023. aastal.
Renoveerimistööd ajateljel:
* 2020: Fassaadi täielik renoveerimine Caparoli krohvsüsteemis.
* 2021: Kogu esimese korruse siseviimistluse uuendus, sealhulgas paigaldati uus naturaalne tammelaudparkett ja renoveeriti täielikult sauna eesruum.
* 2024 kevad: Terrassid ja puitosad hooldati Osmo õlidega, kogu siseviimistlus värskendati sanitaarremondiga ning laudpõrand sai uue hoolduskuuri.
Lisaks on hoonesse paigaldatud valvesignalisatsioon ning videovalve.
ELUKESKKOND
Randvere on rahulik ja peresõbralik elupiirkond, kus linna lähedus kohtub looduslähedusega. Küla pakub idüllilist elukeskkonda neile, kes hindavad vaikust ja rohelust, kuid ei soovi loobuda kiirest ühendusest linnaga. Muuga-poolne asukoht tagab sujuva ligipääsu nii Lasnamäe kui ka Pirita kaudu Tallinna kesklinna.
Igapäevased liikumised on lihtsad — vaid 300 meetri kaugusel asub lähim bussipeatus, kust väljub kesklinna suunduv buss nr 38 ning vallasisesed liinid, mis muudavad liiklemise mugavaks ka ilma autota. Perede jaoks on olulised läheduses asuvad teenused: Randvere keskus, kus paiknevad kool ja lasteaed, on vaid 1,5 km kaugusel, pakkudes lastele turvalist ja kiiret kooliteed.
Lisaks ümbritsevad Randvere kaunid metsarajad ja mereäär, mis pakuvad rohkelt võimalusi vaba aja veetmiseks ning sportimiseks — ideaalne koht neile, kes otsivad tasakaalu rahu, looduse ja linnaelaniku mugavuste vahel.
VAHETUSVÕIMALUS
Paku oma olemasolev vara vahetuseks! Vahetusena võib kaaluda korterit, kinnistut või äripinda, eelistatult Tallinnas või selle lähiümbruses. See on paindlik lahendus neile, kes soovivad kodu vahetada, kuid vajavad samal ajal olemasoleva kinnisvara müümist.
Võta ühendust ning lähme vaatama!


























































