See kaunis maja asub vaid 12 km kaugusel Kesklinnast ning pakub suurepärast hinna ja kvaliteedi suhet.
Maja on ehitatud avatud planeeringuga ning on täis loomulikku valgust.
Hoone kande- ja jäigastavate konstruktsioonid tehtud tellist ning metallist, välisfassaad on krohvitud ning kasutatud looduslik kivi.
Majal olemas kasutusluba, mis on saadud jaanuaris 2024. aastal.
Maja asub ilusas ja vaikses kohas eramajade piirkonnas.
Majas on 2 täispikka korrust ning võimalus teha pööning eluruumiks.
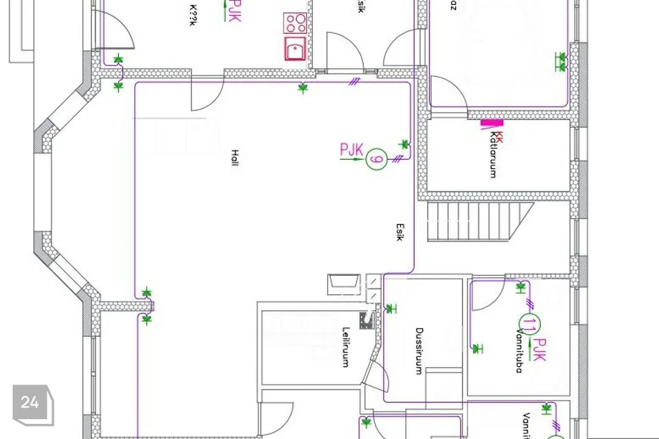
Esimene korrus sisaldab esikut, 3 duširuumi ja 2 WC-d, sauna, 2 kööki, avar elutuba, magamistuba, garaaži ja katlaruumi ning suurt terrassi.
Teine korrus sisaldab avar trepihall , 4 magamistuba, kabinett, rõdu, walk-in garderoobi, 2 vannituba ning 2 WC-d.
Lähme koos majas ringi. Esimesel korrusel asub:
Avar koridor sisseehitatud garderoobiga. Koridorist pääseb garaaži ja katlaruumi. Otse koridorist edasi minnes jõuame elutuppa kamina. Elutoast on ka pääs köögile kust on väljapääs terrassile. Elutoa teiseltpoolt on väljapääs teisele köögile, kus on eraldi magamistuba, saun kahe dušiga ning võimalus paigaldada sinna ka mullivann. Eraldi duširuum koos tualetiga ja väljapääs õue. Trepi all, mis viib teisele korrusele, asub tualett ja suur nurgavanniga vannituba.
Teisele korrusele minnes jõuame avarasse koridori, millest pääseb kabinetti, mis omakorda viib magamistuppa koos oma WC-duširuumiga. Lisaks on eraldi duširuumiga tualettruum koridorist ning 3 magamistuba, millest üksulatub rõdule. Olemas ka teasel korrusel walk-in garderoob.
Majas on kokku 5 magamistuba, 2 kööki, avar elutuba kaminaga, saun guššinurgaga, 4 vannituba. Maja on võimalik jagada kaheks osaks eraldi sissepääsude ja köökidega. Kui Teil on suur pere, kuid soovite koos elada, siis see variant sobib Teile ideaalselt!
Või kui te lihtsalt armastate avarust ja hubasust, siis see maja sobib suurepäraselt ka Teile. Iga pere liige hindab seda maja väärikalt!
Maja on igast küljest aiaga ümbritsetud. Hoovis on kaunis aed ja 2 kasvuhoonet. Samuti on olemas 2 aiamajakest aiatööriistade, mootorrataste ja isiklike asjade hoidmiseks.
Hea meelega vastan tekkinud küsimustele ja näitan teile maja!
Maja on ehitatud avatud planeeringuga ning on täis loomulikku valgust.
Hoone kande- ja jäigastavate konstruktsioonid tehtud tellist ning metallist, välisfassaad on krohvitud ning kasutatud looduslik kivi.
Majal olemas kasutusluba, mis on saadud jaanuaris 2024. aastal.
Maja asub ilusas ja vaikses kohas eramajade piirkonnas.
Majas on 2 täispikka korrust ning võimalus teha pööning eluruumiks.
Esimene korrus sisaldab esikut, 3 duširuumi ja 2 WC-d, sauna, 2 kööki, avar elutuba, magamistuba, garaaži ja katlaruumi ning suurt terrassi.
Teine korrus sisaldab avar trepihall , 4 magamistuba, kabinett, rõdu, walk-in garderoobi, 2 vannituba ning 2 WC-d.
Lähme koos majas ringi. Esimesel korrusel asub:
Avar koridor sisseehitatud garderoobiga. Koridorist pääseb garaaži ja katlaruumi. Otse koridorist edasi minnes jõuame elutuppa kamina. Elutoast on ka pääs köögile kust on väljapääs terrassile. Elutoa teiseltpoolt on väljapääs teisele köögile, kus on eraldi magamistuba, saun kahe dušiga ning võimalus paigaldada sinna ka mullivann. Eraldi duširuum koos tualetiga ja väljapääs õue. Trepi all, mis viib teisele korrusele, asub tualett ja suur nurgavanniga vannituba.
Teisele korrusele minnes jõuame avarasse koridori, millest pääseb kabinetti, mis omakorda viib magamistuppa koos oma WC-duširuumiga. Lisaks on eraldi duširuumiga tualettruum koridorist ning 3 magamistuba, millest üksulatub rõdule. Olemas ka teasel korrusel walk-in garderoob.
Majas on kokku 5 magamistuba, 2 kööki, avar elutuba kaminaga, saun guššinurgaga, 4 vannituba. Maja on võimalik jagada kaheks osaks eraldi sissepääsude ja köökidega. Kui Teil on suur pere, kuid soovite koos elada, siis see variant sobib Teile ideaalselt!
Või kui te lihtsalt armastate avarust ja hubasust, siis see maja sobib suurepäraselt ka Teile. Iga pere liige hindab seda maja väärikalt!
Maja on igast küljest aiaga ümbritsetud. Hoovis on kaunis aed ja 2 kasvuhoonet. Samuti on olemas 2 aiamajakest aiatööriistade, mootorrataste ja isiklike asjade hoidmiseks.
Hea meelega vastan tekkinud küsimustele ja näitan teile maja!


























































