Kõigest mõne minuti autosõidu kaugusel Tartu kesklinnast ootab Sinu pere, 2025. aastal valmiv eramu Kõrveküla hinnatud elamupiirkonnas. Kaasaegne ja avara planeeringuga A-energiaklassi kodu pakub suurepärast tasakaalu linnaläheduse ja loodusläheduse vahel.
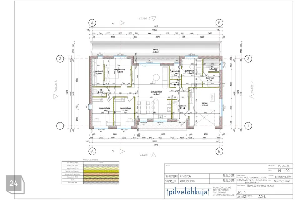
Maja südameks on valgusküllane elutuba, mis on ühendatud avatud köögiga – ideaalne koht perega koosolemiseks. Suur master-bedroom on varustatud privaatse walk-in garderoobiga, lisaks on kaks hubast magamistuba, mis sobivad suurepäraselt nii lastele kui ka kodukontoriks. Maja koosseisu kuuluvad ka praktiline majapidamisruum, kaks tualetti ning kaasaegne saun koos duširuumiga, pakkudes kõiki mugavusi ühel tasapinnal.
Sooja ja mugavust aitab tagada ökonoomne maaküte, millele lisandub igas toas eraldi reguleeritav temperatuur. Soojustagastusega ventilatsioon tagab aastaringselt meeldiva sisekliima. Kõik tehnosüsteemid on kaasaegsed ja usaldusväärsed – majas on tsentraalne vesi ja kanalisatsioon, valguskaabel kiireks internetiks ning elektri võimsus 3x16 A.
Hoone ehitusel on kasutatud kvaliteetseid materjale – kivimaja, kivikatus, 3-kordsed pakettaknad ning puitlaudis fassaad annab majale elegantse väljanägemise. Garaaž, betoneeritud sissesõidutee ja 43,4m2 terrass.
Kõrveküla kogukond pakub kõike, mida pere vajab – läheduses on kool, lasteaed, muusikakool, spordikompleks, kauplused ning head ühistranspordiühendused. Piirkond kasvab jõudsalt, mis teeb igapäevaelu veelgi mugavamaks.
Kui otsid uut kodu, mis oleks läbimõeldud, energiatõhus ja kvaliteetselt ehitatud, siis Kõrveringi 13 pakub kõike seda ja rohkemgi veel. Võta ühendust, et tulla tutvuma selle suurepärase koduga!
Arendaja jätab õiguse teha muudatusi, pildid on visualiseering ja võib erineda tegelikkusest!








