Müüa kolmetoaline elamu koos keldriga Ropka linnaosas, mille suletud netopind on 93,10 ruutmeetrit, millest elamispind moodustab 67,6 ruutmeetrit. Omalajal oli tegemist paariselamuga, tänaseks on see registreeritud elamuna. Kinnistul asuvad veel garaaž, kasvuhoone ja ümberehitamise võimalusega kõrvalhoone. Elamust ca 3,1 km kaugusel asuvad Ropka mõis ja ligi 12 ha suurune Ropka park.
Kõrvalhoonele on väljastatud ehitusteatis ja -projekt, hoonele on ehitatud peale ka teine korrus. Kõrvalhoones asuvad I korrusel eraldi sissepääsuga õuesti kaks kuuriboksi ning saun. II korrusel on üks tuba ja köök. Kõrvalhoone ei ole kasutuses olnud, mistõttu vajab see korrastamist ja remonti, samas hea võimalus ehitada see vastavalt oma soovide ja vajaduste järgi. Kõrvalhoone pindala on ca 61 ruutmeetrit ja kõrgus 4.50 ruutmeetrit.
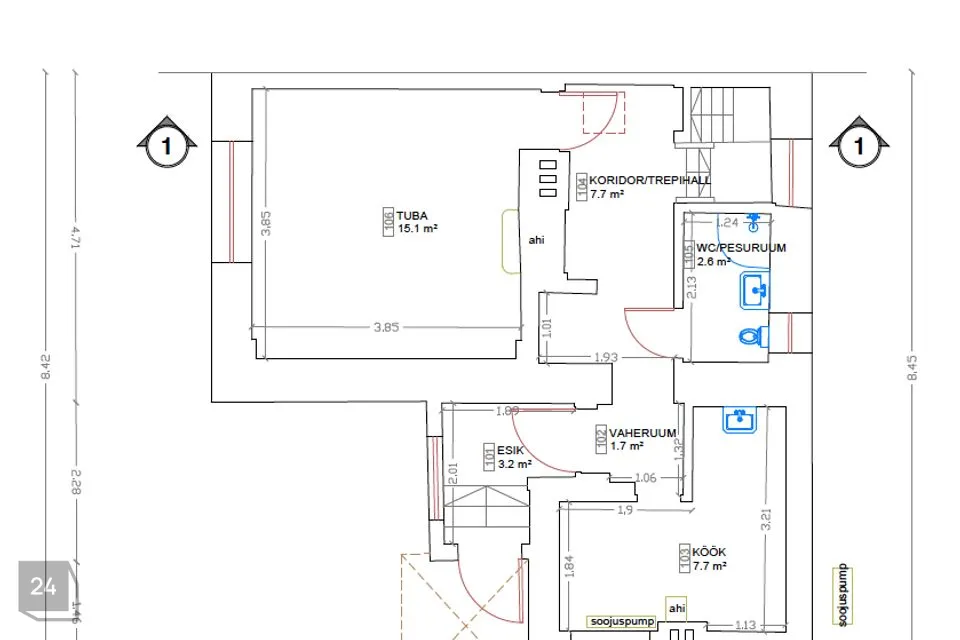
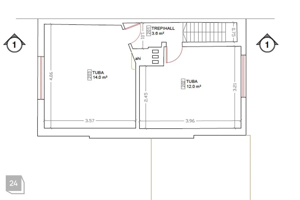
Küttekolded on hoonel korras, väljastatud on positiivne korstnapühkimise akt. Kinnistule tuleb tsentraalne vesi ja kanalisatsioon. Lisaks ahjudele, millest kaks tükki asuavd I korrusel ja üks II korrusel, on võimalik kasutada ka õhk-õhksoojuspumpa elamu kütmiseks.
Elamu elektrisüsteem on 3-faasiline ja 16A.
I korrusel asuvad tuulekoda, esik, köök, wc-vannituba ja üks tuba.
II korrusel asuvad kaks tuba ja trepihall.
Elamu elektrisüsteem on kontrollitud ja väljastatud on positiivne elektri audit.
Elamu plaanid on lisatud viimasteks fotodeks kuulutuse juurde
Elamusse jääv mööbel ja tehnika kokkuleppel ostja ja müüja vahel. Esikus on mahukas seinakapp.
Elamusse levib Telia internetiühendus.
Läheduses asuvad Tartu Pärli Kool (ca 450 m), Tartu Variku Kool (ca 350 m), Variku Spordikesksus (ca 350 m), Aardla Selver (ca 2,4 km), Aardla Rimi (ca 550 m), Eralasteaed Rüblik (ca 900 m), Tartu Lasteaed Rukkilill (ca 650 m), Karete Konsum (ca 500 m), Tartu Rakenduslik Kolledž (ca 450 m), Tartu Tamme Gümnaasium (ca 2,1 km).
Võta ühendust ja läheme vaatama.
Kõrvalhoonele on väljastatud ehitusteatis ja -projekt, hoonele on ehitatud peale ka teine korrus. Kõrvalhoones asuvad I korrusel eraldi sissepääsuga õuesti kaks kuuriboksi ning saun. II korrusel on üks tuba ja köök. Kõrvalhoone ei ole kasutuses olnud, mistõttu vajab see korrastamist ja remonti, samas hea võimalus ehitada see vastavalt oma soovide ja vajaduste järgi. Kõrvalhoone pindala on ca 61 ruutmeetrit ja kõrgus 4.50 ruutmeetrit.
Küttekolded on hoonel korras, väljastatud on positiivne korstnapühkimise akt. Kinnistule tuleb tsentraalne vesi ja kanalisatsioon. Lisaks ahjudele, millest kaks tükki asuavd I korrusel ja üks II korrusel, on võimalik kasutada ka õhk-õhksoojuspumpa elamu kütmiseks.
Elamu elektrisüsteem on 3-faasiline ja 16A.
I korrusel asuvad tuulekoda, esik, köök, wc-vannituba ja üks tuba.
II korrusel asuvad kaks tuba ja trepihall.
Elamu elektrisüsteem on kontrollitud ja väljastatud on positiivne elektri audit.
Elamu plaanid on lisatud viimasteks fotodeks kuulutuse juurde
Elamusse jääv mööbel ja tehnika kokkuleppel ostja ja müüja vahel. Esikus on mahukas seinakapp.
Elamusse levib Telia internetiühendus.
Läheduses asuvad Tartu Pärli Kool (ca 450 m), Tartu Variku Kool (ca 350 m), Variku Spordikesksus (ca 350 m), Aardla Selver (ca 2,4 km), Aardla Rimi (ca 550 m), Eralasteaed Rüblik (ca 900 m), Tartu Lasteaed Rukkilill (ca 650 m), Karete Konsum (ca 500 m), Tartu Rakenduslik Kolledž (ca 450 m), Tartu Tamme Gümnaasium (ca 2,1 km).
Võta ühendust ja läheme vaatama.
--
Müüme, hindame ja teeme Sinu kinnisvara dokumendid korda - iga päev, suurima rõõmu ja pühendumisega!
Edasta müügisoov www.arcovara.ee/et/#edasta-myygisoov
Telli hindamine www.arcovara.ee/et/#telli-hindamine
Saada ehitus- või kasutusloa soov seadustamine.arcovara.ee




























