Müüa suurepärase asukohaga terve hoovipoolne kortermaja miljööväärtuslikus Tallinna vanalinna südames- kus kohtuvad ainulaadsed söögikohad, rikkalik kultuuri- ja hariduskeskkond ning keskaegne Vanalinn kui UNESCO maailmapärand.
Kuninga 1 hoone on Tallinna hinnatuima piirkonna üks värvikamatest esindajatest. Tegu on äärmiselt pika ajalooga uhke 3-korruselise korterelamuga.
Uuel omanikul on võimalus kõik kortermajas olevad korteriomandid liita ning ehitada endale unikaalne Vanalinna kodu läbi kolme korruse!
HOONE AJALUGU
Hoone krundi kohta on esimesed teated 1339. aastast. Krundil asuvat hoonet on esmakordselt mainitud 1407. aastal seoses väravahoone ehitamisega. Tänase hoone dateeringu aluseks on praeguseks hävinud võlvidest säilinud päiskivi, millel on aastaarv 1451. Hoone fassaadi sarnasus Pirita kloostri kiriku viiluga lubab hoone rajamist seostada Pirital tegutsenud meistri H. Swalbarti tegevusega.
PLANEERING
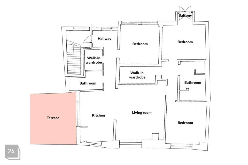
Tegu on 3-korruselise kortermajaga, mille üldpind on 726.3 ruutmeetrit. Üldpinnale lisandub nii katuseterrass kui ka rõdu.
Kortermaja 1. korrusel asub fuajee (80.4 m²), trepihall (19.6 m²) ning garaaž 6-le autole (168.3 m²).
2. korrusel asub 2 eraldiseisvat korteriomandit: korter 14 (166.9 m²) ning korter 14a (80.8 m²). Kahte korterit eraldab 21.8 ruutmeetrine trepikoda. Korter 14 juurde kuulub elutuba, magamistuba, kontor, köök, 2 vannituba ning 2 walk-in garderoobi. Korter 14a juurde kuulub elutuba, magamistuba, köök, vannituba ning walk-in garderoob.
3. korrusel asub vaid 1 katusekorter – korter 15 (183.2 m²) ning trepihall (5.5 m²). Korter 15 juurde kuulub elutuba, köök, 2 magamistuba, 1 kontor, 2 vannituba ning walk-in garderoob. Korteri üldpinnale lisandub nii katuseterrass kui ka rõdu.
Hoonel on 3 eraldi sissepääsu, autoga pääseb nii sisehoovi kui ka parkimisgaraaži Vana-Posti tänava poolsest väravast.
SISEVIIMISTLUS
Kogu kortermaja ning selle osad on renoveeritud.
Nendes hubastes läbi maja paiknevates Vanalinna korterites on tänu suurtele akendele rohkelt valgust ning helgust.
Korterites kohtuvad modernsus, ajalugu ja Vanalinna väärikus kõige ehedamal kujul. Need on kodud, kus kaasaegse disainiga modernsed lahendused on täiuslikult sobitatud rustikaalses stiilis ajalooliste elementidega.
Nostalgilist hõngu lisavad Vanalinna korteritele iseloomulikud kõrged laed, paksud paekivi seinad ning ruume ühendavad võlvid.
Ehitusel kasutatud viimistlusmaterjalide valikul on arvestatud korteris säilinud ajalooliste detailidega, luues ühtse harmoonilise terviku. Tulemuseks on ajaloolise hõnguga, selgelt eristuvad, moodsad ja luksuslikud Vanalinna korterid.
KÜTE
Korteri küte on lahendatud kaugkeskkütte baasil. Kuninga 1 hoonetekompleksis on tegus korteriühistu ning mõistlikud kommunaalkulud.
PARKIMINE
Lisaks hoone 1. korrusel asuvale garaažile on võimalik majaesisel tänaval (T2 parkimise piirkonna tsoonis) parkida ka linnaelaniku loaga. Jalutuskäigu kaugusel asuvad Aia tn 7 Europark ja Väike Rannavärav 6 Barking Parkla parklad.
ASUKOHT
Sisenedes avarasse hoovi läbi Kuninga tänava poolse maja värava, avaneb silmale imeline salaõu, mille eraldatus on selle suurim väärtus. Keset õue, kuhu tänavamelu ja ilmakära ei kostu, tekib muust maailmast täieliku eraldatuse tunne, sest müüride ja värava taga käib vanalinna tavapärane sagin, melu ja argipäev ikka edasi – munakivi tänavatel liiguvad inimesed, eemalt kostub vaikne muusika. Kuid kõik see jääb Kuninga 1 maja väravate ja seinte taha, aias olles kuuleb kõrv vaid linnulaulu ja silm näeb sisehoovi katkematut hubasust. Siin võib unustada, et oled linna südames, keset inimestest pakatavat Vanalinna.
Korter asub vaid mõneminutilise jalutuskäigu kaugusel õdusatest kohvikutest ja peentest restoranidest, kultuurist ja meelelahutusest ning kaunitest parkidest ja atraktiivsest merele avatud sadamaalast. Logistiliselt lihtne ja kiire on ka ligipääs nii sadamale kui lennujaamale.
Lähim toidukauplus on Vanalinna Rimi ja Kaubamaja toidupood. Lisaks veel läheduses Viru Keskus, Kaubamaja, Rotermanni Kvartal, Kalev Spa, My Fitness spordiklubi, Coca-cola Plaza kino ja palju muud.
Vanalinna tegusale piirkonnale annab veel ühe lisaväärtuse kõrgel tasemel haridust pakkuvate koolide lähedus – kõigest mõnesaja meetri kaugusel on Gustav Adolfi Gümnaasium ja lähedusse jäävad nii Vanalinna Hariduskolleegium kui ka G. Otsa Tallinna Muusikakool. Lähimad lasteaiad on Vanalinna Lasteaed ja Vanalinna Hariduskolleegiumi lasteaed Aiake.
Korter sobib ideaalselt elamiseks vanalinna võlusid hindavale inimesele, aga ka investeerimise eesmärgil majutuskoha pakkujaile.
Huvi korral võtke palun ühendust, et leppida kokku sobiv aeg korteriga tutvumiseks.
Kuninga 1 hoone on Tallinna hinnatuima piirkonna üks värvikamatest esindajatest. Tegu on äärmiselt pika ajalooga uhke 3-korruselise korterelamuga.
Uuel omanikul on võimalus kõik kortermajas olevad korteriomandid liita ning ehitada endale unikaalne Vanalinna kodu läbi kolme korruse!
HOONE AJALUGU
Hoone krundi kohta on esimesed teated 1339. aastast. Krundil asuvat hoonet on esmakordselt mainitud 1407. aastal seoses väravahoone ehitamisega. Tänase hoone dateeringu aluseks on praeguseks hävinud võlvidest säilinud päiskivi, millel on aastaarv 1451. Hoone fassaadi sarnasus Pirita kloostri kiriku viiluga lubab hoone rajamist seostada Pirital tegutsenud meistri H. Swalbarti tegevusega.
PLANEERING
Tegu on 3-korruselise kortermajaga, mille üldpind on 726.3 ruutmeetrit. Üldpinnale lisandub nii katuseterrass kui ka rõdu.
Kortermaja 1. korrusel asub fuajee (80.4 m²), trepihall (19.6 m²) ning garaaž 6-le autole (168.3 m²).
2. korrusel asub 2 eraldiseisvat korteriomandit: korter 14 (166.9 m²) ning korter 14a (80.8 m²). Kahte korterit eraldab 21.8 ruutmeetrine trepikoda. Korter 14 juurde kuulub elutuba, magamistuba, kontor, köök, 2 vannituba ning 2 walk-in garderoobi. Korter 14a juurde kuulub elutuba, magamistuba, köök, vannituba ning walk-in garderoob.
3. korrusel asub vaid 1 katusekorter – korter 15 (183.2 m²) ning trepihall (5.5 m²). Korter 15 juurde kuulub elutuba, köök, 2 magamistuba, 1 kontor, 2 vannituba ning walk-in garderoob. Korteri üldpinnale lisandub nii katuseterrass kui ka rõdu.
Hoonel on 3 eraldi sissepääsu, autoga pääseb nii sisehoovi kui ka parkimisgaraaži Vana-Posti tänava poolsest väravast.
SISEVIIMISTLUS
Kogu kortermaja ning selle osad on renoveeritud.
Nendes hubastes läbi maja paiknevates Vanalinna korterites on tänu suurtele akendele rohkelt valgust ning helgust.
Korterites kohtuvad modernsus, ajalugu ja Vanalinna väärikus kõige ehedamal kujul. Need on kodud, kus kaasaegse disainiga modernsed lahendused on täiuslikult sobitatud rustikaalses stiilis ajalooliste elementidega.
Nostalgilist hõngu lisavad Vanalinna korteritele iseloomulikud kõrged laed, paksud paekivi seinad ning ruume ühendavad võlvid.
Ehitusel kasutatud viimistlusmaterjalide valikul on arvestatud korteris säilinud ajalooliste detailidega, luues ühtse harmoonilise terviku. Tulemuseks on ajaloolise hõnguga, selgelt eristuvad, moodsad ja luksuslikud Vanalinna korterid.
KÜTE
Korteri küte on lahendatud kaugkeskkütte baasil. Kuninga 1 hoonetekompleksis on tegus korteriühistu ning mõistlikud kommunaalkulud.
PARKIMINE
Lisaks hoone 1. korrusel asuvale garaažile on võimalik majaesisel tänaval (T2 parkimise piirkonna tsoonis) parkida ka linnaelaniku loaga. Jalutuskäigu kaugusel asuvad Aia tn 7 Europark ja Väike Rannavärav 6 Barking Parkla parklad.
ASUKOHT
Sisenedes avarasse hoovi läbi Kuninga tänava poolse maja värava, avaneb silmale imeline salaõu, mille eraldatus on selle suurim väärtus. Keset õue, kuhu tänavamelu ja ilmakära ei kostu, tekib muust maailmast täieliku eraldatuse tunne, sest müüride ja värava taga käib vanalinna tavapärane sagin, melu ja argipäev ikka edasi – munakivi tänavatel liiguvad inimesed, eemalt kostub vaikne muusika. Kuid kõik see jääb Kuninga 1 maja väravate ja seinte taha, aias olles kuuleb kõrv vaid linnulaulu ja silm näeb sisehoovi katkematut hubasust. Siin võib unustada, et oled linna südames, keset inimestest pakatavat Vanalinna.
Korter asub vaid mõneminutilise jalutuskäigu kaugusel õdusatest kohvikutest ja peentest restoranidest, kultuurist ja meelelahutusest ning kaunitest parkidest ja atraktiivsest merele avatud sadamaalast. Logistiliselt lihtne ja kiire on ka ligipääs nii sadamale kui lennujaamale.
Lähim toidukauplus on Vanalinna Rimi ja Kaubamaja toidupood. Lisaks veel läheduses Viru Keskus, Kaubamaja, Rotermanni Kvartal, Kalev Spa, My Fitness spordiklubi, Coca-cola Plaza kino ja palju muud.
Vanalinna tegusale piirkonnale annab veel ühe lisaväärtuse kõrgel tasemel haridust pakkuvate koolide lähedus – kõigest mõnesaja meetri kaugusel on Gustav Adolfi Gümnaasium ja lähedusse jäävad nii Vanalinna Hariduskolleegium kui ka G. Otsa Tallinna Muusikakool. Lähimad lasteaiad on Vanalinna Lasteaed ja Vanalinna Hariduskolleegiumi lasteaed Aiake.
Korter sobib ideaalselt elamiseks vanalinna võlusid hindavale inimesele, aga ka investeerimise eesmärgil majutuskoha pakkujaile.
Huvi korral võtke palun ühendust, et leppida kokku sobiv aeg korteriga tutvumiseks.

















































