See 30ndatest pärinev kodu asub Pelgulinna roheluses - piirkonnas, kus ajalugu kohtub rahuliku elutempoga.
MAJA
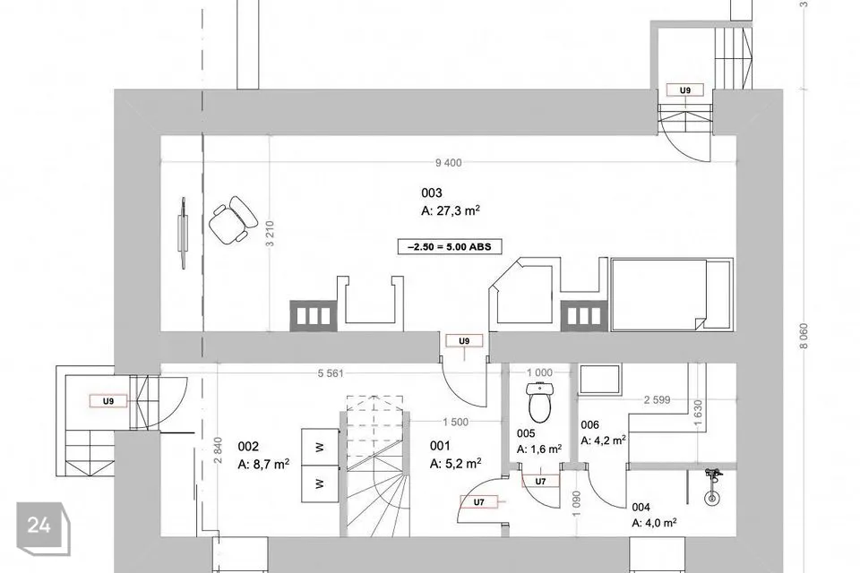
I korrus: Hoone esimesel korrusel paikneb avar elutuba avatud köögiga, kolm magamistuba, duširuum, eraldi WC. Elutoast viib trepp katusealusesse magamistuppa, mida saab kasutada ka külalistetoa või lastetoana.
II korrus: Teisel korrusel ootab väiksem elutuba/töötuba, kust pääseb suurele rõdule ning master-bedroom koos privaatse vannitoaga.
0 korrus: Keldrikorrusel asub koos pesemisvõimalusega elektri/puukerisega saun, WC, abiruum pesumasina ja kuivati jaoks ning avar lisatuba, mis toimib ideaalselt kodukontori või hobiruumina.
GARAAŽ JA PARKIMINE
Maja 0 korrusel on 30,3 m² suurune soe garaaž, mis pakub ruumi nii autole kui ka panipaigale. Värav puldist avanev ja maja esisel hoovialal on parkimiskohti mitmele autole ning olemas on ka elektriauto laadimisvõimalus. Maja ees tänaval tasuta parkimisvõimalus.
EHR andmed korrastamise.
KINNISTU
631 m² suurune kinnistu on kõrghaljastatud, privaatne ja hoolitsetud. Aias kasvavad kirsid ja õunapuu, lisaks silmailu ja varju pakkuvad puud - kastanid, hõbekuusk ning mitmed ilupuud. Hoovis paiknev aiamaja suitsuahjuga sobib suurepäraselt suvisteks õhtusöökideks või nädalavahetuste nautimiseks pere ja sõpradega. Kogu kinnistut ümbritseb aed, mis tagab privaatsuse ja turvalisuse.
KOMMUNAALKULUD
Suvel ca 300 € (sh elektriauto laadimine)
Talvel ca 650 € (sh elektriauto laadimine)
KOMMUNIKATSIOONID
Majas on töökorras küttekolded ja igal korrusel ka õhksoojuspump, tagades efektiivse ja mitmekesise küttelahenduse. Olemas on tsentraalne veevarustus ja kanalisatsioon. Elektrivõimsus: 3x40 A.
ASUKOHT JA ÜMBRUS
Kolde pst 42 asub rohelises ja vaikses Pelgulinna asumis - piirkonnas, mis on armastatud oma kogukonnatunde ja peresõbraliku elukeskkonna poolest. Mõned minutid kesklinnast ning teiselt poolt jalutuskäigu kaugusel Stroomi rand ja kergliiklustee Haaberstini.
Läheduses asuvad mitmed koolid: Avatud Kool, Pelgulinna Gümnaasium, Ristiku Põhikool, Tallinna Kunstigümnaasium. Lasteaiakohti pakuvad Kolde Lasteaed, Rukkiräägu Lasteaed ja Taime Lasteaed.
Igapäevaseks ostlemiseks on mugavalt lähedal Kolde Selver ja Rimi ning mitmed väiksemad kauplused ja pagaritöökojad. Lühikese jalutuskäigu kaugusel asuvad Balti Jaama Turg ning Telliskivi loomelinnak, kust leiab inspireeriva valiku restorane, kohvikuid, galeriisid ja kultuuriüritusi.
Looduse ja liikumise sõpradele on läheduses Stroomi rand, Merimetsa parkmets, mitmed terviserajad ning spordiklubid. Ühistranspordiühendus kesklinnaga on kiire ja mugav – maja kõrval nr 40 bussipeatus ning 200m eemal Sõle tn transpordisõlmena, ühendades sind sujuvalt kogu linnaga.
Kolde pst 42 on ideaalne kodu neile, kes hindavad vaikust, rohelust ja linna südamele lähedast asukohta.
Vastan meeleldi kõigile lisaküsimustele, helista ja tule oma uue koduga tutvuma.
Soovid oma kinnisvara välja üürida, müüa või hinnangut saada?
Võta minuga ühendust +372 **** 8721
JAGA MINU KONTAKTI KÕIGILE, KES VAJAVAD KINNISVARANÕU!
- - - - - - - - - -
Telli hindamine UUS MAA Kinnisvarabüroolt https://uusmaa.ee/teenused/hindamine/
ning saad:
- Eksperthinnangu kuni 20% soodsamalt kui võtad koduga seotud laenu Swedbankist
- Pankadest parimad kodulaenutingimused
- Kiire, kvaliteetse ning usaldusväärse hindamisteenuse Eestis
UUS MAA KINNISVARABÜROO EKSPERTHINNANGUID AKTSEPTEERIVAD KÕIK FINANTSASUTUSED.
- - - - - - - - - -
Liitu Uus Maa uudiskirjaga ja saa homset kinnisvarainfot juba täna!
https://www.uusmaa.ee/uudiskirjagaliitumine/
- - - - - - - - - -
Kodu aitab osta Swedbank.
Pakkumise saamiseks kasuta koodi UUSMAA ja Sind teenindatakse eelisjärjekorras.
Võtame ühendust 1 tööpäeva jooksul.
Uus Maa kliendile soodsam lepingutasu. Küsi täpsemat infot maaklerilt.
Finantsteenuseid pakub Swedbank AS. Tutvu tingimustega, pea nõu.
MAJA
I korrus: Hoone esimesel korrusel paikneb avar elutuba avatud köögiga, kolm magamistuba, duširuum, eraldi WC. Elutoast viib trepp katusealusesse magamistuppa, mida saab kasutada ka külalistetoa või lastetoana.
II korrus: Teisel korrusel ootab väiksem elutuba/töötuba, kust pääseb suurele rõdule ning master-bedroom koos privaatse vannitoaga.
0 korrus: Keldrikorrusel asub koos pesemisvõimalusega elektri/puukerisega saun, WC, abiruum pesumasina ja kuivati jaoks ning avar lisatuba, mis toimib ideaalselt kodukontori või hobiruumina.
GARAAŽ JA PARKIMINE
Maja 0 korrusel on 30,3 m² suurune soe garaaž, mis pakub ruumi nii autole kui ka panipaigale. Värav puldist avanev ja maja esisel hoovialal on parkimiskohti mitmele autole ning olemas on ka elektriauto laadimisvõimalus. Maja ees tänaval tasuta parkimisvõimalus.
EHR andmed korrastamise.
KINNISTU
631 m² suurune kinnistu on kõrghaljastatud, privaatne ja hoolitsetud. Aias kasvavad kirsid ja õunapuu, lisaks silmailu ja varju pakkuvad puud - kastanid, hõbekuusk ning mitmed ilupuud. Hoovis paiknev aiamaja suitsuahjuga sobib suurepäraselt suvisteks õhtusöökideks või nädalavahetuste nautimiseks pere ja sõpradega. Kogu kinnistut ümbritseb aed, mis tagab privaatsuse ja turvalisuse.
KOMMUNAALKULUD
Suvel ca 300 € (sh elektriauto laadimine)
Talvel ca 650 € (sh elektriauto laadimine)
KOMMUNIKATSIOONID
Majas on töökorras küttekolded ja igal korrusel ka õhksoojuspump, tagades efektiivse ja mitmekesise küttelahenduse. Olemas on tsentraalne veevarustus ja kanalisatsioon. Elektrivõimsus: 3x40 A.
ASUKOHT JA ÜMBRUS
Kolde pst 42 asub rohelises ja vaikses Pelgulinna asumis - piirkonnas, mis on armastatud oma kogukonnatunde ja peresõbraliku elukeskkonna poolest. Mõned minutid kesklinnast ning teiselt poolt jalutuskäigu kaugusel Stroomi rand ja kergliiklustee Haaberstini.
Läheduses asuvad mitmed koolid: Avatud Kool, Pelgulinna Gümnaasium, Ristiku Põhikool, Tallinna Kunstigümnaasium. Lasteaiakohti pakuvad Kolde Lasteaed, Rukkiräägu Lasteaed ja Taime Lasteaed.
Igapäevaseks ostlemiseks on mugavalt lähedal Kolde Selver ja Rimi ning mitmed väiksemad kauplused ja pagaritöökojad. Lühikese jalutuskäigu kaugusel asuvad Balti Jaama Turg ning Telliskivi loomelinnak, kust leiab inspireeriva valiku restorane, kohvikuid, galeriisid ja kultuuriüritusi.
Looduse ja liikumise sõpradele on läheduses Stroomi rand, Merimetsa parkmets, mitmed terviserajad ning spordiklubid. Ühistranspordiühendus kesklinnaga on kiire ja mugav – maja kõrval nr 40 bussipeatus ning 200m eemal Sõle tn transpordisõlmena, ühendades sind sujuvalt kogu linnaga.
Kolde pst 42 on ideaalne kodu neile, kes hindavad vaikust, rohelust ja linna südamele lähedast asukohta.
Vastan meeleldi kõigile lisaküsimustele, helista ja tule oma uue koduga tutvuma.
Soovid oma kinnisvara välja üürida, müüa või hinnangut saada?
Võta minuga ühendust +372 **** 8721
JAGA MINU KONTAKTI KÕIGILE, KES VAJAVAD KINNISVARANÕU!
- - - - - - - - - -
Telli hindamine UUS MAA Kinnisvarabüroolt https://uusmaa.ee/teenused/hindamine/
ning saad:
- Eksperthinnangu kuni 20% soodsamalt kui võtad koduga seotud laenu Swedbankist
- Pankadest parimad kodulaenutingimused
- Kiire, kvaliteetse ning usaldusväärse hindamisteenuse Eestis
UUS MAA KINNISVARABÜROO EKSPERTHINNANGUID AKTSEPTEERIVAD KÕIK FINANTSASUTUSED.
- - - - - - - - - -
Liitu Uus Maa uudiskirjaga ja saa homset kinnisvarainfot juba täna!
https://www.uusmaa.ee/uudiskirjagaliitumine/
- - - - - - - - - -
Kodu aitab osta Swedbank.
Pakkumise saamiseks kasuta koodi UUSMAA ja Sind teenindatakse eelisjärjekorras.
Võtame ühendust 1 tööpäeva jooksul.
Uus Maa kliendile soodsam lepingutasu. Küsi täpsemat infot maaklerilt.
Finantsteenuseid pakub Swedbank AS. Tutvu tingimustega, pea nõu.
































































