Müüa Uus tn 9 hoonestatud kinnistu, millele on tehtud projekt ja väljastatud ehitusluba mittekasutuses olevate hoonete Uus tn 9 ja Uus tn 9/1 restaureerimiseks, laiendamiseks ja kohaldamiseks elu - ja äriruumideks.
Tehnilised andmed (2 hoonet):
A ja B (Uus tn 9)
Ehitiste alune pind: 241.4 m²
Hoone A korruste arv: -1/3
Hoone B korruste arv: 1
Hoone suletud netopind: 528.7 m²
Hoone köetav pind: 528.7 m²
Sh äripind: 329.7 m²
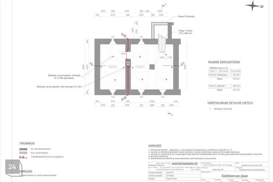
- korter nr 9 - A - 1: 46.1 m²
- korter nr 9 - A - 2: 104.2 m²
- korter nr 9 - A - 3: 66.5 m²
Hoone tehnoruumide pind: 27.3 m²
Hoone üldkasutatav pind: 72.4 m²
Hooned C ja D (Uus tn 9/1)
Ehitise alune pind: 221 m²
Hoone maapealse osa alune pind: 221 m²
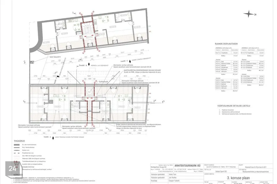
Hoone C maapealsete korruste arv: 3
Hoone D maapealsete korruste arv: 2
Hoone suletud netopind: 364.7 m²
- äripind: 117.5 m²
- korter nr 9/1 - C - 1: 31.5 m²
- korter nr 9/1 - C - 2: 24.4 m²
- korter nr 9/1 - C - 3: 23.5 m²
- korter nr 9/1 - C - 5: 61.3 m²
- korter nr 9/1 - C - 6: 49.9 m²
- korter nr 9/1 - D - 1: 27.2 m²
Hoone üldkasutatav pind: 29.4 m²
Tehnosüsteemid:
1. Hooned A ja C on varustatud Tallinna linna ühisveevärgi - ja kanalisatsiooniga;
2. Hoonete küte on planeeritud Utilitase kaugküttevõrgust;
3. hooned on varustatud elektriühendusega. Võrguühenduse läbilaskevõime 50A, nimitoitepinge liitumispunktis 0,4kV, faaside arv 3.
Ärikondlik investeerimisobjekt. Täpsema info ning jooniste saamiseks võtke kindlasti ühendust.
Jaga minu kontakti kõigile, kes vajavad kinnisvaranõu!
Liitu meie uudiskirjaga ja saa homset kinnisvarainfot juba täna! Vaata https://arikinnisvara.uusmaa.ee
UUS MAA ÄRIKINNISVARA - aastakümned kogemust ja klientide usaldust, läbimõeldud täisteenus ja suurim arv eksperte: vahendamine, hindamine, haldamine, nõustamine ja investeerimine.
Tehnilised andmed (2 hoonet):
A ja B (Uus tn 9)
Ehitiste alune pind: 241.4 m²
Hoone A korruste arv: -1/3
Hoone B korruste arv: 1
Hoone suletud netopind: 528.7 m²
Hoone köetav pind: 528.7 m²
Sh äripind: 329.7 m²
- korter nr 9 - A - 1: 46.1 m²
- korter nr 9 - A - 2: 104.2 m²
- korter nr 9 - A - 3: 66.5 m²
Hoone tehnoruumide pind: 27.3 m²
Hoone üldkasutatav pind: 72.4 m²
Hooned C ja D (Uus tn 9/1)
Ehitise alune pind: 221 m²
Hoone maapealse osa alune pind: 221 m²
Hoone C maapealsete korruste arv: 3
Hoone D maapealsete korruste arv: 2
Hoone suletud netopind: 364.7 m²
- äripind: 117.5 m²
- korter nr 9/1 - C - 1: 31.5 m²
- korter nr 9/1 - C - 2: 24.4 m²
- korter nr 9/1 - C - 3: 23.5 m²
- korter nr 9/1 - C - 5: 61.3 m²
- korter nr 9/1 - C - 6: 49.9 m²
- korter nr 9/1 - D - 1: 27.2 m²
Hoone üldkasutatav pind: 29.4 m²
Tehnosüsteemid:
1. Hooned A ja C on varustatud Tallinna linna ühisveevärgi - ja kanalisatsiooniga;
2. Hoonete küte on planeeritud Utilitase kaugküttevõrgust;
3. hooned on varustatud elektriühendusega. Võrguühenduse läbilaskevõime 50A, nimitoitepinge liitumispunktis 0,4kV, faaside arv 3.
Ärikondlik investeerimisobjekt. Täpsema info ning jooniste saamiseks võtke kindlasti ühendust.
Jaga minu kontakti kõigile, kes vajavad kinnisvaranõu!
Liitu meie uudiskirjaga ja saa homset kinnisvarainfot juba täna! Vaata https://arikinnisvara.uusmaa.ee
UUS MAA ÄRIKINNISVARA - aastakümned kogemust ja klientide usaldust, läbimõeldud täisteenus ja suurim arv eksperte: vahendamine, hindamine, haldamine, nõustamine ja investeerimine.














