Villa hinnatud Merivälja asumis. Läbimõeldud planeeringuga eramut iseloomustavad avarus ja õhulisus, samal ajal on tagatud elanike privaatsus.
Villa on ideaalne perele, kelle jaoks on oluline, et igal pereliikmel oleks piisavalt isiklikku privaatruumi, kuid samas väärtustatakse kõrgelt ka pere ja lähedastega koosveedetud hetki. See on paik, kus saad nautida vaikset ja rohelist elukeskkonda, kesklinnast kõigest 15-minutilise autosõidu kaugusel.
ERAMU
Villa on projekteerinud tunnustatud arhitektuuribüroo Azia (https://azia.ee/), kelle vormikeel on eristuv ja julge, kuid alati jääb prioriteediks funktsionaalsus ja nende poolt projekteeritud eramutes elavate inimeste soovid ja vajadused. Kahekorruseline villa asub väljakujunenud vanas Merivälja piirkonnas, 450 m kaugusel Tallinna lahest. Villa katuseterrassilt avanevad imelised vaated merele ja igapäevaselt saab nautida kordumatuid päikeseloojanguid. Villa asub merelähedasele piirkonnale unikaalsel tuulevaiksel tänaval.
Eramu on planeeritud ilmakaari arvesse võttes – põhjapoolsesse osasse jäävad esik ja enamik abiruumidest. Läbi kahe korruse asuv avatud õhuruumiga elutuba ja terrass avaneb lõuna-lääne suunal, lastetoad ja köök avanevad hommikupäikese suunal.
Villa üldpind on 244 m2, millele lisandub 1.korruse terrass 110 m2, 2.korruse terrass 25 m2 ning merevaatega katuseterrass suurusega 47 m2.
Maja iseloomustavateks joonteks on avarus, valgusküllus, läbimõeldud planeering ja detailid. Uutel omanikel on suurepärane võimalus luua oma maitsele ja vajadustele vastava sisekujundusega kodu. Avarust ja suursugusust annab läbi kahe korruse kõrguv 40 m2 suurune elutuba. Ülejäänud maja osas on lagede kõrgus 2.7 m.
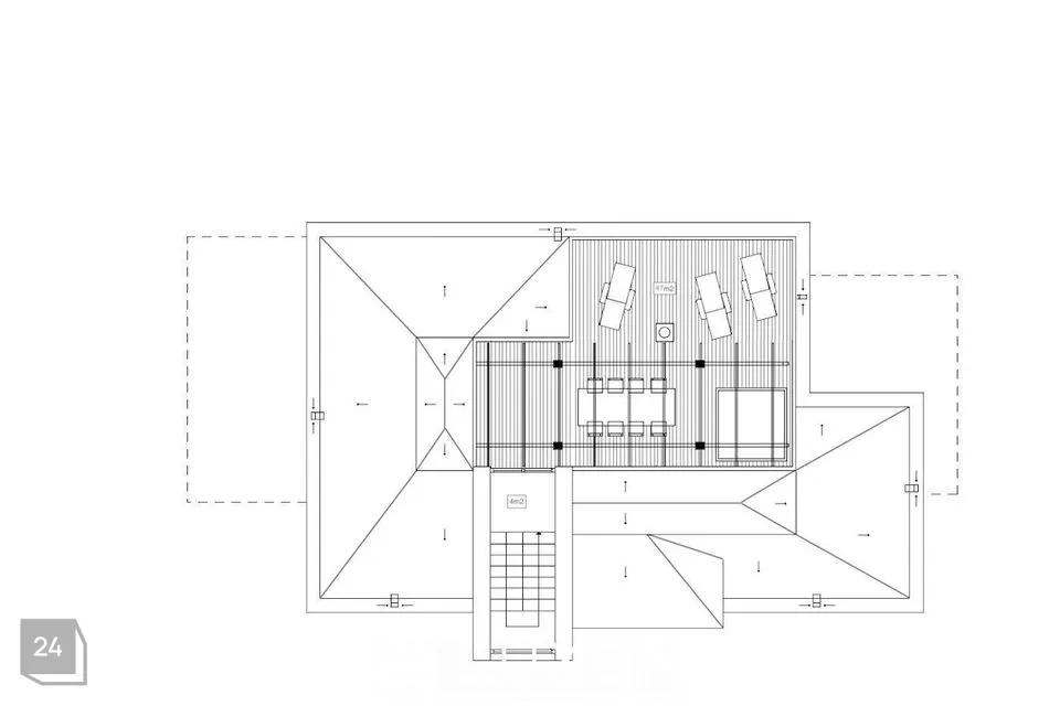
Eraldi väärib märkimist villa ca 50 m2 suurune katuseterrass, mis on osaliselt katusega kaetud ning kuhu võib end unustada päikeseloojanguid ja kordumatuid merevaateid nautima või hoopis mõnuleda talvises lumesajus soojas jacuzzis.
ASUKOHT JA PIIRKOND
Villa asub väljakujunenud Merivälja piirkonnas, kus ümberkaudsed eramud on juba olemas. Võib julgelt väita, et tegemist on ühe Tallinna kõige ilusama koduteega asukohaga. Meriväljal on olemas nii oma kool kui lasteaed, samas on ka Viimsi ja Pirita veel suurema koolide ja lasteaedade valikuga kohe vahetus läheduses. Piirkond ise on vaikne ja roheline.
Läheduses on kilomeetrite viisi kaunist mereranda, kus jalutada, teha tervisesporti või nautida imelisi päikeseloojanguid. 5-minutilise autosõidutee kaugusel on kõik mugavaks eluks vajalik.
KINNISTU
Kinnistu suurus on 702 m2 ja on mere suunas langeva reljeefiga. Eramu on projekteeritud viisil, et säilitada elanike privaatsus ümberkaudsete eramute suhtes, kuid samas tagada maksimaalselt avarust ja loomulikku päevavalgust. Kinnistu on ümbritsetud aiaga. Kinnistul on olemas abihoone ehituse valmidus, kus mugavalt aiatööriistu ja teisi, majapidamises vajalikke, abivahendeid hoiustada.
SISEVIIMISTLUS
Villa siseviimistluses on kasutatud läbimõeldud ja väga kvaliteetseid materjale. Põrandaid katab õlitatud täispuidust liimitud kalasabaparkett, seinad on värvitud heledates toonides. Kõikidesse tubadesse on sisseehitatud karniisitagune valgustus, mis loob koju hubasust.
Piltidel on sisearhitekti nägemus maja sisekujundusest. Sarnast lahendust on võimalik täies mahus tellida.
Kõik siseuksed on peithingedel ja valmistatud eritellimusena koos Itaalia tootja Mandelli magnetlukustussüsteemi ja ukselinkidega.
Valgus pääseb majja läbi kolmekordsete ilmastikukindlate puidust aknaraamidega Viking Window toodetud akende ja kergelt avatavate lükanduste.
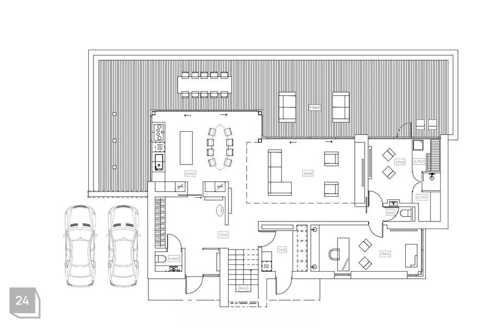
PLANEERING
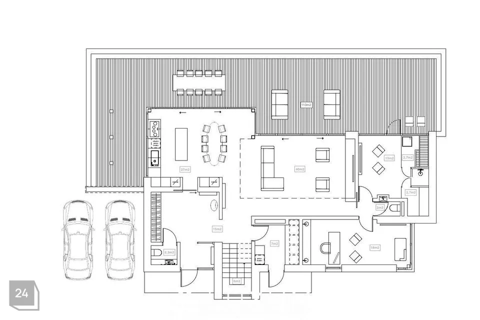
Villa esimene korrus on 140.7 m2, millele lisandub 110 m2 suurune lõunapäikesele avatud sisehoovi terrass. Esimesel korrusel on mahukas esik ja trepihall, esikust otse jääb hommiku ja päevapäikese suunal avanev köök koos söögitoa osaga ning selle kõrval asub läbi kahe korruse avanev elutuba. Elutoast ja söögitoast pääseb läbi laiade lükanduste sisehoovi terrassile. Lisaks on esimesel korrusel saunakompleks, kus on nii lõõgastav aurusaun kui hea leiliga soome saun, kabinet/külalistetuba, 2 tualetti ning majapidamis-/tehnoruum.
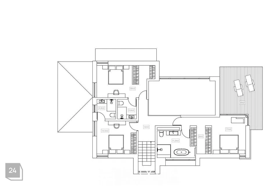
Teisel korrusel asub peamagamistuba koos garderoobi ja en-suite vannitoaga. Magamistoa juurde kuulub päeva- ja õhtupäikesepoole avatud 25 m2 suurune terrass. Lisaks on teisel korrusel 2 magamistuba koos en-suite vannitubadega. Teiselt korruselt viib trepp kolmanda korruse katuseterrassile. Teisel korrusel on kokku 95.4 m2 suletud netopinda ning lisaks 40 m2 õhuruumi esimese korruse elutoa suuruses. Kolmanda korruse väliterrassil on olemas nii jacuzzi kui välibaari-/köögi valmidus.
KONSTRUKTSIOONID JA VÄLISVIIMISTLUS
Maja on ehitatud madalvundamendile, välisseinad on 200 mm Columbia plokist, mille peale on paigaldatud 200 mm soojustust. Vahelaed ja katus on monteeritavast raudbetoonist. Kandvad siseseinad on 200 mm ja mittekandvad siseseinad on 100-200 mm väikeplokkidest. Välisseinad on valdavas enamuses kaetud dekoratiivse plaadiga, osaliselt krohvitud.
KÜTE JA VENTILATSIOON
Paigaldatud on kvaliteetne õhk-vesi küttesüsteem, majas on sundtsirkulatsiooniga vesipõrandaküttesüsteem. Temperatuuri saab ruumipõhiselt reguleerida. Lisaks on paigaldatud Systemair soojustagastusega sundventilatsioon. Olemas on päikesepaneelide paigaldamise valmidus.
PARKIMINE
Kinnistul on parkimiskohad kahele autole aiaga piiratud hoovis.
Majal on kehtiv kasutusluba.
Täpsema info osas võtke ühendust:
Lii Salusaar
5344 ****
***@***.ee
LUXUM – Luxury Living by Uus Maa
LUXUM on pühendunud kõige eksklusiivsema ja unikaalsema kinnisvara müügile Eestis. Meie 30-aastane kogemus, luksuskinnisvarale spetsialiseerunud maaklerid, ulatuslik kontaktivõrgustik ja värske turuinfo annavad meile võimaluse leida teie kinnisvarale sobiva ostja või teile sellise kodu, mida soovinud olete. Kui soovite osta, müüa või üürida preemiumklassi kinnisvara, võtke julgelt minuga ühendust.
JAGA MINU KONTAKTI KÕIGILE, KES VAJAVAD KINNISVARANÕU!
- - - - - - - - - -
Telli hindamine UUS MAA Kinnisvarabüroolt https://uusmaa.ee/teenused/hindamine/
ning saad:
- Eksperthinnangu kuni 20% soodsamalt kui võtad koduga seotud laenu Swedbankist
- Pankadest parimad kodulaenutingimused
- Kiire, kvaliteetse ning usaldusväärse hindamisteenuse Eestis
UUS MAA KINNISVARABÜROO EKSPERTHINNANGUID AKTSEPTEERIVAD KÕIK FINANTSASUTUSED.
- - - - - - - - - -
Liitu Uus Maa uudiskirjaga ja saa homset kinnisvarainfot juba täna!
https://www.uusmaa.ee/uudiskirjagaliitumine/
- - - - - - - - - -
Kodu aitab osta Swedbank.
Pakkumise saamiseks kasuta koodi UUSMAA ja Sind teenindatakse eelisjärjekorras.
Võtame ühendust 1 tööpäeva jooksul.
Uus Maa kliendile soodsam lepingutasu. Küsi täpsemat infot maaklerilt.
Finantsteenuseid pakub Swedbank AS. Tutvu tingimustega, pea nõu.
Villa on ideaalne perele, kelle jaoks on oluline, et igal pereliikmel oleks piisavalt isiklikku privaatruumi, kuid samas väärtustatakse kõrgelt ka pere ja lähedastega koosveedetud hetki. See on paik, kus saad nautida vaikset ja rohelist elukeskkonda, kesklinnast kõigest 15-minutilise autosõidu kaugusel.
ERAMU
Villa on projekteerinud tunnustatud arhitektuuribüroo Azia (https://azia.ee/), kelle vormikeel on eristuv ja julge, kuid alati jääb prioriteediks funktsionaalsus ja nende poolt projekteeritud eramutes elavate inimeste soovid ja vajadused. Kahekorruseline villa asub väljakujunenud vanas Merivälja piirkonnas, 450 m kaugusel Tallinna lahest. Villa katuseterrassilt avanevad imelised vaated merele ja igapäevaselt saab nautida kordumatuid päikeseloojanguid. Villa asub merelähedasele piirkonnale unikaalsel tuulevaiksel tänaval.
Eramu on planeeritud ilmakaari arvesse võttes – põhjapoolsesse osasse jäävad esik ja enamik abiruumidest. Läbi kahe korruse asuv avatud õhuruumiga elutuba ja terrass avaneb lõuna-lääne suunal, lastetoad ja köök avanevad hommikupäikese suunal.
Villa üldpind on 244 m2, millele lisandub 1.korruse terrass 110 m2, 2.korruse terrass 25 m2 ning merevaatega katuseterrass suurusega 47 m2.
Maja iseloomustavateks joonteks on avarus, valgusküllus, läbimõeldud planeering ja detailid. Uutel omanikel on suurepärane võimalus luua oma maitsele ja vajadustele vastava sisekujundusega kodu. Avarust ja suursugusust annab läbi kahe korruse kõrguv 40 m2 suurune elutuba. Ülejäänud maja osas on lagede kõrgus 2.7 m.
Eraldi väärib märkimist villa ca 50 m2 suurune katuseterrass, mis on osaliselt katusega kaetud ning kuhu võib end unustada päikeseloojanguid ja kordumatuid merevaateid nautima või hoopis mõnuleda talvises lumesajus soojas jacuzzis.
ASUKOHT JA PIIRKOND
Villa asub väljakujunenud Merivälja piirkonnas, kus ümberkaudsed eramud on juba olemas. Võib julgelt väita, et tegemist on ühe Tallinna kõige ilusama koduteega asukohaga. Meriväljal on olemas nii oma kool kui lasteaed, samas on ka Viimsi ja Pirita veel suurema koolide ja lasteaedade valikuga kohe vahetus läheduses. Piirkond ise on vaikne ja roheline.
Läheduses on kilomeetrite viisi kaunist mereranda, kus jalutada, teha tervisesporti või nautida imelisi päikeseloojanguid. 5-minutilise autosõidutee kaugusel on kõik mugavaks eluks vajalik.
KINNISTU
Kinnistu suurus on 702 m2 ja on mere suunas langeva reljeefiga. Eramu on projekteeritud viisil, et säilitada elanike privaatsus ümberkaudsete eramute suhtes, kuid samas tagada maksimaalselt avarust ja loomulikku päevavalgust. Kinnistu on ümbritsetud aiaga. Kinnistul on olemas abihoone ehituse valmidus, kus mugavalt aiatööriistu ja teisi, majapidamises vajalikke, abivahendeid hoiustada.
SISEVIIMISTLUS
Villa siseviimistluses on kasutatud läbimõeldud ja väga kvaliteetseid materjale. Põrandaid katab õlitatud täispuidust liimitud kalasabaparkett, seinad on värvitud heledates toonides. Kõikidesse tubadesse on sisseehitatud karniisitagune valgustus, mis loob koju hubasust.
Piltidel on sisearhitekti nägemus maja sisekujundusest. Sarnast lahendust on võimalik täies mahus tellida.
Kõik siseuksed on peithingedel ja valmistatud eritellimusena koos Itaalia tootja Mandelli magnetlukustussüsteemi ja ukselinkidega.
Valgus pääseb majja läbi kolmekordsete ilmastikukindlate puidust aknaraamidega Viking Window toodetud akende ja kergelt avatavate lükanduste.
PLANEERING
Villa esimene korrus on 140.7 m2, millele lisandub 110 m2 suurune lõunapäikesele avatud sisehoovi terrass. Esimesel korrusel on mahukas esik ja trepihall, esikust otse jääb hommiku ja päevapäikese suunal avanev köök koos söögitoa osaga ning selle kõrval asub läbi kahe korruse avanev elutuba. Elutoast ja söögitoast pääseb läbi laiade lükanduste sisehoovi terrassile. Lisaks on esimesel korrusel saunakompleks, kus on nii lõõgastav aurusaun kui hea leiliga soome saun, kabinet/külalistetuba, 2 tualetti ning majapidamis-/tehnoruum.
Teisel korrusel asub peamagamistuba koos garderoobi ja en-suite vannitoaga. Magamistoa juurde kuulub päeva- ja õhtupäikesepoole avatud 25 m2 suurune terrass. Lisaks on teisel korrusel 2 magamistuba koos en-suite vannitubadega. Teiselt korruselt viib trepp kolmanda korruse katuseterrassile. Teisel korrusel on kokku 95.4 m2 suletud netopinda ning lisaks 40 m2 õhuruumi esimese korruse elutoa suuruses. Kolmanda korruse väliterrassil on olemas nii jacuzzi kui välibaari-/köögi valmidus.
KONSTRUKTSIOONID JA VÄLISVIIMISTLUS
Maja on ehitatud madalvundamendile, välisseinad on 200 mm Columbia plokist, mille peale on paigaldatud 200 mm soojustust. Vahelaed ja katus on monteeritavast raudbetoonist. Kandvad siseseinad on 200 mm ja mittekandvad siseseinad on 100-200 mm väikeplokkidest. Välisseinad on valdavas enamuses kaetud dekoratiivse plaadiga, osaliselt krohvitud.
KÜTE JA VENTILATSIOON
Paigaldatud on kvaliteetne õhk-vesi küttesüsteem, majas on sundtsirkulatsiooniga vesipõrandaküttesüsteem. Temperatuuri saab ruumipõhiselt reguleerida. Lisaks on paigaldatud Systemair soojustagastusega sundventilatsioon. Olemas on päikesepaneelide paigaldamise valmidus.
PARKIMINE
Kinnistul on parkimiskohad kahele autole aiaga piiratud hoovis.
Majal on kehtiv kasutusluba.
Täpsema info osas võtke ühendust:
Lii Salusaar
5344 ****
***@***.ee
LUXUM – Luxury Living by Uus Maa
LUXUM on pühendunud kõige eksklusiivsema ja unikaalsema kinnisvara müügile Eestis. Meie 30-aastane kogemus, luksuskinnisvarale spetsialiseerunud maaklerid, ulatuslik kontaktivõrgustik ja värske turuinfo annavad meile võimaluse leida teie kinnisvarale sobiva ostja või teile sellise kodu, mida soovinud olete. Kui soovite osta, müüa või üürida preemiumklassi kinnisvara, võtke julgelt minuga ühendust.
JAGA MINU KONTAKTI KÕIGILE, KES VAJAVAD KINNISVARANÕU!
- - - - - - - - - -
Telli hindamine UUS MAA Kinnisvarabüroolt https://uusmaa.ee/teenused/hindamine/
ning saad:
- Eksperthinnangu kuni 20% soodsamalt kui võtad koduga seotud laenu Swedbankist
- Pankadest parimad kodulaenutingimused
- Kiire, kvaliteetse ning usaldusväärse hindamisteenuse Eestis
UUS MAA KINNISVARABÜROO EKSPERTHINNANGUID AKTSEPTEERIVAD KÕIK FINANTSASUTUSED.
- - - - - - - - - -
Liitu Uus Maa uudiskirjaga ja saa homset kinnisvarainfot juba täna!
https://www.uusmaa.ee/uudiskirjagaliitumine/
- - - - - - - - - -
Kodu aitab osta Swedbank.
Pakkumise saamiseks kasuta koodi UUSMAA ja Sind teenindatakse eelisjärjekorras.
Võtame ühendust 1 tööpäeva jooksul.
Uus Maa kliendile soodsam lepingutasu. Küsi täpsemat infot maaklerilt.
Finantsteenuseid pakub Swedbank AS. Tutvu tingimustega, pea nõu.






















































