Müüa väärikas maja Nõmmel! Väljastatud ehitusluba olemasoleva korterelamu juurdeehituseks!
Krundil paikneb arhitekt Edgar Velbri poolt projekteeritud ja tõenäoliselt aastatel 1936-**** ehitatud kolme korteriga elamu. Krundil oli ka majandushoone, mis hetkeseisuga on hävinud. Korterelamu on hinnatud 2008.a. arhitektuur-ajaloolise inventeerimise käigus väärtuslikuks. Elamusse oli algse projekti järgi ette nähtud ka puutöökoja ruumid ja hoovipealsesse abihoonesse puitmaterjali ladu.
Krunt on suur (2488 m2), suur osa sellest asub sisehoovis tänavast eemal. Krundi pindalast ca 55% on kõrghaljastatud. Vabaduse pst 101 asub Nõmme üldplaneeringu järgi miljööväärtuslikul alal.
Väljastatud on ehitusluba olemasoleva korterelamu juurdeehituseks, millel on kaks maapealset korrust, katusekorrus ja lisaks maa-alune korrus parkimiseks ja panipaikadeks. Hoone kasutamise otstarve - elamumaa 85% ja ärimaa 15%. Hoonesse on planeeritud viis korterit ja kaks äripinda büroona. Planeeritav küte vesi-õhk soojuspumpadega.
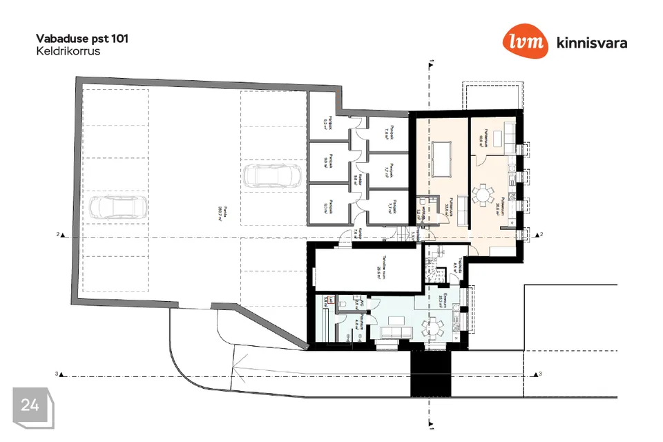
Parkimine on lahendatud omal krundil. Hoovi on planeeritud üks autokoht eesaeda sissesõidu tee kõrvale ja lisaks on planeeritud hoonesse keldrikorrusel asuvasse parklasse 10 autokohta.
Vabaduse pst 101 asub Nõmme linnaosas, Kaare ja Tähe tänava vahelisel alal. Krundist põhja poole üle Vabaduse puiestee jääb ca 20 ha suurune linnapark Vabaduse -Tähe parkmets. Linnaosa tähtsusega rohekoridor kulgeb piki Tähe tänavat.
Üle tee asub noobel restoran Paju Villa. Piirkonnas on mitmeid toidukauplusi. Bussitransport liigub kohe maja eest.
Elektroonilise ehitisregistri (www.ehr.ee) andmetel on hoonel kaalutud energiaerikasutuse klass määramata.
Olete oodatud tutvuma!
Krundil paikneb arhitekt Edgar Velbri poolt projekteeritud ja tõenäoliselt aastatel 1936-**** ehitatud kolme korteriga elamu. Krundil oli ka majandushoone, mis hetkeseisuga on hävinud. Korterelamu on hinnatud 2008.a. arhitektuur-ajaloolise inventeerimise käigus väärtuslikuks. Elamusse oli algse projekti järgi ette nähtud ka puutöökoja ruumid ja hoovipealsesse abihoonesse puitmaterjali ladu.
Krunt on suur (2488 m2), suur osa sellest asub sisehoovis tänavast eemal. Krundi pindalast ca 55% on kõrghaljastatud. Vabaduse pst 101 asub Nõmme üldplaneeringu järgi miljööväärtuslikul alal.
Väljastatud on ehitusluba olemasoleva korterelamu juurdeehituseks, millel on kaks maapealset korrust, katusekorrus ja lisaks maa-alune korrus parkimiseks ja panipaikadeks. Hoone kasutamise otstarve - elamumaa 85% ja ärimaa 15%. Hoonesse on planeeritud viis korterit ja kaks äripinda büroona. Planeeritav küte vesi-õhk soojuspumpadega.
Parkimine on lahendatud omal krundil. Hoovi on planeeritud üks autokoht eesaeda sissesõidu tee kõrvale ja lisaks on planeeritud hoonesse keldrikorrusel asuvasse parklasse 10 autokohta.
Vabaduse pst 101 asub Nõmme linnaosas, Kaare ja Tähe tänava vahelisel alal. Krundist põhja poole üle Vabaduse puiestee jääb ca 20 ha suurune linnapark Vabaduse -Tähe parkmets. Linnaosa tähtsusega rohekoridor kulgeb piki Tähe tänavat.
Üle tee asub noobel restoran Paju Villa. Piirkonnas on mitmeid toidukauplusi. Bussitransport liigub kohe maja eest.
Elektroonilise ehitisregistri (www.ehr.ee) andmetel on hoonel kaalutud energiaerikasutuse klass määramata.
Olete oodatud tutvuma!






























