Müügile on tulnud suure potentsiaali ja super asukohaga kinnistu, mis ootab uusi ja tegusaid omanikke, kes saaksid täpselt oma soovide kohaselt renoveerida endale luksusliku ja privaatse unistuste kodu! Elamule väljastatud kasutusluba 21.02.2025!
ELAMU:
Tegemist on 1998. aastal ehitatud majaga, mis pakub oma planeeringuga ruumi ja privaatust igale pereliikmele. Kõik toad on mõnusalt suured ja loomulikult loob palju lisaväärtust ka krundil asuv basseinimaja, kus saab külalisi vastu võtta igal aastaajal.
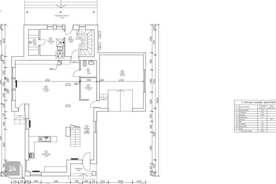
Peahoone esimesel korrusel asub: tõeliselt ruumikas elutuba suurusega 44,9 m², avatud köök 15,6 m², tualett, garderoobi nurk, pesuruum, garaaž 27,1 m² ning terrass ca 42 m².
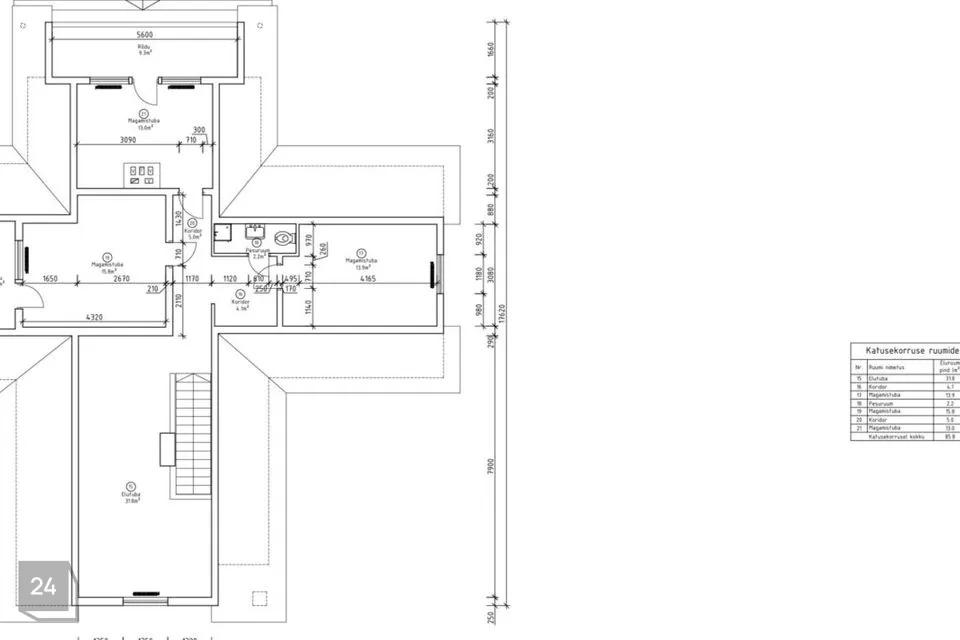
Teine korrus: magamistuba 15,8 m² pääsuga rõdule 4,8 m², magamistuba 13 m² pääsuga rõdule 9,3 m², magamistuba 13,9 m² , tualett 2,2 m² ja ruumikas tuba trepihallis suurusega ca 30 m².
Keldrikorrus:
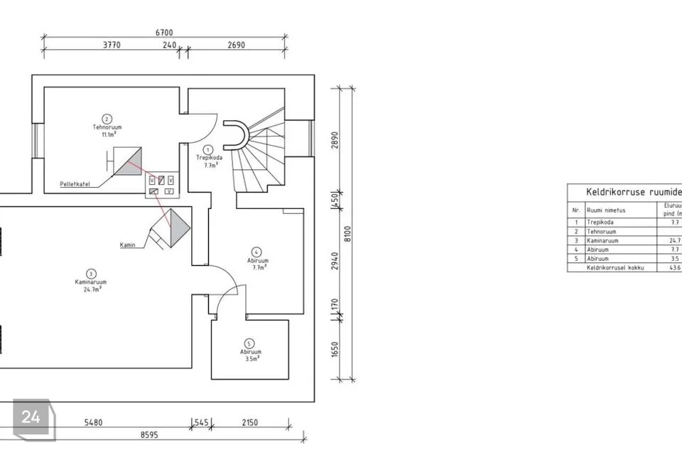
Kaminaruum 24,7 m², kaks abiruumi ning tehnoruum.
BASSEINIMAJA:
Eraldi asuv abihoone, kus on sisebassein, pakub aastaringset meelelahutust ja lõõgastust, lisades kinnistule luksusliku puudutuse. Abihoone mitmekülgsus võimaldab seda kasutada nii puhkeala, hobiruumi kui ka külalistemaja funktsiooniga.
Esimene korrus:
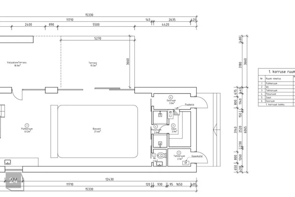
Puhkeruum koos integreeritud köögiga, bassein, tualett, dushiruum, puuküttega saun ning ca 38 m² terrass.
Teisel korrusel asub kaks magamistuba.
KÜTE/KULUD:
Elamu põhi kütteliigiks on pelletküte, mida on võimalus soovi korral asendada ka näiteks õhk-vesi soojuspumbaga. Samuti on paigaldatud veel õhk-õhk soojuspump.
HOOV:
1840 m² suurune korrapärase kujuga ilus haljastatud krunt, mis on aiaga piiratud ning maja sisehoovist otse pääs imelisse Nõmme rohelusse, kus erinevad võimalused nii sportimiseks, kui lihtsalt akusi laadida.
ÜMBRUS/TRANSPORT:
Elamu ümbrust iseloomustab rikkalik loodus, sealhulgas lähedal asuvad looduskaitsealad ja terviserajad, mis on ideaalsed jalutuskäikudeks ja aktiivseks vaba aja veetmiseks. Samas on Tallinna Kesklinn vaid lühikese autosõidu kaugusel, pakkudes mugavat ligipääsu kõikidele linna pakutavatele hüvedele. Väga mugav ühistranspordi ühendus erinevate linnaosadega.
See eramu sobib ideaalselt neile, kes otsivad privaatsust ja luksust, hindavad looduslähedust ja aktiivset elustiili, kuid soovivad jääda linna lähedale.
LISAINFO:
Huvi korral võtke minuga julgelt ühendust ja läheme koos vaatama!
ELAMU:
Tegemist on 1998. aastal ehitatud majaga, mis pakub oma planeeringuga ruumi ja privaatust igale pereliikmele. Kõik toad on mõnusalt suured ja loomulikult loob palju lisaväärtust ka krundil asuv basseinimaja, kus saab külalisi vastu võtta igal aastaajal.
Peahoone esimesel korrusel asub: tõeliselt ruumikas elutuba suurusega 44,9 m², avatud köök 15,6 m², tualett, garderoobi nurk, pesuruum, garaaž 27,1 m² ning terrass ca 42 m².
Teine korrus: magamistuba 15,8 m² pääsuga rõdule 4,8 m², magamistuba 13 m² pääsuga rõdule 9,3 m², magamistuba 13,9 m² , tualett 2,2 m² ja ruumikas tuba trepihallis suurusega ca 30 m².
Keldrikorrus:
Kaminaruum 24,7 m², kaks abiruumi ning tehnoruum.
BASSEINIMAJA:
Eraldi asuv abihoone, kus on sisebassein, pakub aastaringset meelelahutust ja lõõgastust, lisades kinnistule luksusliku puudutuse. Abihoone mitmekülgsus võimaldab seda kasutada nii puhkeala, hobiruumi kui ka külalistemaja funktsiooniga.
Esimene korrus:
Puhkeruum koos integreeritud köögiga, bassein, tualett, dushiruum, puuküttega saun ning ca 38 m² terrass.
Teisel korrusel asub kaks magamistuba.
KÜTE/KULUD:
Elamu põhi kütteliigiks on pelletküte, mida on võimalus soovi korral asendada ka näiteks õhk-vesi soojuspumbaga. Samuti on paigaldatud veel õhk-õhk soojuspump.
HOOV:
1840 m² suurune korrapärase kujuga ilus haljastatud krunt, mis on aiaga piiratud ning maja sisehoovist otse pääs imelisse Nõmme rohelusse, kus erinevad võimalused nii sportimiseks, kui lihtsalt akusi laadida.
ÜMBRUS/TRANSPORT:
Elamu ümbrust iseloomustab rikkalik loodus, sealhulgas lähedal asuvad looduskaitsealad ja terviserajad, mis on ideaalsed jalutuskäikudeks ja aktiivseks vaba aja veetmiseks. Samas on Tallinna Kesklinn vaid lühikese autosõidu kaugusel, pakkudes mugavat ligipääsu kõikidele linna pakutavatele hüvedele. Väga mugav ühistranspordi ühendus erinevate linnaosadega.
See eramu sobib ideaalselt neile, kes otsivad privaatsust ja luksust, hindavad looduslähedust ja aktiivset elustiili, kuid soovivad jääda linna lähedale.
LISAINFO:
Huvi korral võtke minuga julgelt ühendust ja läheme koos vaatama!









































