ELAMU / PLANEERING
Algselt 1952 ehitatud elamu, mis on juurdeehitus- ja rekonstrueerimisprojekti järgi 2008 aastal renoveeritud ning saanud juurdeehituse. Nii elamule kui abihoonele on väljastatud kasutusluba. Elamu kaalutud energiakasutuse klass/energiamärgis on D.
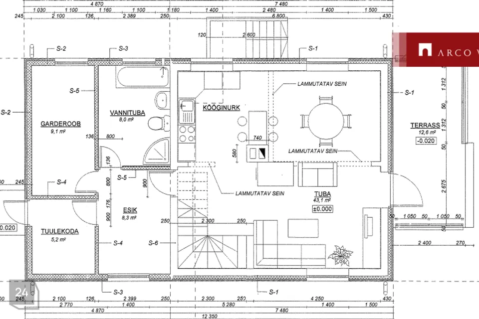
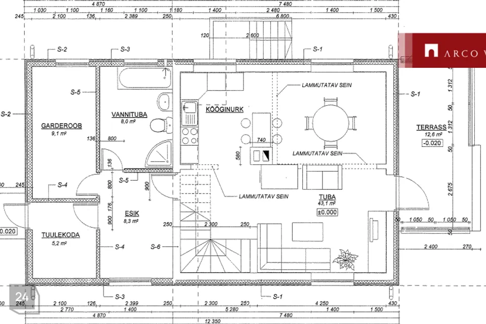
Elamu suletud netopind kokku 127,4 m2 ning lisaks sellele on esimesel korrusel 12,6 m2 suurune varikatusega terrass.
Maja esimesel korrusel asub avar ja valgusküllane 43 m2 suurune avatud köögiga elutuba, tuulekoda, esik, 9 m2 suurune garderoob ning ruumikas 8 m2 vannituba. Teisele korrusele viib korralik tugev puidust trepp ning seal asub kaks suurt magamistuba (18 m2 ja 16,5 m2), WC ning 11 m2 suurune trepihall, mis on kasutusel kodukontorina. Keldrikorrusel on panipaigaks 6,8 m2 suurune ruum.
Eluruumide siseviimistluses on kasutatud heledaid naturaalseid toone. Põrandad kaetud laminaatparketiga, seinad värvitud ja tapetseeritud. Puidust siseuksed, PVC raamidel aknad. Siseviimistlus on heas seisukorras ja kohene remondivajadus puudub.
TEHNOVÕRGUD
* Kogu maja kütteks on paigaldatud õhk-vesi soojuspump, mis kütab soojaks tubade seintel asetsevad radiaatorid ning samal ajal toodab ka sooja tarbevee. Vannitoas ja tuulekojas elektriline põrandaküte. Esimesel korrusel elutoas lisaks suur korralik plekkahi.
* Kinnistu on ühendatud linna tsentraalse külma vee- ja kanalisatsioonitrassidega. Sooja vett toodab õhk-vesi soojuspump.
* Elektriliitumine olemas 20 A, 3x380V
* Majja on toodud Telia valguskaabel, mis tagab kiire internetiühenduse.
KONSTRUKTSIOONID
Madalvundament monteeritavatest 40 cm betoonplokkidest, maja all osaline kelder.
Puitsõrestikseinad, mis soojustatud 15 cm kivivillaga, tuuletõkkeks puitkiudplaadid, seest viimistletud metallkarkassil Cyproc plaadiga ning välisviimistluseks voodrilaud.
Vahelaed 7x22 cm puittaladel, heliisolatsiooniks kivivill.
Katus 5x15 cm sarikatel, soojustuseks 15 cm kivivill, tuuletõkkeks puitkiudplaat, kaetud profiiliga Rannila terasplekiga.
Sisetrepp naturaalpuidust. Välistrepp valatud monoliitbetoonist, kaetud klinkerplaatidega.
Paigaldatud 2x klaaspaketiga PVC aknad, metallist välisuks.
KOMMUNAALKULUD
* Vesi vastavalt tarbimisele Tallinna Vee hinnaga 2,26 €/m3. Arved olnud siiani keskmiselt 7-8 €/kuus. Vee soojendamise kulu sisaldub elektriarves.
* Elektritarbimine on olnud 2024 aastal kokku 6772 kWh, 2023 aastal kokku 9951 kWh. Tarbimine jaguneb talvekuudel ca 1300 – 1900 kWh/kuus ehk ca 250 – 380 €/kuus ning suvekuudel ca 150 – 300 kWh/kuus ehk ca 30 – 60 €/kuus. Näiteks jaanuar 2025 elektriarve oli kokku 300 €, tarbimine 1453 kWh.
* Prügiveo arved ca 3 €/kuus.
KINNISTU JA KÕRVALHOONE
Kinnistu pindala on 599 m2 ja sellel kasvavad kõrghaljastuseks ilusad suured kuused.
Lisaks elamule asub kinnistul 55,6 m2 suuruse netopinnaga silikaattellistest laotud kõrvalhoone, mis koosneb kolmest ruumist - 24,7 m2 suurune puukuur, 12,8 m2 töötuba ja 18,1 m2 garaaž, lisaks katusealune pööning.
Kõrvalhoone ümberehitamiseks on koostatud projekt, millel on olemas ka kehtiv ehitusluba. Projekti kohaselt oli plaanis kõrvalhoone liita vee- ja kanalisatsioonitrassidega, soojustada, muuta katusekallet, ehitada sisse ahi ning teha muud vastavad muudatused, mis võimaldaks sisuliselt abihoonet kasutada eluruumina (EHR kanne jääks siiski abihoone). Antud projekt on realiseerimata ja uuel omanikul soovi korral võimalik see ellu viia.
TEEÄÄRNE RAUDTEE 77A KINNISTU (260 m2) VÕIMALIK JUURDE OSTA.
ASUKOHT
Kinnistu asub Nõmme miljööväärtuslikul aedlinna elamualal, mis on rahulik ja roheline hinnatud elukeskkond. Lähim rongipeatus Kivimäe jaam asub 290 m kaugusel. Lähim bussipeatus Salve asub 270 m kaugusel Pärnu mnt ääres ning 500 m raadiuses asub veel mitu bussipeatust, mis tagab hea ühenduse teiste linnaosadega. Läheduses asuvad mitmed pargid, sh Nõmme Uisupark, terviserajad, mänguväljakud, lasteaiad,
Algselt 1952 ehitatud elamu, mis on juurdeehitus- ja rekonstrueerimisprojekti järgi 2008 aastal renoveeritud ning saanud juurdeehituse. Nii elamule kui abihoonele on väljastatud kasutusluba. Elamu kaalutud energiakasutuse klass/energiamärgis on D.
Elamu suletud netopind kokku 127,4 m2 ning lisaks sellele on esimesel korrusel 12,6 m2 suurune varikatusega terrass.
Maja esimesel korrusel asub avar ja valgusküllane 43 m2 suurune avatud köögiga elutuba, tuulekoda, esik, 9 m2 suurune garderoob ning ruumikas 8 m2 vannituba. Teisele korrusele viib korralik tugev puidust trepp ning seal asub kaks suurt magamistuba (18 m2 ja 16,5 m2), WC ning 11 m2 suurune trepihall, mis on kasutusel kodukontorina. Keldrikorrusel on panipaigaks 6,8 m2 suurune ruum.
Eluruumide siseviimistluses on kasutatud heledaid naturaalseid toone. Põrandad kaetud laminaatparketiga, seinad värvitud ja tapetseeritud. Puidust siseuksed, PVC raamidel aknad. Siseviimistlus on heas seisukorras ja kohene remondivajadus puudub.
TEHNOVÕRGUD
* Kogu maja kütteks on paigaldatud õhk-vesi soojuspump, mis kütab soojaks tubade seintel asetsevad radiaatorid ning samal ajal toodab ka sooja tarbevee. Vannitoas ja tuulekojas elektriline põrandaküte. Esimesel korrusel elutoas lisaks suur korralik plekkahi.
* Kinnistu on ühendatud linna tsentraalse külma vee- ja kanalisatsioonitrassidega. Sooja vett toodab õhk-vesi soojuspump.
* Elektriliitumine olemas 20 A, 3x380V
* Majja on toodud Telia valguskaabel, mis tagab kiire internetiühenduse.
KONSTRUKTSIOONID
Madalvundament monteeritavatest 40 cm betoonplokkidest, maja all osaline kelder.
Puitsõrestikseinad, mis soojustatud 15 cm kivivillaga, tuuletõkkeks puitkiudplaadid, seest viimistletud metallkarkassil Cyproc plaadiga ning välisviimistluseks voodrilaud.
Vahelaed 7x22 cm puittaladel, heliisolatsiooniks kivivill.
Katus 5x15 cm sarikatel, soojustuseks 15 cm kivivill, tuuletõkkeks puitkiudplaat, kaetud profiiliga Rannila terasplekiga.
Sisetrepp naturaalpuidust. Välistrepp valatud monoliitbetoonist, kaetud klinkerplaatidega.
Paigaldatud 2x klaaspaketiga PVC aknad, metallist välisuks.
KOMMUNAALKULUD
* Vesi vastavalt tarbimisele Tallinna Vee hinnaga 2,26 €/m3. Arved olnud siiani keskmiselt 7-8 €/kuus. Vee soojendamise kulu sisaldub elektriarves.
* Elektritarbimine on olnud 2024 aastal kokku 6772 kWh, 2023 aastal kokku 9951 kWh. Tarbimine jaguneb talvekuudel ca 1300 – 1900 kWh/kuus ehk ca 250 – 380 €/kuus ning suvekuudel ca 150 – 300 kWh/kuus ehk ca 30 – 60 €/kuus. Näiteks jaanuar 2025 elektriarve oli kokku 300 €, tarbimine 1453 kWh.
* Prügiveo arved ca 3 €/kuus.
KINNISTU JA KÕRVALHOONE
Kinnistu pindala on 599 m2 ja sellel kasvavad kõrghaljastuseks ilusad suured kuused.
Lisaks elamule asub kinnistul 55,6 m2 suuruse netopinnaga silikaattellistest laotud kõrvalhoone, mis koosneb kolmest ruumist - 24,7 m2 suurune puukuur, 12,8 m2 töötuba ja 18,1 m2 garaaž, lisaks katusealune pööning.
Kõrvalhoone ümberehitamiseks on koostatud projekt, millel on olemas ka kehtiv ehitusluba. Projekti kohaselt oli plaanis kõrvalhoone liita vee- ja kanalisatsioonitrassidega, soojustada, muuta katusekallet, ehitada sisse ahi ning teha muud vastavad muudatused, mis võimaldaks sisuliselt abihoonet kasutada eluruumina (EHR kanne jääks siiski abihoone). Antud projekt on realiseerimata ja uuel omanikul soovi korral võimalik see ellu viia.
TEEÄÄRNE RAUDTEE 77A KINNISTU (260 m2) VÕIMALIK JUURDE OSTA.
ASUKOHT
Kinnistu asub Nõmme miljööväärtuslikul aedlinna elamualal, mis on rahulik ja roheline hinnatud elukeskkond. Lähim rongipeatus Kivimäe jaam asub 290 m kaugusel. Lähim bussipeatus Salve asub 270 m kaugusel Pärnu mnt ääres ning 500 m raadiuses asub veel mitu bussipeatust, mis tagab hea ühenduse teiste linnaosadega. Läheduses asuvad mitmed pargid, sh Nõmme Uisupark, terviserajad, mänguväljakud, lasteaiad,
--
Müüme, hindame ja teeme Sinu kinnisvara dokumendid korda - iga päev, suurima rõõmu ja pühendumisega!
Edasta müügisoov www.arcovara.ee/et/#edasta-myygisoov
Telli hindamine www.arcovara.ee/et/#telli-hindamine
Saada ehitus- või kasutusloa soov seadustamine.arcovara.ee















































