Tule kliendipäevale 07. jaanuaril kell 16.00 - 17.00!
Eelregistreerumine 5692 **** või ***@***.ee.
Vanamõisa külas Saue külje all tuli müügile vastvalminud neljatoaline kasutusloaga peremaja!
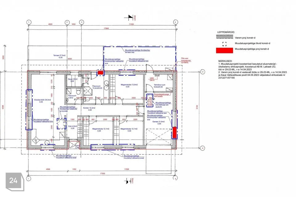
Projekteeritud hoone on ristkülikujulise põhiplaaniga horisontaalse voodrilauaga viimistletud ühekorruseline viiklatusega hoone. Hoone on lihtsa ja selge vormikeelega ning jaguneb funktsionaalselt kolmeks blokiks: ühiseluvööndiks, privaatvööndiks ja abiruumide vööndiks. Ühiselublokis on elutuba avatud köögiga (kokku 34 m2), esik ja külalistualettruum, kuhu on soovi korral võimalik lisaks paigaldada ka dušinurk. Privaatblokis on kolm magamistuba (vastavalt 13,8 m2, 12,1 m2 ja 12,1 m2) ja saunakompleks (pesemisruum, leiliruum, tualettruum). Abiblokki jäävad garaaž ja tehnoruum.
Elutoast ja saunakompleksist pääseb maja taha päeva- ja õhtupäikesesse avatud privaatsele terrassile (hetkel 27 m2, soovi korral on võimalik pikendada). Maja fassaad on avatum hooviruumi päikesepoolses suunas ning suletum külgedel. Läbimõeldud ruumilahendus tagab üheaegselt nii privaatsuse, päikesevalgus kui ka dialoogi hooviruumiga. Interjöör on looduslähedastes toonides, läbimõeldud ja funktsionaalne.
EHITISEALUNE PIND: 165,1 m2
KORRUSELISUS: 1 KORRUS
SULETUD BRUTOPIND: 163,5 m2
SULETUD NETOPIND: 133,6 m2
ELURUUMI PIND: 105,2 m2
TEHNOPIND: 6,8 m2
ÜLDKASUTATAV PIND: 21,6 m2
TERRASSIPIND: 27,0 m2
KINNISTU PIND: 1632 m2
Hoone on ehitatud plaatvundamendile. Väliseinad Bauroc EcoTerm 300 plokkidest, soojustatud vahtpolüsteroolist soojustusplaatidega, välisviimistluseks horisontaalne voodrilaud. Mittekandvad siseseinad Bauroc Classic 150 plokkdest. Eluruumide seinad ja laed on pahteldatud ja värvitud, sanitaarruumides seintes keraamilised plaadid, sauna seinad ja lagi viimistletud haavapuidust laudisega. Põrandatel eluruumides parkett, sanruumides ja tehnoruumis keraamiline plaat, garaažipõrand lihvitud betoonplaadina. Terrass sügavimmutatud põrandalaudadest puittalastikul. Viilkatus kaldega 20 kaardi, katusekarkass ferm-tüüpi, katusekatteks pural-kattega profiilplekk. Aknad PVC raamidega 3-kordne selektiivpakett.
Hoone on liitunud tsentraalse kanalisatsiooni ja külma tarbeveega. Kütteallikaks on õhk-vesi soojuspump, tubades sundtsirkuleeruva veega põrandaküttetorustik. Hoones on soojustagastusega sundventilatsioon. Elektrivarustuse liitumispunt on peakaitsmega 3*16A. Energiatõhususklass B.
Nurgapealsel mõnusa suurusega (1632 m2) kinnistul sälitati ehitustegevuse käigus kõrghaljastus (kasepuud) maksimaalselt võimalikus mahus, mis annab elukeskkonnas kvalitatiivse eelise võrreldes teiste uusarendustega, kus valdavalt on elupuuhekist madalhaljastus. Tegemist on nurgapealse kinnistuga, kus lähim naabermaja on garaažipoolsel küljel. Kahest küljest on kinnistu piiratud kvartalisisese väikese liikluskoormusega teega ja ühest küljest kuuluva üldkasutatava maaga (hooneteta haljastatud maa).
Vanamõisa asukoht - paariminutilise autosõidu kaugusel Keilast ühel pool ja Sauest teisel pool - on muutnud selle ihaldusväärseks kodukohaks, seda eriti lastega peredele. Lasteaedade, koolide, huvikoolide, terviseasutuste, spordirajatiste, kaubanduskeskuste jpm lähedus. Tallinnasse viib neljarealine tee, jalutustee kaugusel on rongipeatus.
Helista ja tule tutvu oma tulevase koduga!
Diana Allik
tel +372 **** 9666, e-post ***@***.ee
www.uusmaanord.ee
Nõua müügis parimat ja helista mulle!
UUS MAA NORDi 2023 KULD
UUS MAA NORDi 2022 KULD
UUS MAA NORDi 2021 KULD
UUS MAA NORDi 2020 KULD
UUS MAA Aasta maakler 2021 II
UUS MAA Aasta maakler 2020 II
9-kordne kuu elamispindade maakler 2021
7-kordne kuu elamispindade maakler 2020
JAGA MINU KONTAKTI KÕIGILE, KES VAJAVAD KINNISVARANÕU!
Võtame müüki teie kinnisvara üle Eesti ja leiame parima hinnaga ostja!
Küsi lisa: +372 **** 0200 või kirjuta ***@***.ee
Vali UUS MAA Nord, sest meie maaklerid suudavad Teid professionaalselt nõustada kogu ostu-müügiprotsessi vältel.
Meie maaklerid pakuvad sõbralikku, iga konkreetse kliendi vajadusi arvestavat, paindlikku ja usaldusväärset teenust. Aitame kogu protsessi läbi viia ja võtame enda kanda kogu tehingutega seonduva asjaajamise, tegutsedes diskreetselt Teie parimates huvides.
Vahendustasu täpne suurus sõltub objekti müügihinnast, asukohast, objektile tehtava reklaami mahust ja prognoositavast müügiperioodist.
-------------------
TELLI HINDAMINE: ***@***.ee (Uus Maa eksperthinnangut aktsepteerivad kõik finantsasutused)
Eelregistreerumine 5692 **** või ***@***.ee.
Vanamõisa külas Saue külje all tuli müügile vastvalminud neljatoaline kasutusloaga peremaja!
Projekteeritud hoone on ristkülikujulise põhiplaaniga horisontaalse voodrilauaga viimistletud ühekorruseline viiklatusega hoone. Hoone on lihtsa ja selge vormikeelega ning jaguneb funktsionaalselt kolmeks blokiks: ühiseluvööndiks, privaatvööndiks ja abiruumide vööndiks. Ühiselublokis on elutuba avatud köögiga (kokku 34 m2), esik ja külalistualettruum, kuhu on soovi korral võimalik lisaks paigaldada ka dušinurk. Privaatblokis on kolm magamistuba (vastavalt 13,8 m2, 12,1 m2 ja 12,1 m2) ja saunakompleks (pesemisruum, leiliruum, tualettruum). Abiblokki jäävad garaaž ja tehnoruum.
Elutoast ja saunakompleksist pääseb maja taha päeva- ja õhtupäikesesse avatud privaatsele terrassile (hetkel 27 m2, soovi korral on võimalik pikendada). Maja fassaad on avatum hooviruumi päikesepoolses suunas ning suletum külgedel. Läbimõeldud ruumilahendus tagab üheaegselt nii privaatsuse, päikesevalgus kui ka dialoogi hooviruumiga. Interjöör on looduslähedastes toonides, läbimõeldud ja funktsionaalne.
EHITISEALUNE PIND: 165,1 m2
KORRUSELISUS: 1 KORRUS
SULETUD BRUTOPIND: 163,5 m2
SULETUD NETOPIND: 133,6 m2
ELURUUMI PIND: 105,2 m2
TEHNOPIND: 6,8 m2
ÜLDKASUTATAV PIND: 21,6 m2
TERRASSIPIND: 27,0 m2
KINNISTU PIND: 1632 m2
Hoone on ehitatud plaatvundamendile. Väliseinad Bauroc EcoTerm 300 plokkidest, soojustatud vahtpolüsteroolist soojustusplaatidega, välisviimistluseks horisontaalne voodrilaud. Mittekandvad siseseinad Bauroc Classic 150 plokkdest. Eluruumide seinad ja laed on pahteldatud ja värvitud, sanitaarruumides seintes keraamilised plaadid, sauna seinad ja lagi viimistletud haavapuidust laudisega. Põrandatel eluruumides parkett, sanruumides ja tehnoruumis keraamiline plaat, garaažipõrand lihvitud betoonplaadina. Terrass sügavimmutatud põrandalaudadest puittalastikul. Viilkatus kaldega 20 kaardi, katusekarkass ferm-tüüpi, katusekatteks pural-kattega profiilplekk. Aknad PVC raamidega 3-kordne selektiivpakett.
Hoone on liitunud tsentraalse kanalisatsiooni ja külma tarbeveega. Kütteallikaks on õhk-vesi soojuspump, tubades sundtsirkuleeruva veega põrandaküttetorustik. Hoones on soojustagastusega sundventilatsioon. Elektrivarustuse liitumispunt on peakaitsmega 3*16A. Energiatõhususklass B.
Nurgapealsel mõnusa suurusega (1632 m2) kinnistul sälitati ehitustegevuse käigus kõrghaljastus (kasepuud) maksimaalselt võimalikus mahus, mis annab elukeskkonnas kvalitatiivse eelise võrreldes teiste uusarendustega, kus valdavalt on elupuuhekist madalhaljastus. Tegemist on nurgapealse kinnistuga, kus lähim naabermaja on garaažipoolsel küljel. Kahest küljest on kinnistu piiratud kvartalisisese väikese liikluskoormusega teega ja ühest küljest kuuluva üldkasutatava maaga (hooneteta haljastatud maa).
Vanamõisa asukoht - paariminutilise autosõidu kaugusel Keilast ühel pool ja Sauest teisel pool - on muutnud selle ihaldusväärseks kodukohaks, seda eriti lastega peredele. Lasteaedade, koolide, huvikoolide, terviseasutuste, spordirajatiste, kaubanduskeskuste jpm lähedus. Tallinnasse viib neljarealine tee, jalutustee kaugusel on rongipeatus.
Helista ja tule tutvu oma tulevase koduga!
Diana Allik
tel +372 **** 9666, e-post ***@***.ee
www.uusmaanord.ee
Nõua müügis parimat ja helista mulle!
UUS MAA NORDi 2023 KULD
UUS MAA NORDi 2022 KULD
UUS MAA NORDi 2021 KULD
UUS MAA NORDi 2020 KULD
UUS MAA Aasta maakler 2021 II
UUS MAA Aasta maakler 2020 II
9-kordne kuu elamispindade maakler 2021
7-kordne kuu elamispindade maakler 2020
JAGA MINU KONTAKTI KÕIGILE, KES VAJAVAD KINNISVARANÕU!
Võtame müüki teie kinnisvara üle Eesti ja leiame parima hinnaga ostja!
Küsi lisa: +372 **** 0200 või kirjuta ***@***.ee
Vali UUS MAA Nord, sest meie maaklerid suudavad Teid professionaalselt nõustada kogu ostu-müügiprotsessi vältel.
Meie maaklerid pakuvad sõbralikku, iga konkreetse kliendi vajadusi arvestavat, paindlikku ja usaldusväärset teenust. Aitame kogu protsessi läbi viia ja võtame enda kanda kogu tehingutega seonduva asjaajamise, tegutsedes diskreetselt Teie parimates huvides.
Vahendustasu täpne suurus sõltub objekti müügihinnast, asukohast, objektile tehtava reklaami mahust ja prognoositavast müügiperioodist.
-------------------
TELLI HINDAMINE: ***@***.ee (Uus Maa eksperthinnangut aktsepteerivad kõik finantsasutused)










































