Müügile on tulnud kaasaegne ja energiasäästlik neljatoaline maja rahulikus Alliku külas, Tallinna külje all.
MAJA
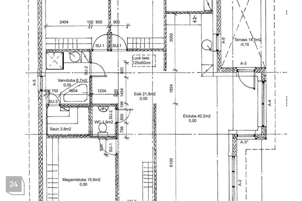
Maja üldpind on 142,2 m², sellest suletud netopinda 126,7 m².
Planeering on läbimõeldud ja funktsionaalne – majas on suur avatud elutuba koos köögiga, kolm magamistuba, esik, eraldi WC, vannituba ning saun.
KÜTE JA ENERGIATÕHUSUS
Maja kütab õhk-vesisoojuspump ning ruumides on vesipõrandaküte, mille temperatuuri saab igas toas eraldi reguleerida.
Hoonel on B-energiamärgis. Katusele on paigaldatud päikesepaneelid, mis aitavad energiakulusi madalal hoida. Samuti on majas soojustagastusega ventilatsioon.
Suvekuudel on kulud ligikaudu 100 eurot ning talvekuudel umbes 250 eurot.
SISUSTUS JA LAHENDUSED
Kaks magamistuba on varustatud suurte garderoobikappidega, lisaruumi pakuvad mahukad kapid nii esikus kui elutoas. Köögis on kvaliteetne köögimööbel ning tehnika tootjalt Bosch.
Elutoast pääseb avarale lõunapoolsele terrassile, kus on ideaalne pere ning sõpradega aega veeta. Samuti on terrassil ka tünnisaun, mis lisab väärtust veelgi.
KRUNT
Kinnistu suurus on 1572 m², mis pakub piisavalt privaatsust ja ruumi erinevateks tegevusteks. Maja ees on korralik uunikivist sissesõit, kuhu mahub mugavalt parkima 3–4 autot.
Avatud ja hooldatud hooviala annab võimaluse luua endale just selline õueruum, nagu soovid – siia saab rajada näiteks kasvuhoone, peenramaa või laste mänguala.
PIIRKOND
Alliku küla on hinnatud oma vaikse ja peresõbraliku elukeskkonna poolest. Tegemist on uusarenduste piirkonnaga, kus on välja kujunenud kaasaegne ja turvaline elukeskkond.
Läheduses, 5-minutilise jalutuskäigu kaugusel, asuvad Kotka lasteaed ja bussipeatus, Laagri kool jääb vaid 3 km kaugusele.
Tallinna kesklinn on vaid 30-minutlise autosõidu kaugusel.
Selliseid terviklikke lahendusi turule iga päev ei lisandu! Võta ühendust ning lähme vaatama.
JAGA MINU KONTAKTI KÕIGILE, KES VAJAVAD KINNISVARANÕU!
- - - - - - - - - -
Telli hindamine UUS MAA Kinnisvarabüroolt https://uusmaa.ee/teenused/hindamine/
ning saad:
- Eksperthinnangu kuni 20% soodsamalt kui võtad koduga seotud laenu Swedbankist
- Pankadest parimad kodulaenutingimused
- Kiire, kvaliteetse ning usaldusväärse hindamisteenuse Eestis
UUS MAA KINNISVARABÜROO EKSPERTHINNANGUID AKTSEPTEERIVAD KÕIK FINANTSASUTUSED.
- - - - - - - - - -
Liitu Uus Maa uudiskirjaga ja saa homset kinnisvarainfot juba täna!
https://www.uusmaa.ee/uudiskirjagaliitumine/
- - - - - - - - - -
Kodu aitab osta Swedbank.
Pakkumise saamiseks kasuta koodi UUSMAA ja Sind teenindatakse eelisjärjekorras.
Võtame ühendust 1 tööpäeva jooksul.
Uus Maa kliendile soodsam lepingutasu. Küsi täpsemat infot maaklerilt.
Finantsteenuseid pakub Swedbank AS. Tutvu tingimustega, pea nõu.
MAJA
Maja üldpind on 142,2 m², sellest suletud netopinda 126,7 m².
Planeering on läbimõeldud ja funktsionaalne – majas on suur avatud elutuba koos köögiga, kolm magamistuba, esik, eraldi WC, vannituba ning saun.
KÜTE JA ENERGIATÕHUSUS
Maja kütab õhk-vesisoojuspump ning ruumides on vesipõrandaküte, mille temperatuuri saab igas toas eraldi reguleerida.
Hoonel on B-energiamärgis. Katusele on paigaldatud päikesepaneelid, mis aitavad energiakulusi madalal hoida. Samuti on majas soojustagastusega ventilatsioon.
Suvekuudel on kulud ligikaudu 100 eurot ning talvekuudel umbes 250 eurot.
SISUSTUS JA LAHENDUSED
Kaks magamistuba on varustatud suurte garderoobikappidega, lisaruumi pakuvad mahukad kapid nii esikus kui elutoas. Köögis on kvaliteetne köögimööbel ning tehnika tootjalt Bosch.
Elutoast pääseb avarale lõunapoolsele terrassile, kus on ideaalne pere ning sõpradega aega veeta. Samuti on terrassil ka tünnisaun, mis lisab väärtust veelgi.
KRUNT
Kinnistu suurus on 1572 m², mis pakub piisavalt privaatsust ja ruumi erinevateks tegevusteks. Maja ees on korralik uunikivist sissesõit, kuhu mahub mugavalt parkima 3–4 autot.
Avatud ja hooldatud hooviala annab võimaluse luua endale just selline õueruum, nagu soovid – siia saab rajada näiteks kasvuhoone, peenramaa või laste mänguala.
PIIRKOND
Alliku küla on hinnatud oma vaikse ja peresõbraliku elukeskkonna poolest. Tegemist on uusarenduste piirkonnaga, kus on välja kujunenud kaasaegne ja turvaline elukeskkond.
Läheduses, 5-minutilise jalutuskäigu kaugusel, asuvad Kotka lasteaed ja bussipeatus, Laagri kool jääb vaid 3 km kaugusele.
Tallinna kesklinn on vaid 30-minutlise autosõidu kaugusel.
Selliseid terviklikke lahendusi turule iga päev ei lisandu! Võta ühendust ning lähme vaatama.
JAGA MINU KONTAKTI KÕIGILE, KES VAJAVAD KINNISVARANÕU!
- - - - - - - - - -
Telli hindamine UUS MAA Kinnisvarabüroolt https://uusmaa.ee/teenused/hindamine/
ning saad:
- Eksperthinnangu kuni 20% soodsamalt kui võtad koduga seotud laenu Swedbankist
- Pankadest parimad kodulaenutingimused
- Kiire, kvaliteetse ning usaldusväärse hindamisteenuse Eestis
UUS MAA KINNISVARABÜROO EKSPERTHINNANGUID AKTSEPTEERIVAD KÕIK FINANTSASUTUSED.
- - - - - - - - - -
Liitu Uus Maa uudiskirjaga ja saa homset kinnisvarainfot juba täna!
https://www.uusmaa.ee/uudiskirjagaliitumine/
- - - - - - - - - -
Kodu aitab osta Swedbank.
Pakkumise saamiseks kasuta koodi UUSMAA ja Sind teenindatakse eelisjärjekorras.
Võtame ühendust 1 tööpäeva jooksul.
Uus Maa kliendile soodsam lepingutasu. Küsi täpsemat infot maaklerilt.
Finantsteenuseid pakub Swedbank AS. Tutvu tingimustega, pea nõu.










































